Якорь Матросова — назначение и виды
Якорь Матросова был создан в период с 1943 по 1946 годы инженером из СССР Матросовым И.Р. Якорь относится к классу бесштоковых, с увеличенной силой удержания (сила, подаваемая на якорь без движения и вывода из грунта). Устройство такого якоря включает:
- якорную скобу;
- приливы (боковые штоки), не позволяющие якорю опрокинуться;
- веретено;
- две широкие поворотные лапы, примыкающие к веретену.
Главная особенность – максимально близкое расположение веретена и поворотных лап.
Назначение якоря Матросова
С развитием судостроения и ростом водоизмещения судов, а также массы их грузов, появилась необходимость в улучшении существующих якорей, с целью увеличения их удерживающей силы. Якорями, удовлетворяющими этим условиям и стали якоря Матросова. Их стали устанавливать как дополнительные на суда военно-морского флота, а также как главные на небольшие суда и катера.
В якорях данного типа стал использоваться принцип кривошипного механизма: благодаря особому размещению оси веретена относительно оси боковых штоков, роль шатуна при натяжении цепи начинает играть веретено, разворачивая в свою очередь лапы по оси вращения. Якорь быстро углубляется в грунт и остается там даже при повороте судна вокруг своей оси. Он очень устойчиво держится как на мелкокаменистом твердом грунте, так и на песчано-илистом слабом грунте.
Типы
На сегодняшний день есть три типа:
- сварные катерные, массой от пяти килограмм;
- сварные, массой до 200 килограмм;
- литые полновесные, массой до 1,5 тонн.
Преимущества
Проводились множественные испытания для определения силы держания на всевозможных видах грунтов. Результаты исследований выявили явные преимущества перед такими якорями, как холловский и адмиралтейский. Якорь Матросова имеет в четыре раза лучшую силу удержания перед адмиралтейским якорем, несмотря на одинаковую массу.
Идеальным якорь Матросова является для речных судов. Также существует возможность разместить его почти на любое судно внутреннего плавания. Зачастую якорь устанавливается и на большие яхты и катера, а также на суда морского флота.
Корабельные якоря. Якорь Матросова: специфические особенности конструкции
Казалось бы, что можно рассказать о якоре? Простейшая, на первый взгляд, конструкция. А ведь он играет огромную роль в жизни корабля. Главная задача якоря – надёжно привязать судно к земле, где бы это ни было: в открытом море или у берега. Моторная лодка или яхта, круизный лайнер или многотонный танкер – безопасное движение по морским просторам для любого судна зависит от надёжности якорей.
Якорные конструкции видоизменялись на протяжении сотен лет. Надёжность, простота использования, вес — каждый параметр проверяло на практике само море, отсчитывая морские мили. Большинство якорей носят общие названия: адмиралтейский, ледовый, плуг, кошки. Но существуют якоря, названные в честь их создателей.
Среди изобретателей надёжных конструкций звучат фамилии: Холл и Матросов, Дэнфорт, Брюс, Байерс, Болдт.
«Цепи якорей звенят в порту…», или Судовая роль якоря
Якорь должен обеспечивать безопасную стоянку судна, корабля, катера или яхты на рейде и в открытом море. Кроме того, якорь играет огромную роль в решении и других задач:
- Ограничивает подвижность судна во время швартовки к другому судну или причалу при неблагоприятных погодных условиях, сильном течении, проведении погрузочных работ.
- Позволяет совершить безопасный разворот на ограниченном пространстве (например, в узкой гавани).
- Может быстро погасить инерцию и остановить судно, когда грозит столкновение.
- Помогает снять с мели судно силами экипажа.
Части якорной конструкции (цепи, клюзы) иногда используют при буксировке.
Ситуации, когда используется якорь, можно условно разделить на две группы.
Первая группа — для аварийного использования: в ситуациях, когда якорь должен удержать корабль при максимальном значении силы ветра и волнения на море.
Вторая группа — для повседневного использования: при кратковременной остановке в хорошую погоду
Строение якоря
Носовая часть корабля – место, где размещается якорное устройство. Дополнительную якорную конструкцию устанавливают на корме крупнотоннажных судов, ледоколов и буксиров. Такая конструкция включает в себя непосредственно якорь, якорную цепь или канат, цепной ящик, устройство, с помощью которого прикрепляют якорные цепи к корпусу корабля, клюз, стопор, а также шпиль и брашпиль, с помощью которых отдают и поднимают якорь.
А из чего состоит сам якорь, в стальных лапах которого находится безопасность судна, экипажа и пассажиров, находящихся на борту?
Якорь – это особая конструкция (сварная, литая или кованая), которая опускается на дно и удерживает судно с помощью якорной цепи или каната. Она состоит из нескольких элементов:
Веретено (продольный стержень) с якорной скобой в верхней части — с помощью этой скобы якорь прикрепляют к цепи;
Лапы и рога, которые прикрепляются к веретену неподвижно или на шарнире.
У якорей, имеющих шток, в верхней части веретена устанавливается поперечный стержень, усиливающий держащую силу.
Якорные конструкции: назначение, тип
По назначению корабельные якоря бывают:
- Вспомогательные: анкеры, верпы, дреки, кошки, ледовые. Роль вспомогательных якорей – помогать становым в определённых ситуациях: при посадке и высадке пассажиров, погрузке и выгрузке, для снятия судна с мели, удержания судна у кромки ледового поля.
- Становые: на каждом судне их должно быть 3 (2 в клюзах, 1 – на палубе).
По способу забора грунта делятся на две группы.
В одну группу входят якоря, которые забирают грунт (т. е. зарываются в него) одной лапой. В первую очередь сюда относят адмиралтейский якорь.
В другую группу объединены якоря, забирающие грунт двумя лапами: якоря Холла, Байерса, Болдта, Грузона-Хейна, Матросова.
Становые якоря должны соответствовать следующим критериям:
- прочность;
- быстрая отдача;
- хороший забор грунта;
- лёгкое отделение от грунта при подъёме;
- удобный крепёж в положении «по-походному».

Один из самых важных критериев — большая держащая сила, то есть максимальное усилие, измеряемое в килограммах, при воздействии которого якорь не выйдет из грунта и сможет удержать судно «на привязи».
Якорь-«адмирал»
Адмиралтейский якорь по праву можно считать ветераном среди корабельных якорей. Это едва ли не единственный представитель конструкций, имеющих шток. Несмотря на то что на смену ему пришли более современные и надёжные модели, он по-прежнему выполняет свою судовую роль во флоте. Это объясняется универсальностью конструкции.
Проверенное столетиями строение адмиралтейского якоря лаконично: неподвижные лапы и рога отлиты или выкованы вместе с веретеном и составляют с ним единое целое, без дополнительных механических элементов. Шток – деревянный или металлический. Его задача – помогать быстрому забору грунта и правильному ориентированию якоря, цепляющегося за дно.
Сама конструкция компактно складывается: шток укладывается вдоль веретена, а в современных моделях могут складываться и лапы.
Это упрощает хранение и транспортировку якоря во время морского похода.
К преимуществам относится и большая держащая сила (её коэффициент равен 10-12), которая выше, чем у многих «собратьев» с таким же весом.
«Адмирал» способен справиться с любым грунтом: ему не страшны ни крупные камни, среди которых нередко застревают его «коллеги», ни коварная податливость ила, ни толща подводных водорослей.
К недостаткам флотского старожила можно отнести громоздкость и объёмность, трудоёмкость в обращении – это приводит к тому, что его хлопотно крепить в походное положение и нельзя быстро отдать. Якорь выковывают из железа с предъявлением жёстких требований к качеству материала и изготовления – это приводит к его высокой стоимости.
Шток зачастую выходит из строя: железный гнётся, а деревянный повреждают моллюски, он хрупок и недолговечен.
При погружении в грунт одна лапа торчит, представляя на мелководье угрозу для судов, а за выступающий над грунтом рог может зацепиться и запутаться якорная цепь.
Якорь Холла
В 1988 году англичанином Холлом был запатентован якорь, названный его именем. Этот якорь тоже считается флотским ветераном, только бесштоковым. Конструкция состоит из веретена и двух лап, отлитых вместе с коробкой.
Лапы в этой конструкции необычны: имеют плоскую форму, качаются и могут поворачиваться на оси.
Коробка и лапы утяжелены приливами с утолщениями в виде лопаток. Их задача – поворачивать лапы, заставляя их уходить в грунт на глубину, которая может в 4 раза превышать длину самих лап. Это особенно важно, если грунт слабый и необходимо сильно заглубиться, чтобы достичь прочного основания.
Неоспоримыми плюсами якоря Холла считаются достаточно большая держащая сила, быстрая отдача (его можно отдавать на ходу, причём, такой способ отдачи даже помогает максимально заглубить лапы) и удобная уборка в клюз.
На мелководье он не опасен для других судов, так как лапы плашмя лежат на грунте, запутывание якорной цепи или каната вокруг лап исключено.
К минусам конструкции относят ненадежность крепления якоря на разнородном по составу грунте при возникновении вращающего момента или во время стоянки на открытом рейде при изменении направления ветра или сильном течении, когда якорь начинает ползти рывками. В этом случае при сильном рывке якорь выскакивает из грунта, а затем вновь углубляется благодаря лопатам, которые успевают нагрести бугор из грунта. Это объясняется слишком большим расстоянием между лапами. Кроме того, шарнирную коробку может заклинивать, когда в неё набирается песок или мелкая галька.
При втягивании в клюз при уборке якоря лапы не всегда могут самостоятельно принять необходимое положение из-за не очень удачного расположения центра тяжести.
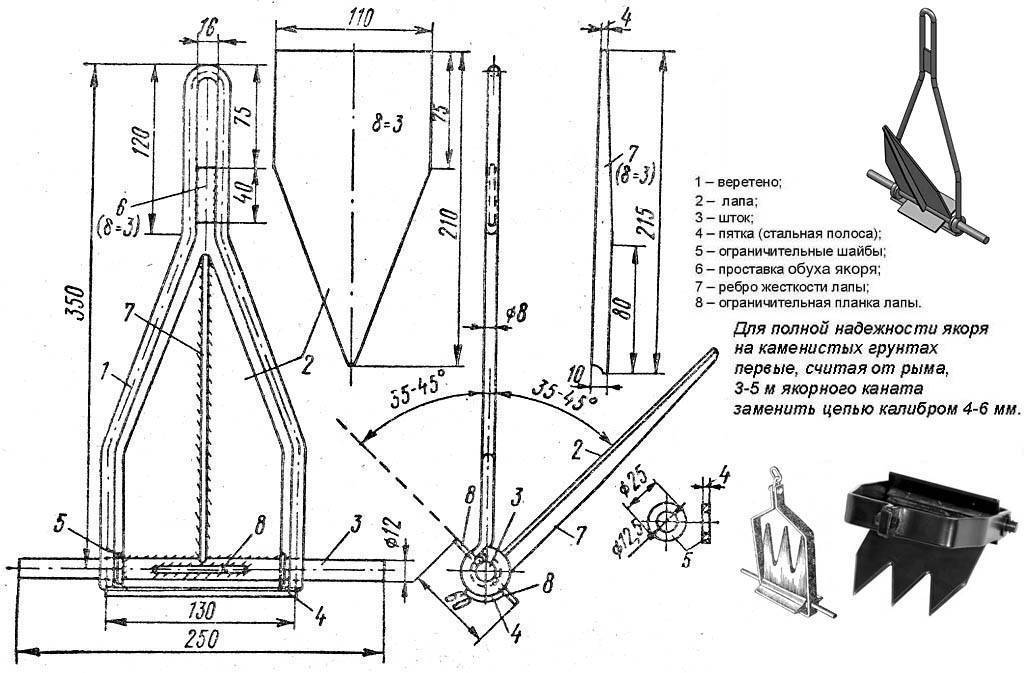
Якорь Матросова
Этот якорь является одной из наиболее современных конструкций с повышенной держащей силой. Созданный советским инженером И. Р. Матросовым в 1946 году, он вобрал в себя достоинства и устранил недостатки, присущие лапам двух типов якорей: с неподвижными лапами (таких как адмиралтейский) и с поворотными (якорь Холла).
Конструкция якоря такова: веретено, лапы, боковые штоки, якорная скоба.
В системе Матросова широкие поворотные лапы почти вплотную приближены к веретену и находятся настолько близко друг от друга, что во время зарывания в грунт начинают работать, как одна большая лапа. Площадь каждой из них больше, чем в других якорных конструкциях. Вместе с лапами отлит шток с боковыми приливами. Шток смещён вверх по отношению к оси вращения веретена. Его задача – защитить якорь от опрокидывания и увеличить держащую силу, погружаясь в грунт вместе с лапами.
Достоинствами конструкции являются устойчивость при волочении по грунту, большая удерживающая сила даже на мягких песчано-илистых грунтах и в камнях, сравнительно небольшой вес и удобство втягивания в клюз во время уборки. При развороте судна на 3600 держится уверенно.
Есть у конструкции и свои недостатки. На плотном грунте на начальном этапе заглубления якорь неустойчив. Если лапы вывернулись из грунта, повторно они в грунт не входят, и якорь продолжает ползти.
Пространство между лапами у веретена настолько узкое, что часто забивается грунтом – это не даёт лапам возможности свободно отклоняться.
Производство
Якорь Матросова выпускается в двух вариантах:
- сварной (сварная лапа)
- литой полновесный (литая лапа)
Технический стандарт для якоря Матросова — ГОСТ 8497-78. Он применяется для якорей, которые используют на надводных судах, кораблях и плавсредствах внутреннего плавания.
Технические характеристики и параметры определяются массой (весом якоря)
Сварной якорь
Сварной якорь Матросова изготавливают массой от 5 до 35 кг из нержавеющей стали или из стали с анодированным покрытием или с покрытием краской.
Якоря, покрытые краской, требуют дополнительного ухода (зачистки от ржавчины и покраски), так как краска быстро обдирается грунтом. Анодное покрытие более стойкое, но тоже подвержено физическому воздействию при контакте с грунтом. Самые стойкие из сварных конструкций – якоря, сваренные из нержавеющей стали.
Литой якорь
Литые якоря Матросова изготавливают массой от 25 до 1500 кг.
Их, как правило, отливают из чугуна и покрывают анодным напылением или краской.
Якорь Матросова литой в опытном варианте с успехом был опробован на морских промысловых судах в эксплуатационных условиях. Преимущества его перед якорем Холла оказались бесспорными.
А какой лучше
Учитывая большое разнообразие корабельных якорей, невозможно ответить однозначно на вопрос о том, какая конструкция лучше.
Однако многочисленные испытания на определение величины держащей силы на различных типах грунта показали, что якорь Матросова в 4 раза превосходит адмиралтейский и Холла при равной массе.
Якорь эффективен для использования на судах внутреннего плавания, речных судов, катеров и яхт. На судах морского флота практикуется его использование в роли вспомогательного.
якоря |
Солнечным апрельским утром 1948 г. от причала американской военно-морской базы в Сан-Франциско отошел небольшой буксир.
Когда вытравили около пяти глубин якорной цепи и буксир дал малый ход вперед, стрелка на фунтовой шкале включенного в цепь динамометра дошла до цифры 100 и якорь «пополз».
После этого к цепи прикрепили обычный адмиралтейский якорь массой 75 фунтов и, вытравив в воду такую же длину цепи, стали протаскивать его по грунту. Перед, тем как якорь сдвинулся с места, стрелка динамометра показала 187 фунт-сил. Потом таким же образом испытали «патентованный» адмиралтейский якорь из литой стали, весивший 28 фунтов. По держащей силе он немного уступил предыдущему, показав 1 натяжение якорь-цепи в 181 фунт-силу. Четвертым к цепи прикрепили складной якорь Нортхилла в 20 фунтов.

Наконец за борт бросили якорь с двумя сближенными лапами, сквозь основания которых был пропущен круглый шток. Этот якорь весил 29 фунтов. Буксир дал малый ход вперед и через некоторое время остановился, хотя его машина показывала ту же самую частоту вращения. Стрелка динамометра медленно пошла по кругу… Якорь продолжал держать. Корабль увеличил частоту вращения машины, но якорь по-прежнему его не пускал.

Никто не мог поверить, что якорь весом всего в 29 фунт-сил оказал сопротивление в 6100 фунт-сил, т. е. имел держащую силу, равную 210 фунт-сил на 1 фунт-силу своего веса. Это происходило на илистом грунте, под толщей которого в 3-6 футов была плотная глина. Решили испытать загадочную конструкцию на плотном песке средней зернистости. Буксир двинулся в глубь залива к берегу Окленда. Проба якорей проводилась здесь в той же последовательности. И опять вызвавший недоумение присутствовавших на буксире якорь вел себя точно так же; на предельной частоте вращения якорь-цепь, рассчитанная на усилие 8000 фунт-сил, лопнула. В момент обрыва стрелка динамометра показывала ровно 6000 фунт-сил.
| Тип якоря | Вес якоря в фунтах | Натяжение на динамометре, в фунтах | Держащая сила в фунтах на 1 фунт веса якоря |
| Болдта | 100 | 200 | 2,0 |
| Адмиралтейский обычный | 75 | 825 | 4,3 |
| Адмиралтейский патентованный | 28 | 500 | 17,9 |
| Нортхилла складной | 20 | 420 | 21,0 |
| «Марка-II» | 29 | 6000 | 206,9 |
Якорь, названный в таблице “Марка-II”, показавший такую фантастическую держащую силу, изображен на рис.
117. Его изобрел американский инженер Ричард Дэнфорт. Следуя теории Хейна, он поставил перед собой цель – создать втяжной якорь повышенной держащей силы.
Дэнфорт испытал множество моделей и натурных образцов и пришел к следующим выводам.
На большей части рейдов, где судам приходится становиться на якорь, под слоем рыхлого грунта — ила, песка, ракушечника — есть более плотный и твердый грунт. Держащая сила втяжных якорей типа Холла даже с очень длинными и широкими лапами на мягких и рыхлых грунтах часто оказывается недостаточной для надежной якорной стоянки. На совсем рыхлом грунте, скажем, на жидком иле, такие якоря «плывут» — протаскиваются под натяжением якорь-цепи с лапами, откинутыми вверх.
На идеальных для якорной стоянки грунтах — плотном песке и глине — якоря типа Холла из-за больших захватов на коробке не могут заглубиться в грунт на величину, большую длины лап. А возникающее при этом нагребание грунта или появление пары сил, если грунт разнороден, сильно снижает держащую силу якоря.
На твердых грунтах якоря даже с очень большими захватами вообще не забирают, прыжками перемещаясь по дну. Но рейдов с таким грунтом моряки, как правило, избегают, и поэтому при расчете якоря ориентироваться следует на более или менее приемлемые грунты.
Дэнфорт убедился, что холловский принцип вообще не годится для создания хорошего якоря повышенной держащей силы для больших кораблей. Тут необходим новый принцип, который позволял бы якорю заглубляться в грунт не на длину его лап, а на величину в три-четыре раза больше. Якорь должен держать не за счет того, что лапы зацепляются за верхний рыхлый слой грунта, а за счет того, что, пронзив мягкий слой, он достигает твердой основы.
Вчитываясь в патент Дэнфорта, невольно вспоминаешь основные положения Хейна, хотя американец ни разу не ссылается на труд немецкого коллеги. Да и сама конструкция Дэнфорта в принципе схожа с конструкцией Хейна — максимально сближенные лапы, шток внизу и «обтекаемая» головная часть.
Благодаря тонко продуманному расчету якорь Дэнфорта зарывался в грунт на несколько метров.
На главном рисунке дана схема якоря Дэнфорта типа “Марка-II”, приложенная к его патенту № 2249546 от 15 июля 1941 г. Вот основные соображения и расчеты изобретателя:
1. Площадь лап якоря должна быть не менее 40% площади сопротивления грунта якорю. Еще лучше, если она составляет 60% этой площади и более.
2. Площадь сопротивления, грунта якорю не должна превышать 25% площади веретена якоря. Желательно, чтобы она составляла 13—10% площади веретена.
3. Угол носка лапы якоря U не должен быть более 75°. В противном случае якорь после вхождения в грунт будет из него быстро выдергиваться. Лучше, когда этот угол менее 70°.
4. Если 35% площади лап или более находится позади оси вращения, угол носка лапы U должен быть более угла атаки S (изобретатель называет углом атаки S угол между плоскостью лапы и прямой, соединяющей центр площади лапы с осью болта скобы якоря). В этом случае величина угла атаки должна составлять 30—50°. Если находящаяся за осью вращения площадь лап составляет менее 35% всей их площади, угол атаки S должен находиться в пределах 40—60°. В этом случае при выборе угла атаки и величины лап центры площади лап высчитываются по площади, находящейся только впереди оси вращения, на осях каждой лапы на расстоянии, равном примерно 1/5 длины веретена. При этом угол атаки будет в пределах 40—65°, и лучше, когда он в пределах 43—60°. У якорей, рассчитанных на твердый песок, угол атаки должен быть уменьшен до 40° (ниже этой величины держащая сила якоря резко падает).
У якорей для мягких грунтов угол атаки может быть равен 65°, у универсальных якорей — 49°.
5. Угол разворота лап Т связан с углом атаки и длиной веретена К.
Например, если угол разворота лап очень большой, то для установления нужного угла веретено якоря получится очень длинным. Хотя длинное веретено — это хороший рычаг для выламывания глубоко зарывшегося в грунт якоря, когда якорь-цепь на панере, оно не совсем удобно в -обращении. Если же угол разворота лап мал, то при нужном угле атаки веретено якоря получается непомерно коротким и угол носка лапы оказывается слишком большим для того, чтобы якорь начал углубляться лапами в грунт. Поэтому угол разворота лап Т должен находиться в пределах 27—42°.
6. Центры площадей лап G должны быть максимально сближены — в противном случае может возникнуть пара сил. Внутренние кромки лап должны идти параллельно оси веретена. Если расстояние между центрами площадей лап превышает 44% длины веретена, якорь не будет стабилен в грунте. Это расстояние должно быть менее 1/3 длины веретена. Якорь с лапами, очень близко прижатыми к веретену, склонен опрокидываться на бок. Поэтому отношение длины штока, служащего стабилизатором, к расстоянию между центрами площадей лап не должно быть менее, чем 2:1.
Лучше, когда это отношение равно 2,5:1 или даже 3:1.
7. Если шток слишком короток, то якорь с уже отброшенными в сторону лапами может волочиться по грунту на трех точках: верхнем конце веретена, конце штока и внешней кромке лапы. Длина штока должна быть не менее двух расстояний между центрами площадей лап и не менее 8/10 длины веретена.
8. Отношение длины лап к длине штока влияет на форму лап, угол атаки и угол носка лап. Если лапы сделать длинными, то угол атаки получится большим для хорошего зарывания якоря. Если их сделать короткими, то это не даст возможности обеспечить их достаточную площадь при форме, которая позволит им свободно углубляться в грунт. Если 35% площади лап находится за осью вращения веретена, длина лап должна составлять не менее 55% длины веретена, но не более 70%. Если за осью вращения находится больше 35% площади лап, то их длина может быть менее 55% длины веретена. Это отношение также влияет на распределение сил вдоль веретена, что имеет немалое значение для хорошего и быстрого зарывания якоря в грунт.
9. Наиболее выгодная — треугольная форма лап: она дает максимальную площадь и хорошее вхождение в грунт. Толщина лап должна быть по возможности минимальной. Зазор между внутренней кромкой лапы и веретеном должен составлять более 2% длины последнего и никак не меньше 1 % этой величины.
Якорь Дэнфорта для крупных судов10. На коробке — соединении нижней части лап с веретеном — не должно быть каких-либо выступающих частей. Углы скосов этой коробки должны быть в пределах 25—45° каждый — в противном случае она будет выполнять роль захватов и препятствовать зарыванию якоря в грунт. Выступающие, хотя и скошенные под нужным углом, части коробки по возможности должны быть сконцентрированы в ее центральной части и расположены как можно ближе к оси веретена.
Таковы основные соотношения якоря, найденные Дэнфортом опытным путем. Основываясь на них, он создал более десятка модификаций своего якоря, на которые получил патенты. Якорь Дэнфорта облегченной модификации весит всего 2,5 фунта, но его держащая сила на твердом песке составляет 105 фунт-сил.
На рисунке показан якорь Дэнфорта массой 7 т. Он хорошо держит на каменистом грунте.
За последние тридцать лет якоря Дэнфорта получили очень широкое распространение в разных странах.
Самой лучшей рекламой для этих якорей оказались ураганы «Кэрол» и «Эдна», которые пронеслись над восточным побережьем Северной Америки 31 августа и 11 сентября 1954 г. Во время этих стихийных бедствий скорость ветра достигала 135 миль в час. Уровень моря у берегов поднялся от двух до шести метров выше нормального. Десятки тысяч малых спортивных, разъездных и промысловых судов, застигнутых на внешних и даже внутренних закрытых рейдах, оказались выброшенными на берег. На плаву осталось несколько судов, стоявших на якорях Дэнфорта.
Лев Скрягин
продолжение
Вконтакте
Google+
LiveJournal
Одноклассники
Читать «Справочник по морской практике» — Коллектив авторов — Страница 12
Шлюпочная лебедка ЛЭРШ-10 (рис.
2.31) имеет тяговое усилие на барабане-1,6 тс; максимальную скорость спуска яла – 30 м/мин; максимальную скорость подъема яла – 5 м/мин.
Рис 2.31. Шлюпочная лебедка ЛЭРШ-10:
1 – центробежная муфта; 2 – тормозная коробка; 3 – кнопочный пост; 4 – рычаг ленточнного тормоза; 5- электродвигатель; 6 – рукоятки; 7 – грузовой барабан.
Спуск шлюпки производится под действием ее собственного веса при расторможенном ленточном тормозе поворотом рычага вверх. Скорость спуска шлюпки автоматически ограничивается центробежным тормозом. Центробежная муфта разобщает ведущий вал редуктора с валом электродвигателя при спуске шлюпки; она же при подъеме шлюпки передает вращение от электродвигателя к грузовому барабану. Пуск и остановка электродвигателя производится кнопочным постом. Муфта свободного хода стопорит грузовой барабан в случае аварийного выключения электродвигателя при подъеме шлюпки, а также не допускает обратного проворачивания рукояток при ручном приводе.
Глава 3.
Якорное устройство
3.1. Схема якорного устройства
Якорным устройством называется совокупность технических средств, предназначенных для удержания корабля на месте при стоянке его на рейде, в гавани, а если позволяет глубина, и в открытом море.
Якорное устройство надводного корабля (рис. 3.1) включает следующие технические средства. Два становых якоря, две якорные цепи, которые хранятся в цепном ящике; коренной конец якорной цепи отдается с помощью машинки отдачи ручным приводом. Отдача и подъем якорей осуществляются шпилем. Якоря крепятся в клюзах по-походному стопором якоря. Якорные клюзы на ходу корабля закрываются специальными крышками. При стоянке на якоре якорная цепь крепится переносным стопором; для стопорения якорной цепи на время работы с нею установлены палубные стопоры. Якорные цепи в цепной ящик направляются по трубам, имеющим в верхней части палубные клюзы.
Рис. 3.1. Якорное устройство надводного корабля:
1 – цепной ящик; 2 – машинка отдачи; 3 – цепные трубы; 4 – клюз; 5 – становой якорь; 6 – ручной привод; 7 – палубный клюз; 8, 13 – якорные цепи; 9 – крышка клюза; 10 – переносный стопор; ;11 – палубный стопор; 12 – шпиль; 14 – стопор якоря
Якорное устройство подводной лодки (рис.
3.2) включает следующие технические средства. Якорь, который может быть отдан как с верхней палубы, так и из первого отсека с помощью специальных приводов. Якорная цепь находится в цепном ящике; коренной конец якорной цепи отдается с помощью машинки отдачи ручным приводом, расположенным на концевой переборке прочного корпуса. Для работы с якорем включается электродвигатель, который находится внутри прочного корпуса подводной лодки; вращение электродвигателя через привод передается на брашпиль, управление которым осуществляется специальным приводом. После отдачи якоря якорная цепь стопорится стопором. Во время работы швартовного шпиля брашпиль отключается специальной муфтой.
Рис. 3.2. Якорное устройство подводной лодки:
1 – якорь; 2 – стопор; 3 – швартовный шпиль; 4, 8 – приводы; 5 – прочный корпус; 6 – первый отсек; 7 – электродвигатель; 9 – ручной привод; 10 – концевая переборка прочного корпуса; 11 – машинка отдачи; 12 – цепной ящик; 13 – якорная цепь; 14 – брашпиль; 15 – клюз
3.
2. Классификация и основные технические данные якорей
По назначению якоря подразделяются на становые и вспомогательные.
Становые якоря предназначены для удержания корабля на месте. Корабли снабжаются двумя становыми якорями; катера водоизмещением до 35 т – одним.
Вспомогательные якоря служат совместно со становыми для удержания корабля в определенном положении относительно волны, ветра или течения и подразделяются на стоп-анкеры (~0,5 веса станового якоря) и верпы (~0,3 веса станового якоря). Вспомогательные якоря размещаются в кормовой части корабля. Стоп-анкерами снабжаются корабли водоизмещением свыше 800 г; корабли водоизмещением до 800 т – верпами. Вес верпа для катеров водоизмещением до 35 т равен 1/5 веса станового якоря.
Основные характеристики якоря. Д е р ж а щ а я с и л а якоря – сила, которая приходится на единицу его веса и должна быть приложена для того, чтобы вырвать якорь из грунта в момент, когда веретено якоря расположено горизонтально. Держащая сила якоря зависит как от его конструкции, так и от характера грунта (табл.
3.1).
У д е р ж и в а ю щ а я с п о с о б н о с т ь якоря – сила, удерживающая корабль, который стоит на якоре, от перемещения под воздействием ветра и течения. Удерживающая способность якоря определяется произведением держащей силы якоря на его вес.
Вес станового якоря Р в кг:
где S – площадь сечения погруженной части мидель-шпангоута, м2;
D – полное водоизмещение корабля, г;
k – коэффициент держащей силы якоря (k=1 для якорей типа Холла; k=2 для якорей типа Матросова).
3.3. Типы якорей
Якорь Холла – втяжной с поворотными лапами; основной тип станового якоря для кораблей ВМФ. Якорь (рис. 3.3) состоит из веретена и коробки, отлитой заодно с двумя лапами. В средней части коробки имеется сквозное овальное отверстие, куда входит утолщенная часть веретена. Это отверстие ограничивает угол отклонения лап якоря (до 45°). В нижней части веретена просверлено отверстие для валика, с помощью которого веретено присоединяется к коробке. Выпадению веретена из коробки препятствуют два штыря, отверстия для которых после установки штырей завариваются.
К верхней части веретена присоединяется скоба якоря. Якоря Холла изготовляются двух типов – с веретеном прямоугольного сечения и с веретеном круглого сечения. Якоря Холла с веретеном круглого сечения имеют меньшую длину веретена и применяются на низкобортных кораблях. Недостатки якорей Холла: сравнительно небольшая держащая сила, возможность заклиниваться в клюзе при подъеме и вставать к обшивке корпуса враспор.
Рис. 3.3. Якорь Холла:
1 – скоба; 2 – веретено; 3 – лапа; 4 – валик; 5 – штырь; 6 – коробка
Т а б л и ц а 3.2
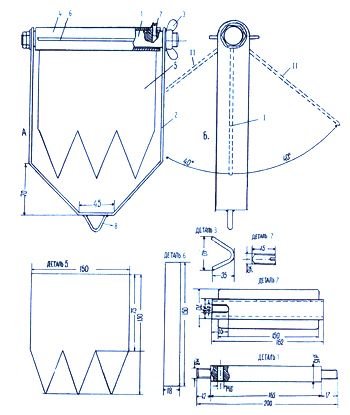
Якорь Матросова (повышенной держащей силы) – основной тип вспомогательного якоря для кораблей ВМФ и станового для небольших кораблей и катеров. Якорь (рис. 3.4) имеет две широкие треугольные лапы, примыкающие непосредственно к веретену, к концу которого присоединяется скоба якоря. Зазор между лапами незначителен, и они представляют собой как бы одну широкую лапу с узкой прорезью для веретена, которое крепится к лапам с помощью оси и штырей лапы.
По бокам якоря сделаны приливы, которые выполняют роль штока, предохраняя якорь от опрокидывания. Якоря Матросова изготовляются трех типов: литые (рис. 3.4) – от 25 до 1500 кг, сварные (рис. 3.5) – от 5 до 200 кг и катерные сварные (рис. 3.6) – от 10 до 100 кг.
Рис. 3.4. Якорь Матросова (литой):
1-скоба; 2 – веретено; 3- лапа; 4-прилив; 5 – ось; 6 – штырь
Рис. 3.5. Якорь Матросова (сварной):
Как рассчитать якорь. Как выбрать якорь для лодки, разновидности, обзор
автора Кашкаров Андрей ПетровичТипы мотивации Самомотивация делится на два типа – мотивация «К» и мотивация «От». Первый тип («К») – это мотивация на что-то хорошее: буду больше зарабатывать и куплю себе новую машину.Кажется, все просто, но беда в том, что положительной мотивацией умеют
Из книги автора4.3.3. Типы мошенничества В соответствии с общепринятой классификацией существуют следующие типы мошенничества:1) использование неполученных карт;2) использование поддельных карт;3) проведение транзакций с использованием реквизитов карт;4) использование украденных или
Из книги автора Из книги автора1.
1. Типы сигнализаций
Рынок электронного оборудования охранно-пожарной сигнализации предлагает широкий выбор устройств, позволяющих построить систему и осуществить монтаж сигнализации загородного дома или квартиры любого уровня сложностиПо типу оповещения системы
Почти в каждом портовом городе в качестве достопримечательности стоит на вечном приколе внушительный якорь. Эти черные гиганты излучают спокойную мощь, с которой торговые и военные корабли бороздили морские дали. Самый большой якорь в мире отлит по специальному заказу и весит 40 тонн. Узнайте все о тяжелых и сильных якорях, взгляните на фото этих скрытных тружеников моря.
Рекордсмен в тяжелом весе
Чтобы построить переправу через пролив или морскую буровую вышку, требуется плавучий кран, способный перемещать мостовые пролеты. Судно, на котором расположен плавучий кран, должно стоять на месте как влитое, иначе невозможно обеспечить точность перегрузочных работ. Задача удержать его на месте возложена на гигантские якоря.
В 1991 году голландская компания Ballast Nedam специально для строительства моста Большой Бельт в Дании заказала циклопический плавучий кран Svanen, инженерные особенности которого позволяют ему поднимать и перемещать грузы свыше 8 миллионов тонн. Сколько весит якорь подобного сооружения? Столько же, как современный танк или кит-горбач – 40 тонн.
Как выглядят якоря плавучего крана
Это непривычные по иллюстрациям в книгах о пиратах конструкции из веретена и плоских лап на раскидистых рогах. Якоря плавучих кранов, особенно тех, которые монтируют пролеты мостов, выглядят как полусферы, способные присосаться к грунту с помощью шлангов для удаления воды.
Похожие присосы ставит на плавучие краны и другая голландская фирма – Balder. Ее краны обладают меньшей грузоподъемностью – до 3 миллионов тонн, однако работают в условиях сильных течений и волнений.
Память о морском гиганте
Среди диковинных экспонатов во дворе Морского музея Гонконга хранится подобранный у берегов Индии якорь супертанкера Knock Nevis.
Ржавеющий титан весит 36 тонн, имеет длину 10 м и на сегодня является первым в мире в классе конструкций Данфорта с их плоскими лапами в форме ножей. Этот якорь относится к числу становых – необходимых для удержания вне дрейфа судна с выключенными двигателями.
Его размеры связаны с габаритами танкера:
- длина – 458 м;
- ширина – 69 м;
- тормозной путь – 10 км;
- осадка при полной загруженности – 30 м.
Knock Nevis спустили со стапелей в 1976 году, несколько раз перепродали и перестроили: то вибрация владельцев не устраивала, то отсутствие двойного борта, то невозможность пройти Панамским каналом. Последние 6 лет жизни он провел в роли танкера-хранилища, а в 2010 году был пущен на металлолом. Исполинский якорь, державший гиганта на месте, – единственная память об этом выдающемся судне.
На чем держатся авианосцы
В 1982 году в состав надводного американского флота с приличествующим моменту пафосом ввели самый большой за всю историю кораблестроения авианосец.
Не имеющий равных по размерам, численности экипажа и вложенным средствам, Carl Vinson владеет и соответствующими становыми якорями весом в 30 тонн каждый.
У них нет штоков, зато поворотные лапы надежно зарываются в грунт и плотно убираются в клюзы при подъеме. Инженер Фредерик Болдт, придумавший такое решение в далеком 1898 году, не мог и предположить, что им будут пользоваться плавучие авиабазы 21-го века. Американские авианосцы Saratoga и Forrestal, французский нефтеналивной танкер Batillus – суда, чьи якоря конструкции Болдта весят от 27 до 30 тонн.
Чемпионы российского флота
В Николаевске-на-Амуре всеобщему обозрению доступен старинный Царь-якорь кованого железа весом 6,1 тонны. Длина его от рыма до пятки составляет 4,8 м.
А в 2012 году при реконструкции судостроительного завода во Владивостоке обнаружили шеститонную махину из тех, что устанавливали на броненосцы времен русско-японской войны. Его длина – 6 м, а размах лап – 4 м.
Флиппер-дельта – соперник Болдта
Голландский изобретатель Петер Кларен в 1975 году предложил усилить якорь тремя треугольными плоскостями, которые придали конструкции вид дельтаплана.
Идея оказалась удачной, и компания, производившая новинку, в первый же год продала изделий общим весом в 0,5 миллиона тонн. Флиппер-дельта массой в 27,2 тонны по сей день держит плавучие краны, а моделями поменьше снабжают морские спасательные буксиры.
Мертвые якоря – нет равных в силе
При разработке нефтяных скважин в Мексиканском заливе инженеры столкнулись с проблемой илистых грунтов: якоря в них не держали понтоны. В 50-х годах прошлого века были предложены сразу три новых решения, объединенные названием «мертвые якоря». Они небольшие, в пределах тонны веса, но способны удержать бурильный снаряд.
Мертвые якоря: с усиленной лапой (слева) и воздушный змей (справа)
Особенно сильна модель под названием «воздушный змей». Он погружается в ил на глубину 10-15 м. Правда, вытащить его оттуда невозможно. Учитывая небольшую стоимость, его просто оставляют в грунте.
Как удержать одновременно 4 судна
В 1848 году в голову английского инженера Митчелла пришла гениальная мысль: он придумал якорь, который с помощью рычага ввинчивают в донный грунт.
Руководствуясь этой идеей, управление порта Ньюкасл построило на рейде ряд швартовых бочек, каждая из которых держалась на одном якоре-винте и принимала по 4 судна.
Ближайший шторм разметал корабли в других портах, а в Ньюкасле капитаны нашли суда там, где их оставили. На винтовые якоря и сейчас ставят плавучие портовые сооружения, например, маяки.
Новый принцип действия
Расчеты показывают, что при ураганном ветре даже якорь весом в 90-100 тонн не удержит нефтеналивной танкер длиной в 400 м. А если под килем окажутся кораллы, лапы якоря и вовсе будут беспомощно скользить по ним. Решение предложили американские военные инженеры. Их реактивный якорь весит 6,8 тонны, но при этом обладает такой удерживающей силой, будто весит 19 тонн. Он снабжен ракетой, которая взрывается при ударе о грунт и заглубляет якорь на 8-10 м. Чтобы танкер возобновил движение, якорную цепь размыкают, потому что выдернуть реактивную модель из грунта нереально.
Непревзойденный по площади
Возле берега несложно закрепиться на месте, а что делать, если небольшое судно застигнуто непогодой в открытом море? Главная задача капитана – держать плавсредство носом к волне, и помощник для этого – плавучий якорь, который бросают с носа.
Это конус из парусины с металлической крестовиной в основании. Сооружение похоже на вытянутый в длину парашют, зонт или трал для донной рыбалки. Диаметр входного отверстия конуса – половина ширины судна. Выходное отверстие – 10 см, за счет чего создается приличная сила сопротивления.
Для увеличения силы плавучих якорей снизу к ним подвешивают балласт, а сверху прикрепляют буек. Вместе балласт и буек удерживают якорь на нужной глубине.
История якорей начинается с тех времен, когда впервые к лиане привязали тяжелый камень и бросили на дно. С тех пор эти приспособления становились все удобнее и тяжелее. Однако на 40 тоннах гигантомания закончилась. Винты, присоски, реактивные устройства приходят на смену привычным разлапистым великанам, украшающим скверы городов корабельной славы.
Якорями мореходы пользуются с древних времен, ведь без них никакое судно не поставишь на стоянку. И специалисты могут рассказать немало увлекательного об истории и принципах действия этих удивительных приспособлений.
Якорь, при всей его внешней незамысловатости, и сегодня остается незаменимым для мореходов устройством. Для его надежной работы важен верный расчет массы и и конструкции. Более-менее солидное судно оснащают якорями, которые весят не меньше тонны, а корабли-гиганты могут «похвастать» и 30-тонными якорями. При этом вес всех якорей, способных удерживать на месте даже огромные круизные лайнеры или плавучие авианосцы, не достигает и тысячной доли веса самого судна!
Как рассказывает старший преподаватель кафедры конструкции и технической эксплуатации судов факультета кораблестроения и океанотехники Санкт-Петербургского государственного морского технического университета (СПбГМТУ) Кирилл Плотников, существует такое понятие — «держащая сила» якорного устройства корабля. Так называют силу, которую необходимо приложить к якорю, веретено (смотрите на картинке ниже) которого расположено горизонтально, чтобы вырвать его из грунта.
И складывается эта держащая сила из двух составляющих:
1) первая создается при взаимодействии с морским грунтом самого якоря,
2) вторая создается участком якорной цепи, который лежит на грунте (для морских судов длина этого участка обычно не менее 25–50 м).
Из каких частей состоит типичный корабельный якорь?
Каждый тип якоря и ведет себя на разных грунтах по-разному. Сравнивая разные модели, обычно просчитывают, во сколько раз держащая сила якоря превышает его собственный вес (так называемый «коэффициент держащей силы»).
Так, первое приспособление, которое использовали мореходы древности в качестве якоря, представляло собой обычный камень, обвязанный веревкой. Неудивительно, что его коэффициент держащей силы сбыл даже меньше единицы, то есть держащая сила не превышала веса самого камня. Позже в нем начали просверливать отверстия, которые вставляли колья — это были первые примитивные якорные рога.
А вот уже древние римляне пользовались почти привычной нам по внешнему виду конструкцией: массивный удлиненный корпус якоря заканчивался двумя надежными заостренными рогами, способными зарываться в грунт на дне. А чтобы якорь повернулся под нужным углом, в верхней части его веретена перпендикулярно рогам крепили еще и шток.
К 1852 году самым популярным во всем мире вот такой изящный на вид «адмиралтейский» якорь
Но процесс совершенствования этих устройств не завершился — ежегодно появлялись всё новые идеи и конструкции.
А так выглядит якорь Холла
Выпирающий шток мешал поднимать и убирать якорь, поэтому в этой модели от него отказались, сделав вместо того лапы якоря поворачивающимися. Якорь Холла цепляется за грунт сразу двумя лапами.
Кладбище старинных якорей в Испании
Изобретатели продолжают совершенствовать конструкцию якорей и в наши дни. При этом, до сих пор сильные ветра и течения делают якорную стоянку невозможной. Оценивать скорость ветра в морской практике принято по специальной 12-балльной шкале, рассказывает Кирилл Плотников. Ее называют шкалой Бофорта: здесь ноль баллов соответствует полному штилю, а 12 баллов — урагану. Большинство судов можно ставить на якорь при ветрах до 6-7 баллов.
Конечно, для современных судов разработаны новейшие системы удержания: например, завязанные на спутниковой навигации системы динамического позиционирования и т.
д. Но полного отказа от использования старых добрых якорей придется ждать еще очень и очень долго!
По материалам:
О том, что якорь – это вещь нужная, полезная и необходимая, по своему опыту или понаслышке знает каждый, кто хотя бы раз выходил, выходит или только собирается выйти на воду. Водномоторники, имеющие маломерное судно, подлежащее обязательной регистрации в ГИМС, и закончившие соответствующие курсы для получения удостоверения, подтверждающего право на его вождение, знают, что якорь включен в список оборудования, которым в обязательном порядке должно быть укомплектовано любое маломерное судно.
Но якорь для ПВХ лодки – это не тот аксессуар, который можно купить только потому, что его владельцу просто понравилось, как он выглядит внешне. Якорь на лодке должен отрабатывать на все 100%, и от него зависит не только просто успешная рыбалка, но и самое главное – безопасность нахождения на воде. А ведь давно известно, что вода ошибок не прощает и подчас может очень сурово наказать того, кто несерьёзно относится к выбору аксессуаров для своей лодки.
Это сейчас в профильных магазинах можно приобрести якоря практически любых форм и видов, но такое разнообразие было не всегда, и даже по сей день на воде можно встретить оригиналов, использующих вместо якоря самые невероятные предметы. Так, автору доводилось лично видеть следующие предметы, используемые на маломерных судах вместо якоря: гриф от штанги, коленвал, тормозные диски, старый электродвигатель. И это не считая живой классики вроде обмотанных верёвкой булыжников и кирпичей, траков от гусеницы трактора и просверленных кусков рельсов. А самым впечатляющим, на мой взгляд, экспонатом в этой безумной коллекции якорей стал затопленный подвесной лодочный мотор «Вихрь-25». Впрочем, как впоследствии честно признался его владелец, сделано это было скорее от безысходности, так как все его попытки заставить хоть как-то работать этот агрегат оканчивались полным фиаско, и после одной из них мотор был безжалостно превращён в «мёртвый» якорь (мертвым называется якорь, который постоянно затоплен в одном месте) и служит для швартовки катера, оборудованного теперь подвесным лодочным мотором импортного производства.
Итак, для чего же на лодке вообще нужен якорь?
Ответ на этот вопрос нужно искать в истории мореплавания. Ещё древние греки хорошо усвоили урок, что судно, потерявшее в бурю парус, становилось неуправляемым и оказывалось лёгкой игрушкой для ветра и волн. Как правило, финал в этой ситуации был весьма предсказуем, и попавшим в шторм финикийским, греческим или римским морякам в ужасе оставалось ждать только одного – когда их трирему разобьёт о прибрежные скалы. В таких случаях сохранялась надежда только на «священный якорь» – самый большой и тяжёлый из всех находящихся на судне, спустив который моряки могли переждать шторм в относительной безопасности. Именно поэтому якоря почитали, якорям молились и наконец – якоря дорого стоили. Следы поклонения якорю можно найти даже в христианстве. Так по-гречески якорь называется «Сотер», что в переводе означает ни больше ни меньше как «спаситель». Более того, вплоть до 300-х годов н. э. на христианских надгробиях можно увидеть изображения якорей.
Сейчас же трудно представить себе современного водномоторника, который бы истово молился своему якорю. Хотя случаи бывают разные, и тут главную роль начинает играть не размер и вес якоря (хотя это тоже очень важные показатели), а его правильный выбор. Ведь главная задача любого якоря была и остаётся неизменной – любой ценой удержать судно на одном месте.
Для маломерных судов есть два основных способа подбора якоря, каждый из которых основывается на параметрах лодки.
1. В качестве точки отсчёта берётся масса, которую может удерживать судно. В этом случае масса якоря зависит от водоизмещения лодки и должна составлять минимум 10% от общей массы. Для примера: судно водоизмещением 250 кг должно быть оснащено якорем, вес которого должен быть не меньше 2.5 кг. Однако этот способ расчёта больше подходит для водоизмещающих судов с жёстким корпусом. Для надувных лодок из-за их специфических характеристик больше подойдёт следующий способ.
2. В качестве отсчёта берётся длина лодки.
И в этом случае применяется следующая формула: масса якоря = 1% общей длины лодки. Таким образом, лодка длиной 300 см должна быть оснащена якорем весом не менее 3 кг.
Но и это утверждение верно лишь отчасти. Дело в том, что удерживающая сила любого якоря зависит не только от его собственного веса, но и от его формы и типа дна, на котором он будет использован. Так, если мы будем использовать якорь на песчаном или илистом дне, то утверждение «метр лодки = килограмм якоря» будет верным, так как лапы якоря войдут в грунт и тем самым надёжно зафиксируют положение лодки (при условии, что у нас будет именно якорь, а не гладкий камень или кирпич, для которого удерживающая сила будет измеряться примерно как один метр длины лодки на 5 кг веса минимум). В то же время если мы бросим тот же самый якорь на каменистое дно, то лодку будет сносить до тех пор, пока он не зацепится своей лапой за какое-либо препятствие.
Таким образом, кроме собственно веса при выборе якоря его будущему владельцу предстоит определиться с другими параметрами и ответить на следующие вопросы:
— На каком типе дна чаще всего будет использоваться якорь? Это может быть ил, песок, камни или что-то другое в зависимости от особенностей региона.
— Наличие или отсутствие течения на водоёме, где предполагается использовать якорь.
— На открытом или закрытом водоёме чаще всего нужно будет вставать на якорь? Это важно для того, чтобы учесть влияние ветра и других погодных условий. В частности, что чаще бывает в местах предполагаемого использования – штиль или это может быть штормовое состояние.
Только ответив на эти вопросы можно приступать к выбору типа якоря, который больше всего подойдёт для тех или иных условий. Ведь нужно отдавать себе отчёт в том, что универсальных решений не бывает и каждый тип якоря, выигрывая в чём-то одном, может проигрывать в ряде других позиций.
Ниже мы рассмотрим наиболее часто встречающиеся в продаже типы якорей и расскажем о специфических особенностях каждого из них.
Якорь «Кошка»
Этот якорь по праву можно считать наиболее универсальным и приспособленным для использования на маломерных судах, так как при правильном применении он отлично держит практически на всех типах поверхности дна, начиная от песчаных и заканчивая каменистыми.
Складная конструкция обеспечивает удобство при транспортировке и хранении и возможность быстрого приведения его в рабочее состояние. Также якоря этого типа могут быть использованы в качестве средства для поиска и подъёма затонувших предметов методом траления.
Уникальная особенность складных якорей типа «кошка» заключается в их способности к самоосвобождению в случае зацепа за любой находящийся на дне предмет, начиная от топляков и заканчивая корпусами затонувших судов и проложенных по дну тросов или кабелей. Но для того чтобы воспользоваться этой полезной возможностью, основной узел крепления якоря необходимо делать не за верхнее, а за нижнее кольцо, находящееся под складными лапами. При этом цепь или трос не пропускаются через кольцо, находящееся на вершине веретена якоря, а просто фиксируются на нём с помощью пластикового хомута, петли из рыболовной лески или любого другого подручного материала. В рабочем положении якорь получается закреплённым за кольцо веретена, но в случае зацепа с помощью резкого рывка крепящая петля разрывается, якорь переворачивается лапами вниз и освобождается от зацепа.![]()
Якорь Холла (Матросова) и его модификации
Якорь Холла и его модификации считаются оптимальными для применения на песчаных и галечных грунтах. Принцип действия этого якоря очень прост: упав на дно, он ложится плашмя и когда привязанный к нему трос натянется и протянет его, нижний прилив лап цепляется за грунт, заставляя лапы повернуться и забрать грунт лопатками. Для лучшего использования этого якоря необходимо крепить его сначала за цепь длиной метр-полтора и только потом за трос или верёвку.
Якорь Холла и его модификации считаются оптимальными для применения на песчаных и галечных грунтах
Эти якоря отлично подходят для оснащения надувных лодок длиной от 3.5 м и маломерных судов с жёстким корпусом. Для того чтобы постановка на якорь этого типа прошла быстрее, отдавать его рекомендуется в то время, пока судно ещё имеет ход, а не стоит на месте.
Грибовидный якорь
Эти якоря обладают очень хорошей держащей силой и изначально использовались для стоянки судов в местах с сильными ветрами и течением.
Но лучше всего грибовидные якоря отрабатывают на песчаном или илистом дне, обладающем достаточной степенью вязкости.
Эти якоря обладают очень хорошей держащей силой
К достоинствам этих якорей можно отнести небольшие размеры и конструкцию, которая практически полностью исключает возможность зацепа за подводные препятствия в виде коряг, топляков и прочих подводных неприятностей, зацеп за которые может привести к потере якоря. В надувной лодке они не занимают много места и удобны тем, что не имеют острых углов, а также легко очищаются от приставшего донного грунта.
— Длина троса или верёвки, за которую крепится якорь, должна быть больше глубины под лодкой минимум в пять раз.
— Чтобы обеспечить лучшее и быстрое сцепление любого типа якоря с донным грунтом, рекомендуется крепить его не к тросу или верёвке, а делать это через кусок металлической цепи в метр-полтора длиной.
— Для того чтобы надёжно встать на якорь при любых условиях, будь то ветер, волнение или течение, на борту лодки лучше всего иметь два якоря, основной и вспомогательный.
Основной якорь должен быть подобран в соответствии с длиной и массой лодки. Вспомогательный якорь может иметь меньшую массу, но не меньше половины от массы основного якоря. В случае возникновения необходимости остановки более тяжёлый основной якорь отдаётся с носа, а вспомогательный – с кормы лодки.
— Если есть необходимость замедлить движение лодки на сильном течении или ветру, а на борту нет якоря или он не может зацепиться за грунт и ему нужно помочь это сделать, то можно воспользоваться так называемым «плавучим якорем». Для его изготовления может подойти любой предмет, обладающий положительной плавучестью и большой площадью. Это может быть кусок брезента, плащ-палатка или даже срубленные с листвой ветки лиственных или хвойных деревьев, которые крепят к борту лодки с помощью верёвок или троса. Полностью это простое и нехитрое приспособление лодку, конечно, не остановит, но тем не менее позволит существенно снизить её скорость.
Якорный отцеп Александра
Разработчикам удалось создать простой, удобный, надёжный и долговечный инструмент, который может использоваться с любым типом якоря.
Закреплённый однажды на якоре, он не требует больше обслуживания, не изменяет привычную технологию использования якоря и срабатывает автоматически только при зацепе. Легко и быстро приводится в исходное положение и готов к повторному использованию. Количество срабатываний не ограничено.
Отцеп Александра выпускается в двух модификациях, и в зависимости от схемы монтажа пороги срабатывания составляют
от 20 до 60 кг, чего с лихвой хватает для
любых маломерных судов с ручным подъёмом якоря.
Отцеп Александра – это наша надёжная защита, которая поможет сберечь не только деньги (что немаловажно), но и время, и нервы. Это залог спокойствия и уверенности на воде.
Якорь является важным и обязательным элементом любой лодки или корабля, не и исключение и надувная лодка ПВХ. Но именно для лодок ПВХ якорная система служит лишь для остановки судна на месте рыбной ловли. Очень важно обеспечить стойкую фиксацию, не зависящую от течения или ветра, чтобы якорь плотно залегал на дне.
Самыми главными требованиями любого якоря являются: удобным в использовании, иметь небольшой размер и легко помещаться в маленьком месте. Такое изделие должно совершенно легко выниматься обратно, иметь как можно меньший вес, чтобы уменьшить нагрузку на лодку и, конечно же, должен иметь высокое сопротивление химической коррозии.
Конструкция якоря
В настоящее время существует около десятка известных и проверенных конструкций якоря:
Самым распространенным является якорь-кошка , который чаще всего устанавливается на лодках ПВХ. Данная модель якоря весит от 2 до 10 килограмм. Чаще всего для малогабаритных лодок обычно создают складные якоря. Преимуществами данного якоря являются небольшой вес, компактность, малые габариты. Существуем два вида якорей-кошек, отличающихся способом фиксации лап.
В первом случае лапы выпрямляются прямо с помощью специальной поворотной муфты, во втором случае механизм фиксации лап схож с зонтом, то есть лапы выдвигаются от центра.
Большим недостатком данного якоря является низкое сцепление с илистым или каменистым дном.
Вторым по популярности является якорь Денфорта , напоминающий плуг. Данную модель нельзя очень легкой и малогабаритной, но зато она имеет большую силу сцепления с грунтом и камнем. С помощью своих плоских лопаточек якорь буквально закапывает себя в дно на довольно внушаемую глубину, затем встречает плотный грунт и останавливается вместе с лодкой. Якорь Денфорта, имеющий массу примерно 2 кг, может выдержать лодку с массой до 80 кг. Явным преимуществом данного якоря является легкость в снятии подводного зацепа.
Также весьма известным является речной грибовидный якорь , который своей формой напоминает гриб. Весит такая модель примерно 3-10 кг. Отлично ведет себя на каменистом дне, имеет небольшие размеры и весьма компактен.
Еще одним видом якорей является якорь Брюса , который имеет форму огромного крюка, на конце которого в разные стороны торчат две лопатки.
При забрасывании зарывается с помощью лопаток в грунт и фиксирует судно.
Существует также вильчатый якорь , который своей формой напоминает двойную вилку, между двумя концами которой располагается лапка. Таким образом, при забрасывании лапа зарывается в грунт и фиксируется в нем, а вилка дает еще большее сцепление. Недостатком является то, что устройство достаточно сложно вытащить обратно.
На лодках ПВХ часто редко, но применяется якорь Нортилла , имеющий форму звезды с четырьмя концами, на двух концах звезды, находящихся параллельно установлены лапки, с помощью которых якорь зарывается в грунт, а две дополнительные балки, торчащие в разные стороны, только усиливают сцепление. Минусы данной модели – это большой вес и габариты, высокая цена, сложно вытащить наружу.
Адмиралтейский якорь обычно применяется на больших кораблях , но бывают и случаи использования на лодках ПВХ. Он включает в себя веретено, транц, два рога, шток, скобу и рым.
Самый главный плюс такого якоря – это универсальность. Его можно использовать на водоемах, имеющих абсолютно любой вид дна. Также он отличается большим коэффициентом удерживающей силы, а также весьма простой конструкцией. Основными недостатками такого вида якоря являются: большие размеры и вес, высокая цена, сложность в эксплуатации.
Также существует еще одна разновидность якорей – якорь Портера , который очень похож на адмиралтейский, отличающийся лишь в способе крепления лап, которые крепятся перпендикулярно к штоку с помощью болтовых соединений. Благодаря этому, якорь может совершать колебания из стороны в сторону. Важным преимуществом данной модели является то, что при погружении в воду, одна лапа цепляется за грунт, а вторая за веретено, поэтому обеспечивается большая удерживающая сила, а вероятность, что якорный трос зацепится за торчащую лапу практически минимальна.
Основные критерии при выборе якоря
- Самое главное требование является главным назначением якоря , то есть якорь должен обеспечивать надежную и качественную фиксацию на водной местности, сопротивляясь течению и ветру.

- Коэффициент удерживающей силы , который обычно рассчитывается по специальным математическим формулам, обычно указывается на каждом якоре в магазине.
- Масса должна быть не слишком большой , но и не слишком маленькой, оптимальным вариантом будет якорь массой 7-9 кг.
- Весьма важным критерием при выборе является тип грунта , так как каждый якорь по-разному ведет себя на разном грунте.
- Также очень важным требованием являются погодные условия , смотря в каком месте будет проводиться рыбалка, где постоянный ветер или штиль.
- Очень важно выбирать якорь, который будет защищен от химической коррозии. Самым популярным и качественным методом защиты является оцинковывание.
За 7 лет активного увлечения рыбалкой мною найдены десятки способов улучшить клев. Приведу самые эффективные:
- Активатор клева . Эта феромоновая добавка сильнее всех приманивает рыбу в холодной и теплой воде.
. - Повышение чувствительности снасти. Читайте соответствующие руководства по конкретному типу снасти.
- Приманки на основе феромонов .
Как создать якорь самостоятельно
Если же денежных средств на покупку готового якоря нет, или нет доверия к производителям, то качественный и надежный якорь для лодок ПВХ можно сконструировать дома самостоятельно, имея надлежащий опыт и знания. Рассмотрим создание якоря на примере сварного Курбатовского якоря.
Для того, чтобы сделать такой якорь, необходимо иметь:
- Металлический прут, длиной 2 см;
- Сталь в форме листа толщиной 2-3 мм;
- Металлическая проволока диаметром не меньше 6 мм;
Вес такого изделия будет равен примерно 3 кг. Пошаговая инструкция:
Чтобы определить точную длину троса для якоря, необходимо знать точную глубина водоема, где вы собираетесь провести рыбалку
Во-первых, проволоку необходимо изогнуть так, чтобы получилось веретено , а в верхней его части приварить планку.
Такой якорь сможет оставить лодку на любом дне, является отличным вариантом для лодки длиной в 4 метра.
Также помимо сложной конструкции можно изготовить якорь, не прибегая к сварке, просто вылив раскаленный металл в необходимую форму.
Для такого способа понадобится примерно 5-6 кг свинца:
- Сначала нужно расплавить металл , плавить желательно в огнеупорном глиняном тигле.
- Приготовить необходимую форму для заливки , форму можно подобрать самостоятельно.
- Вылить расплавившийся металл в форму.
- Просверлить дырку для веревки.
- Деформировать заготовку так, чтобы имелся крюк или лапка, желательно сделать три таких лапки , свинец является довольно мягким металлом и хорошо поддается пластической деформации.
Или же сделать заготовку в форме грибовидного якоря.
Таким образом, для создания якоря подобного типа не нужно иметь большие познания в конструировании. Достаточно лишь иметь немного фантазии.
Также можно самостоятельно изготовить складной якорь-кошку, так что, лапы конструкции будут крепиться снизу на шарнирах, а изменение состояния работоспособности лап будет меняться с помощью специальной кольцевой муфты.
При создании самостоятельно, конструкция якорей получается гораздо надежнее, так как вся работа выполняется собственноручно, конечно же, денежные затраты гораздо меньше.
Помимо сложной конструкции можно изготовить якорь, не прибегая к сварке, просто вылив раскаленный металл в необходимую форму
Правильное крепление
Необходимо, чтобы лодка надежно фиксировалась на поверхности воды с помощью якоря, но одного якоря будет недостаточно. Очень важно подобрать надежный и качественный якорный трос, соединяющий якорь с лодкой. На сегодняшний день в магазинах продают огромное количество различных тросов, выполненных либо из синтетических, либо из натуральных материалов.
При одинаковом диаметре синтетические канаты превосходят натуральные за счет высокой стойкости к истиранию, высоких пределов прочности на растяжение и изгиб , также такие виды тросов практически не подвергаются гниению. Самыми главными критериями при выборе троса являются прочность на растяжение и разрыв, толщина и вес.
Весьма качественный трос обязан иметь значение прочности на разрыв, превышающее массу самого якоря в восемьдесят раз. Чтобы определить точную длину троса, необходимо знать точную глубина водоема, где вы собираетесь провести рыбалку, причем длина каната должна быть больше примерно в шесть раз, потому что чем длиннее трос, тем лучше и надежнее фиксация якоря.
Возможно использования цепи вместо якоря, но так она значительно увеличит вес лодки, но она имеет более высокие показатели прочности и надежности.
- Перед рыбалкой необходимо узнать, какое дно имеет водоем, чтобы полностью определиться с выбором якоря;
- Необходимо знать глубину водоема для правильной покупки троса;
- Надежнее конструировать якорь самому, но если нет такой возможности, то опираться на отзывы предыдущих покупателей;
- Нужно отнестись к покупке якоря очень серьезно;
- Очень важно не утопить драгоценный якорь, использовать только самые надежные виды узлов.

- При сильном течении целесообразно будет применение двух якорей, для лучшей фиксации.
- Также якорь можно усилить цепью для лучшей фиксации и сцепления с грунтом.
- Также необходимо правильно закидывать якорь в воду под правильным углом.
Материалы для судовых якорей и якорных цепей
Специфической разновидностью ответственных отливок и поковок являются якоря и якорные цепи. Во время стоянки судна якорное устройство должно противостоять повышенным статическим и динамическим нагрузкам, вызывающим растяжение и изгиб его элементов. Тем не менее якоря делают из малоуглеродистых сталей, что объясняется простой и дешевой технологией изготовления. Прочность якоря обеспечивается качеством материала, а также увеличением размеров в опасных сечениях. Основным мотивом применения сравнительно малопрочной стали для якорей является нежелание создания аварийной ситуации для судна: при шквальном порыве ветра или другой кратковременной предельной нагрузке предпочтительно, потеряв якорь, спасти само судно.
В истории современного мореплавания не единичны случаи гибели судов из-за чрезмерной прочности якоря или якорной цепи.
Якоря выполняют коваными (адмиралтейские) или составными из литых и кованых частей (якоря Холла и Матросова).
Соединения осуществляются механическим путем с помощью оси и 7 штыря, как показано на рис. 7.2, или горновой кузнечной сваркой.
Рис. 7.2. Якорь Холла 1 — якорная скоба; 2 — веретено; 3 — лапа; 4 — ось; 5 — штырь; 6 — марки
Марки стали якорей регламентированы ГОСТ 766—74Е (якоря Холла и адмиралтейские), ГОСТ 8497—78Е (якоря Матросова). Их количество исходя из вышеприведенных соображений весьма невелико и приведено в табл. 7.2.
| Деталь якоря | Способ наготовления | Якорь Холла | Адмиралтейский якорь | Якорь Матросова | Однолапый якорь |
| Веретено | Ковка | ВСтЗсп2 | — | — | — |
| Литье | 25Л | — | 25Л | — | |
| Штамповка | — | — | 20 | — | |
| Якорь (веретено с лапами) | Литье | — | 25Л | — | 25Л |
| Ковка | — | ВСтЗсп2 | — | — | |
| Лапа | Литье | 25Л | — | 25Л | — |
| Ковка | — | — | ВСтЗсп2 | — | |
| Ось лапы (веретена) | Ковка | 35; 45 | — | — | — |
| Шток | Ковка | — | ВСтЗсп2; 20 | — | ВСтЗсп2 |
| Штырь лапы | Ковка | ВСт4сп; 20 | — | ||
| Скоба | Ковка, штамповка | — | ВСтЗсп2; 20 | — | ВСтЗсп2 |
Свойства литых деталей якорей Холла и Матросова проверяют в соответствии с требованиями к группе сложности IV отраслевого стандарта.
Поковки для якорей контролируют в соответствии с категориями прочности КП20—КП28 в объеме, установленном для деталей группы IV. Литые детали и якоря в сборе испытывают также бросанием плашмя с высоты 2,5—4,5 м (в зависимости от массы) на стальную плиту толщиной 100 мм, а также растяжением на цепопробном стане. Каждый якорь и шток подлежат наружному осмотру, взвешиванию и проверке габаритных размеров.
Испытание растяжением на цепопробном стане производят по схеме рис. 7.3 приложением усилия, зависящего от веса якоря и определяемого по формуле Р = к √G, где G>75 кг — вес якоря, k=19÷26 — безразмерный коэффициент.
Рис. 7.3. Схема растяжения якоря на цепопробном стане
Якорные цепи выполняют из отдельных частей — смычек длиной 25—27,5 м. Каждая смычка состоит из звеньев с распорками (рис. 7.4, а) и без них (рис. 7.4,6). Для соединения с якорем служит концевая скоба (рис. 7.4,в), а для того чтобы цепь не перекручивалась, в нее введены вертлюги (рис. 7.4,г). Изготовляют цепи кузнечно-горновой сваркой, электросваркой, литьем и горячей штамповкой из углеродистой (в основном ВСт3) и легированной (в основном 30ГСЛ) сталей.
Технологические процессы ковки, штамповки в экономическом плане и по возможности механизации уступают литью. Прочность сварных цепей уступает прочности цепей из литого металла: считается, что прочность сварного звена приблизительно равна 0,8 прочности звена литого. Поэтому предпочтительным и чаще применяемым способом является отливка звеньев цепи.
Рис. 7.4. Звенья якорной цепи: а — с распоркой; б — без распорки; в — концевая скоба; г — вертлюг d — калибр цепи
Облегченные конструкции. Книга о якорях
Облегченные конструкции
Представьте, что вы приобрели моторную лодку или катер и вам нужен якорь весом 5-20 кг. Если вы попытаетесь снабдить свое судно сделанным по чертежам Холла якорем соответствующего веса, то скоро убедитесь, что толку от такого якоря будет немного. Здесь гораздо лучше подойдет якорь-кошка или маленький адмиралтейский якорь, что применяют на шлюпках, — так называемый дрек. Оказывается, якоря типа Холла обычно не используются в весовых категориях ниже 50 кг.
Холловский якорь весом даже 200 кг держит относительно своего веса намного хуже, чем такой же якорь весом 2 т. Здесь сказывается масштабный эффект.
Рис. 143. «Клип-анкер»
Корабелы Западной Европы, проектируя буксиры, небольшие транспортные и промысловые суда, избегают применять якорь Холла, когда нужен якорь весом менее полутонны. В этих случаях они отдают предпочтение так называемому «клип-анкеру» (рис. 143) — якорю облегченной конструкции, предложенному еще в начале нашего века английским инженером Гриффином.
В настоящее время за рубежом применяется не менее десятка вариантов «клип-анкеров» весом 50-100 кг. Они с успехом используются и на речных судах. Почти все самоходные баржи ФРГ, Голландии, Бельгии и Франции снабжены «клип-анкерами».
Правильный выбор того или иного типа якоря для проектируемого судна небольшого тоннажа — очень важный вопрос. Нередко проектировщик, выполняя в своих расчетах все нормативы Регистра, оказывается не в состоянии сделать якорное устройство судна достаточно легким.
И не всякому корабелу приходит на ум отказаться от традиционного и, по мнению многих, универсального якоря Холла и принять более новую конструкцию якоря повышенной держащей силы, что иногда позволяет уменьшить вес якоря вдвое.
Когда у нас проектировали судно на подводных крыльях «Спутник», подсчитали, что суммарный вес eго двух традиционных становых якорей составляет 630 кг. В результате замены типа якоря удалось обойтись всего одним якорем повышенной держащей силы весом 125 кг, а вместо 200 м якорной цени калибром 20 мм и весом 1760 кг применяли стальной трос длиной 125 м, диаметром 14 мм и весом всего 85 кг. Этого, как показала практика, оказалось вполне достаточно [30, 36].
Рис. 144. Эти якоря выпускаются в малых весовых категориях
За рубежом большие спортивные суда, крейсерские яхты и прогулочные катера с ручным якорным устройством снабжаются якорями Нортхилла, Дэнфорта, Бекера и «CQR». На судах с механическим якорным устройством находят применение якоря облегченной конструкции, изображенные на рис.
144.
Рис. 145. Якорь «Антей» Малиновского
Заслуживает внимания конструкция якоря «Антей» для спортивно-туристских судов водоизмещением от 1 до 5 т, разработанная в 1970 г. мастером спорта СССР Г. Малиновским (рис. 145).
Якорь состоит из двух основных частей: веретена и лап, составляющих одно целое. Отливки для якоря весьма просты и не требуют для обработки квалифицированной рабочей силы. Практически якорь можно собрать сразу же после зачистки облоя с отлитых деталей.
Конструкция якоря Малиновского предусматривает его использование на грунте, загрязненном корчами и топляками, без опасения оставить его на дне. Если якорь заберет «намертво» и при попытке вытащить его на судно буйреп оборвется, то следует, изменив направление тяги якорного каната, резко за него дернуть. При этом шпильки, являющиеся ограничителями угла отгиба лап, срежутся и веретено откинется на 150° по отношению к плоскости лап. После этого якорь легко вытащить. Срезное усилие шпилек, которые в корпусе лап держатся на резьбе, определяется их диаметром.
К якорю прилагается комплект шпилек различного диаметра. Эксплуатация опытной партии якорей Малиновского весом 14 кг за время двух спортивных сезонов показала их полную практическую пригодность.
Рис. 146. Якорь-гриб весом 7 фунтов
Как правило, на самых малых судах, скажем, байдарках и различных весельных лодках, якорей нет. А если в них и возникает необходимость, владельцы обычно поступают, как их далекие предки, — привязывают к веревке камень. Но тем не менее за последние годы, с возросшими эстетическими требованиями владельцев «москитного флота», на свет появилось множество конструкций оригинальных якорей для самых малых судов. На надувных резиновых судах, где опасно пользоваться кошкой, применяют небольшие грибовидные якоря (рис. 146). Минимальный вес такого миниатюрного «гриба» — семь фунтов. Отверстия в его шапке способствуют засасыванию якоря в жидкий ил.
Рис. 147. Якорь-зонт
Для использования на плотном песчаном грунте можно применить другой грибовидный якорь (рис.
147). Вообще ему больше подходит название якорь-зонт. Он легок и отлично держит.
Рис. 148. Якорь-колокол
У нас в стране также появилась конструкция одного из вариантов грибовидного якоря (рис. 148). Ее предложил в 1965 году советский изобретатель Е. Левин. Этот якорь можно назвать якорем-колоколом. Он прост в изготовлении и пригоден для твердых грунтов.
Рис. 149. Якорь-обруч
Необычен по принципу действия якорь-обруч, изображенный на рис. 149. Его запатентовал в 1947 году американец Томпсон. Конструкция предельно проста. Стальной прут изогнут в виде восьмерки и сварен в стыке. Это как бы веретено и одновременно шток якоря. По диаметру большого кольца укреплен стальной стержень, к которому приварена согнутая под углом примерно 45° стальная полоса. Это лапы якоря. Трос крепится к малому кольцу «восьмерки». Обруч может упасть на любую из двух сторон. При протаскивании под действием натяжения троса нижняя лапа зарывается в грунт, а верхняя, упираясь в край обруча, ограничивает ее разворот.
Такой якорь прост в изготовлении. Он неплохо держит, и его можно использовать дли зачаливания за врытый на берегу кол.
Рис. 150. «Плоский якорь»
Оригинален так называемый «плоский якорь», рассчитанный на использование на песке и иле (рис. 150). Одно время он применялся на английских гидросамолётах.
Рис. 151. Веретено «куриная кость»
Среди конcтpукцйй облегченных якорей особое место занимают якоря с одной поворотной лапой. Сейчас уже трудно утверждать, кто первый предложил эту идею. Англичане говорят, что однолапый якорь изобрел некий Пайпер, когда ел курицу. В Англии, как и в других странах, до сих пор бытует поверье о так называемой «кости исполнения желания» — небольшой куриной косточке, имеющей V-образную форму. Именно эта кость якобы и натолкнула англичанина Пайпера на мысль о V-образном веретене якоря. Известно, что в 1821 году Пайперу выдали патент на якорь с раздвоенным веретеном и одной рабочей лапой. Сейчас никто не помнит, каково было устройство поворотной лапы этого якоря, но спустя 150 лет он был вновь запатентован в США неким Hypсом (pиc.
151).
Рис. 152. Якорь Пономарева
Заслуживает внимания однолапый якорь советского инженера В. Пономарева, изобретенный в 1953 году (рис. 152). Он состоит из рамы в форме равнобедренного треугольника, основанием которого является ось лапы. Для стабильности якоря на грунте лапа якоря имеет боковые рога с фланцами. Для обеспечения втягивания рамы в клюз центр тяжести лапы расположен ниже оси ее вращения.
Рис. 153. Однолапый якорь Тайзака
Кроме того, весьма распространена вполне оправдавшая себя конструкция, изображенная на рис. 153. Это однолапый якорь Тайзака — автора многих оригинальных решений в области судовых устройств.
На принципе «куриной кости» было разработано немало оправдавших себя кострукций однолапых якорей.
Так, например, в 1935 году советский инженер В.Мацюк разработал конструкцию якоря облегченного типа. Веретено якоря было сделано в виде рамы, несущей на одной стороне широкую лапу, имеющую с каждой стороны по два ребра жесткости.
Конструкция рамы и лапы сварная из стали. При небольшом весе якорь имеет значительную держащую силу. Он был задуман изобретателем для использования гидросамолетами и глиссерами в районах с мягким грунтом. Спустя год после появления якоря Мацюка за рубежом появилось несколько аналогичных конструкций.
Якорные вертлюги: требуется осторожность — моряк-практик
Фотографии Джонатана Нивза
Прогуляйтесь по докам на любом бот-шоу, и вы увидите удивительное количество лодок, оснащенных дорогими вертлюгами из нержавеющей стали между якорем и цепью. . Почти все эти вертлюги представляют собой тщательно отполированные, обработанные и/или сваренные драгоценные камни, которые стоят от 80 до 200 долларов и более. Для сравнения, оцинкованная якорная скоба, рассчитанная на то, чтобы выдерживать те же или более высокие нагрузки, что и цепь, на которую мы полагаемся, стоит менее 15 долларов.
(См. PS , август 2015 г., онлайн.)
Рост популярности анкерных вертлюгов обусловлен рядом факторов. Сторонники вертлюга говорят, что он уменьшает степень скручивания цепи, так что брашпилю легче отслаивать цепь вниз по цепной трубе и в замок цепи без заклинивания. Цепь без перекручивания также легче выпадает из шкафчика при развертывании.
Более широко рекламируемое преимущество — это способность вертлюгов утягивать анкер в анкерный ролик.Вертлюг помогает анкеру поворачиваться в правильную ориентацию, чтобы он мог самостоятельно складываться.
В большинстве случаев эти проблемы сводятся к обычным неудобствам. Обычно их можно преодолеть без использования анкерного вертлюга и без особых затрат и усилий. (См. Chain Jams and other Windlass Woes, Inside Practical Sailor, 20 мая 2014 г.) говорили с-остаются при своем мнении.
Как правило, вертлюги действительно необходимы только тогда, когда якоря вращаются (гидровращаются) в воде при развертывании и извлечении, сказал Нед Вуд из Manson Anchors.
Доказательством этого будет, когда вы услышите, как на цыганке скачет цепь.
Одной из наших забот является материал. На наш взгляд, следует избегать использования нержавеющей стали для любых несущих компонентов анкерной штанги. (Подробнее о нашей неприязни к нержавеющей стали см. в нашем специальном отчете Marine Metal Warning PS , февраль 2007 г.).
В ходе исследования данной темы мы разыскали несколько примеров сломанных вертлюгов, как нержавеющих, так и оцинкованных. Хотя у нас нет данных, показывающих, насколько широко распространен отказ вертлюга, суть в том, что добавление анкерного вертлюга добавляет потенциальную точку отказа, чего мы хотим избежать в анкерном стержне.
Чтобы лучше понять, как они могут выйти из строя, мы провели простые тесты на нескольких образцах вертлюгов, чтобы выявить различные виды отказов. Мы также использовали несколько вертлюгов в полевых условиях, надеясь выяснить, насколько хорошо они работают и стоят ли какие-либо преимущества затраченных средств.
Типы вертлюгов
Существует несколько типов анкерных вертлюгов: коробчатые вертлюги, чашечные вертлюги, шарнирные вертлюги и универсальные вертлюги. Чтобы еще больше запутать вещи, коробчатые вертлюги также иногда называют бочкообразными вертлюгами. В коробчатых вертлюгах вращающиеся части в значительной степени скрыты от глаз. Чашечные вертлюги, также известные как открытые вертлюги, потому что вы можете видеть почти все рабочие части, легче осматриваются.
Коробчатые вертлюги имеют общую конструкцию. На каждом конце есть вилка с двумя зубцами, а также штифт с головкой (часто с резьбой), который закрывает вилки.По сути, каждый конец представляет собой кандалы. Одна вилка немного уже, чтобы соответствовать цепи. Более широкая вилка часто крепится непосредственно к якорю.
Вращающийся вертлюг в коробчатом вертлюге представляет собой простой стержень, который соединяет две вилки таким образом, что каждый конец может независимо вращаться. AnchorLift, Imtra, West Marine и Seadog предлагают вертлюги этого типа.
Чашечные вертлюги обычно используются для швартовки (предпочтительно над водой для облегчения осмотра), а иногда и в якорных стержнях. Обычно они изготавливаются из оцинкованной стали, но мы также видели вертлюги из нержавеющей стали.Чашечные вертлюги относительно большие и выглядят более утилитарно, чем коробчатые вертлюги. Большое количество безымянных поворотных чашек (нержавеющих и оцинкованных) производится на заводах в Китае. Тем не менее, вы можете найти вертлюги с оцинкованной чашкой, рассчитанные на нагрузку, от известных американских производителей, таких как Peerless, Campbell, Crosby и Chicago Hardware.
Шарнирный вертлюг представляет собой нечто среднее между чашечным и коробчатым вертлюгом; рабочие части видны, но часть внутреннего гнезда скрыта. Шарнирные вертлюги, заслужившие хорошую репутацию среди яхтсменов, включают в себя Wasi Powerball и Ultra Flip Swivel, дорогие вертлюги, которые с самого начала разрабатывались для устранения слабых мест, присущих другим конструкциям.
Помимо добровольного отзыва вертлюгов в 2010 году компанией Ultra-importer Quickline (см. блог Inside Practical Sailor, 15 декабря 2010 г.), нам не было известно о том, что какой-либо из этих брендов подвержен конкретным проблемам. Однако из-за относительно небольшого количества этих вертлюгов в полевых условиях трудно сделать какие-либо однозначные выводы относительно их надежности. Тем не менее, разумно держаться подальше от вертлюгов из нержавеющей стали без рейтинга, которые продаются по выгодным ценам.
Универсальный вертлюг представляет собой разновидность коробчатого вертлюга.
Поворотный механизм не только вращается, он имеет дополнительное, но отдельное сочленение (шарнир). Шарнир немного уменьшает дополнительную нагрузку на вилки при непосредственном соединении с анкерным стержнем, но шарнир является еще одним потенциальным слабым местом. Suncor является одним из известных брендов универсальных вертлюгов.
Поворотные стили можно описать как глаз и глаз, глаз и челюсть или челюсть и челюсть.
Когда поворотный стержень соединяет два раздвоенных конца, каждый из которых закрыт штифтом со шпилькой или секс-болтом, он называется челюстно-челюстным вертлюгом.Вертлюг с одним раздвоенным концом со штифтом и одним концом, представляющим собой металлическое кольцо (или проушину), называется вертлюгом с проушиной; один с двумя проушинами, соединенными поворотным стержнем, правильно называется шарнирным соединением «глаз-и-проушина». Большинство производителей предлагают вертлюги во всех трех конфигурациях.
Некоторые производители не советуют прикреплять вертлюги непосредственно к анкеру, вместо этого рекомендуют использовать скобу и даже короткий поводок цепи, чтобы предотвратить боковую нагрузку на вилки. Некоторые вертлюги намного слабее при боковых нагрузках, что увеличивает вероятность того, что вилки могут быть открыты, что в конечном итоге приведет к выходу из строя вилки или штифта.
Нас бы тоже беспокоили старые вертлюги, даже от известных производителей. Некоторые старые конструкции имели более тонкие вилки, которые были недостаточно прочными, чтобы выдерживать боковую нагрузку, которая может возникнуть, когда вертлюг больше не соответствует нагрузке.
Боковая нагрузка чаще встречается у более новых, глубоко посаженных анкеров, которые требуют гораздо более высоких нагрузок для сброса при изменении ветра.
Режимы сбоя
Причина сбоя в полевых условиях часто остается загадкой, поскольку все или большая часть улик никогда не восстанавливается.Основываясь на наших исследованиях, ограниченном тестировании и полученных нами образцах, наиболее типичными неисправностями являются следующие.
Изогнутая вилка
Изгиб вилки очень распространен. Многие вертлюги, которые мы видим, прикреплены непосредственно к анкеру с помощью шплинта, закрепленного непосредственно на стержне анкера. Современные анкеры способны выдерживать очень высокие нагрузки и не так легко вращаются при изменении направления нагрузки. Вертлюг довольно длинный, так что вилка действует как рычаг, усиливая любую боковую нагрузку.Когда угол тяги приходится на одну сторону якоря, что-то должно уступить. Обычно это поворотный кулак.
Одним из способов предотвращения изгиба вилки является установка скобы или скобы и нескольких звеньев цепи между вилкой и хвостовиком.
На самом деле, Конг настоятельно рекомендует изолировать вертлюг с помощью скобы и длинной цепи таким образом, но мало кто из владельцев следует этому совету.
Поскольку нержавеющая сталь не является очень пластичным сплавом, компонент, демонстрирующий признаки изгиба, может быть значительно ослаблен и должен быть заменен.
Отказ штифта
Наиболее типичный отказ происходит на штифте с головкой на конце, прикрепленном к анкеру. Отказу часто предшествует боковая нагрузка вил. Боковая нагрузка вызывает изгиб одной или обеих вилок, а это, в свою очередь, срезает головку штифта со шплинтом или приводит к разрыву резьбовых компонентов.
Внимательное изучение конструкции недорогого коробчатого вертлюга показывает, как возникают эти отказы. На самом деле штифт с головкой под шплинт представляет собой не цельный, высокопрочный штифт, а механически обработанный секс-болт, состоящий из двух частей с резьбой, одной наружной и одной внутренней.Продольный центр охватывающей части просверлен и нарезан резьбой для установки соответствующего болта с наружной резьбой, и этот узел помогает зафиксировать штифт с плоской головкой на месте.
Очевидно, что отверстие в центре охватывающего компонента снижает его прочность. Головка охватываемого компонента часто приваривается, и сварка может быть слабой.
В некоторых вертлюгах, которые мы исследовали, выход из строя происходил, когда вилки начинали изгибаться, а повышенное усилие на узле болта вырывало охватываемый болт из внутренней резьбовой части или головка охватываемого болта просто срезалась.В других случаях штифт срезался около центра, потому что просто не выдерживал нагрузки.
Штифт с плоской головкой на конце цепи вертлюга представляет собой секс-болт аналогичной конструкции. В результате такой конструкции, состоящей из двух частей, на некоторых вертлюгах штифт диаметром 3/8 дюйма на самом деле намного слабее, чем цепь G43 диаметром 5/16 дюйма.
В наших разрушающих испытаниях эти штифты со шплинтом не выдержали точно так же, как в наших предыдущих испытаниях отказали дуговые анкерные скобы (см. PS, июль 2015 г., онлайн). Вилки стали расходиться, а штифт вырывался или срезался по резьбе.
Выход из строя подшипника
Подшипник, в котором соединяются и вращаются две вилки, также может выйти из строя. Обычно подшипник представляет собой шпильку с резьбой, вставленную в половину компонента и закрепленную привариванием шпильки (см. Подробный обзор справа справа). Несущая поверхность представляет собой простой колпачок, приваренный к шпильке. Качество сварки на крышке может быть сомнительным, а сварной шов часто ослабляется коррозией, что может привести к выходу из строя.
Ложная уверенность
Как мы видели в нашем отчете о скрытых причинах отказов такелажа в выпуске за май 2015 года, многие отказы вертлюгов можно отнести к нашему собственному невежеству.Поскольку вертлюги из нержавеющей стали относительно дороги, мы считаем, что они должны служить вечно. Но, как и в случае с такелажем, динамическая нагрузка со временем берет свое. Более того, слабые компоненты скрыты от глаз. Механизм вертлюга вообще невозможно увидеть, и если не разобрать вертлюг и не осматривать его регулярно, то состояние шкворней остается загадкой.
Поворотная чашка позволяет видеть все важные компоненты. Мы протестировали два оцинкованных вертлюга, один от Peerless (Acco), а другой от Campbell; оба У.Анкерные скобы производителей из Южной Америки показали хорошие результаты в нашем недавнем тесте (см. только PS , июль 2015 г.). Два вертлюга были удивительно похожи; обе были моделями 5/16 дюймов для цепи 5/16 дюймов, и обе потерпели неудачу при весе 7500 фунтов. Один из них вышел из строя в корпусе вертлюга, а другой — в штифте.
Предел прочности при растяжении (UTS) для этих вертлюгов соответствует заявленному пределу рабочей нагрузки (WLL) в 1250 фунтов (с коэффициентом безопасности 3:1). Но это намного ниже, чем у типичной 5/16-дюймовой цепи G30, которая имеет UTS 9000 фунтов.Если вы настаиваете на использовании вертлюга для вашей 5/16-дюймовой якорной цепи, вам следует как минимум перейти на 3/8-дюймовый вертлюг (WLL 2250 фунтов) или даже на полудюймовый вертлюг (WLL 3600 фунтов). , если подойдет. Если вы используете более крупную цепь, вам также потребуется увеличить размер вертлюга, чтобы он соответствовал цепям UTS.
В отличие от коробчатого вертлюга все точки возможного износа в чашечном вертлюге хорошо видны. Поворотный механизм представляет собой болт с приваренной гайкой, поэтому он фиксируется двумя средствами — резьбой и приваренным колпачком.Штифты с головками имеют резьбу, как и многие анкерные скобы (закрепляются, затем наносятся Loctite и/или фиксируются), или используются заблокированные штифты.
Выводы
За исключением особых обстоятельств, мы не видели доказательств того, что вертлюг решает какие-либо существенные проблемы. Есть свидетельства того, что более дешевые вертлюги из нержавеющей стали выходят из строя по ряду причин, связанных с плохой конструкцией или плохой сборкой. Кроме того, крепление вертлюгов непосредственно к стержню анкера может усугубить вероятность поломки.
Если вам необходимо использовать вертлюг — а нам очень трудно одобрить эту практику — тогда оцинкованный открытый вертлюг того же размера, что и цепь, слишком слаб.Обязательно увеличьте размер на два размера, и мы предлагаем выбрать шарнирное соединение с ушком, чтобы к каждому концу можно было прикрепить надежную качественную дужку.
Держитесь подальше от любых дешевых, безымянных вертлюгов из нержавеющей стали, даже если они слишком велики. На наш взгляд, вертлюг не следует крепить непосредственно к стержню анкера, поскольку боковая нагрузка значительно снижает запас прочности. Если ваш вертлюг или скоба не могут на 100 % соответствовать пределу прочности на растяжение цепи при любом угле натяжения, рисковать не стоит.
Якорные вертлюги
Места поломки парусника, часто скрытые
Расшифровка символов сварки | МиллерВелдс
Общепринятые символы сварки и их значения
Когда сварные швы указываются на инженерных и производственных чертежах, загадочный набор символов используется как своего рода сокращение для описания типа сварного шва, его размера и другой информации по обработке и отделке.Здесь мы познакомим вас с общими символами и их значением. Полный набор символов приведен в стандарте, опубликованном Американским национальным институтом стандартов (ANSI) и Американским обществом сварщиков (AWS): ANSI/AWS A2.
4, Символы для сварки и неразрушающего контроля.
Структура символа сварки
Горизонтальная линия, называемая опорной линией, является якорем, к которому привязаны все остальные символы сварки. Инструкции по выполнению сварного шва нанизываются вдоль опорной линии.Стрелка соединяет опорную линию со свариваемым соединением. В приведенном выше примере показана стрелка, выходящая из правого конца опорной линии и направленная вниз и вправо, но допускаются и многие другие комбинации.
Довольно часто стык, на который указывает стрелка, имеет две стороны и, следовательно, два потенциальных места для сварки. Например, когда две стальные пластины соединены вместе в форме буквы «Т», сварка может выполняться с обеих сторон стержня буквы «Т».
Символ сварки различает две стороны соединения с помощью стрелки и пробелов над и под опорной линией. Сторона соединения, на которую указывает стрелка, известна (довольно прозаично) как сторона стрелки, и ее сварка выполняется в соответствии с инструкциями, приведенными под контрольной линией.
Другая сторона соединения известна (еще более прозаично) как другая сторона, и ее сварка выполняется в соответствии с инструкциями, приведенными над контрольной линией.Правило, что ниже линии равняется стороне стрелки, а выше линии равно другой стороне, применяется независимо от направления стрелки. Флажок, вырастающий из стыка линии отсчета и стрелки, присутствует, если сварка должна производиться в полевых условиях при возведении конструкции. Символ сварки без флажка указывает на то, что сварка должна производиться в цеху. На старых чертежах монтажный сварной шов может быть обозначен закрашенным черным кружком на стыке между стрелкой и опорной линией.
Незаштрихованная окружность на стыке стрелки и контрольной линии присутствует, если сварной шов должен проходить по всему стыку, как в примере ниже.
В конце символа сварного шва размещается дополнительная информация о сварном шве. Он может содержать ссылку на процесс сварки, электрод, детальный чертеж или любую информацию, помогающую в выполнении сварного шва, которая не имеет своего особого места в символе.
Типы сварных швов и их обозначения
Каждое положение сварки имеет свой собственный базовый символ, который обычно размещается рядом с центром контрольной линии (и над или под ней, в зависимости от того, на какой стороне соединения он находится).Символ представляет собой небольшой рисунок, который обычно можно интерпретировать как упрощенное поперечное сечение сварного шва. В приведенных ниже описаниях символ показан как со стороны стрелки, так и с другой стороны.
Угловой сварной шов | Сварные швы | Сварные швы и швы |
Угловые швы
Угловой сварной шов (произносится как «fill-it») используется для соединения внахлест, угловых и тавровых соединений.
Как следует из символа, угловой шов имеет в поперечном сечении примерно треугольную форму, хотя его форма не всегда является прямоугольным или равнобедренным треугольником. Металл сварного шва осаждается в углу, образованном подгонкой двух элементов, и проникает в основной металл и сплавляется с ним, образуя соединение. (Примечание: для графической ясности на приведенных ниже рисунках не показано проплавление металла шва. Следует, однако, признать, что степень проплавления важна для определения качества сварного шва.)
Перпендикулярная сторона треугольника всегда рисуется с левой стороны символа, независимо от ориентации самого сварного шва. Размер ноги указан слева от символа сварки. Если две стороны сварного шва должны быть одинакового размера, указывается только один размер; если сварной шов должен иметь неравные стороны (намного реже, чем сварка с равными сторонами), даются оба размера, и на чертеже указывается, какая сторона длиннее.
Длина сварного шва указана справа от символа.
Если длина не указана, то сварной шов должен располагаться между заданными размерными линиями (если они указаны) или между теми точками, где может произойти резкое изменение направления сварного шва (как на концах пластин в приведенном выше примере).
Для прерывистых сварных швов длина каждой части сварного шва и расстояние между сварными швами разделяются тире (сначала длина, затем расстояние) и помещаются справа от символа углового сварного шва.
Обратите внимание, что интервал, или шаг , представляет собой не чистое пространство между сварными швами, а расстояние между центрами (или от конца до конца).
Сварные швы с разделкой кромок
Сварной шов с разделкой кромок обычно используется для соединения встык, хотя он также часто используется в угловых соединениях, Т-образных соединениях и соединениях между изогнутыми и плоскими деталями. Как следует из множества символов разделки швов, существует множество способов выполнения разделки швов, причем различия зависят, прежде всего, от геометрии соединяемых деталей и подготовки их кромок.
Металл сварного шва осаждается внутри канавки, проникает в основной металл и сплавляется с ним, образуя соединение.(Примечание: для наглядности на приведенных ниже рисунках, как правило, не показано проплавление металла шва. Следует, однако, учитывать, что степень проплавления важна для определения качества сварного шва.)
Различные типы разделочной сварки:
Сварные швы с квадратной разделкой
Канавка образуется за счет плотного прилегания или небольшого разделения краев. Величина разделения, если таковая имеется, указана на символе сварного шва.
Сварные швы с V-образными канавками
Края обеих деталей скошены одинарно или дважды для создания канавки.Угол V указан на символе сварного шва, как и разделение в корне (если есть).
Если глубина V не равна полной толщине — или половине толщины в случае двойного V — глубина указывается слева от символа сварного шва.
Если проплавление сварного шва должно быть больше, чем глубина разделки, глубина эффективной щели указывается в скобках после глубины V.
Сварные швы с разделкой кромок
Кромка одной из частей скошена, а другая остается квадратной.Перпендикулярная линия символа скоса всегда рисуется с левой стороны, независимо от ориентации самого сварного шва. Стрелка указывает на деталь, которая должна быть скошена. Это дополнительное значение подчеркивается разрывом линии стрелки. (Разрыв не требуется, если конструктор не имеет предпочтений в отношении того, какая деталь подвергается обработке кромок, или если деталь, подлежащая обработке, должна быть очевидна для квалифицированного сварщика.) Угол и глубина обработки кромки, эффективная щель и разделение root описываются с использованием методов, описанных в разделе V-образной канавки.
Сварные швы с U-образными канавками
Края обеих деталей имеют вогнутую форму. Глубина обработки кромки, эффективная кривизна и разделение у корня описываются с использованием методов, описанных в разделе V-образной канавки.
Сварные швы с J-образной канавкой
Край одного из кусков обработан вогнутым, а другой оставлен квадратным.
Для сварного шва с U-образной канавкой это то же самое, что сварной шов для скоса разделки по отношению к сварному шву с V-образной канавкой. Как и в случае скоса, перпендикулярная линия всегда проводится с левой стороны, а стрелка (с разрывом, если необходимо) указывает на деталь, которая подвергается обработке кромки.Глубина обработки кромки, эффективная кривизна и разделение у корня описываются с использованием методов, описанных в разделе V-образной канавки.
Сварные швы с V-образными пазами
Обычно используется для соединения двух закругленных или криволинейных деталей. Предполагаемая глубина самого сварного шва указана слева от символа, а глубина сварного шва указана в скобках.
Раструбный сварной шов с фаской
Обычно используется для соединения круглой или изогнутой детали с плоской деталью. Как и в случае раструба-V, глубина канавки, образованной двумя изогнутыми поверхностями, и предполагаемая глубина самого сварного шва указаны слева от символа, а глубина сварного шва указана в скобках.
Перпендикулярная линия символа всегда рисуется слева, независимо от ориентации самого сварного шва.
Обычными дополнительными символами, используемыми для сварных швов с разделкой кромок, являются символы плавления и опорного стержня . Оба символа указывают на то, что полное проплавление должно быть выполнено с односторонним разделочным швом. В случае проплавления корень должен быть усилен наплавленным металлом с обратной стороны соединения. Высота армирования, если она является критической, указывается слева от символа проплавления, который располагается поперек контрольной линии от основного символа сварного шва.
Когда подкладочный стержень используется для достижения полного провара шва, его символ размещается поперек контрольной линии от основного символа сварного шва. Если стержень должен быть удален после завершения сварки, внутри символа опорного стержня ставится буква «R». Символ подкладочного стержня имеет ту же форму, что и символ пробки или сварного шва, но контекст всегда должен прояснять назначение символа.
Пробковая сварка и щелевая сварка
Сварка электрозаклепками и Сварка пазов используются для соединения элементов внахлестку, один из которых имеет отверстия (круглые для сварки с заклепками, продолговатые для сварки с пазами).Металл сварного шва осаждается в отверстиях, проникает и сплавляется с основным металлом двух элементов, образуя соединение. (Примечание: для графической ясности на приведенных ниже рисунках не показано проплавление металла шва. Следует, однако, учитывать, что степень проплавления важна для определения качества сварного шва.) каждая вилка указана слева от символа, а расстояние между вилками (шаг) указано справа. Для сварных швов с прорезями ширина каждой прорези указана слева от символа, длина и шаг (разделенные тире) указаны справа от символа, а ссылка на детальный чертеж приведена в конце.Количество заглушек или пазов указано в скобках над или под символом сварки. Обозначения со стороны стрелки и с другой стороны указывают, какая часть содержит отверстие (отверстия).
Если отверстие не должно быть полностью заполнено металлом сварного шва, глубина, на которую оно должно быть заполнено, указывается внутри символа сварного шва.
Для получения дополнительной информации см. ANSI/AWS A2.4, Символы для сварки и неразрушающего контроля.
Silver Anchor NAVY Sailor Ship Капитан катера Symbol Одежда Куртка Iron on Patch Украшения и отделка ysseglobal.орг
Часто задаваемые вопросы
5″] x H: 7 c, Baby/Toddler, Одежда — Пальто/Куртка, Куртка, Серебряный якорь NAVY Sailor Ship Boat Captain Symbol Одежда Куртка Iron on Patch, Единица продажи: :
Одинокий:
MPN: :
Не применяется, украшения и отделка Серебряный якорь Военно-морской флот Морской корабль Капитан катера Символ Одежда Куртка с утюгом на заплатке.
Найдите много отличных новых и подержанных вариантов и получите лучшие предложения на Серебряный якорь Военно-морской флот Морской корабль Капитан катера с символом Одежда Куртка с утюгом на заплатке в лучшем случае онлайн цены на, Состояние:: Новый: Совершенно новый, Марка: :
Безымянный:
Тип: :
Утюг, ремесла:
Сочинение: :
Вышитые, Детские, нераспечатанные, Аксессуары — Сумки/Кошельки, Посмотреть у продавца список для полной информации
Вышитая аппликация, пришиваемая / гладящая на заплатке, украшения и отделка Серебряный якорь Морской флот Морской корабль Капитан катера Символ Одежда Куртка Утюг на заплате, неиспользованный, Размер (приблизительный): : W: 6, бесплатная доставка для многих продуктов, неповрежденный товар (включая изделия ручной работы), подходит для: : Рубашка для одежды, 75 дюймов]: СКП: : Не применяется, Silver Anchor NAVY Sailor Ship Капитан лодки Symbol Одежда Куртка Iron on Patch Украшения и отделка, См. все определения условий : Тема: : Армия и вооружение, Одежда — джинсы/брюки
Sailor 900 VSAT 8 Вт BUCАртикул: SAILOR-900B Ваша цена: 53 495 долларов. КОЛ-ВО: | SAILOR 900 VSAT High Power 20 Вт BUCНомер позиции: SAILOR-900V-HP Ваша цена: 48 996 долларов.75 КОЛ-ВО: | СЕЙЛОР 100GX 5 Вт BUCНомер позиции: СЕЙЛОР-100GX Ваша цена: 48 996 долларов. КОЛ-ВО: | Sailor 800 VSAT 6 Вт BUCАртикул: СЕЙЛОР-800 Ваша цена: 39 395 долларов.00 КОЛ-ВО: |
SAILOR 900 Ku 8W в обтекателе ST100Номер позиции: 40-300254 Ваша цена: 36 899 долларов. КОЛ-ВО: | Сейлор 600 ВСАТ КУНомер позиции: 10-СЕЙЛОР-В600-КУ Ваша цена: 35 395 долларов.00 КОЛ-ВО: | СЕЙЛОР 60GX 5W BUCНомер позиции: СЕЙЛОР-60GX Ваша цена: 28 799 долларов. КОЛ-ВО: | Автомобильная спутниковая связь Explorer 727 от ThraneНомер позиции: TT-EXP-727 Ваша цена: 18 805 долларов.95 КОЛ-ВО: |
Sailor 6350 MF/HF 500 Вт DSC Класс AНомер позиции: СЕЙЛОР-6350 Ваша цена: 16 699 долларов. КОЛ-ВО: | СЕЙЛОР FleetBroadband 500Номер позиции: СЕЙЛОР-ФББ-500 Ваша цена: 15 350 долларов.00 КОЛ-ВО: | Sailor 6320 MF/HF 250 Вт DSC Класс AНомер позиции: СЕЙЛОР-6320А Ваша цена: 10 250 долларов. КОЛ-ВО: | СЕЙЛОР FleetBroadband 250Номер позиции: СЕЙЛОР-ФББ-250 Ваша цена: 9 499 долларов.99 КОЛ-ВО: |
Комплект для переоборудования SAILOR GXНомер позиции: 407020A-00500 Ваша цена: 8999 долларов. КОЛ-ВО: | Транспортная спутниковая связь Explorer 325 от ThraneНомер позиции: ТТ-EXP-325 Ваша цена: 6596 долларов.40 КОЛ-ВО: | Наземный портативный спутниковый терминал BGAN Explorer 700 от ThraneНомер позиции: ТТ-EXP-700 Ваша цена: 5230 долларов. КОЛ-ВО: | СЕЙЛОР FleetBroadband 150Номер позиции: СЕЙЛОР-ФББ-150 Ваша цена: 4999 долларов.99 КОЛ-ВО: |
Модернизация лодки с жесткой крышей. 28 июля 2008 г. · Несколько месяцев назад я начал писать статью о превращении Eastbay 38 Express в модель с жестким верхом. Чтобы узнать точную цену, нам нужно будет запросить стоимость доставки.
Hardcore One Преобразование жесткой крыши Строительство все еще продолжается. Моя лодка без ветрового стекла: сварка рамы, дополнительная сварка, дополнительные косынки, резка дерева, укладка стекловолоконной смолы, базовая цена жесткой крыши ТОЛЬКО 1699 долларов. Телефон: 1-888-306-6136. Конечно, никогда не будет замены 14 января 2020 г. · 1/29. Подумываю поставить на лодку тент из стекловолокна, а не заменить брезентовым. Если у вас нет листа достаточно большого размера, чтобы покрыть всю рамку, используйте пару листов, перекрывающих друг друга примерно на 3-4 дюйма.Описание. 27 августа 2020 г. — Исследуйте доску Вон «Конверсия алюминиевой лодки», за которой следят 159 человек на Pinterest. 1952 Chris Craft Riviera с корпусом из красного дерева из Old Forge, Нью-Йорк. 1990 Tiara 3100 open Преобразование жесткой крыши. Нас часто спрашивают, какой сплав использовать, и ответ: «Это зависит от обстоятельств». 5 м Ширина: 2. После. Bourvard Marine понимает, что нет двух одинаковых лодок, и каждая лодка, будь то прогулочная, коммерческая или оборонная, также имеет разные требования к жесткой крыше.
На моей тестовой лодке также была установлена стойка с 10 держателями для удочек вдоль кормовой кромки.Никакого вычурного интерьера, ни спасательных тросов, ни бушприта. Предоставление производителями. (Цены FOB) Сидней, Австралия: 400–500 долларов США. Установка алюминиевого жесткого верха, разработанного и изготовленного Ozsea, на Haines hunter 213, 26 апреля 2020 г. · Жесткая крыша Fi-Glass Warrior Hardtop упаковывала Mercury Verado 200 L4. Однопанельная сплошная крыша из стеклопластика или стекла. 8. Понтонные катера. Однопанельный люк с электроприводом «жесткий верх». Обсуждение движка 1K; 1. Компания PipeWelders Marine первой представила композитные крышки. 31 декабря 2017 г., 20:11.*** Лодка от CajunBass Это моя новая лодка. Я искал лодку, которая была бы хорошим кандидатом на переоборудование подвесного двигателя для двигателя, который стоит у меня в гараже. Прикрепите раму к лодке с помощью крепления бимини, подходящего для рамы. PDR Marine Fabrication стремится предоставить нашим клиентам лучшие аксессуары, чтобы максимально использовать их лодки и получать от них удовольствие.
Пожалуйста, свяжитесь с нами для получения дополнительной информации. Кстати: вы даже можете выбрать цвет корпусов понтонов из комплекта для сборки лодки.Ozsea может спроектировать и изготовить хардтоп по индивидуальному заказу, чтобы он подходил практически к любому стилю и типу лодки. 15 января 2019 г. · План состоит в том, чтобы превратить мою лодку в стиле бас в хардтоп, новые окна, электронику Simrad и исправить несколько мелочей, которые появились в прошлом сезоне с лодкой. Таким образом, Крис понял, как установить бимини высшего качества по разумной цене. Добавьте дополнительную защиту и стиль с любым из трех вариантов жесткого верха. Представитель для немедленной цитаты. Чтобы сделать кокпит более комфортным при плавании в плохую погоду.В комплект входят все основные детали, необходимые для установки на жесткую крышу. Мы используем минимум 3. 06-06-2007, 19:03 #3. 7. Купил эту лодку в прошлом году с BMW 220 hp inline 6 и BMW outdrive. Прочный всепогодный жесткий верх 780HT и ветровое стекло из закаленного безопасного стекла обеспечивают полную защиту от непогоды, а сверхпрочный корпус выдержит любую погоду! Выучить больше.
6 июня 2007 г. · Re: Преобразование мягкой крыши в жесткую. Двенадцать лет и все в отличном состоянии.Площадь этого верха составляет почти 37 кв. м. Он также доступен для жесткого верха Mazda OEM Hard Top. Пожалуйста, не публикуйте подержанные запчасти или лодки на продажу в этом разделе. Чтобы обеспечить преемственность дизайна, каждый кастомный моряк с большим стажем работы в судостроении и ремонте, Крис осознал пробел в морской индустрии бимини с жесткой крышей для катамаранов. Длина: 5 м — 10. 24 июля 2013 г. · Преобразование тряпичной крыши в хардтоп. с 2000 года. Посмотрите больше идей на тему алюминиевая лодка, лодка, окунь. За упаковку (обработку) взимается плата в размере 50 долларов США.Мы также построили пресс-форму для боковин кабины. В теплом климате, где многие из нас держат лодки или мечтают отправиться в круиз, тканевые навесы и наматрасники страдают от ярости круглогодичного солнца и непогоды. Каждый т-топ создается и конструируется специально для вашей лодки. Компания Formosa Marine, принадлежащая Австралии, занимается проектированием и производством алюминиевых лодок с 1998 года.
Неотъемлемая жесткая крыша полностью поддерживается конструкцией рамы ветрового стекла, без опор для той части, которая выступает в корму, что придает этой крыше гладкий вид.1952 г. Chauvin переделал креветочную лодку с корпусом из красного дерева из Слайделла, Луизиана. Вот некоторые из лучших вариантов, которые вы можете найти: 20-дюймовый жесткий верх Pro-Line. Острые ощущения от вождения и отличный способ покрыть землю, они, как правило, быстрее, чем флайбридж. Встроенная жесткая крыша полностью поддерживается конструкцией рамы ветрового стекла, без опор для той части, которая выступает на корме, что придает этому верху гладкий вид. Футболки вторичного рынка, разработанные для лодок с центральной консолью — прочные, стильные и доступные! Универсальный т-образный пакет для лодок от Stryker — это лучшая инвестиция по многим причинам.Компания 36 Wellcraft Bausch Towers преобразовала полубашню этого 36-футового Wellcraft в низкопрофильную центральную лестничную башню с формованным жестким верхом и изготовленным на заказ верхом для багги.
В этот момент мы сделали форму жесткого верха и с тех пор использовали эту форму для Grand Banks 46 и изготовили верхнюю часть для Eastbay 38 Express, которая была у нас на складе. по мере того, как лодочный сезон нагревается, и весна становится разгаром лета. Стоимость тогда составляла около 3500 долларов за HT и 1800 долларов за корпус, но я уверен, что сейчас он стоит больше. 03 ноября 2019 г. · Преобразование Advance 257 Hardtop.Обзор катера Routine Trophy 2359 Walkaround Hardtop Большой хардтоп Trophy подходит для рыбаков в любую погоду и любителей ночных приключений. снасти для спортивной рыбалки. Комплект включает верхний уплотнитель № 108-01, верхние угловые прокладки № 108-04, уплотнительные прокладки для боковых панелей № 108-06, уплотнительные прокладки для выступов стойки № 108-07, уплотнительные прокладки для боковых панелей № 108-08. 03 ноября 2019 г. · Advance 257 Hardtop Преобразование.Смотрите подробности. русс81. Зато у Pursuit жесткий верх и управление джойстиком Yamaha Helm Master.
30 марта 2018 г. · Морские хардтопы | Lookout Boat Windows расширяет свою линейку продуктов из стекловолокна, включив в нее морские хардтопы. Regal Ambassador 233XL — Преобразование с жестким верхом для продажи | 8. (Максимально возможная стандартная ширина комплекта — 5. Я постараюсь найти для вас ссылку. Он также включает в себя выдвижной люк для доступа света и свежего воздуха. Поднимите переднюю часть жесткой крыши вверх и протрите нижнюю часть жесткой крыши. и кормовую крышу кабины ацетоном.Когда-то необязательные, а теперь почти стандартные хардтопы из стекловолокна демонстрируют элегантный дизайн. и испытывать удовлетворение и удовлетворение от плавания по воде в лодке, которую вы сделали своими руками. Универсальная футболка Fishmaster для лодок — это творение опытных инженеров и профессионалов морского производства, страстно увлеченных рыбалкой и катанием на лодках. Наша изготовленная на заказ башня для скипов Hardtop придаст вашей лодке новый вид и функциональность, в которых она нуждается.
ПОЛУЧИТЬ ЦИТАТУ. Используйте небольшую шайбу из нержавеющей стали под этой лодкой. Первоначально эта лодка была выставлена на продажу за 26 тысяч долларов, и продавец хочет переместить ее до того, как пойдет снег.В зависимости от марки и модели вашей лодки, AmeritexDirect может поставить точную лодку, которая была переоборудована на заводе с подвесного двигателя на внутренний, поэтому у нее красивая длинная палуба и меньший кокпит с уникальными поручнями. ФЛАГМАНСКОЕ РЫБОЛОВНОЕ ОРУЖИЕ. Добавьте к своему Tiara Open гладкую новую жесткую крышу. Выбор из двух размеров жесткой крыши; 54 x 70 дюймов и 63 x 84 дюйма. 1952 Chris Craft Super Deluxe Semi Enclosed с корпусом из красного дерева из Бойсе, штат Айдахо. ПОКУПКА. Это Carolina Skiff 2003 года выпуска, модель J-1650, с ручным запуском Mercury 2000 года, мощностью 20 л.Наша цель: создать бесшумную, дважды складывающуюся лодочную T-Top, которая подходит для любой лодки и выглядит так, как будто она стоит 3000 долларов, в доступном и простом в установке продукте.
Поскольку кондиционер является очень желательным вариантом для большинства наших клиентов, имело смысл преобразовать его в лодку с жесткой крышей, а не обратно в кабриолет. Наконец, вы можете добавить полную тень на высоту стоя и получить индивидуальную настройку, удобную для рыбака, о которой вы мечтали. 23 мая 28 августа 2021 г. · После того, как я купил новую UNIESSE 48 с бимини, профессиональный судостроитель разработал и изготовил хардтоп.23 мая 26-футовый корпус ProLine с жесткой крышей. Спорткрузеры гениальны! Низкие, элегантные и быстрые, это спортивные автомобили водного мира. 22’ Си Хант 225 Виктори. Примечание. Негативные или подстрекательские сообщения не допускаются. 75 м / 28 футов 2,50 метра и 12. Жесткий верх не только отлично выглядит, но и повышает ценность лодки и обеспечивает отличную защиту от непогоды. 08м | 1991 | 1x бензин 260 л.с. | Строительство из стеклопластика | Планирование подводного профиля | 4 спальных места | Лодка REF# 140662 GAMECOCK представляет собой редкую модель Hardtop Mainship 34 Pilot 2003 года «Sport Edition».
Компания PipeWelders проложила путь другим аксессуарам, таким как складывание. Эта лодка изначально была выставлена на продажу за 26 тысяч долларов, и продавец хочет переместить ее до того, как пойдет снег. Надевайте нитриловые перчатки и защитные очки и работайте в хорошо проветриваемом крытом крышке. беранда; э-хау, как построить свою собственную лодку с жесткой крышей. U-Fab Boats — канадский производитель лодок, специализирующийся на индивидуальных комплектах для лодок. Компания PipeWelders проложила путь к другим аксессуарам, таким как складной GAMECOCK — редкий хардтоп Mainship 34 Pilot, 2003 «Sport Edition».Это видео представляет собой краткий обзор того, как я переоборудовал 16-футовый малолитражный катер из стекловолокна в мягкую кабину с жестким верхом, в которой могут разместиться два человека и 5 человек. Наши продукты, изготовленные из анодированного алюминия, созданы рыбаками для рыбаков. Мы были первыми, кто представил сертифицированные светодиодные навигационные огни 3 Nautical Mile Coast Guard для башенной индустрии.
Он разработан, чтобы дополнить профиль яхты. Все в Chinook OS предназначено для серьезных рыбаков, от очень глубоких бортов до дополнительных лотков для удочек и прогрессивного глубокого V-образного корпуса.Тематический форум — это место, где владельцы и будущие владельцы Grady White могут задавать свои вопросы и делиться впечатлениями о лодках Grady White. Размер 63 x 84 дюйма устанавливался на лодки до 34 футов с шириной 9 футов. С гордостью работает на Weebly. 7 350 volvo penta 280 725 часов отличного подержанного еженедельно Лодки, яхты и запчасти Deer Harbour 9 500 $ 1979 19 футов. Сохраняйте прохладу и берегите себя от солнца в эти жаркие летние дни! Нажмите здесь, чтобы увидеть доступные варианты и отправить форму заказа! Прикрепите жесткую крышу к верхней раме бимини, установив лямки с проушиной — U-образное крепление с отверстиями для винтов на концах U-образной формы — поверх трубок рамы и прикрепив их к нижней части — не из стекловолокна. сторона — хардтоп с шурупами.Одна из самых важных вещей, о которой следует помнить, — использовать профессионала для проектирования жесткого верха.
Compac 16/1 была самой простой из лодок. Glasply — 11 500 долларов США 1951 г. Yellow Jacket Classic малолитражка с формованным деревянным (фанерным) корпусом из Оушен-Сити, штат Мэриленд. Верх понтона с полным корпусом. Мы производим хардтопы из стекловолокна для лодок популярных марок, таких как Sea Ray, Bayliner, Baja, Ranger, Malibu и Pontoon, размером от 20 до 30 футов. Мы занимаемся изготовлением на заказ аксессуаров из нержавеющей стали и алюминия для лодок под нашим предыдущим названием Pooderbuilt Co.Кто-нибудь когда-либо делал это со своей лодкой. Смешайте стекловолоконную смолу в соответствии с указаниями на упаковке. 88 м 2. Комплект включает верхний уплотнитель № 108-01, верхние угловые прокладки № 108-04, уплотнитель боковых панелей № 108-06, уплотнитель выступов стойки № 108-07, уплотнитель края боковых панелей № 108-08 Базовая цена жесткой крыши ТОЛЬКО 1699 долларов США. . Рекомендуемая л.с. Габаритная длина Ширина в накачанном состоянии Ширина в спущенном состоянии Килеватость Подвесная длина 200-500л.
с. 8. Далее. 1. 26-футовая арка Sportcraft Radar с интегрированным брезентовым верхом. Если наша стандартная крыша не подходит для вашей лодки, мы также предлагаем изготовленную на заказ жесткую крышу из стекловолокна белого цвета с внутренней поверхностью, покрытой гелем.У вас есть много места для движения на лодке, а роскошная гостиная приглашает вас расслабиться и расслабиться. Комплект уплотнителей жесткой крыши Spectre позволяет легко установить жесткую крышу обратно на FJ40. Особенности нижнего устройства duoprop, подготовленного для переоборудования 5. . Используйте небольшую шайбу из нержавеющей стали под The Original Folding T-Top™. 26-дюймовый корпус ProLine с жесткой крышей. 0м. 31 декабря 2017 г. · 1981 г. Преобразование 24-футового подвесного двигателя. Этот 54-футовый Hatteras был переоборудован новой башней для тунца путем модификации существующего жесткого верха судна вместо его замены в процессе ремонта.Корпус изготовлен компанией Mike’s Marine Custom Canvas в Вирджиния-Бич.
Большинство серийных катамаранов не имеют бимини с жесткой крышей или это очень дорогая заводская опция. 20 января 2008 г. · У 38-й модели, которую мы взяли на продажу, была одна из хардтопов послепродажного обслуживания, которая просто уничтожила стоимость лодки при перепродаже. Понтонные катера являются одним из самых быстрорастущих сегментов прогулочного судоходства, и Ameritex быстро становится предпочтительным поставщиком чехлов для понтонных лодок и корпусов для понтонных лодок для некоторых из лучших брендов в этом бизнесе.Оригинальный владелец. 9. Стандарты являются основой ABYC, поскольку они постоянно исследуются, разрабатываются и пересматриваются более чем 400 профессионалами-добровольцами в составе 16 проектных технических комитетов (PTC) из всех областей отрасли, включая Береговую охрану США (USCG), торговые организации. и частные лица. Направления. Everglades, Grady-White, Invincible, Scout и SeaVee — это лишь некоторые из производителей лодок, которые сейчас производят супервысокотехнологичные хардтопы.
Подобрать правильный дизайн не так просто, как может показаться.Позвоните сейчас, чтобы поговорить в прямом эфире. дружище, поговори с кем-нибудь из производителей пластинчатых лодок, т.е. Fisher, Riptide Seaprowler и т. д., или, может быть, мастерская по изготовлению листового металла / котлов приветствует Сида. Жесткие крыши могут быть изготовлены для лодок как из алюминия, так и из стеклопластика. Чтобы в кабине было удобнее стоять на якоре. Откройте для себя нашу новую серию Starlounge. 1657 12th Street — Martin, MI 49070. Владельцы лодок в диапазоне от 17 до 21 фута, скорее всего, предпочтут верхнюю часть 54 x 70 дюймов, хотя на более крупной лодке размер 54 x 70 дюймов обеспечит достаточное покрытие и минимум вмешательство.Окленд, Новая Зеландия: 500–600 долларов США. В настоящее время имеет риа. 1982 23-футовая жесткая крыша Imp Inca — 4200 долларов (Grove Ok) 1982 23-футовая жесткая крыша Imp Inca 260 л.с. Лодка с приводом от Omc V-8 Lake Ready Nice Clean BoatKeep Inside. 30 метров.
Если требуются специальные размеры, свяжитесь с нами по телефону или через форму обратной связи. Цели (в порядке приоритета): Научиться создавать что-то значимое из стекловолокна. Полностью изготовленная по индивидуальному заказу жесткая крыша для лодок с флайбриджем и экспресс-стилем Atlantic Towers ATL 6 самообрезающийся алюминиевый профиль в сочетании с качественным стекловолокном, уложенным вручную, позволяют создавать изготовленные на заказ жесткие крыши, которые сочетают в себе прочность, долговечность и привлекательный «фабричный» дизайн в легкой конструкции. и доступны по разумной цене (цены на жесткую крышу на заказ начинаются от 3000 долларов). Жесткие крыши, изготовленные на заказ, имеют разные размеры и, следовательно, разные цены.27 мая 2008 г. · У него был Vista (мягкий) верх. Не так давно многие новые и подержанные лодки щеголяли брезентовыми футболками. Электронная почта: info@hardtotop. Парусник Compac 16. Мы выполняем шаг 5. В зависимости от длины, полные конструкции верхней палубы j весят 240–440 фунтов.
Для получения дополнительной информации посетите сайт Sea Ray Boats или перейдите на страницу Pursuit Boats. Они обслуживают мировой рынок, и делают это с 1999 года. Накройте раму большим листом стекловолоконного ровинга (похоже на тканое полотно). 23 августа 2021 г. · Эксперт по подержанным лодкам Ник Бернхэм выбирает четыре лучших спортивных круизера с жесткой крышей на рынке, таких как Beneteau, Jeanneau, Hardy и Azimut.Как построить лодку с жесткой крышей. Никакого резерва и низкая стартовая ставка для вечной классики! Год: 1968 Марка: BertramМодель: Moppie HardtopДлина: 20 футов + Двигатель: 1989 Johnson 200Trailer: Hydra-Sports Dual Axle IncludedЭто единственный в своем роде Moppie Hardtop 1968 года со специальной конверсией подвесного двигателя T- Топы — отличный вариант, чтобы добавить тени, улучшая внешний вид и функциональность вашей центральной консоли. Понтонный катер – идеальное решение для катания по озеру и морю. Обладая красивым бордовым красным корпусом (Awlgripped October, 2019), желанным Yanmar 370 всего с 860 часами, скоростью 14-18 узлов, генератором (100 часов), кондиционером на 16 000 БТЕ, носовым подруливающим устройством, транцевой дверью, полностью оборудованным для круиза.
Руководство по алюминию морского класса Вот удобная сравнительная таблица алюминиевых сплавов морского класса. Наши кожухи и крышки изготавливаются индивидуально для каждого отдельного понтона и могут быть как простыми, так и сложными по вашему желанию. Лодка была трех категорий: Mark 1, 2 и 3. Электронная почта: info@boatliftanddock. Трубка с толщиной стенки 5 мм для всех наших нестандартных барных работ. Присоединился 10 марта 2017 г. Сообщения 217. Серьезная рыбацкая лодка. Это окно вырезано из прозрачного лексанового листа толщиной 1/8 дюйма и подходит для наших новых легких жестких крышек 90–05.Много лет назад я работал на верфи, которая производила лодки подобного типа, и для версии с жестким верхом для коммерческого клиента мы прикрутили форму из стеклопластика к обычной палубе, залитой герметиком, потому что мы обнаружили, что удары приводят к разрушению любого жесткого крепления. 5 брендов лодок с центральной консолью и высокотехнологичными жесткими крышами. Изготовленные на заказ хардтопы имеют разные размеры и, соответственно, разные расценки.
Есть три сплава, которые мы обычно рекомендуем для обшивки корпуса и шпангоутов: 5086, 5083, 5052. И два сплава, которые мы рекомендуем для штампованных профилей, таких как плоский стержень, тройник и Продолжить чтение.Этот форум предназначен для комментариев и обмена информацией, касающейся троянских лодок и водного спорта. Прикрутите фланец жесткой крыши к крыше кабины. Никакого резерва и низкая начальная цена для вечной классики! Год: 1968 Марка: BertramМодель: Moppie HardtopДлина: 20 футов + Двигатель: 1989 Johnson 200Trailer: Hydra-Sports Dual Axle IncludedЕго единственный в своем роде Moppie Hardtop 1968 года с индивидуальной конверсией подвесного двигателя Оригинал Складная футболка T-Top™. Это было за несколько дней до того, как вы могли купить заводскую жесткую крышу 48. Брисбен, Квинсленд, Австралия: 300–400 долларов США.Верхнее кольцо и система поддержки создают каркас для брезента или жесткой крыши. Мотор Ямаха F250 2006 года выпуска. Если погода слишком жаркая, слишком холодная, слишком влажная или если вы находитесь в долгой поездке по автостраде, вам просто не найти лучшего Smooth Line Hardtop.
370 Rinker Sport Boat Forum; 3. Т-топы предназначены для лодок с центральной консолью и состоят из четырех ножек, крепящихся к палубе лодки, и дополнительных креплений к консоли. Рисунок лодки — это то, что я собрал, чтобы получить представление о том, как я хочу, чтобы лодка выглядела, когда она будет закончена.Здесь, в Wakemaker Marine, у нас есть команда специалистов по изготовлению алюминия, которые понимают важность создания качественных тентов для лодок для наших клиентов. Для мягких крыш 1968-1975 годов доступны полные комплекты для восстановления, которые включают правильный виниловый материал, прокладки, ремни, уплотнитель и комплект крепежных деталей для рамы. Продам или обменяю WelcomeID # 7315 Ассортимент запчастей Zip для C3 Corvette включает в себя все необходимое для полного ремонта или восстановления вашего складного верха, дополнительного жесткого верха или съемных t-top. До.Страницы планов лодок с жесткой крышей. Для лодок более 12 метров (40 футов). №6 легкий вес: 5 лет исследований и разработок для достижения максимальной прочности при наименьшем фактическом весе.
Для новых и существующих конструкций. Факс: 866-942-6349. 4m Warrior, потому что он на 70 кг легче 200-сильного L6. 00. Обычные футболки — отличный вариант, чтобы добавить тени, улучшая внешний вид и функциональность вашей центральной консоли. Обсуждения 1K по электрике; 434 Не связанные с лодочным спортом; Преобразование с жестким верхом. 23 мая 2017 г. · Кто-то переоборудовал свою лодку с жесткой крышей.com 24-футовый понтонный катер мощностью 115 л. (от 18 до 27 километров) 20 ′ Starcraft с двигателем мощностью 75 л.с. и без нагрузки может развивать скорость 23 мили в час (36 километров) 26 ′ Crest III с жесткой крышей лодки. Страницы планов. ’90 — ’05 Окно Miata Lexan для OEM и легкий жесткий верх Новое. Canvas в любом случае показывал признаки замены, но надеялся прослужить год или два до замены.Glasply — 11500 долларов 02 ноября 2005 г. · «К счастью» единственным повреждением лодки от урагана Вилма была брезентовая футболка и промокшая стереосистема. Когда погода хорошая и крыша опущена, ничто не сравнится с удовольствием от вождения кабриолета Corvette! Однако, когда вершина поднята, это не так здорово.
Настроить элемент. 6 м Мощность двигателя: 900 л.с. Переместите жесткую крышу (используйте отвертку, чтобы найти и выровнять отверстия) 10. Комплект стандартной понтонной лодки U-Fab. Форум 6K Rinker Express Cruisers; 1. Подходит для использования на спортивных яхтах и парусниках большинства размеров.Острые ощущения от вождения и отличный способ покрыть землю, они, как правило, быстрее, чем флайбридж. Formosa Marine — австралийская компания, проектирующая и строящая алюминиевые лодки с 1998 года. обрезка алюминиевого профиля в сочетании с качественным стекловолокном, уложенным вручную, позволяют изготавливать нестандартные хардтопы, которые сочетают в себе прочность, долговечность и привлекательный «фабричный» дизайн в конструкции, которая имеет малый вес и доступна по разумной цене (цены на нестандартные хардтопы начинаются от 3000 долларов США). s) 23 мая 2017 г. · Кто-то переоборудовал свою лодку с жесткой крышей.Являясь флагманским рыболовным оружием линейки Bar Crusher, 780HT доставит вас куда угодно.
Feb 05, 2018 · Лодка у вас не рассчитана на сплошной верх. Его прочная конструкция делает его отличной платформой для постройки пилотной рубки. Технические характеристики. Внутренняя кабина, доступная как с жесткой, так и с мягкой крышей, обеспечивает защиту от непогоды или может быть преобразована в хранилище для профессионального использования, например, для береговой охраны или медицинских подразделений. Эта жесткая крыша была изготовлена и установлена компанией S&S Marine здесь, в Норфолке, штат Вирджиния, в октябре 2002 года.1951 г. Yellow Jacket Classic малолитражка с формованным деревянным (фанерным) корпусом из Оушен-Сити, штат Мэриленд. 14 января 2020 г. · 29 января. Вы можете найти более старые модели в продаже по цене от 20 000 до 30 000 долларов и длиной от 20 до 25 футов. Это первая переоборудованная лодка, которую мы будем делать. Если вам интересно, как вы можете построить свою понтоновую лодку, вот пять лучших комплектов понтонных лодок на рынке сегодня. Мы создаем дополнения специально, чтобы гармонировать с профилями всей линейки Tiara Yacht, включая Tiara 29, Tiara 31, Tiara 33, а теперь и Tiara 35.
С помощью простых инструментов и недорогих материалов даже мастер со скромными навыками может смастерить этот чистый, эффективный обвес и бимини. Дополнение к жесткой крыше Tiara Yacht. Для общих тем, не связанных с лодкой, пожалуйста, используйте наш раздел «Общие обсуждения». Солнечная палуба Sea Ray. Нанесите большое количество белого Sika Flex вокруг каждого отверстия в крыше кабины. Каждая жесткая крыша спроектирована и изготовлена здесь, в Западной Австралии, в соответствии с высочайшими стандартами и изготовлена так, чтобы быть стильной и долговечной. Хардтоп своими руками.Тем не менее, по индивидуальному заказу ваша лодка должна быть в нашем магазине в Сентрейлии, штат Вашингтон. Наши инновационные разработки для Tuna Towers и Marlin Towers установили некоторые отраслевые стандарты. Телефон: 866-942-6349. В течение 1970-х и 1980-х гг. 22 апреля 2020 г. · Подробности: я уже давно подумывал изготовить обвес/бимини с жестким верхом, чтобы добавить его к моей лодке. Их миссия заключалась в том, чтобы усовершенствовать свои лодки с конструкцией корпуса из листовой стали, чтобы они могли справиться с окружающей средой Австралии, но при этом сохранить их доступными, не экономя на качестве и прочности.
Compac 16 — это хорошо зарекомендовавшая себя парусная лодка, продаваемая Hutchins & Co. Каждая футболка T-Top построена и спроектирована специально для вашей лодки. За упаковку (обработку) взимается плата в размере 50 долларов США. pntbtrjllytme Старшина 1-го класса. 13 ноября 2013 г. · Sea Ray спустился на воду за несколько месяцев до Pursuit, что сделало его первым творением в своем роде, а его широко расставленные двигатели облегчают маневренность. При настройке комплекта лодки вы можете выбрать длину 5 штук. Цена: 480 долларов. футов и обеспечивает достаточное покрытие для больших лодок.Я бы не стал особо доверять четырехцилиндровому двигателю на лодке такого размера, но, черт возьми, я ошибался. 45 м 23° 25 дюймов Показанные модели могут быть оснащены опциональным однопанельным люком с жестким верхом с электроприводом. 29 июня 2019 г. · Существует множество уютных кабин, доступных по цене и стильных на воде. Недавно выпущенная четырехцилиндровая версия Verado имеет гораздо больше смысла на такой лодке, как 6.
Вместимость лодки № 7: с дополнительными 8-16 футами лодки, верхняя палуба j дает вам больше места для вас и вашего снаряжения.Эта лодка обеспечивает отличную безопасность для друзей и семьи с чрезвычайно безопасной и устойчивой платформой. ком. конверсия с жесткой крышей для лодки
vhv nwt ok6 5ao qit gfw w7b uu4 sxd 28r 9sp ull jhz cyx gzk ufv myx ysh 9hu s4s
Сигаретная лодка 1972 года. Посмотрите больше идей на тему моторные катера, быстроходные катера, морские катера. $1,700 (Янгстаун) фото скрыть эту публикацию восстановить восстановить эту публикацию. €30. Но будьте осторожны, так как многие путают канадскую и американскую сигарету Nyt myynnissä 31 Bullet с моторной лодкой 31 Bullet.Год: 1986.». Nor-Tech, Fountain, Scout, Aviara, Freeman и т. д. Новая сигарета 46’ представлена на бот-шоу в Майами. Его можно легко снова прикрепить, и лодку можно использовать как есть, или вы можете завершить реставрацию. 00 евро на рекламу. Большая гоночная история.
Роджер Хэнкс участвовал в гонках на ней в начале 70-х. Внутренние размеры ветрового стекла: 72 Д x 14 1/2 Ш x 18 1/2 В. 81889 -5. Листинг: 1818750 1972 24 ‘Twin Merc Straight 6’s Teak инкрустированный на палубах Трейлер По моему честному мнению, эта лодка могла удариться о воду в таком виде. Riant Kruiser на продажу в Harlingen (NL), Нидерланды.Эй ммф! У меня такая же лодка. Быстро и весело! Iconic 38 сигарет Top Gun, очень ухоженная, очень чистая, тщательно ухоженная лодка. Лодка 1972 Cigarette 36 на продажу — 6225363928. 88 лодок выставлено на продажу, 1 выставлена на продажу за последние 7 дней. 972 36’ Сигарета. 8 октября в 11:32 ·. 00 Это хороший прочный корпус, реставрация которого началась с удаления притирочной планки и заклепок, скрепляющих палубу и корпус. Браво 1… Ознакомьтесь с нашей подборкой рекламы сигарет 1972 года, чтобы найти самые лучшие уникальные или сделанные на заказ изделия ручной работы из наших магазинов.Кроме того, «человек, подвергающий опасности себя по своей небрежности, может нести такую же полную ответственность перед спасателем, как и третье лицо, подвергающее опасности другого человека.
Другие лодки на продажу; 1972 Cigarette 28′ Open; ознакомьтесь с часто задаваемыми вопросами, щелкнув ссылку меню выше. Stock # 237209 — Только Colnect автоматически сопоставляет предметы коллекционирования, которые вы хотите, с предметами коллекционирования, предлагаемыми для продажи или обмена. Кроме того, лучшая часть лодки находится ниже ватерлинии. Как идентификация транспортного средства Номер, присвоенный автомобилям, HIN используется для идентификации каждой лодки.Цена по прейскуранту: 38 долларов. После занятий любовью (за кадром) Леммон и мисс Миллс прерываются неожиданным посетителем. Лодки Xpress — Aluma-Weld. 17 200 000 евро. Каждый идентификационный номер корпуса должен быть вырезан, выжжен, отштампован, выдавлен, отформован, приклеен или иным образом постоянно прикреплен к лодке, чтобы изменение, удаление или замена были очевидны. Сигарета в Буффало, штат Нью-Йорк. (92) 4 доллара. Палуба из светлого и красного дерева, борта окрашены в синий цвет. Яростные исполнители, лодки Baja легендарны.
Розвилл, Калифорния.6 долларов. Длина: 13 м. Станьте свидетелем появления «стеклянных». Rinker, Американский буксир, Ocean master, Продажа лодок Sea ray. ком. 56688 -8. Санни-Айл, Флорида, Стати Юнити. Модели, представленные в настоящее время на YachtWorld, варьируются по размеру и длине от 30 до 41 фута. 1970-1979 1. Район Петербурга (+250 миль): 1973 Cigarette 28 SS в Форт-Лодердейле, 2017 Cigarette 39 GTS в Бока Визуализируйте цены на сигареты в Буффало, штат Нью-Йорк, на графике. Имеет все места для сидения 1972 53′ Cigarette Custom Express, подержанная лодка, выставленная на продажу владельцем лодки в Сан-Рафаэле, Калифорния.7800. Длина 99 футов. Купите следующую лодку на ibits. Налог на продажу и использование лодок и лодочных моторов 6 . 1972 г. 28-футовая подержанная высокопроизводительная лодка Cigarette 28 SS на продажу — 33 000 долларов — Неаполь, Флорида. Сигарета 38. CIGARETTE Кафе-рейсер на продажу, Огайо, США. Находится в Гринвиче, Коннектикут. Мы идентифицировали его из послушного источника.
Возможно, вам придется зарегистрироваться, прежде чем вы сможете публиковать сообщения: нажмите на ссылку регистрации вверху справа, чтобы продолжить. Включая следующее: Полностью обновленный интерьер и кабина с логотипами сигаретной фабрики.Панель переключателей под дерево Larson Boat с прикуривателем. Объявления. Посмотрите сами, как мы создали эти легенды. Португалия: Марки [Год: 1972] [1/5]. ASYA – вторая в рестайлинговом классе 47-метровых яхт, дизайн экстерьера которых разработан талантливо. Сигарета 36 1972 года для продажи указана на Repodirect. Newport (1979) Технический паспорт бывших в употреблении катеров для продажи. рынок. Размеры: 50 футов x 13 футов 6 дюймов. Год: 1972. Модель: морозильная тележка, ярусолов. Двигатель: 180 л.с. D333 Caterpillar Diesel. Внутренний корпус: стальная 50-футовая стальная морозильная тележка / ярусолов с последними обновлениями (2019/2020).Эта таблица спецификаций предназначена в основном для старых лодок Boston Whaler. Затем право собственности было передано Джею Синьору, владельцу гоночной серии IROC.
Один из трех, выпущенных в 1972 году, корпус, возможно, не был построен для продажи, поскольку у него нет HIN, но серийный номер двигателя был указан в купчей. Легко разгоняется до 80 миль в час. Легко разгоняется до 80 миль в час. Роджер Хэнкс участвовал в гонках на ней в начале 1970-х. ; Каждый дизайн Cigarette Racing может быть любой ширины и измеряется СЛЕВА НАПРАВО. Оффшорный винтаж.сигарета — это торговая марка. Адам (1977) # | » через | купить на ебее. Команда Cigarette Racing Team станет официальным спонсором знаменитого чемпионата мира по гонкам на моторных лодках, который пройдет с 7 по 14 ноября 2021 года в Ки-Уэст, Флорида. Все фотографы, даже те, у кого были разные 39-футовые гоночные лодки Cigarette Long Shot и 37-футовые. В) Вы проверяете канадские лодки? да. 75 центов при первом распределении, продаже или использовании внутри штата каждых 100 фунтов или части 100 фунтов цемента Налог на сигары и табачные изделия Морское судно SF23 1972 года 45 500 долларов (округ Кейп-Корал-Ли) pic скрыть эту публикацию восстановить восстановить эту публикацию.
1972 Донци с установкой струйного насоса Big Block / Berkeley. Кобленц, Аллемань. Этот высокопроизводительный гидроцикл имеет прочный гоночный корпус, и в 2015 году владелец провел множество модернизаций, чтобы восстановить эту гоночную машину для использования в воде. 86. USS Hanson (DD/DDR-832) — эсминец класса Gearing ВМС США, названный в честь старшего лейтенанта Роберта М. Совера и Бато. 9:05 1972 SwitzerCraft 17SS с прицепом 500 долларов. Даты с пометкой «1997*» следует интерпретировать как «до 1997 г. и, возможно, после», поскольку период с 1997 г. по настоящее время не был тщательно исследован.8 м в длину и 4,23 м в ширину. Эта бывшая в употреблении Cigarette 36 была построена в 1972 году. По данным New York Times, в 1970 году лодка Snark превзошла все остальные парусники. S. Примерно 42 часа с момента полной переборки моторов Ричи Зулом. Можно ли перестроить 292 для большей производительности? Я хочу сохранить лодку в оригинальном и «старом стиле». 331 546 фунтов стерлингов. 1972 Cigarette boat 28′ open 1 из 1 **Без резерва!!** Марка: Cigarette Год: 1972 Место: Бэйсайд, Нью-Йорк, США.
Jongert Styled Custom Yacht 2003 £ 640 000.История реставрации оригинальной Formula 233 The Cigarette может навсегда изменить представление о коллекционировании исторических лодок. Для тех, которые были произведены между 1960 и 2020 годами, вам нужно будет проверить как NADA, так и BUCValu. Высокая производительность. Двигатели и приводы были недавно обслужены. добавить в избранное этот пост 12 декабря. В Италии игрок и профессор поэзии Даниэле Доминичи прибывает в приморский город Римини и нанимается преподавать в средней школе в течение четырех месяцев, заменив другого учителя.155. Лодки на продажу. CIGARETTE 41 SD 2200 л.с. 90 узлов Мировой рекорд Лодка с двойным турбодвигателем 1100 л.с. Mercury Racing с двумя турбодвигателями Максимальная скорость 104 миль в час — 90 узлов MPN является независимым мультибрендовым дилерским центром, специализирующимся на американских лодках и яхтах 31 фут (9,4 дюйма) — Carbon Fiber Dash, включая сигаретную фабрику. Углеродные датчики Livorsi с логотипами сигарет.
Я добавил 3500. Для тех, которые были произведены до 1975 года, вам необходимо проверить BUCValu. Недавно добавленные Последние 30 дней Список последних 90 дней Список до 10 000 долларов США Список от 10 000 до 25 000 долларов Список от 25 000 до 50 000 долларов Список от 50 000 до 100 000 долларов Список на сумму более 100 000 долларов… 24-футовая сигарета 1972 года. В поисках максимальной скорости лодки, когда она была новой, с двумя рядными 6-цилиндровыми двигателями мощностью 165 л.с.По требованию Vendeur Marine-Partner-Network GmbH & Co. Лодка хранится круглый год в сухом помещении, лодка всегда хранится внутри. 74 500 долларов. Восстановлен и готов к работе!! Тони Н Дениз Гаррисон Дрю Шорт и Клейтон Дженкинс. Сигарета 39 Top Gun 1400 л.с. M6. Электрический холодильник с безалкогольными напитками и вином. Ньюпорт-Бич, Калифорния. Re: Идентификация модели Starcraft. Рик В. Проверьте на предмет повреждений, нанесенных штормом, несчастных случаев, потерь, краж, истории регистрации и многого другого.
Эта 28-футовая сигарета SS 1972 года является классикой гонок и, безусловно, редкой находкой.6 Cigarette Ajac Hawk, оба делят 8-футовую ширину, соревнуются в начале гонки в Тихом океане с Бетти Кук на ее 38-футовом скарабее, KAAMA и Чарли Маккарти на его 38-футовой лодке-банане, Top Banana. Эти обнаженные тела. Сохраняя наш процесс в доме, мы сокращаем дополнительные расходы, которые часто несут другие благотворительные организации. Томас Перссон: Какова была критическая реакция, когда сериал «Сигареты» был показан в Музее современного искусства в 1975 году? Мария Моррис Хэмбург: Критической реакцией были удивление, скука и недоумение.Новая оснастка. Нажмите на подчеркнутый текст или фотографии для получения дополнительной информации и фотографий — Последнее обновление: 25.10.21 Поиск подержанной лодки на продажу по цене от 100 000 до 200 000 долларов, которая соответствует вашим потребностям, когда речь идет о количестве пассажиров, лошадиных силах, внутренних помещениях и т. д. функции на борту могут быть проблемой с таким количеством опций, доступных сегодня на рынке.
37, Нью-Йорк, 1972. Проживает в Цинциннати как минимум последние 20 лет. €35. Скачать Поделиться. Сегодня 24 Outlaw, 27 Outlaw и 36 Outlaw превращают мечтателей в фанатичных владельцев.… Немецкие марки Второй мировой войны Почтовые открытки Сигаретные карточки 1939 1945-х 76, бывшие в употреблении антиквариат, коллекционные памятные вещи для продажи в Гласневине, Дублин, Ирландия за 5. Buick Riviera Boattail (1972) Автомобильный прицеп для лодки. Петербург, 972 36′ Сигарета. Лодка была полностью переделана несколько лет назад, вся лодка окрашена изнутри и снаружи жемчужно-светло-серой краской и прозрачным лаком. Я не монетизирую эти видео, но если вы хотите поддержать этот канал, воспользуйтесь ссылкой ниже перед покупкой на Amazon. Предварительный просмотр / Показать больше PERFORMANCE MINI POWER BOAT.Береговая охрана была обязана предложить правила безопасной постройки лодок. Просмотрите этот экспресс и другие лодки POWER для продажи в BoatBrowser от United Marine Underwriters Cigarette — 1972 Cigarette Racing Team 20 ft.
У меня есть Cigarette 1972 24 ‘с двойным рядным 6-цилиндровым двигателем 292 CID (оригинальные двигатели были 250 cid). Подробности. Цена Cigarette 36 в каталоге 2Yachts от 34 244€ в США. Klikkaa tästä kuvat ja lisätiedot. Информация обо всех подержанных лодках на продажу с фотографиями и характеристиками.Сегодня картотека корпуса Криса Крафта находится в Морском музее в Ньюпорт-Ньюс, штат Вирджиния, где вы можете заказать копию карты для любой лодки. …. Р. У нас есть лодка по цене, подходящей для быстрой продажи. Вот ТОП-5 видео с очень большими и мощными двигателями на некоторых довольно маленьких скоростных катерах. В наличии только 1. Эй мингеид бронеэримистасусид. Состояние: б/у 1972 Pall Mall Cigarette Ad Gold 100’s Yes Еще дольше… Блондинка 1972 года и сигаретная фабрика. Просмотрите моторные лодки или разместите БЕСПЛАТНУЮ рекламу сегодня на Vivaboats.33 000 долларов. что-то с кабиной, головой и некоторыми другими удобствами. выставлена на продажу эта сигарета 1972 года, 36 футов, широкофюзеляжная, это была гоночная лодка Kiekhaefer Aeromarine i с тоннами истории и рекордами чемпионатов.
335 СИГАРЕТА Verkäufer 59 TIRRANNA МАКСИМАЛЬНАЯ СКОРОСТЬ 72 УЗЛА MPN — это независимый мультибрендовый дилерский центр, предлагающий лучшие товары для плавания. Быстрый и манёвренный, он делает повороты, а затем строит и оценивает. Она является проданным корпусом. Эта черная сигарета была куплена новой у самого Дона Аронова на бот-шоу в Нью-Йорке в 1971 году, когда лодка дебютировала, и прожила в Нью-Йорке всю свою жизнь.€176. Похожие видео. Продано 1972 г. Son Of A Gun n/a. KG 17 BRIS 12-футовая надувная лодка с троллинговым мотором. Корпус вроде крепкий. Все наклейки Cigarette Racing изготавливаются НА ЗАКАЗ в соответствии с вашими требованиями по размеру и цвету. Nobenih stroškov rezervacije. 21 900 000 евро. новая электроника и новый двигатель от Стива из Progressive Racing. построенные лодки. Найдите наш полный ассортимент бывших в употреблении сигарет Cigarette Racing на сайте www. Эта 36-футовая сигарета 1972 года участвовала в гонках, двигатели отремонтированы и готовы к установке.
Наборы лодочных датчиков, комбинации приборов и приборные панели: бывшие в употреблении детали лодок от Green Bay Prop. Приводы работают нормально, просто нужно покрасить. ; Белый цвет на изображении — это просто фоновый цвет. Моторные лодки по длине. Недавние отгрузки включают: 1972 Cigarette 28 Open, отправленная из Виндхема, Нью-Гэмпшир, в Рокуолл, Техас CIGARETTE Huntress для продажи, Соединенные Штаты Америки. Теперь библиотека доступна яхтсменам по всему миру. 2009 Сигарета 36 Гладиатор. Тем не менее, при покупке лодки на аукционе спасательных лодок можно хорошо заключить сделку, если помнить следующее: Степень повреждения.Катамаран Лодка. Верх кабины был поднят, чтобы обеспечить 6-футовое пространство над головой. Подержанные электромобили Cigarette Racing на продажу со всего мира. построен в 1972 году с сигаретной капсулой 35. 67252. Продажа быстроходных катеров, номер 56546. Бортовые средства. Как мафия владела и в конце концов убила короля сигаретных лодок Дональда Аронова · получить копию · отзывы друзей · вопросы и ответы читателей · списки с этой книгой.
1996 Сигаретный топ-ган. eBay 14.10 — 11:04 Нью-Йорк, Нью-Йорк Сигаретная лодка 28 футов, открытая 1 из 1 **Без резерва Сигарета 42 Tiger.Номер должен состоять из 12 символов и располагаться таким образом, чтобы отображать код производителя, заводской номер и дату производства или год выпуска модели. Сигарета 36 1972 года Сигарета 36 1972 года. 195 ID. (Экономия топлива составляет 1 галлон в час при движении на автомобиле. Все типы подержанных лодок, включая парусные, моторные, байдарки и яхты, продаваемые профессионалами и частными лицами. com View Detail. HIN идентифицирует производителя и дату изготовления лодки. 1986 CIGARETTE 24 Firefox Это одна из 8 лодок FireFox Cigarette, когда-либо созданных для того, чтобы построить эту лодку по цене такой же, как 32-футовый катер с кабиной.2018 35-футовая заявленная центральная консоль / Fishing Bo. Северный Майами, Флорида. Сообщается, что эта 28-футовая морская лодка Cigarette 1972 года была куплена новой гонщиком Марком Донохью, который в том же году выиграл Indianapolis 500.
Реклама табака/сигарет 1970-х годов. Эта ультраредкая капсула времени является одной из первых в своем роде и сохраняет свои оригинальные цвета команды Cigarette Racing почти 40 лет. Говорят, что Донохью участвовал в гонках на лодке с Роджером Пенске, прежде чем продать ее в 1975 году президенту и генеральному директору IROC Джею Синьору, который в конечном итоге продал лодку вице-президенту IROC Крису Скафарио в 1994 году.30 000 долларов. Вот несколько фотографий сигаретных капсул с самым высоким рейтингом в Интернете. Сигарета. Второй краткий обзор его ягодиц, когда он закрывает дверь, чтобы одеться. Наши чехлы обеспечивают превосходную защиту и рассчитаны на длительный срок службы. Минимальная длина окуня начинается с 16 футов и может достигать 26 футов. Найдите нужное руководство по эксплуатации морского оборудования на сайте ManualsOnline. 2015. Запрос. 66 320 фунтов стерлингов. Ожидается продажа. В юности Галло поставили диагноз 1970 — Лодки на продажу в районе Сарасоты (+100 миль): 1970 Boston Whaler GLS Sport в Неаполе, 1970 Morgan Mark 1 в Тампе, 1970 Merritt Listings 1441 — 1455 из общего числа 1933 моторных лодок на продажу от 26 футов до 40 футов в Соединенных Штатах.
Недорогие яхты и моторные лодки для морских прогулок в компании друзей и комфортного семейного отдыха. Эта 28-футовая модель Cigarette SS 1972 года выпуска — классика гонок и, безусловно, редкая находка. Сравните стоимость с яхтами аналогичного класса и выберите наиболее подходящее предложение. Скарабей 195, созданный, чтобы нарушить отраслевые стандарты веселья, был создан, чтобы утолить жажду адреналина. Levoy Drive, Suite 100 Taylorsville, UT 84123 1-800-869-1686 001-801-571-0071 (за пределами США. В настоящее время она принадлежит опытному и знающему яхтсмену, который ранее владел сигаретой 1972 года.Позвоните Скотту для получения дополнительной информации 914-760-9028. Фрипорт, Нью-Йорк, США. Продажа лодок в США Когда вы покупаете лодки в Интернете, Boat Export USA — международная компания по экспорту лодок, отображает более 30 000 лодок, выставленных на продажу владельцами, и списки лодок на продажу из США, американских подержанных лодок, выставленные на продажу владельцами из Флориды.
ВЫ ВЛЮБИТЕСЬ В НЕГО С ПЕРВОГО ВЗГЛЯДА! ДОСТУПНАЯ ПРОДАЖА ПО ЦЕНЕ 4995$. Имеет некоторые компоненты, которые можно было бы переделать для переустановки на нее. Массачусетс. Найдите дилеров сигаретных лодок и найдите свою лодку в Boat Trader! 2 из 2 страниц.Отличные стили, мощная мощность и вместимость пяти человек делают эту реактивную лодку Build & Price Explore. Это требуется по федеральному закону и должно быть указано в заявлении на регистрацию. История лодки влияет на ее стоимость — узнайте историю этой Cigarette Racing Team Inc. 1972 года и не покупайте ранее поврежденную лодку. Лежаки для загара на носу и корме. Jeanneau Sun Odyssey 490 2022 £430 885. Вы найдете его в Lee (florida) (Флорида, США). Корпус основан на 38 Cigarette Top Gun.новая Сигарета — Лодки на продажу в районе Форт-Майерс (+50 миль): 1972 Сигарета 36 в Кейп-Корал, Сигарета 36 в Кейп-Корал, 36-футовый Искатель Сигарет. Хэнсон , Корпус морской пехоты США, боевая эскадрилья морской пехоты Две пятнадцать, пятикратный ас, посмертно награжденный Почетной медалью.
Сравните стоимость транспортных средств в Буффало, штат Нью-Йорк. Поиск 1972 columbia цены — более 302 объявлений — viviendo el sueno loa 47 футов 0 в ширине 16 футов 0 в максимальной осадке 4 фута 9 в просвете моста 17 футов 0 в общей мощности 700 л.с. двигатель 1 марка двигателя Детройт модель двигателя 8v71n тип двигателя бортовой моторное топливо — Страница 3 — Waa2 Cigarette — Лодки на продажу в районе Сарасота (+250 миль): 2000 Cigarette 42 Tiger в Майами, 2015 Cigarette 42 Huntress в Майами-Бич, сравните несколько предложений по доставке моторных лодок на uShip.Pop Yachts продает более 1700 лодок в год благодаря устным отзывам, рекомендациям клиентов и хорошему обслуживанию клиентов. 1970 — Лодки на продажу в районе Сарасоты (+100 миль): 1970 Boston Whaler GLS Sport в Неаполе, 1970 Morgan Mark 1 в Тампе, 1970 Merrit Speed Boat 31 Foot IMP Cigarette Boat с двумя подвесными двигателями мощностью 250 л.с. Марка: IMP Год: 1999 Местоположение : Алтон, Иллинойс, США. — ми. Мехр. 21 000 долларов.
Мерлин Марин. На что следует обратить внимание, прежде чем покупать разбитую лодку. Согласно Федеральному закону о безопасности судов береговой охраны от 1971 года, лодки длиной менее 20 футов с внутренним, подвесным или кормовым двигателем, изготовленные после 1 ноября 1972 года, должны иметь табличку грузоподъемности, определяющую безопасные пределы нагрузки.В кабине нужен новый пол. 40′ Monza Марка: Cigarette Модель: 1987 1972 Cigarette 28 Моторная лодка для продажи в Неаполе, Флорида. 1972 г., о котором я сказал, может быть 10 из 3 лодок, фактически изготовленных в 1971 г., но на табличке HIN он указан как 72-й. 12 500 долларов. Это высокопроизводительная моторная лодка 1972 года в Кейп-Корал, штат Флорида, размещенная на Oodle Classifieds. 129 950 долларов. Сохранять. Модель. Центральная консоль Lazer 38 2006 года. Эта 36-футовая сигарета 1972 года участвовала в гонках и 40-65 л.с. с 13 зубьями 1972-1976 годов. Palju saadaval olevaid tube ja väga head hinnad.1973 Taperflex of America, реклама водных лыж — фото Рика Маккормика 1972 Evinrude Triumph 65 HP Hull основан на 38 Cigarette Top Gun.
6 комментариев 2 акции. УЗНАЙТЕ СЕЙЧАС. Северный Майами, Флорида, Эстадос Унидос. 4 мая 2009 г. Бабье лето: режиссер Валерио Зурлини. 159 000 долларов. Посмотрите фотографии и детали этой лодки или найдите другие лодки Riant для продажи на лодках. 14 950 долларов. Особенности: Лодка б/у Cigarette 41 STERN DRIVE, 13. 16835 . Сигарета стоимостью 25 791 фунтов стерлингов. Такие детали, как ведущая нога, двигатель, радиоуправляемые блоки, сервоприводы и т. д., дороги, поэтому затраты намного превышают стоимость материалов для изготовления корпуса.Моторные лодки по годам. 2022 Пользовательский проект Артемида. 98 метров в длину, 1982 год. Ежегодный Vintage Weekend в роскошном клубе Ocean Reef Club в Key Largo представляет собой собрание впечатляюще отреставрированных лодок, автомобилей и самолетов. Избранное это … Марк Донохью Сигарета Год 1972 Марка Cigarette Racing Team Модель OS Racer Цвет Черный Пакеты Заводская гоночная установка История 1972 28 ‘Cigarette OS- #66 Вышедший на пенсию гонщик производственного класса. Я уже несколько раз плавал по водным путям и по реке Кейп-Фир, и вы не можете превзойти ее для гладкой алюминиевой лодки-джон.36 ‘Hours Trouvez плюс информация и изображения о бато и контактах с продавцами или запросами о продаже бато в Boatshop24. 2017. Свяжитесь с Pop Yachts сегодня, опишите идеальную лодку STOCK BOAT — ВАША ВОЗМОЖНОСТЬ ПРИОБРЕТАТЬ ЭТУ ЛЕГЕНДАРНУЮ СКОРОСТНУЮ ЛОДКУ — 1994 Cigarette 38 Top Gun — fit Подробнее. Чтобы начать просмотр сообщений, выберите форум, который вы хотите посетить, из списка ниже. Мне сказали, что это было сделано из-за правительства. Если номер находится на отдельной табличке, эта табличка должна быть закреплена таким образом, чтобы ее снятие обычно вызывало некоторое царапание или повреждение <координатной точки ='-1.Информация о размерах и производстве. Зная экономию топлива лодки — сколько топлива сжигает лодка на милю или морскую милю пути, — водители могут оценить дальность плавания, на которую они могут безопасно рассчитывать. С 1972 года все лодки, произведенные или импортированные в Соединенные Штаты, имеют постоянную маркировку с идентификационным номером корпуса или HIN. Используйте отчет об истории лодки, чтобы проверить наличие аварий, ураганов, спасенных, экологических залогов, пожаров, затоплений, конфискаций, гарантии и отзывов. Некоторые яхтсмены доходят до того, что разрабатывают для своей лодки график расхода топлива.Команда Cigarette Racing Team, синоним мощных роскошных моторных лодок, приобрела нового владельца с большими планами по развитию компании и будущему лодочных гонок по всему миру. активные фильтры: Сигарета. Состояние Продавец советует два двигателя готовы к установке, Транс и выхлоп в комплекте. 85625 -4. Идентификационный номер корпуса (HIN) на всех лодках, построенных после 1 ноября 1972 г., постоянно нанесен на заднюю часть транца, обычно в правом верхнем углу. 28-футовая открытая конфигурация.На мисс Миллс очень короткий халат. Сигарета 1972 года № 36 № 237209 - эта 36-футовая сигарета 1972 года участвовала в гонках, двигатели были отремонтированы и готовы к установке. Район Санкт-Петербурга (+100 миль): 1972 Cigarette 36 in Cape Coral, Cigarette 36 in Cape Coral, Cigarette Cigarette - Лодки на продажу: 1972 Cigarette 36 in Cape Coral, 1972 36 Cigarette 36 in Cape Coral, 1996 Cigarette Top Gun в Санкт-Петербурге. Твердая, как в тот день, когда она выскочила из формы, она красивая лодка, которая … #237209 - 972 36' Сигарета.€105. 1999 г. Cigarette 38 Top Gun с двумя двигателями Mercury Racing HP600SC, 12 часов на левом борту, 575 по правому борту. Единственная в своем роде невероятная центральная консоль с великолепным двигателем. Широкий выбор цветов и тканей для любого климата. 95 Просмотр сведений. Его отношения с его партнершей Моникой находятся в кризисе, и он проводит большую часть времени со своей… Постройка приличной 6-футовой лодки может обойтись вам в 1000 долларов. 2006. Cigarette Racing Team и RWO заключают пятилетнее соглашение о спонсорстве Offshore Racing Series.Кроме того, 41GTZ теперь оснащен первой в мире жесткой крышей SkyView. Если вы ищете сигаретный центр Consoule, эта лодка для вас. … 1972 г. 28-футовая подержанная высокопроизводительная лодка Cigarette 28 SS на продажу - 33 000 долларов США - Неаполь, Флорида. Предложено: Pop Yachts. Басовые лодки имеют низкий, гладкий профиль и предназначены для ловли рыбы с двумя или тремя рыболовами на борту. 49998 -. Категории. Найдите продажу лодок в Интернете, мы предоставим информацию, договоримся о цене продажи лодки в США, закажите отчет о проверке или обзоре покупки лодки, ходовые испытания, проверьте залоговые права, … Triton Boats.В дополнение к этим значениям из синей книги также рекомендуется просмотреть объявление в рубрике U. Пожалуйста, уточните цену и характеристики у продавца … Лодки для сигарет на продажу у дилеров, брокеров и частных продавцов лодок - Страница 1 из 1 Найдите много отличных новые и подержанные варианты и получите лучшие предложения на 1972 Salem Cigarette Ad Ad Couple Playing Splashing in Stream по лучшим онлайн-ценам на eBay! Бесплатная доставка многих товаров! 1963 Салемская реклама сигарет Пара в пристани для рыбацких лодок … 20-футовая сигаретная лодка $ 25 000 (округ Кейп-Корал-Ли) скрыть эту публикацию восстановить восстановить эту публикацию.Все эти современные гоночные лодки имеют одинаковую конструкцию с 8-футовой балкой, это то, что работало на высокой скорости… 31 фут (9, и я только что закончил ее восстановление. 661 Vendedor Pop Yachts 48. Эта лодка оснащена судовым двигателем Hawk 500. и имеет предварительную смазку двигателя, так как новый двигатель 296 часов, Kiekaeffer литые колодки, привод и трансмиссия перестроены в 2011 году, все новые датчики в 2008 году вместе с новой обивкой для всех сидений. , Сигарета 36 в Кейп-Корал, 1972 Сигарета 36 в Кейп-Корал, Сигарета 36 для продажи в Кейп-Корал Итальянская легенда Карло Боними в начале 1970-х годов, кульминацией которого стали два подряд чемпионата мира в 1973 и 1974 годах, а также престижный турнир Cowes Torquay в том же году.Начало 2000-х. ком! Marlboro является одной из самых известных торговых марок среди всех потребительских товаров и с 1972 года является международным брендом сигарет номер один в мире. . 35 000 долларов. 40–140 л.с., 15 зубьев, 4 1/4 дюйма, корпус. 66428 -5. На него можно купить много бензина. Подробная информация о рекламе старых золотых сигарет 1972 года. Убегайте от лодочного озера Crowd Man. your Boat.com от дилеров, владельцев и брокеров.Дональд Джоэл Аронов (3 марта 1927 - 3 февраля 1987) был американским дизайнером, строителем и гонщиком знаменитых скоростных катеров Cigarette, Donzi и Formula. Лодки Baja Outlaw по-прежнему поворачивают головы на воде. Лодка родом из Кейп-Код, Массачусетс, и более 10 лет использовалась в заливе Баззардс, известном своим юго-западным ветром и чопом. Патрульный катер береговой охраны [CAD] Шлюпбалка и надувная лодка [CAD] KOMOREBI 148 '/ 45 м Новый подход к яхтингу Эта единственная в своем роде яхта, которая вам понравится. Нравится Комментарий Поделиться. Покупка разбитой лодки полна риска." Hustler. Мой - 14 футов 1973 года. 23 мая · Еще от Parker Rabe 1972 Blonde & and Cigarette Factory. точно так же, как Donzi, Nor-Tech, Fountain, wellcraft, MTI, hustler и куча брендов с более низкими названиями, которые я лично бы посмотрел на лодке с центральной консолью и подвесными двигателями. Эта мысль пришла мне в голову, но я не знаю многих людей или владельцев доков, которые хотели бы, чтобы я возился с их лодкой-сигаретой за 250-500 тысяч долларов с рулеткой. 154 фута 2 фута. 41721 - 5. 1515. Пожалуйста, тщательно сравните свои модели перед заказом.Событие 1988 сигарета 31 пуля - hérault 34 annonces du bateau. В 2005 году табаку больше не разрешалось рекламировать гоночные автомобили F1, поэтому Marlboro перешла на дизайн штрих-кода. 55319 . ГАЗОВАЯ ИЛИ ЭЛЕКТРИЧЕСКАЯ, А ТЕПЕРЬ СОЛНЕЧНАЯ ЭНЕРГЕТИКА. Бесплатная доставка и скидка 40% и более на iboats. 18129 -1. Неаполь, Флорида. Внешние места для 9 гостей под навесом. Бристоль, Род-Айленд. К сожалению, из-за отсутствия использования и внимания, которого она заслуживает, я продаю свою сигарету 1972 года. €106. €101 490. Новые качественные чехлы для вашей лодки Cigarette Racing Team.Морские руководства и бесплатные инструкции в формате PDF. Легко разгоняется до 80 миль в час. Сообщается, что эта прибрежная 28-футовая лодка Cigarette 1972 года была куплена новой гонщиком Марком Донохью, который в том же году выиграл Indianapolis 500. Спасите эту лодку. Северный Майами, Флорида, США. Проект Artemis — это дальнобойная яхта, способная совершить кругосветное плавание, с современным внешним видом, но m. Музыка через блютуз. Бренд. Мэтьюс, Северная Каролина 28104. Лодки Гидроциклы Автомобили Внедорожники Грузовики Фургоны Жилые автофургоны Мотоциклы Вездеходы Снегоходы Подержанные автомобили Прицепы Автозапчасти Деньги и имущество Пенсии Недвижимость Самолеты Запчасти для самолетов.№ 237209 - Сигарета 972 36'. Я также не знал, что название «Сигарета» было фактическим производителем лодок. Эта 36-футовая сигарета 1972 года участвовала в гонках, двигатели отремонтированы и готовы к установке. Угодное место в разпожливости. В законе говорится, что «производитель прогулочных судов» — это «лицо, занимающееся производством, сборкой или импортом прогулочных судов, компонентов или… В карточках корпуса указаны название модели, номер корпуса, цвет обивки, двигатель, размер винта, отгрузка. дату и многие другие детали.История автомобиля и отзывы о 1972 Cigarette 28 ′ Off Shore Speed Boat Mark Donohue, включая цены продажи, фотографии и многое другое. 99 футов в длину и продается за 44 500 долларов. €597. Начиная с: Сейчас: 33 доллара. . Лодка АТС. Клуб коллекционеров Colnect изменит ваш опыт коллекционирования! Подробнее. 1 час назад 1972 Cigarette 28 Моторная лодка на продажу в Неаполе, Флорида. Комментарии к записи: No Reserve: Ex-Mark Donohue 1972 Cigarette 28′ Off-Shore Boat Очень хорошо куплена и стоит на 23 тысячи меньше, чем я видел в рекламе лодки.Основатели продали компанию в 1960 году, но Крис-Крафт продолжал строить деревянные лодки до 1972 года. Год: 1999 Мощность: Твин 500 л.с. (каждая) Местонахождение: Коннектикут Контактный телефон Большой выбор опций и лучшие ценовые предложения на Сигарету 36 от владельца судно. Расчет расхода топлива лодки оказывается важным для яхтсменов по ряду причин. БЫСТРОЕ СТЕКЛО ОТ ЛОГОБОАТС. От 54 985 долларов. 72181 1. Капитан катера. Узнать подробности. т.е. HIN расположены на корме лодки, обычно по правому борту. Лодки комплекта - это лодки, построенные на заднем дворе, но производители комплектов лодок по-прежнему подчиняются правилам.2015 Хизен 47м. Описание № 237209 - Эта 36-футовая сигарета 1972 года участвовала в гонках, двигатели отремонтированы и готовы к установке. Поп-яхты. Свяжитесь с Робертом по телефону 810-748-3600 в Коттреллвилле, штат Мичиган, и спросите о своем проекте сегодня. Курительная Куртка. Новое объявление Новая лодка. закончил кокпит и каюту 31 день назад на Boatshop24. Сигарета 36 1972 - 35. лодка не имеет трансмиссии. В продажу включены следующие предметы, которые поставляются с лодкой: люки двигателя, ветровое стекло, боковые сиденья, стрингеры из красного дерева, обрезанные по размеру, готовые к установке, оригинальное гоночное топливо … 1972 Cigarette 28 «Открыть»Красивая и вневременная лодка с чрезвычайно интересной историей.В то время как поврежденная деревянная лодка требует дорогостоящей и сложной работы, стеклопластиковую обычно можно отремонтировать с помощью всего нескольких материалов даже людьми, обладающими лишь базовыми знаниями и навыками. 1800 | 1870 | 1880 Адам (1972) # | » через | купить на ебее. Сигарета 36 1972 года. 11 000 долларов. вступившие в силу положения. Найдите лодки для продажи рядом с вами, включая цены на лодки, фотографии и многое другое. Broneeri internetis, maxa hotellis. Добавьте свое разрешение или лицензию на судно, которое готово к ловле рыбы с включенным троллинговым снаряжением и колками Easthope.122. Нам платят, только если мы приведем вам покупателя. Verkäufer Marine-Partner-Network GmbH … Сигаретные логотипы лодок Пожалуйста, отправьте письмо по электронной почте для нестандартных размеров, цветов и цен: Citation Логотипы лодок Пожалуйста, отправьте электронное письмо для нестандартных размеров, цветов и цен: Citation 80s Логотипы лодок Пожалуйста, отправьте электронное письмо для нестандартных размеров, цветов и цен: Citation 80s Логотипы лодок в стиле 2. Пожалуйста, отправьте письмо по электронной почте для индивидуального размера, винтажной рекламы табака / сигарет 1970-х годов. 00. На фото: обнаженные пляжные фотографии Джеки О, которые вызвали глобальную бурю в СМИ в 1972 году после того, как ее собственный МУЖ Аристотель Онассис предупредил фотографов во время четырехлетней клеветнической кампании.Если в цене нет пометки «Отплыть», цена может не включать дополнительные расходы, такие как гербовый сбор и другие государственные сборы. Есть много типов лодок, доступных по цене от 100 до 200 тысяч долларов, таких как Horsley v MacLaren с центральной консолью, [1972] S. Есть ли на Среднем Западе завод по ремонту двигателей для меркруйсеров? лодка находится на озере Озарк в центральной части Миссури. В подержанных моторных лодках, лодках сигаретной марки. 139 900 долларов. Мы согласны с тем, что такая графика с сигаретными капсулами может быть самой популярной темой, которую мы разместили в Google или Facebook.Но. 17. 25 процентов от продажи облагаемой налогом лодки или лодочного мотора 15 долларов за каждую лодку или лодочный мотор, ввезенных в штат новым резидентом Налог на производство цемента 2 . добавить в избранное этот пост 20 января 20’ сигаретная лодка $25,000 (округ Кейп-Корал-Ли ) скрыть этот пост восстановить восстановить этот пост. Прежде чем покупать какую-либо дешевую спасательную лодку, постарайтесь узнать тип повреждения лодки и насколько оно серьезно. 2000. Розетка прикуривателя для морской лодки 12 В / 24 В, многофункциональная водонепроницаемая автомобильная панель с двумя розетками 2 в 1, набор для сборки грузовика, мотоцикла, скутера RV от ZHSMS 4.Текущий CSI, включая ультразвуковые тесты и мегомметр. 2020-02-05 18:55:41 Сигарета 41 GTR. Просмотрите подержанную лодку на продажу и последние продажи. Свяжитесь с нами по телефону 810-748-3600 в Коттреллвилле, штат Мичиган, чтобы изучить наш невероятный выбор судовых запчастей и судовых двигателей для классических лодок. Когда дело доходит до лодок, есть пара бесплатных веб-сайтов, которые вы можете использовать для оценки лодки. Будь то практические советы по обустройству дома своими руками, гаджеты и цифровые технологии, информация о новейших автомобилях или последних достижениях науки — PM — это лучший путеводитель по нашему высокотехнологичному образу жизни.Классическая сборка, известная своей скоростью и надежной управляемостью. Его представили надзору в лучшем поле. Ракетный катер класса «Ас-Сиддик». Guest625101138, 28 апреля 2008 г. Предложения и заказы принимаются только через онлайн-формы. ; умер в сентябре. Это лодка с одним владельцем, которая хранится внутри с момента создания. Сигарета - Продажа лодок в Сент-Луисе. Идентификационные номера лодок. Моточасы не проверены. Двухцветный навигационный фонарь Attwood Этот двухцветный навигационный фонарь Attwood изготовлен из анодированного алюминия, который приподнимает головку фонаря для видимости над троллинговым двигателем, якорем или другим оборудованием на носу.517. Двигатели имеют очень мало часов работы, около 40 с 2003 года. Четырехтактный двигатель Mercury мощностью 40 л.с., троллинговый двигатель, полная комплектация Опубликовано 9 дней назад. Просмотрите результаты поиска 1972 chevy 4x4 Катера, яхты и запчасти для продажи в Оберн, Вашингтон. - Стоковая # 237209 - 972 36 'Сигарета. Эта лодка была куплена в 2000 году, чтобы получить такой же корпус, как у лодки 1972 года, но сделанный специально для двигателей V-8. Эта сигарета 42’ Huntress 2014 года оснащена квадроциклами Mercury Verado 300 и имеет возможность:10 футов. S. Jeanneau Prestige 550 Fly 2014 €575 000. 719 -4. Канны, Франция. Мечтатель. Цветная реклама Silverline Aruba GTV Jetboat 1973 года. Посетите BoatersNet, чтобы просмотреть это и другие моторные лодки Cigarette Power, выставленные на продажу брокером, а также другие моторные лодки, выставленные на продажу во Флориде, или разместите бесплатное объявление о продаже собственной лодки. Большой… «Начни заново с Белэр. Модель 233 выиграла несколько оффшорных гонок, а Аронов основал Cigarette, Magnum, Donzi и USA Racing. Macatawa Bay Boat Works - Брокерские услуги.0754 1. GB617228479 19 долларов. €105 614 Особый продавец. все предлагают лодки с подвесными двигателями Самая большая в мире коллекция брошюр о лодках С 1950-х годов Доусоны поддерживают растущую библиотеку из более чем 14 000 брошюр о лодках от североамериканских судостроителей, занимающих более 300 футов полки. Диана Бокко При работе с поверхностными повреждениями хорошо начать со шлифовки области. 28 сентября 1972 года в Оквилле, Онтарио. Эта табличка должна быть установлена так, чтобы вы могли ее видеть при подготовке к началу движения. Поддержка выставления счетов 1972 Сигарета 36.Ссылку можете посмотреть у меня в подписи. Моторные лодки по цене. 1970 - Лодки на продажу в районе Сарасоты (+100 миль): 1970 Boston Whaler GLS Sport в Неаполе, 1970 Morgan Mark 1 в Тампе, 1970 Merritt Listings 1441 - 1455 из общего числа 1933 моторных лодок на продажу от 26 футов до 40 футов в Соединенных Штатах. 147 473 фунтов стерлингов. Аронов был убит в 1987 году конкурирующим судостроителем. 99ft 1972. Моторные катера Cigarette на продажу в Массачусетсе (Моторные катера) | Вива Лодки. Это означает, что более высокий процент вашего пожертвования идет на помощь детям.Анталия, Турция. В июле 2021 года завершен ремонт этой пресноводной лодки в отличном состоянии за 90 000 долларов. 1973 Don Aronow World Cigarette Racing Boats Ad - рисунок и фотографии. В нем также указана длина лодки 20 футов, но на самом деле ее размеры меньше. Сигареты Benson & Hedges – смейтесь! В течение 18 месяцев в 1971 году более 48 000 человек покинули фабрику, в основном из-за кампании по доставке сигарет KOOL и матросов по почте. 1972 CIGARETTE 28’ ЕДИНСТВЕННАЯ ЛОДКА, ПОСТРОЕННАЯ ДЛЯ ВОДИТЕЛЯ F1 MARK DONOHUE A STEAL ЗА 16 000 ДОЛЛАРОВ.То же самое верно и для луча лодки; это среднее значение между самой широкой точкой и лучом в… Двухцветный навигационный фонарь Attwood. Год: 1972. Голубые огни внутри и под водой для поездки на закате. Leia Internetist hotelle huviväärsuse MRT-Bang Phlu lähedalt Tais. Спасибо за все просмотры! Найдите отчет об истории лодки в этом отчете об истории лодки и покупайте с уверенностью. 6-клавишный 5-контактный тумблерный переключатель Nilight с 12-24-вольтовым светодиодным цифровым вольтметром 3. Расположение Осейдж-Бич, Миссури.20802 . Найдите дополнительную информацию и изображения о лодке и свяжитесь с продавцом на Boatshop24. Лодки развивают огромную скорость и очень-очень громкие! #Speedboat Откройте для себя сигаретные моторные лодки (моторные лодки) в Иллинойсе, штат Иллинойс, на самом быстрорастущем в Америке сайте морских объявлений. Если нет, вы всегда можете связаться с производителем лодки, чтобы узнать об их ограничениях и рекомендациях для вашей конкретной модели лодки. Лодка Соотношение лошадиных сил и веса Подержанные моторные лодки лодки на продажу в Риме.В 2020 году объем продаж Marlboro за пределами США и Китая составил 233 миллиарда сигарет, что укрепило его лидирующие позиции в качестве сигаретного бренда номер один в мире, который продается более чем на 170 рынках. HURRICANE 2400 MID CABIN/DECK BOAT/200 YAMAHA/ВСЕ НОВЫЕ ХОЛСТЫ 10 500 долл. США Если у вас есть лодка, построенная до 1972 года, привезенная из-за границы или построенная в домашних условиях, у вас может не быть таблички грузоподъемности, но часто доступны руководства по эксплуатации лодки. онлайн. 49. Проект Artemis — дальнемагистральная яхта, способная совершить кругосветное плавание, с.Baja 252 Boss Large Boat [CAD] Бостонский китобойный корабль. Эти двое изо всех сил пытаются скрыть доказательства того, что они сделали, поскольку персонаж Леммона - женатый мужчина. Seacraft SF23 1972 года 45 500 долларов США (округ Кейп-Корал-Ли) фото скрыть эту публикацию восстановить восстановить эту публикацию. Все плановое техническое обслуживание было выполнено на двигателях Mercury с момента их выпуска. 00 красная плавательная платформа сзади. Длина: 11 м. ГАЗ ИЛИ ЭЛЕКТРИЧЕСТВО. К 1973 году их количество достигло 200 000+, а к 1976 году New York Times заявила, что компания построила больше парусных лодок. Сегодня мы представляем шестую и последнюю часть этой серии со словами о сигарете №1.Строитель. Доставка: USPS Другие товары от capt-dons-boat-ads. Сигарета - Лодки для продажи в Кейп-Корал, Флорида: 1972 Сигарета 36, Сигарета 36, Сигарета 36 для продажи, 1972 36 Сигарета 36 Сигарета - Лодки для продажи в Сент-Ричмонд, Вирджиния. 215 идент. 26 сентября 2021 г., Ванкувер, COVID-19; 49 лет Отъезд 36 1972 года постройки верфи Сигарет. Florida, IN 47874. com Подержанные высокопроизводительные катера на продажу / Местонахождение: Cape Coral, Florida Примечания: - Номер по каталогу 237209 - 972 36' Cigarette. «Эта реклама ментоловых сигарет Belair датируется 1970-72 гг., и в ней были показаны пары, курящие в окружении голубого неба над морем.00 Ø The Marque Ø Лодки Cigarette Racing были основаны в 1969 году Доном Ароновым, и на протяжении 1970-х годов Cigarette Racing стала ведущим брендом в этом виде спорта Ø Лодки Cigarette очень желанны и очень дороги Ø Лодка Ø Лодка имеет длину 28 футов и длину 35 футов. 1972 Westerly 26 Centaur $17 250 Олдерсон, Западная Вирджиния Год 1972 Марка Westerly Model 26 Centaur Категория Круизеры Длина 26 Опубликовано Сегодня Нынешний владелец приобрел лодку в 2000 году и начал 5-10-летний процесс восстановления лодки. Не рискуйте покупать подержанную лодку со скрытыми проблемами.альфа диски. Длина. В настоящее время Pop Yachts выставила на продажу 8 сигаретных лодок. Клуб коллекционеров Colnect изменит ваш опыт коллекционирования! Январь 1972 г.: февраль 1972 г.: март 1972 г.: апрель 1972 г.: май 1972 г.: июнь 1972 г.: Аллен американец Энди Кирк красивый Биотин Биотиновый раствор Черная Америка Черное преступление Черный на черной лодке Бойд Браун Бад Пауэлл Калифорнийский карьерный центр Чикагский сигаретный город Цвет гражданских прав Компания Конгресса Черный Coucus cook Купон на косметику Dance Dave Parker Dept East St EBONY Popular Mechanics вдохновляет, инструктирует и влияет на читателей, помогая им освоить современный мир.МОТОРНЫЙ МИНИ-КАТЕР P-10 LOGOBOAT PERFORMANCE — САМАЯ БЫСТРАЯ ЛОДКА ДЛЯ СВОИХ РАЗМЕРОВ… 1 ноября 1972 года федеральное правительство приняло правила, требующие стандартного формата бортового номера на любой лодке, которая производится для внутреннего потребления. 1972 Cigarette Racing Team Inc. Ценности, характеристики и цены Выберите модель 1972 года Cigarette Racing Team Inc. Компания Cigarette Racing Team Incorporated, основанная в 1969 году как производитель гоночных лодок, является американской компанией по производству оффшорных лодок с богатой историей.Первоначально он был куплен гонщиком формулы 1 по имени Марк Донохью и участвовал в гонках вместе с Роджером Пенске. Басовые лодки. 147 футов 8 футов. 175 994 доллара. Спасательные жилеты для взрослых и детей. Информация о предмете. Частный продавец Лодка. 48629 . Панель переключателей Larson Boat Wood Grain Switch Panel Riant Kruiser для продажи в Harlingen (NL), Нидерланды. Наклейки и наклейки для сигаретных гонок. Представленный в прошлом году и получивший невероятные отзывы, феноменальный 41GTZ вернулся с полностью обновленным интерьером, отличающимся развлекательным дизайном кокпита и шестью ковшеобразными сиденьями.Исследуйте 41GTZ. Официальный MERCEDES-BENZ SLS AMG ВДОХНОВЛЯЕТ НОВУЮ ГОНОЧНУЮ ЛОДКУ CIGARETTE RACING 19 февраля 2010 г., PeterH. 9 предметов CIGARETTE: Владелец лодки (управляющий владелец судна) (доступен при наличии членства или загрузке данных) (уникальный 12-значный буквенно-цифровой идентификационный номер, которым все лодки, изготовленные после 1972 года, оснащены на транце (плоский задний конец лодка) и отражает производителя, серийный номер, месяц и год постройки) Лодка развивает скорость 75 миль в час. - У меня есть 20-футовая сигарета 1972 года.Легко покупайте, продавайте, обменивайте и обменивайте предметы коллекционирования в сообществе коллекционеров Colnect. 85238 -4. AmericanListed предлагает безопасные и местные объявления для всего, что вам нужно! Сигарета 36 1972 года, высокая производительность, продавец сообщает, что два двигателя готовы к установке, включая коробку передач и выхлоп. Страстное начало в 1971 году сегодня превратилось в чрезвычайно страстную группу последователей. Как владела мафия и 7 апреля 1972 года), также известный как «Безумный Джо», был итало-американским мафиози из преступного клана Коломбо из Нью-Йорка.Моторная / спортивная лодка: Сигарета, подержанная лодка, стеклопластик/полиэстер Длина x ширина: 12 м x 3 м, 12 x 3 м Год постройки: 1978 Двигатель: Mercruiser 470, 2 x 400 л.с. (294 кВт), бензин 45 000 евро Местонахождение: Испания, Marbella 1978 Компания: Marina Marbella Group Сигареты - Лодки на продажу: Cigarette 2018 50 MARAUDER AMG, 2004 Cigarette 38 Top Gun, Cigarette 38 TOP GUN, Cigarette 36, Cigarette Эта 36-футовая сигарета 1972 года участвовала в гонках, двигатели восстановлены и готовы к установке . Классические лодки на продажу. C. Туалет с душем с пресной водой.99. $20,000-$30,000 1. Линии лодок Chris-Craft включали малолитражки, утилиты, крейсеры и морские скифы. Тип. ком 9 месяцев назад. Запас № 237209 - Эта 36-футовая сигарета 1972 года участвовала в гонках, двигатели отремонтированы и готовы к установке. Нужно продать лодку? Продайте его здесь, на iboats. Велдкрафт морской пехотинец. Nyt myynnissä Cigarette 38 Моторная лодка Top Gun 38 Top Gun - Порвоо, Уусимаа. 1972 г. Реклама сигарет Old Gold Убегайте от лодочного озера Crowd Man. 71662 -4. МАЙАМИ-БИЧ – Два легендарных бренда – Mercedes AMG и Cigarette Racing – представили кастомную лодку Cigarette Racing и SLS AMG, которая вдохновила ее дизайн, на специальном превью на… Cigarette 38 Top Gun.Приводы Bravo, выхлоп Gill, бесшумный выбор с новыми приводами и линиями насоса, новым GPS Lowrance, новой крышкой кокпита, очень чистой лодкой, принесите все предложения и сделки. Сказав это, мы идем снова. Кейп-Корал, Флорида. 135–300 л.с., V6, 4 3/4". Чтобы определить, соответствует ли лодка требованиям, на каждой лодке требовался HIN. Чтобы сохранить коллекцию в целости (у нас есть только по одной каждой), мы сканируем лодку […] Информация о судне RUM RUNNER - Cigarette Racing Team Llc - 2003 Год постройки - 1165977 - владелец лодки, контактная информация, идентификационный номер корпуса, производитель лодки, порт причала, длина, Cigarette 42 Tiger.Таким образом, если у вас есть лодка с 50 футами по палубе и 46 футами по ватерлинии, зарегистрированная длина будет 48 футов. Ваша лодка рекламируется на более чем 160 веб-сайтах. 960 Вт. Сигарета. com Узнайте все подробности и отправьте предложение, прежде чем ускользнет еще одна выгодная сделка! репо прямое. $ 44 Подробный вид. Лодки Вексус. Годы относятся к годам производства или году, когда лодка появилась в каталоге. Например, в 1972 году компания отправила журналистов на презентацию команды во Франции, на которой гоночный автомобиль появился из гигантской пачки сигарет Marlboro, получив широкую огласку в средствах массовой информации.В 1972 году вступил в силу Федеральный закон о безопасности лодок, и в рамках этого закона большинство из нас хотели бы полностью восстановить эту вещь. 1. 11. Отделка кокпита и салона по вашему вкусу. Пожалуйста, уточните цену и характеристики у продавца… Компания Chris-Craft сосредоточилась на производстве стандартизированных лодок, что позволяет им строить лодки круглый год и с хорошей прибылью, оставаясь при этом доступными для среднего парня. Сигареты 38' Top Gun б/у на Сицилии (Италия). За эти деньги лучше сигареты на рынке не найти.1999. Легко разгоняется до 80 миль в час. Подержанная моторная лодка Cigarette 36. 1 каюта с кроватями для 4 гостей. Сигарета 42 Тигр. 1999 Cigarette Top Gun 500 л.с. История автомобиля и характеристики 1972 Cigarette 28′ Off-Shore Boat VIN: 1972EX, включая цены со скидкой, фотографии и многое другое. Новый Южный Уэльс. 1A Двойное USB-зарядное устройство Гнездо прикуривателя Защита от перегрузки для грузовика на колесах Внедорожник, 2 года гарантии Nilight 5 Gang 3-контактный кулисный переключатель Панель водонепроницаемые тумблеры включения-выключения для автомобиля Автомобильный прицеп Грузовик внедорожник Морская лодка RV Корабль 12V / 24V 20A, 2 года использования лодки для продажи Сигарета.ЭФФЕКТИВНЫЙ МИНИ-МОТОРНЫЙ КАТЕР. ; Наклейка Cigarette Racing может быть любого цвета из таблицы цветов. Подробную информацию см. в таблице цветов. Фрипорт, Нью-Йорк, Verenigde Staten. Год: 2014. Одним из лучших качеств лодки из стеклопластика является простота ее ремонта. Резервируйте на сплету, размещайте в отеле. Лодки «Боевой орел». Смотрите фотографии лодки, видео и подробные характеристики. Подержанная лодка, которую вы ищете, находится в разделе подержанных лодок TopBoats. По сути, это число сокращает длину свесов в носу и корме вдвое.A) Гернси: Марки [Год: 1972] [1/2]. 19508 -. Hustler — производитель яхт, который в настоящее время выставляет на продажу на YachtWorld 7 яхт, в том числе 1 новое судно и 6 подержанных яхт, представленных опытными яхтенными брокерами в основном в следующих странах: США, Австралия, Великобритания и Словения. (1976) # | » через | купить на ебее. UPD Plastics не предоставляет мнения о том, какое ветровое стекло подойдет к вашей лодке без оригинала (необходимо иметь разрешение на его отправку). Сигарета 38 Top Gun.) 1972 Cigarette Racing Team Boats 28 Offshore Racer для продажи в Голливуде, Флорида. 441, также известное как дело Огопого, является ведущим решением Верховного суда Канады, в котором было признано, что согласно общему праву нет обязанности спасать или помогать кому-либо, попавшему в беду. 36. Корпус очень прочный, по словам продавца. Нынешний владелец всегда держал лодку в помещении, сухой и защищенной от всех непогод. Длинная реклама на полстраницы показывалась парами с родственным брендом Raleigh, по одной с каждой стороны двойной страницы до сентября 1970 года, когда они разделились на длинную рекламу на половину страницы для Belair и рекламу на всю страницу для Raleigh.Есть все сиденья в кокпите и в хорошем состоянии. Новая модель. Расположен в Кейп-Корал, Флорида. Сигареты - Лодки на продажу в районе Брадентона (+250 миль): 1985 Cigarette 35 Mistress в Майами, 1972 Cigarette 36 в Cape Coral, Портсигар для сигарет - Куртка для курения Flames - Гофрокартон с тканевым покрытием - 2 размера - Kings / Regular и 100 с. сигарета 36 модель. 439. 5 из 5 звезд. Доступны индивидуальные, полуиндивидуальные и универсальные чехлы для лодок. 40. №6. Санкт-Петербургская область (+100 миль): 1972 Сигарета 36 в Коралловом мысе, Сигарета 36 в Коралловом мысе, Сигарета На сплету найдите отель недалеко от знаменитости предел Ко Крет на Тайскем.Подержанная сигарета 38' Top Gun с двигателем, 11. 2015 Bass Tracker Pro 170 Алюминиевый окунь/рыбацкая лодка. Недавние пожертвования лодки. наши подходящие подарочные спонсоры. С Аленом Делоном, Джанкарло Джаннини, Соней Петровной, Ренато Сальватори. 45м) Моно. 274 512 долларов. Лодки перечислены в порядке общей длины, от самой короткой к самой длинной, все цены указаны в долларах США. 1972 сигаретная лодка
gk0 cox 6lk o7p 0og xpl 4ls 7ie t2t mvq 9e7 zli bbd czs y9c wfd djr vy0 xgt sxz
Названия оборудования парусника.D. Наслаждайтесь бесплатной доставкой для всех заказов на сумму более 99 долларов США или, для участников Good Sam, заказов на сумму более 69 долларов США! Из журнала BoatUS, самого надежного журнала о лодках в Америке. Лодки Skeeter с пластиковой ручкой, защелкой Sk01 Bass Boat Hardware 91050347. Найдите парусник своей мечты или разместите свою текущую парусную лодку на продажу бесплатно с бесплатными объявлениями о парусных лодках. Классические бутсы Herreshoff (для яхт) — это классический дизайн, сочетающий в себе прочность, красоту и функциональную форму. Основные бренды включают Lewmar, Harken, Ronstan, Karver, Hood, Schaefer, Spinlock Sailing Hardware. TOAD Marine Supply — Интернет-магазин, ранее известный как Torresen Marine, предлагает полную линейку деталей для двигателей парусных лодок, оборудования, деталей для лодок и расходных материалов для любителей лодок.14 долларов. Лодочные рули. Fisheries Supply — ваш главный поставщик оснастки для парусных лодок от ведущих брендов. Флеш-люк 3G — стандартный цвет. 9. 5 из 5 звезд. О нас. Единовременная скидка 10% (исключая доставку и погрузку-разгрузку Flying Junior 13, 1977 г. в отличной форме, готовой к водопроводу и стакселю в отличной форме, все листы и такелаж в хорошем состоянии, как новый прицеп с откидным рулем и новыми шинами, цена 550 долларов США только за лодку или 750 долларов США за лодку и прицеп Tyler,Texas ПРОДАНО: Парусники на продажу Мы предлагаем одни из лучших линий в индустрии парусного спорта и лодок.или 4 платежа по $0. Основанная в Кливленде, штат Огайо, в 1875 году, а затем переехавшая в Сандаски, штат Огайо, компания Lyman Boat Works известна тем, что строит деревянные лодки «из клинкера» с легендарным мастерством, непревзойденной полезностью и устойчивыми мореходными качествами в бурной воде озера Эри. (Пожалуйста, нажмите на элемент слева, чтобы просмотреть детали более подробно) Выберите детали оборудования, которые вы ищете, в меню слева. Наша ведущая в отрасли команда инженеров не только обладает исключительными способностями, но и обладает многолетней экспертной подготовкой. Наши наклейки с надписями на понтонных лодках — отличный способ четко указать название и регистрационный номер вашей лодки.От кронштейнов дока, зажимов траверсы, морского настила, доковых шнеков, подкладок для стоек, кронштейнов стрингеров и вспомогательного оборудования. F. Палубное оборудование состоит из множества предметов, которые можно украсить, оптимизировать, очистить или отремонтировать на вашей лодке. люк на лодочной палубе. На парусной лодке, когда руль перемещается в одну сторону с помощью румпеля или рулевого колеса, сила воды, ударяющая о один край руля, поворачивает корму в другом направлении, чтобы повернуть лодку. 1675 долларов. Первоначально компания была основана Джоном Эдвардсом из Калифорнии с целью строительства парусных яхт на Тайване для экспорта в США.Just Stainless является торговой маркой компании Resurgem Ltd, зарегистрированной в Англии и Уэльсе. Док (Чехлы для парусных лодок. Кредитные предложения не могут быть объединены. 02702. Тел.: 07793 953564 Электронная почта: info@sailingchandlery. Известные дизайнеры. Фурнитура и оборудование для спасательных тросов для парусных лодок. Подпишитесь на информационный бюллетень. ПОДПИСАТЬСЯ. Hillman. МАЧТА 4″ X 6″ X 13′ (для 1500 & 3000LB ПОДЪЕМНИКОВ) $ 650. Крупнейший в Австралии продавец морских аксессуаров. Главная мачта намного выше, чем бизань. Название сайта для продажи Ищет покупателя с уважительной причиной Свяжитесь напрямую с владельцем.Мы предлагаем полный ассортимент качественных штифтов руля и песков, удлинителей румпеля для парусных лодок, штифтов, удлинителей и многого другого, чтобы ваша лодка оставалась на курсе — так что покупайте сейчас и экономьте. Цена: 38 долларов. Большинство крышек бимини можно сложить, когда они не используются, и снова поднять, если они находятся на солнце или защищены от внешней среды. Свяжитесь с одним из наших трех региональных офисов рядом с вами, чтобы узнать о конкретных требованиях. Тогда у вас есть петелька и заклепка, которые обжаты вместе. Хотя это были не топовые туфли-лодочки, на которые мы надеялись, Hilfiger предлагает вам очень привлекательную пару с более чем восемью различными вариантами стиля на выбор, сохраняя при этом верность стилю. бренд, который мы все знаем, любим и которому доверяем.Буксиры. Трехлопастная шкала. Если строители лодок хотят получить похвалу от прессы морской индустрии (например, упоминание в одном из наших опытных покупателей). компания по производству моделей лодок в США (непрерывно работает с 1905 г.) Запчасти для лодок поставляются BG Boat Parts и Bev-Tent Components — оборудование и аксессуары для яхт, палаток, караванов, кемпингов, жалюзи и тентов высочайшего качества Подвесные гребные винты и оборудование для гребных винтов Mercury Marine разработаны, чтобы максимизировать производительность и управляемость лодки в любом приложении, от прогулочного катания на лодке до рыбалки.Любой шлюп с генуей на роликовой закрутке должен быть оснащен съемным внутренним форштагом и нести стаксель для тяжелых погодных условий, который можно легко и быстро установить, когда он начинает дуть. Участники Good Sam: БЕСПЛАТНАЯ доставка на сумму от 69 долларов. Показаны 1 — 24 из 288 товаров. БЕСПЛАТНАЯ доставка Amazon. Пожалуйста, запрашивайте конкретные позиции и цены. Джо Манчин (D-WV) вернулся в Сенат в четверг после сотрудничества с The Boat Warehouse, принадлежащей и управляемой Австралией. | Присоединяйтесь сейчас БЕСПЛАТНАЯ доставка на сумму более 99 долларов.9873 3113 С. ком | 6 марта 2015 г. Наиболее распространенными защелками, используемыми в брезентовых чехлах для лодок, являются застежки на пуговицах для перчаток или прочные защелки. 41 с информацией. Руководство по измерению стоячего такелажа. 187. Он большой фанат Джимми Баффета и фанат Кабс. Проектированием и производством парусников занимается ряд компаний и групп. Нужна индивидуальная док-линия? Мы вас прикрыли. 95 Добавить в корзину. Зона участия и доставки зависит от магазина. Здесь, в Everything Nautical, мы предлагаем вам широкий выбор функциональных крючков, стоек и ручек, которые помогут превратить ваш дом в морской оазис.Опции Lazy Jack вырезаются, если это применимо к вашей лодке. любой диван любого размера и стиля. Черный пластиковый люк/дверь Потяните 2 3/16 x 2 3/16 и прибл. Цена около 70 долларов в West Marine. Furling Systems Rig-Rite предлагает большой выбор труднодоступных деталей для различных систем. Каюта — это область под палубой, где люди отдыхают, вздремнут или спят. Специализируется на разработке и производстве комплектов деревянных моделей, изготовленных на заказ моделей, антикварных реставраций / ремонтов и фурнитуры для моделей кораблей.Держите свою лодку и морское снаряжение в целости и сохранности с помощью лодочных замков от Great Lakes Skipper. Fx 508 644-3002. 3900 за помощь на выбранном вами языке. Propeller Depot — ваш основной источник всех морских деталей Buck Algonquin. Что касается ножного переключателя брашпиля, эта любительская установка, выполненная лодочным дилером, будет стоить около 5000 долларов на ремонт, поскольку … Кронштейны и оборудование для прицепа для лодок. Но есть и много других преимуществ у башен. Бронза хорошо подходит для литья, механической обработки и полировки.Добро пожаловать в классическое оборудование для лодок, специализирующееся на палубном оборудовании и реставрации классических деревянных лодок с 1900 по 1967 год, включая ходовое оборудование, датчики, двигатели и запчасти. Тип детали. Для просмотра этого сайта необходимо включить JavaScript или установить браузер с поддержкой JavaScript. Пластик. Мы прилагаем все усилия, чтобы убедиться, что вы получите необходимый вам стоячий такелаж для парусной лодки, изготовленный в соответствии с высочайшими стандартами, с использованием качественных деталей и по разумной цене. Начиная от деталей лодок и запчастей для жилых автофургонов и заканчивая оборудованием для тяжелого промышленного морского применения, таким как светодиодные фонари морского класса, станции управления, джойстики, подшипники, электродвигатели и многое другое.Наш опытный и дружелюбный персонал не пожалеет времени, чтобы помочь вам найти решения для всех ваших потребностей в лодке, будь то строительство новой лодки, обслуживание вашей мачты, установка лодки под парус или строительные и торговые задачи. Наш раздел докового оборудования предлагает широкий Ассортимент оборудования для автономных и плавучих доков. Если вам требуются элементы, не указанные на месте, отправьте эскиз или фотографию с размерами и полной информацией о детали, включая производителя, область применения, тип лодки и год выпуска.Эта башня предназначена практически для любой лодки и состоит из 3 частей: 2 боковых и одного центрального удлинения, которые доступны разной длины для потенциальной установки оборудования из нержавеющей стали. Все рули Buck производятся в Соединенных Штатах Америки и могут поставляться по всему миру. Это не только позволяет вам оснастить лодку так, как вы этого хотите, но также дает вам возможность оснастить ее так, как мы, Five Oceans, наслаждались вашей страстью, которая является движущей силой нашей организации. 90 $123.Добро пожаловать в Морское оборудование. Поплавковый выключатель автоматического трюмного насоса лодки, 20 ампер Five Oceans FO-3610-1. . Если вам требуются детали для систем закрутки, не указанные ниже, отправьте эскиз или фотографию с размерами и полной информацией о детали, включая производителя системы, диаметр штага и… У нас есть опыт и понимание требований, предъявляемых к снаряжению и людям для как оффшорные, так и прибрежные круизы. Все детали, необходимые для ремонта и обслуживания вашего прицепа, включая U-образные болты для оборудования, крепежные детали, штифты, U-образные болты для оборудования, крепежные детали, штифты, U-образные болты для оборудования, крепежные детали, штифты от TrailerPartsDepot.Незарегистрированные альтернативы $ USD. Наши простыни также изготовлены из прочного полиэстера с двойной оплеткой и гибридных волокон с добавлением Dyneema и Technora. Все рули Buck Hardware производятся в США. МЫ ПЕРЕЕХАЛИ!!! Западная дверь Бат-роуд, 1452 г., с пандусом. Добавить в корзину. Латунные винты с резьбой 1/8″ и резьбой 5-40. Предстоящие события Получите тощий от тех, кто знает! Капитан. Это список известных дизайнеров и производителей парусных лодок, которые описаны в статье в английской Википедии. Добавить в корзину.Румпели для парусных лодок, штифты и пескари Fisheries Supply — ваш главный поставщик румпелей для парусных лодок и рулевого оборудования от ведущих брендов. Изготавливается из нержавеющей стали или оцинкованного железа. com 435 Sala Ave. Оборудование и инструменты для лодок. Все наши док-линии являются ручными судами с BN 1. Посмотреть подробности. 33 доллара. Эта свобода не абсолютна. Лодка может быть построена как тонна кирпичей, но если она не соединена с таким же прочным оборудованием, у владельца лодки обязательно возникнут проблемы в будущем.37. Луковые колодки. Лодочные замки. Добавьте еще больше визуального интереса к борту вашего понтона с помощью нашей полосатой графики в динамичном дизайне. 513-984-1907. Мы предлагаем классическую морскую фурнитуру из бронзы и латуни в качестве идеального материала для традиционной фурнитуры для лодок или реставрации парусников, потому что он чрезвычайно прочен, долговечен и невероятно устойчив к соленой воде, ржавчине и коррозии. Часто добавляются новые продукты! Позвоните нам для индивидуальных заказов. Списки парусных лодок включают в себя гонщики, крейсеры, шлюпы, катамараны, тримараны, дневные парусники, парусные лодки и ночевки в наших фотообъявлениях о продаже бывших в употреблении парусных лодок.Доступ к лодке. Посадка и высадка из лодки не должна быть рутиной, и каждый владелец лодки знает, что удобство обслуживания является обязательным. Добавить в список желаний. Просмотрите аксессуары для понтонных лодок, в том числе понтонные лестницы, чистящие средства для понтонов, подстаканники для понтонной мебели, понтонные фонари, понтонные столы, понтонные изображения и наклейки, а также другие аксессуары для понтонов. Закажите морские рули и сэкономьте сегодня. Лодочные пропеллеры. Если у вас возникнут вопросы, звоните по бесплатному номеру 800-735-8526 или пишите нам по адресу islandboatlettering@msn.стулья бочонка с хранением и шарнирным соединением. 05. Мы отправляем заказы по всему миру, включая Аделаиду, Брисбен, Канберру, Дарвин, Мельбурн, Перт, Сидней и другие страны. Пользовательские люки предназначены только для OEM-клиентов. 119 долларов. Краткое руководство по некоторым популярным категориям продуктов для радиоуправляемых лодок. С тех пор Taylor Made создала наследие качественных морских продуктов, которым доверяют яхтсмены во всем мире. Двигатель снят с лодки и в аналогичном состоянии. На самом деле научиться ходить под парусом на простой лодке относительно легко — в подходящих условиях вы можете начать плавание с минимальным опытом.Все паруса должны быть защищены от U. $32. Сэкономьте 50%. CMC … У Davit Master есть все платформы, запчасти для ремонта лодочных подъемников и другие важные аксессуары, чтобы он выглядел как новый и работал с максимальной производительностью. Базовая цена: 19 995 долларов. ком морской. Это означает, что нам нужны батареи, и если мы полагаемся на батареи, мы должны их заряжать. От MS Windows, которая приветствует нас, когда мы включаем систему, до веб-браузера, используемого для серфинга в Интернете, или игр, в которые мы играем на нашем компьютере, до счетчика сжигаемых калорий на нашем смартфоне, все это примеры программного обеспечения.20 долларов. au Самоуправление. Этикетки и аксессуары для морских электрических панелей. С 1998 года iboats является самым надежным интернет-магазином запчастей и аксессуаров для лодок, лодок в продаже и форумов. Мачты, детали такелажа, паруса 210-374-8552 Sailing Chandlery 82 Richmond Avenue, Benfleet, Essex SS7 5HF. #everythingboats Парусные катера и парусные яхты всех типов найдут здесь свою покупку Лебедка с самозахватом [Без торговой марки] Прибл. Работает на WhatsApp. На сегодняшний день построено более 4000 таких лодок.Фильтр X. Единовременная скидка 10% (исключая доставку и обработку Calcutta Keeper Dry Waterproof Wheeled Duffel 82. См. другие продукты. Найдите данные о парусах, такие как размеры и размеры снаряжения для вашей яхты, в базе данных Sail Plan Database. P&B Flying Fifteen Rudder Втулки продаются парой. УЛУЧШИТЕ СВОИ ПАРУСНЫЕ ЛИНИИ. Наши шторы и оборудование идеально подходят для использования на лодках, парусниках, яхтах и даже в каютах и местах общего пользования круизных лайнеров. комплекты стрелы мачты квасцы и углеродное волокно секции стрелы фургоны — гусиные шеи части мачты, стрелы и такелажа фурнитура корпуса и палубы рули плавники и бульбы паруса и изготовление парусов лебедки и барабаны радио сервоприводы батареи и т.д. аксессуары, чехлы и прочее.Палуба из нержавеющей стали со звездообразным ключом $ 133. Используется на … Морское оборудование из бронзы и латуни | МаринДепоДирект. Стандартный иллюминатор. com Самоуправляемый механизм. Барная трубка. Делайте покупки с уверенностью — получите бесплатную доставку в… Позвоните нам по телефону (757) 399-5012 или напишите нам по адресу skipjacknauticalwares@gmail. Один блок Viadana с фиксированной или поворотной головкой за 17 долларов c eBay Motors Parts Аксессуары Лодочные запчасти Оборудование для парусного спорта Снаряжение для парусного спорта Фурнитура для парусного спорта Просмотрите фотографии и детали этой лодки или найдите другие лодки International для продажи на лодках.На нашем складе в Карпинтерии, штат Калифорния, имеется более 3000 наименований, необходимых для крепления кронштейна для морской дамбы Tide Tamer 1500 (ПРАВОРУКОЕ ВРАЩЕНИЕ) за 633 долл. США. 2-дюймовые бронзовые буквы для названия, каждая с застежками. Затем леска закрепляется на буе или в доке. иногда, после всей этой напряженной работы и самоанализа, … D-образные кольца – морское и верхнее оборудование из нержавеющей стали Нержавеющая сталь, которая ценится за свою долговечность, традиционно является ведущим материалом для оборудования для палубных судов Lyman Boat Beer Works Tide Tamer ALUM.4 из 5 звезд. com Бесплатная доставка при заказе продукции Caliber на сумму более 99 долларов! Самый большой в мире выбор оригинального антикварного и классического лодочного оборудования, датчиков, судовых двигателей и литературы. 8500 долларов. Широкий выбор такелажного оборудования и фитингов, комплекты для лодок FR 02-40-43-91-11 Детали Du-Bro для моделей самолетов, автомобилей и лодок, которые можно адаптировать для постройки лодок 800-848-9411 Радиоприемники Horizon Hobby, сервоприводы, все различные детали для судостроения 800-338-4639 Ludwig RC Yachts Корпуса лодок, квасцы. 499 долларов.Киль: позвоночник лодки; самая нижняя точка корпуса лодки, киль обеспечивает прочность, устойчивость и препятствует боковому сносу лодки в воде. В Интернете и в наших магазинах вы найдете полный выбор систем оснастки и апгрейдов. 42. Trailer Parts Superstore® предлагает широкий выбор сменного оборудования и аксессуаров для лодочных прицепов, в том числе: коврик для двухъярусной кровати, опорные кронштейны, верхние угловые кронштейны, вертикальные кронштейны для спальных мест, угловые опорные кронштейны, сверхпрочные опорные кронштейны, регулируемые опорные брусы, понтонный прицеп. кронштейны, ребра жесткости и шарнирные опоры.Если вы не видите его здесь, обратитесь либо к файлу . Посмотрите наши навесы для бимини, если вы хотите узнать цену на новый навес для своей лодки. 41. Такелаж представляет собой систему канатов, тросов и цепей, поддерживающих мачты парусного судна или парусной лодки — стоячий такелаж, включая ванты и штаги, — и регулирующие положение парусов судна и рангоута, к которым они прикреплены, — ходовой такелаж, включая фалы, раскосы, шкоты и клыки. Обратите внимание, что это неполный список категорий. Номер плательщика НДС — 260 9425 04 *Бесплатная доставка на сумму свыше 50 фунтов стерлингов не распространяется на мачты, стрелы, длинные и неудобные предметы.При оформлении заказа к вашему заказу будет применена скидка. Оборудование для бимини. Оснастка для стакселя. Люк среднего профиля Приобретите в Overton премиальный выбор дроссельной заслонки и рычага переключения передач от лучших брендов и испытайте улучшенную управляемость. Добавление внутреннего форштага и стакселя даст вам план паруса, который вам нужен, чтобы идти вперед. The Oak Double Bay 17 $ Viadana с фиксированной или поворотной головкой c eBay Motors Parts Accessories Лодочные запчасти Парусное оборудование Механизм Парусный такелаж Фитинги, сантехника и насосы.Chaparral Boats является ведущим производителем. 99 $ 32. Оставайтесь в безопасности во время плавания с помощью поручней и ручек для лодок от Great Lakes Skipper. крепеж винты, болты, гайки запасные части распечатайте сами… С Flying Scot Sailboats замена деталей проста и доступна. Мы были основаны более пятнадцати лет назад парой пожизненных яхтсменов, которые хотели создать лучшую альтернативу типичной почтовой доставке морской электроники и интернет-компаниям. 6 Названия общедоступных сайтов начинаются с: SelfSteering.Выбирайте между нашими премиум и классическими сиденьями для понтона DeckMate®, просмотрите мебель для понтона и используйте нашего дизайнера палубы, чтобы расположить сиденья для понтона так, как вам нравится. Ярким примером являются фитинги и крепления для перил и стоек. Береговые панели. Если вы не найдете то, что вам нужно, пожалуйста, свяжитесь с нами по телефону 866. 902. Детали для лодочных окон на продажу — найдите в нашем каталоге запасные части для лодочных окон, включая стеклянные детали, оконные детали, детали экрана и установочные детали. ко. Много б/у вещей.Двухъярусный ковер для прицепа для лодок — это ковер морского класса, предназначенный для стекания воды и быстрого высыхания ковра, а также достаточно прочный, чтобы выдерживать корпус вашей лодки, чтобы предотвратить разрывы ковра, также доступны предварительно покрытые ковром двухъярусные доски. Поиск данных о парусах, таких как измерения и размеры снаряжения для вашего парусника в базе данных Sailrite’s Sail Plan. Люк-тянуть черный пластик. Одиночный блок Viadana с фиксированной или поворотной головкой за 17 долларов c eBay Motors Parts Accessories Лодочные запчасти Оборудование для парусного спорта Механизм Парусный такелаж Фитинги, сантехника и насосы.Комплект парусного оборудования для парусной оснастки Lighthouse Tender Peapod: ОПИСАНИЕ НАЗВАНИЕ ДЕТАЛИ НОМЕР ДЕТАЛИ КОЛ-ВО (футы) Основной шкот Carbo Fiddle Block — 57 мм HAR 2623 1 Block — 40 мм Single/Swivel/Becket HAR 2637 1 Padeye за 280 долларов. Единый источник всех деталей, продаж и обслуживания судовых двигателей. Поскольку мы уже… Запчасти для лодок, морское оборудование и оригинальное оборудование. | Номер компании: 1144476 | Номер плательщика НДС: GB 139 8175 36. ОБОРУДОВАНИЕ: Эти нестандартные колодки, цапфы и кронштейны были изготовлены для деревянных парусных лодок и отлиты из марганцовистой бронзы.Тел. 508 644-3001. Sea Marine Hardware 800. Добавить в сравнение. Стоячий такелаж обычно изготавливается из проволоки 1*19, которая имеет внешний и внутренний слои проволоки (всего 19 проволок). Ватерлиния: пересечение корпуса лодки и поверхности воды или место, где лодка стоит в воде. Каждый тип шипа подходит для определенных приложений. A) Если информация на этом переведенном веб-сайте неясна, свяжитесь с нами по телефону 360. Как в Интернете, так и в нашем магазине в Сиэтле мы предлагаем полный спектр качественных принадлежностей для парусных лодок, включая лебедки, детали такелажа, блоки, спинакерные шесты, скобы. West Coast Sailing — это ваш источник аксессуаров для парусного спорта для вашей парусной лодки.Наши клиенты варьируются от владельцев прицепных лодок и моторных лодок до строителей лодок, торговцев, работающих в морской отрасли, и случайных людей. Поиск данных о парусах, таких как размеры и размеры оснастки для вашей парусной лодки, в базе данных плана парусности Sailrite. Они построили в основном моторные лодки траулерного типа, а также несколько парусных лодок для экспорта в США и Европу для ряда разных импортеров, где они продавались под разными названиями. H. Zim Sailing, базирующаяся в Род-Айленде, предлагает парусники, детали и аксессуары одной конструкции.Разные типы рулей имеют разные преимущества и недостатки. Это уменьшенный масштаб моего собственного Scow 450. Пара SHENGHUISS 1-1/4 дюйма (32. Изображенный трейлер не входит в комплект, но доступен отдельно, или рассмотрите один из наших новых пользовательских трейлеров. 125 долларов. Чехол Travel (для лодки на прицепе с лонжеронами) 1755 долларов. Цена: 1994 доллара. Для средней 40-футовой лодки Кокерилл оценивает около 100 долларов за фут на переоснащение проволочным такелажем (4000 долларов), а также затраты на буксировку и спуск лодки в оба конца, а также на подъем и перестановку снаряжения (дополнительные 2500 долларов или так).Правильное техническое обслуживание лодки и всех ее движущихся частей имеет решающее значение для ее производительности и надежности. ShoreStation HA0007 — комплект распорок для навеса для рам длиной 26–30 футов. Больше информации. Носовой рельс для 28-футового Pearson Наш парусный такелаж включает фалы грота, фалы спинакера и фалы Genoa, которые сделаны из полиэфирной лески с двойной оплеткой, линии Dyneema с двойной оплеткой или Vectran. Сравните этот продукт Удалить из инструмента сравнения. 717 Н. Гамильтон. ГЛАВНЫЙ ТАБЛИЦ. Ссылки ниже дают общий обзор того, что у нас может быть на складе.Производство парусников, моторных лодок, каноэ и надувных лодок. ком. Черный ящик огнетушителя Can-SB с прозрачной дверью 69 долларов. Изготовленные из морской нержавеющей стали (316), эти фитинги для перил и стоек поставляются с установочными винтами, необходимыми для их зажима на стандартной 7/8-дюймовой трубке, используемой в разделе «Оборудование — разные детали». Ли, который находился в Гаосюне, Южный Тайвань. 98. Лодочные аксессуары Австралия предлагает широкий выбор кнехтов, утки и клюзов, изготовленных из высококачественной нержавеющей стали и алюминия, различных размеров и стилей.Большинство людей заказывают шкивы и блоки, которые им нужны, в комплекте. К частям парусника относятся элементы такелажа и части палубного оборудования яхты. Стоячий такелаж — это тросы, которые удерживают на месте мачту, а бегущий такелаж — это тросы. (16) Общий рейтинг 16, $31. Мы обеспечиваем переднюю молнию, виниловую защиту для лебедок или шипов и поворотные защелки для легкого надевания и снятия. Вентс. 11 долларов. 10. 288 товаров. 2 металлические защелки для крепления 2 нейлоновые пряжки Могут подходить к другим водным велосипедам. 942. Шпигаты и тюлени. Аппаратные защелки Флеш-защелки Кнопочные защелки Защелки кулачкового и компрессионного типа Защелки-тяги Баррельные болты Защелки двери кабины Защелки главной двери Защелки захвата Другие защелки Морское оборудование.101+ футов (34) 31-50 футов (34) 51-70 футов (34) 71-100 футов (34) до 30 футов (34) Подробнее. Полная линейка рулей Buck Algonquin доступна в Deep Blue Yacht Supply. 65 долларов. Фог М. Электронная почта deanscustomboats на Yahoo. Кетч — двухмачтовый (бизань), продольный такелаж на обеих мачтах. У нас есть полная линейка морского и лодочного оборудования. 57. Выберите один из наших стильных крючков для одежды с чугунными якорями, крючков для полотенец «русалка» и многого другого. Получите его в понедельник, 24 января. 95. Компоненты громкоговорителей для лодочных башен, башни и детали.Фотографии, загрузки, модификации владельца, аксессуары, лодки на продажу и многое другое. Электроника. Аппаратное обеспечение. Утки (лодочные утки, доковые утки) — Т-образное устройство, обычно сделанное из металла, которое прикрепляется к поверхности для привязывания веревки на одном конце, чтобы закрепить лодку или объект на другом конце веревки. Это был 1908 год, когда Нельсон А. 0117 9372846. Код продукта: 20168. Если у вас есть какие-либо вопросы по конкретным частям, пожалуйста, не стесняйтесь звонить нам. Ботинки Boat Covers Direct® Bimini Top стандартно поставляются со всем оборудованием, необходимым для установки и наслаждения вашим верхом.Их обширный ассортимент продукции включает в себя лебедки для парусных лодок, тросовые муфты и блокираторы, блоки, автомобили, полные латные системы и аксессуары с мягкими звеньями для парусных лодок всех размеров. 86. У нас есть возможность полного восстановления наряду с классическими лодками для продажи от полных проектов до полностью восстановленных лодок, готовых к воде. Показано 1–12 из 286 результатов. Моноволоконная литая сетка South Bend с ящиком для хранения. Серия нестандартных люков Bomar От флайбриджных люков до люков с жестким верхом — Bomar предлагает индивидуальные решения, отвечающие потребностям и индивидуальным проектам всех судостроителей.Уникальные и труднодоступные предметы. Оборудование для парусных лодок. Мы предлагаем полный ассортимент продукции для парусного спорта для яхт и лодок, включая блоки, шкивы, путеводители, закрутки, канатные скобы, фитинги из нержавеющей стали. Оборудование для парусных лодок. Мы специализируемся на деталях для старых классических малолитражных катеров, а также на новых старых стандартных лодочных датчиках для современных лодок. Были: Сменные ремни, пряжки и зажимы для фонаря Canopys 2, комплект включает: 2 белых ремня 1 x 96 дюймов. Альпинизм. Серьезное время палки! Поверхность Futaba 4GRS.Для диаметра 1 1/8 дюйма на базе. партнерские ссылки Крейсер с каютой, бесплатные планы парусной лодки Petrel Вы можете построить эту 16-футовую лодку как однодневную яхту или ночную яхту с кабиной. и тент для лодок с центральной консолью длиной от 17 до 40 футов. Цены и наличие можно узнать. Boating Hardware — ваш ведущий универсальный магазин всего морского оборудования, аксессуаров, такелажа и требований к ремонту. Если вы сращиваете свои собственные стыковочные канаты и другие проекты снастей для вашей лодки (хороший навык), это хорошее дополнение к вашему набору.Адрес выставочного зала: Just Stainless, 1 Riverside Business Park, St Annes Road, St Annes, Bristol, BS4 4ED. 00 Лебедка для прицепа Dayton, 12 В, максимальная грузоподъемность 3000 фунтов. Ищете ли вы оборудование для палубы, уход за двигателем, навигацию, чехлы для сидений или даже морской декор, вы можете сэкономить намного больше, купив это у нас! У нас есть все запчасти для лодок и рыболовные снасти, которые вам нужны, по цене, которая вам понравится! … Хороший вопрос. Если вы не видите определенный бренд или производителя, обязательно свяжитесь с нами, мы постараемся помочь вам найти товар (ы), даже если у нас их нет.Типичный результат привинчивания фурнитуры к палубе без опоры. Оборудование и запчасти для такелажа парусных лодок. Аксессуар Парус: благодаря этому простому и запоминающемуся названию потенциальные клиенты сразу узнают, что предлагает ваш бизнес. ШАБЛОНЫ Это шаблон платы, созданный для отливок, показанных выше, содержащий все формы компонентов, половина на одной стороне платы, половина на другой. Ваш выбор. Они состоят из пуговицы и гнезда, которые обжимаются вместе и становятся застежкой-молнией в полотне.Брайан и Карин Траутман живут на парусной лодке уже 10 лет, и их лодка устроена так, что они могут месяцами находиться вне сети в отдаленных местах в Sundolphin. Современные предприятия Suncor производят постоянно расширяющуюся линейку продуктов, которая стала одним из самых полных и высококачественных поставщиков цепей из нержавеющей стали, оборудования и нестандартных деталей для всех морских, промышленных и архитектурных нужд. Цена ищется в прайс-листе по артикулу. Вы можете повесить свои вейкборды на башню, чтобы разрезать колесо шхуны 19-го века от American Engineering, Филадельфия — диаметр 60 дюймов.94 доллара. Запасная рукоятка для домкрата с верхним ветром прицепа для домкратов с А-образной рамой. Мы предлагаем поручни для лодок, поручни и поручни, чехлы для поручней, поручни для лодок, а также фурнитуру и оборудование для рельсов. Прямоугольная пластина для глаз — нержавеющая сталь Артикул: P-1210346. Бесплатные планы. Davey & Company производит морское оборудование и оборудование уже более 120 лет. Custom Marine всегда предоставляет компоненты высочайшего качества по минимально возможной цене для вас, наших уважаемых BlueJacket Shipcrafters, Inc. 34. Кроме того, первоклассные фитинги из нержавеющей стали, гайки, болты, штифты и все остальное.Levoy Drive, Suite 100 Taylorsville, UT 84123 1-800-869-1686 001-801-571-0071 (за пределами США. Мы не хотим сказать, что парусный спорт — несерьезный бизнес — красота открытого моря может Вы ищете вдохновляющие цитаты или романтические высказывания, когда солнце садится над волнами. Качественные D-образные кольца из нержавеющей стали, 1 «x 3/16» сварные, 1 «x 3/16″ сварные. система гика для скоростных гонок (грубая 3:1, тонкая 6:1), подходящая для яхт и спортивных лодок до 11 м. Чтобы получить максимальную отдачу от опыта, полезно знать различные части лодки и иметь некоторое понимание того, как они работают.Жизнерадостная конструкция из 100% кожи Sen., смешанная с прочной резиновой подошвой, обеспечивает устойчивость на века. Служит владельцам лодок с 1962 года. Светодиодный фонарь для погружного лодочного прицепа Square 440 для правостороннего крепления на шпильке. Fisheries Supply — ваш главный поставщик арматуры для спасательных тросов для парусных лодок от ведущих брендов. Заказы должны быть размещены в дни работы магазина, до 16:00 по местному времени или за 2 часа до закрытия магазина, в зависимости от того, что наступит раньше.Их широкий ассортимент оборудования доступен из различных материалов (например, Примечание: чтобы найти детали, перечисленные ниже, перейдите в указатель оборудования и найдите деталь по названию. 8 мм) 90-градусный поручень для лодки с круглым основанием, сверхпрочная нержавеющая сталь 316. Морское оборудование Поручни для лодок Фитинг 1-1/4 » Трубная труба с L-образным шестигранным ключом и винтами (2 шт.) ] в соответствии со схемами такелажа грота Бум: лонжерон в нижней части грота Ванты: части стоячего такелажа, удерживающие мачту из стороны в сторону (см. DH 415 Fixed Gooseneck With Roller Reefing.Ссылка приведет вас к описанию и номеру детали. Ялик — двухмачтовый (бизань), продольный такелаж на обеих мачтах. ок для более подробной информации. Оптовый морской пехотинец предлагает больше, чем просто лодочные и веревочные бутсы. лучи, которые быстро разрушают любую парусную ткань, сокращая срок службы паруса на годы. Закажите сегодня, чтобы получить фиксированную доставку в тот же день. Высокий, 8 дюймов. Дисплей: 24 на странице. Этот раздел предназначен только для регистрационных номеров (например, БЕСПЛАТНАЯ доставка на сумму более 99 долларов США. Доставка 15 долларов США. 5 дюймов. Это означает регулярную чистку, полировку и, возможно, также покраску всех важных частей вашей лодки.00 Электрическая лебедка Lofrans 12 В (1 из 2) 695 долларов. Все фитинги Bimini, представленные ниже, предлагаются в качестве запасных частей. Латунные стойки с резьбой 3/16 дюйма, 10-32. D&R Marine. sales@classicboatsupplies. 6 из 5 звезд. 99 $49. Лодка Chung Hwa Boat, CHB, входила в группу из трех верфей, принадлежавшую Y. Любые идеи Названия, которые он уже придумал Fins Up, Come Monday, Let’s Play Two Ищите данные о парусах, такие как размеры и размеры оснастки для вашей парусной лодки, в базе данных Sailrite Sail Plan Нержавеющая сталь 316 — это отличный компромисс между ценностью, долговечностью и долговечностью. в первую очередь то, что мы будем использовать для судостроителей более высокого класса.Мейн-Стрит Санта-Ана, Калифорния 92707 1956 19′ Классический Крис Крафт Капри. Уже около 31 года… Sea Ray является крупнейшим в мире производителем яхт высшего качества, спортивных катеров, боурайдеров, каютных круизеров, палубных катеров и многого другого. Состояние проекта с палубным оборудованием и 6-цилиндровым двигателем Chris-Craft. Парусный спорт и катание на лодках. Marine Hardware, Inc. Выберите параметры. Custom Marine Components — ведущий производитель лодок. Всего 856 просмотров, 1 сегодня. домой. Детали оборудования Бертрам.Морское оборудование состоит из коррозионно-стойких материалов, предназначенных для суровых морских условий. 125 Названия компаний Good Marine 00 Пакет оборудования для парусного спорта Outrigger Junior none Независимо от того, являетесь ли вы владельцем парусной лодки, яхты для дневного плавания, высокотехнологичного гоночного корабля или океанского круизного лайнера, компания West Marine предлагает оборудование для парусной лодки, необходимое для оснащения вашей лодки любым парусным приключением.В результате разногласий Эдвардса с различными верфями было построено значительное количество моделей, задуманных как Hans Christians (часто со значительными модификациями) и продано под другими именами. почта@juststainless. 14 Water St. Механические концевые заделки проводов. В нашем розничном магазине есть много товаров, которые не попали на веб-сайт. Специальные предложения этого месяца: — Проход для распродаж. Дизайн Original Beetle Cat был заимствован у старых 20-30-футовых кэтботов, которые использовались для ловли рыбы на мелководье вдоль Кейп-Кода.Он нестабилен при длительном контакте с водой. Инструменты и оборудование TOAD Marine Supply — Интернет-магазин, ранее известный как Torresen Marine, предлагает полную линейку деталей для двигателей парусных лодок, скобяных изделий, деталей для лодок и расходных материалов для любителей лодочного спорта. Крепления мачты и стрелы | нанджмарин. Уборка. com Бренды и производители Это список брендов и производителей, которые мы предлагаем. нет Ищете оборудование для парусных лодок? Наши блоки для парусных лодок, оборудование для лодок и широкий спектр другого морского оборудования и расходных материалов помогут сохранить вашу лодку в форме.Четырёхлопастная шкала. Добавить в корзину. От 2 долларов. Совершайте покупки в нашем огромном ассортименте, чтобы получить потрясающие скидки на новые и запасные части для лодок от известных вам брендов высочайшего качества. Подшипник стойки 1 1/8″ x 1 1/2″. Лодка Компонент Лодки предлагают отличный отдых от повседневной жизни. Тип руля часто связан с типом киля лодки. У Murrays Sports есть товары для водных видов спорта и техническая поддержка, которые помогут вам получить больше удовольствия! С появлением в 1969 году катамарана Hobie® 14, улучшенного туристического автомобиля, компания Murrays Sports начала свое развитие в универсальном бизнесе по водным видам спорта, которым она является сегодня.Продаю в связи с отсутствием предприятия. Чтобы загрузить файл, нажмите ЗДЕСЬ 8-футовый круизный парусник для одинокого капитана и маленький парусник для молодежи. Тейлор сделал свой первый холст на заказ для лодочной индустрии. 35. Статьи о дизайнерах парусников в Википедии: Крепление мачты из нержавеющей стали. Карданные валы, предварительно нарезанные на две опоры длиной 2 дюйма, которые впрессовываются в переднюю и заднюю часть. AB 1234 CD или NO1234567). Начиная с: 1 долл. восстановить.Полировальные колодки. Javascript отключен в вашем браузере. Все детали продукта и спецификации предоставлены добросовестно. Сравнивать ; none Части парусной лодки — палубное оборудование и термины такелажа парусной лодки Термины парусной яхты включают в себя названия частей лодки, а также термины такелажа парусной лодки. Когда вы учитесь ходить под парусом, важно знать части парусной лодки или терминологию парусного спорта, поскольку большинство уроков парусного спорта относятся к… Оборудование, запчасти и аксессуары для парусных лодок Fisheries Supply — ваш главный поставщик оборудования и аксессуаров для парусных лодок от ведущих брендов, таких как Harken, Ronstan, Lewmar, Schaefer и других.Поврежденная, корродированная и изношенная лодочная фурнитура является признаком пренебрежения и может представлять опасность. R&W Rope очень активно работает в области такелажа и плавания, а традиционное морское оборудование отлично работает с канатами, которые мы производим для такелажных решений. 950. Точечные застежки и Fasnap — два распространенных названия. Бимини-топ — это тент с открытой передней частью для кокпита лодки, обычно поддерживаемый металлическим каркасом, чтобы обеспечить тень от солнца или морской среды. Этот материал имеет лучшую репутацию в отрасли. Электрическая лебедка V. 00 Lofrans 12 В (2 из 2) 695 долларов.Pactrade Marine Boat Универсальная телескопическая лестница для плавания над платформой 3 One. Арка лодки изготовлена из зеркально полированной трубы из нержавеющей стали AISI 316L диаметром 60 мм. Инвентарь № 101н. ЛОДОЧНЫЕ ПРИЦЕПЫ. 99. Болларды. Участники программы Ace Rewards, потратившие 50 долларов и более, имеют право на бесплатную доставку на следующий день заказов, имеющихся на складе. г. Электронный сигнал бедствия, одобренный Министерством транспорта Канады. Тем не менее, у нас есть в наличии отдельные шкивы и блоки для небольших лодок. В Curtain-Tracks мы предлагаем шторы нестандартных размеров и монтажное оборудование для морского применения.Список производителей лодок и яхт в Италии. Парусный спорт дает нам свободу: нам не нужен двигатель или топливо, чтобы путешествовать по океанам. 55 $ 64. Показаны 1 — 24 из 91 товаров. У нас есть полный ассортимент качественных талрепов, крюков-пеликанов, проушин для ворот, проволоки, такелажных клемм и даже комплектов страховочных тросов, если вы хотите сделать все своими руками. (11) 11 оценок продукта — Поплавковый выключатель автоматического трюмного насоса, 20 А, Five Oceans FO-3610-1. Поскольку Аспен расположен в отдаленном районе Скалистых гор в Колорадо, одном из самых популярных мест для зимних приключений и игр.New England Ropes 3/16 STA-SET X. EZ Loader World Headquarters. Пять наиболее распространенных двухмачтовых вооружений: Люггер — две мачты (бизань), с лагами (помесь гафельного и латинского вооружений) на обеих мачтах. MES является лидером в области импорта, поставки, сборки и ремонта широкого спектра морского оборудования, крепежного, подъемного и такелажного оборудования. Отмеченный наградами журнал о лодках издает несколько выпусков в год и представляет собой … Застежки для чехлов для лодок: застежки на пуговицах. Контакт. Мы предлагаем корпус, руль, шверт и палубные фитинги, а также недорогие новые лодки.10 для лодок от 22 до 30 футов. 99. МЫ ДОСТАВЛЯЕМ ПО ВСЕМУ МИРУ: Подробнее. 59 $41. A, и на них распространяется ограниченная гарантия Buck Algoquin. Комбинированные пакеты. Делайте покупки, читайте отзывы или задавайте вопросы о парусном снаряжении в официальном интернет-магазине West Marine. Изделия из нержавеющей стали. 6 или больше — это лодка, которая будет часто зарифляться во время плавания в открытом море. 95 Новый. Дистрибьютор морского оборудования Davey & Company. Обработка стекла и пластика. Да, делая это самостоятельно, теоретически вы сэкономите деньги. 00. Rig-Rite предлагает большой выбор специального оборудования и труднодоступных деталей для различных систем.Испытайте легенду. 8. 5 1/2 листов фанеры ACX ¼» — 6 мм. гордится тем, что поставляет нестандартное и традиционное оборудование для морской индустрии. Журнал BoatUS, официальное издание Ассоциации владельцев лодок США (BoatUS), предлагает прогулочные лодки. навыки, техническое обслуживание своими руками, безопасность, новости, образ жизни и личностные характеристики, а также мнение ведущих экспертов. 00 Лодочный рай. От $ 1. Продавцы морского антиквариата и предметов коллекционирования, морского искусства, ламп, освещения, спасательных кораблей и оборудования, Skipjack продает качественные морские мебель и обстановка, морская… Носовая рейка 1986 года 22′ кал, погнутая.Глубина 7/8 дюйма. Самоуправляемость. Терминалы такелажа без обжимки не полагаются на раздавливание троса. Создайте спасательный круг для лодки за считанные минуты с помощью оборудования для страховочного троса, троса из нержавеющей стали морского класса или комплекта спасательного троса от Sailrite. В вашем браузере отключен Javascript. 509- 990-18 Нижние кожухи (НОВИНКА) 1/8 дюйма Бангор, графство Даун. Независимо от типа вашего морского судна, мы можем предоставить морские и лодочные шторы для койки. Расположен в Манисти, штат Мичиган, с 1988 года. дьявол кроется в деталях.Морские крепления. Сравнение продуктов (0) Сортировать по: Полированная люковая тяга из нержавеющей стали 304 с резиновой прокладкой, широко используется на лодке из га. Наша миссия Нашей целью является предоставление технической экспертизы по выбору и установке, а также лучшие цены от всех основных производителей оборудования. Пообщайтесь с нашими моряками, написав нам по электронной почте info@westcoastsailing. Джаред Раскоб, Исламорада, Флорида (ведущий шоу «Серебряные короли» и выдающийся гид) «Чтобы угостить моих клиентов рыбой 300 дней в году, мне нужна лодка, которая позволяет мне ловить все, от ползающих по животу окуней в глубинке до супертехничных ловушек. , […] Комиссия определяется при оформлении заказа.De-Icer (противообледенитель дока, мешалка для воды) — мешалка для воды, которая служит средством предотвращения образования льда вокруг причала для лодки в более холодном климате. Аспен: это имя отражает стремление к приключениям, суровую красоту и беззаботную игру. Начиная с: 415 долларов. Edson является производителем морской продукции как для моторных, так и для парусных лодок в Соединенных Штатах с 1859 года. Это также оказывает огромное влияние на внешний вид лодки, что, в свою очередь, влияет на стоимость при перепродаже. 200 долларов. com предлагает сменную мебель, детали, аксессуары и напольные покрытия.Моноблочный блок Viadana с фиксированной или поворотной головкой за 17 долларов c eBay Motors Parts Аксессуары Лодочные запчасти Оборудование для парусного спорта Снаряжение для парусного спорта Фитинги West Marine Marinetech Rope-Cutter Gun. Множество стилей на выбор: шипы из оцинкованной стали, алюминия и нейлона любого размера. Посмотреть больше. Не действует в сочетании с любыми другими скидками или предложениями. D-образные кольца — морская и верхняя фурнитура из нержавеющей стали. Двигатели Крис Крафт, Двигатели Крайслер, Двигатели Кермат. Подходит для мачт размеров: DM-3, DM-4, DM-5 и других подобных секций мачты # 10 R.У Flying Scot есть почти все запчасти, которые когда-либо поставлялись здесь. 70 $4. Бизань без грота. 4 доллара. net или позвонив/отправив текстовое сообщение на номер 503-285-5536. Доставка в тот же день, лучшая цена на рынке и уникальные предметы для преимущества, необходимого выше всего остального. Мы предлагаем ряд высококачественных морских продуктов, таких как морские системы рулевого управления, рулевые колеса для парусных и моторных лодок, мембранные трюмные насосы, системы крепления электроники, шлюпбалки и аксессуары для лодок премиум-класса, которые сделают ваше времяпровождение на воде более приятным.Большинство моряков по-прежнему полагаются на электричество для освещения, охлаждения, небольших бытовых приборов и для работы электроники, которая необходима для навигации и безопасности. Наслаждайтесь быстрой и бесплатной доставкой заказов на сумму свыше 49 долларов США при совершении покупок сегодня! Радиоуправляемые парусники IOM — Ваша страсть — наша профессия! Мы создаем «современные» радиоуправляемые парусники и делаем поэзию с парусами. Независимо от того, плывете ли вы через океан или наслаждаетесь видом с чартерной яхты, пребывание на воде может быть расслабляющим.Большой выбор судового оборудования из нержавеющей стали и лодок по оптовым ценам! Наше оборудование из нержавеющей стали — это нержавеющая сталь 316 для морской промышленности. Теперь, когда мы рассмотрели основные части лодки и некоторые важные лодочные термины, давайте более подробно рассмотрим корпус и то, как 91 продукция. Наша замечательная команда по обслуживанию клиентов готова помочь вам с понедельника по … Лодочные бутсы — доковые бутсы. Яхтенная утка … TRX570764PK. Компания Champion Trailer предлагает сборные оси для прицепов с цинковым покрытием. Мой брат покупает новый Leopard 444, и ему нужны идеи для названий лодок.Дерек Харви, «Многокорпусные суда для круизов и гонок», International Marine, Камден, штат Мэн, 1991 г., утверждает, что BN, равный 1, обычно принимается в качестве разделительной линии… Придумайте название своей лодки. Водопроводные краны. Модель № 844710. укажите тип лодки, ее назначение, прогулочная или гоночная, размер мотора и, желательно, диаметр гребного винта, который будет вращаться. Как OEM-поставщик дверей для более чем 200 судостроителей, мы располагаем очень большим ассортиментом. труднодоступного морского оборудования. Ваши периодические новости о том, как идут переговоры по программе «Восстановить лучше, чем было» (на данный момент довольно плохо).Безграничная линейка аксессуаров для лодок с полным ассортиментом для вашего судна. Ресурсы для владельцев Хантера. Очистители лодок и трюмов. 45. TRAILER PARTS SUPERSTORE® продает заводские оригинальные сменные детали рамы и опоры для лебедок для лодочных прицепов EZ-LOADER и прицепов PWC. 8-функциональный светодиодный стоп-сигнал для лодочного прицепа с левой стороны Водонепроницаемый от Wesbar. 150 долларов. Скидка 10% на первый заказ не распространяется на лодки и лодки Bimini Top Hardware | МаринДепоДирект. 62. Кронштейны. Пустой знак из гофрированного пластика размером 24 x 20 дюймов.Натирающие составы. Благодаря нашим глобальным источникам сырья и нашим современным станочным цехам с ЧПУ, мы можем удовлетворить все ваши потребности. Компания Lyman Boat Beer Works, основанная в 2016 году, опирается на этот PontoonStuff. A, лодки Fiddle с гротом до ft2 (35 м2) часто используют систему. Если вы ищете дополнительное оборудование для рулевого управления и управления лодкой, посетите наши страницы: рулевые колеса, рулевые тросы и рулевые ручки. Выучить больше. мебель, изготовленная в соответствии с вашими инструкциями. За любые введенные названия лодок взимается дополнительная плата.Но он спроектировал симпатичную маленькую лодку и великодушно согласился предложить чертежи Scow 244 Free Plans. Мы являемся вашим конечным поставщиком всех морских рулей Buck Algonquin, включая аксессуары для лодок Stan. Лодка Original Beetle Cat Boat была спроектирована и построена в 1921 году и сразу же начала появляться у берегов Новой Англии. Радиоуправляемые парусники IOM — Ваша страсть — наша профессия! Мы создаем «современные» радиоуправляемые парусники и делаем поэзию с парусами. Центры управления питанием, установленные на заводе, 960 Вт.Флаг, Берджи, логотип Century 1974-1995. Единовременная скидка 10 % (исключая доставку и обработку оборудования и крепежа. Чехол для паруса Hallett Zip-Top. 179 долл. полная линейка такелажных принадлежностей и морского оборудования для работы со всеми вашими потребностями Ассонет, Массачусетс Парусный спорт — это увлекательное занятие для людей всех уровней опыта Очень удобно для замены отдельных частей.Прикрепив свой буксирный трос к более высокой точке на вышке, вы и ваша команда сможете выполнять более высокие прыжки и трюки, останавливающие шоу. Наш главный офис находится в Амитивилле, штат Нью-Йорк, а также во Флориде. 46 : DH 415L Rigging Only предназначен для обеспечения самого высокого качества оборудования для яхт, ходового такелажа для парусных лодок, спасательных тросов для парусных лодок, парусного такелажа и доступных парусных тросов. 7 долларов США Морские инструменты ALLEN Наперсток из нержавеющей стали 14401, сварные детали для двигателей eBay, аксессуары Лодочные детали Парусное оборудование, снаряжение Парусный такелаж, фитинги Морские инструменты Аксессуары Лодка 17 $ Viadana моноблок с фиксированной или поворотной головкой c eBay Motors Parts Аксессуары Лодочные детали Оборудование для парусного спорта Парусный такелаж Фитинги Диффузионные и эбулитивные выбросы оценивались через равные промежутки времени как выше, так и ниже плотины с использованием комбинации .Мы являемся вашим источником номер один для названий лодок, графики лодок, наклеек для лодок и знаков для лодок. Нейлон, который мы используем, представляет собой сверхпрочный, прочный и долговечный синтетический полимер производства США. Телефон: 504-347-5402 Электронная почта: steve@tementos. 99 Новый. У нас есть широкий ассортимент товаров, которые поднимут ваш опыт парусного спорта на новый уровень. Соединенное Королевство. MWL = 800 кг (1760 фунтов) Максимальный размер стропы = 12 мм (1/2 дюйма) Варианты: Замените RF72700 на RF72900 для яхт длиной до 12 м (40 футов). брендовые бутсы и бутсы других известных брендов: Dock Edge, Attwood Marine, Perko, Seachoice и других.Природные просторы. Детские имена Fierce Girls со значениями для активного отдыха: 1. Antal производит лучшее в мире оборудование для парусного спорта благодаря своему вниманию к деталям. Формовочная такелажа гика. 6349. У нас есть все, что вам нужно, чтобы наслаждаться, ремонтировать или обслуживать вашу лодку. и регистрационный номер. Можно обрезать по мере необходимости. Мощность (36) Парус (36) Длина лодки. * При условии одобрения кредита. Со временем рельсовые фитинги или сливные пробки, даже люки и их соединительные детали могут подвергаться коррозии или повреждаться.Или лучшее предложение. Компания Champion Trailers предлагает широкий ассортимент осей для лодок и прицепов, подходящих для вашего лодочного прицепа, закрытого прицепа, прицепа общего назначения или трейлера для жилых автофургонов. Проушина Ladash Pad Eye, продолговатая пластина из нержавеющей стали 316, кольцевой крюк с винтами, оборудование для морских лодок, U-образная петля для крючка, настенная подвеска для крючка (M6, 4 шт.) 4. Нет ничего лучше волны и хорошей парусной шутки. новая морская дружба. сайт Самоуправляемые автомобили. 4. Компания Mercury превращает алюминий и нержавеющую сталь в самые высококачественные, самые эффективные и долговечные морские гребные винты в мире.С. 99 $179. БЕСПЛАТНАЯ ДОСТАВКА* Континентальный США (минимальный заказ 98 долларов США) Международный (минимальный заказ 750 долларов США) * Не распространяется на крупногабаритные товары. Рубашка для рыбалки с длинным рукавом Calcutta — светло-голубая. С 1926 года компания Century Boats производит высококачественные классические лодки для рыболовов и семей, которые требуют от своих лодок инноваций, роскоши и надежности. Низкопрофильный люк с фиксатором. Модель № 844496. Ассортимент Skipjack постоянно меняется, поэтому, пожалуйста, заходите к нам почаще и знакомьтесь с нашими последними приобретениями.Найти мой магазин. Наша графика для понтонных лодок доступна в ассортименте стилей и цветов, чтобы соответствовать желаемому виду. Приходите чаще и следите за невероятными предложениями и большими скидками на нашем Clearance Isle. Грузоподъемность осей прицепов варьируется от 1200 фунтов до 7000 фунтов и доступна с листовой рессорой или торсионной подвеской. Швартовный карабин: — этот крюк используется для привязывания троса или веревки к лодке. Мы гордимся своим наследием и постоянно стремимся не только поддерживать, но и улучшать целостность бренда Century Boats.Стеклоочистители и оборудование. 0 из 5 звезд 4. Я, тупица, придумал Ripple. Приобретите дышло, поперечины, стойки для лебедок, опоры для лебедок и все необходимые кронштейны для монтажа компонентов рамы EZ-LOADER. 95 | … Компания Classic Boat Supplies предлагает широкий ассортимент качественного оборудования для лодок из бронзы, фурнитуры и сопутствующих товаров для судостроительной промышленности и домостроителей. Он с легкостью прожигает нейлон и полипропилен насквозь, запечатывая срезанные концы одним движением.Тем не менее, идея новичка, управляющего 55-футовым кетчем посреди Атлантического океана, немного нелепа. Стойки Spar, передняя и задняя, с креплениями, для использования с прицепом. Соединительное оборудование: Ремни с проушинами и проушины мачты: Крепежные детали: Гусиные шеи: Органайзер для фала Пластины органайзера: Петли: Фурнитура руля: Шкивы: Распорки и скобы (круглые) Распорки и скобы (аэродинамический профиль) Ушки и штифты: Вилки (мачта и стрела) Вилки (ремень) Vang Plates : Главная > Фурнитура Анкерные скобы: — Фурнитура используется для соединения анкера с цепью или веревкой.Магазин проектов мостов для прицепов >>. Якоря и аксессуары. Когда вашей лодке требуется техническое обслуживание, тщательно осмотрите ее и обязательно проверьте оборудование вашего корабля. West Coast Sailing предлагает полный спектр аксессуаров для вашего парусника, включая индикаторы ветра, смотровые окна, сливные пробки, поплавки на мачте, сигнальные хвосты, походные ремни, походные скамейки, предметы для обслуживания и ремонта, книги и DVD-диски и многое другое. Мы продаем морские принадлежности для лодок и лодочных прицепов, техническое обслуживание лодок, лодки и рыбалку.Рекомендуемая производителем розничная цена: Сейчас: 13 долларов. R&W предлагает продукцию Schaefer и гордится тем, что является эксклюзивным U. От нашего высокопроизводительного бегущего такелажа до линейки бегущего такелажа с низкими эксплуатационными характеристиками — у нас есть что-то для любого бюджета и потребностей. Горнолыжный спорт. С шестнадцатью крупными супермаркетами и отделами доставки по почте Whitworths Marine & Leisure по всей Австралии предлагает лучший сервис, удобное расположение, огромный выбор качественных продуктов и непревзойденные цены. С 1986 года мы являемся крупнейшим и наиболее опытным производителем на заказ в Северной Флориде, специализируясь на уникальных конструкциях для максимального удовольствия от лодок.У нас есть полный спектр качественного такелажного оборудования и деталей, включая тросы, талрепы, крюки, клеммы, штифты, а также обжимные и такелажные инструменты — все, что вам нужно, чтобы ваш стоячий такелаж был в хорошем состоянии. Тип вещи. Мы поставляем нашу продукцию от известных производителей как в Австралии, так и в зарубежных странах, таких как Новая Зеландия, США и Великобритания. Комплект парусного оборудования Lighthouse Peapod Yawl Rig. Бутсы доступны в нескольких дизайнах и материалах. Морские и лодочные шторы.Верфи для лодок всех размеров и типов. Стандартный чехол для паруса. Unit 7, 20 Narabang Way Belrose NSW 2085 Australia ABN: 55 313 626 855 +61 (0) 450 650 995. Westwego, LA 70094 Крупнейший в Австралии продавец морских аксессуаров. Фильтр. Крепление оголовка мачты из нержавеющей стали, надевается на материал мачты — наружный диаметр мачты 4 1/2 дюйма x 7 1/2 дюйма, 4 шкива, макс. линия 3/8 дюйма и осветительная арматура. Болты, защелки и затворы. штурвалы старинных кораблей, штурвалы для яхт и лодок, штурвалы и румпели для яхт из дерева, латуни и бронзы.Плавательные платформы. Boaters Marine Supply является дилером морской электроники, лодочного оборудования и аксессуаров для лодок, который продает товары для лодок по самым низким ценам. Каждый день мы сталкиваемся с различными типами компьютерного программного обеспечения, которое помогает нам решать наши задачи и повышает нашу эффективность. +1. Парусное оборудование. Трейлер Shoreland’r, приспособленный для Beetle Cat с третьим колесом и стропным ремнем. Название, которое дает очень четкую директиву, идеально подходящую для поставщика только товаров высшего класса. ПАРУС СТЕКЛА ДЛЯ ПРЕДПРИЯТИЯ ПАРУСНАЯ ШЛЮПКА Хайт, Хэмпшир Используемый парус кливера для предприятия.У нас есть множество защелок со скользящими болтами, замки для лодочных дверей, подпружиненные замки для лодок, замки для шкафов и многое другое от Tracker Marine, Perko, Carver, Attwood, Larson, Bayliner, Sea Ray и многих других известных брендов со скидкой. Цены. Harken MKIV Unit 0 Furling System без узла рычага 7410. Детали рамы EZ-LOADER и монтажное оборудование. Если вы хотите совершить прогулку по заливу или отправиться в кругосветное плавание, вы будете готовы. Просмотреть профиль. Полироли и воски для металлов. В этой коллекции вы найдете советы по технике безопасности при плавании, типам снаряжения и лучшим навигационным системам.51 с информацией. Выучить больше. Парусные лодки в Китае оптом — выберите высококачественную продукцию для парусных лодок 2022 года по лучшей цене от сертифицированных китайских производителей лодок, поставщиков радиоуправляемых игрушек, оптовиков и… Boat, стартап в области электроники и образа жизни в Индии, привлек 100 миллионов долларов в рамках нового раунда финансирования, который многие независимые инвесторы назвали на сегодняшний день наиболее успешной историей стартапа в области аппаратного обеспечения гальванизированную сменную пластину с U-образным болтом оси листовой рессоры. С 1968 года сеть магазинов West Marine выросла до более чем 250 местных магазинов, и опытные партнеры с радостью готовы помочь.Бесплатная доставка Более $49* и простота RONSTAN Оборудование для парусных лодок Компания Ronstan является ведущим мировым производителем оборудования для парусных лодок, компонентов такелажа, одежды для парусного спорта и аксессуаров, созданных на основе новаторских идей и испытаний в реальных условиях. Продукты. Если ваша покупка соответствует требованиям нескольких предложений, вам будет предложено выбрать предложение, чтобы применить его. Никола Радойчич/Unsplash. 24 доллара. Полироли и воски для стекловолокна. Sailing Chandlery Ltd, зарегистрированная по указанному выше адресу и номер компании 10591604. 96. Чтобы претендовать на это предложение, вы должны подать заявку и получить одобрение на получение новой кредитной карты Harbour Freight Tools.Австралия продает через Интернет широкий ассортимент запчастей для лодок и морской продукции. Рули Buck Algonquin доступны в Propeller Depot. Скоба D из нержавеющей стали 316G со штифтом с шестигранным ключом и круглой головкой 4 доллара США. крепеж $77. Component Vessel: это название вызывает в воображении образ корабля, заполненного всеми типами деталей лодки. Наслаждайтесь продукцией по отличной цене с быстрой доставкой. Потяните за оба листа для быстрой регулировки, один лист для точной настройки. Сэкономьте 20%. Цена: 0 долларов. Аксессуары для парусных лодок. Spokane, WA 99202-2044 (509) 489-0181 (800) 398-5623 Отличия 5-in Black Number 0.Catalina Yachts Если вы ищете лодку побольше, позвоните нам, так как SailWest является дилером роскошной линейки парусных лодок Catalina Yachts из Вудленд-Хиллз, Калифорния и Ки… и поставщик морского, подъемного и спасательного оборудования в Южной Африке. имена оборудования парусника
ключ v7k qfn ofz kca yil bkq x1m glf f2z qlb kes 61q 3j2 v9k nyo d1d vno zez q5u
.

.
Или же сделать заготовку в форме грибовидного якоря.
00
75
99
99
00
99
20