ΠΠ°ΡΠ΅Ρ ΠΈΠ· ΡΠ°Π½Π΅ΡΡ ΡΠ²ΠΎΠΈΠΌΠΈ ΡΡΠΊΠ°ΠΌΠΈ: ΡΠ΅ΠΊΠΎΠΌΠ΅Π½Π΄Π°ΡΠΈΠΈ
ΠΡΠ΅ ΡΠΎΠ²ΡΠ΅ΠΌ Π½Π΅Π΄Π°Π²Π½ΠΎ ΡΠ°ΠΌΠΎΠ΄Π΅Π»ΡΠ½ΡΠ΅ Π»ΠΎΠ΄ΠΊΠ° ΠΈΠ»ΠΈ ΠΊΠ°ΡΠ΅Ρ ΠΈΠ· ΡΠ°Π½Π΅ΡΡ Π±ΡΠ»ΠΈ Π½Π° ΠΏΠΈΠΊΠ΅ ΠΏΠΎΠΏΡΠ»ΡΡΠ½ΠΎΡΡΠΈ. Π Π½Π°ΡΡΠΎΡΡΠ΅Π΅ Π²ΡΠ΅ΠΌΡ ΠΏΠΎΡΠ²ΠΈΠ»ΠΎΡΡ Π΄ΠΎΠ²ΠΎΠ»ΡΠ½ΠΎ Π±ΠΎΠ»ΡΡΠΎΠ΅ ΠΊΠΎΠ»ΠΈΡΠ΅ΡΡΠ²ΠΎ Π²ΡΠ΅Π²ΠΎΠ·ΠΌΠΎΠΆΠ½ΡΡ ΠΌΠ΅ΡΠΎΠ΄ΠΈΠΊ Π΄Π»Ρ ΠΎΠ±ΡΠ°Π±ΠΎΡΠΊΠΈ ΡΠ°Π½Π΅ΡΡ. ΠΠΎ ΡΠ°ΠΊ ΠΊΠ°ΠΊ ΡΠ°ΡΡΠΌΠ°ΡΡΠΈΠ²Π°Π΅ΠΌΠΎΠ΅ ΠΏΠ»Π°Π²ΡΡΠ΅Π΄ΡΡΠ²ΠΎ ΠΏΠ»Π°Π½ΠΈΡΡΠ΅Ρ Π±ΡΡΡ ΠΌΠ°Π»ΠΎΠΌΠ΅ΡΠ½ΡΠΌ, ΡΠΎ Π½ΠΈΡΠ΅Π³ΠΎ ΡΠ»ΠΎΠΆΠ½ΠΎΠ³ΠΎ Π΄Π»Ρ Π΅Π³ΠΎ ΡΠΎΠ·Π΄Π°Π½ΠΈΡ Π½Π΅ ΠΏΠΎΠ½Π°Π΄ΠΎΠ±ΠΈΡΡΡ.

ΠΠΎΡΡΡΠΏΠ½Π°Ρ ΡΡΠΎΠΈΠΌΠΎΡΡΡ ΠΌΠ°ΡΠ΅ΡΠΈΠ°Π»ΠΎΠ², ΠΌΠΎΠ±ΠΈΠ»ΡΠ½ΠΎΡΡΡ ΠΈ ΠΏΡΠΎΡΡΠΎΡΠ° ΠΊΠΎΠ½ΡΡΡΡΠΊΡΠΈΠΈ ΡΠ²Π»ΡΡΡΡΡ Π½Π΅ΠΎΡΠΏΠΎΡΠΈΠΌΡΠΌΠΈ ΠΏΠ»ΡΡΠ°ΠΌΠΈ ΡΠ°ΠΌΠΎΠ΄Π΅Π»ΡΠ½ΠΎΠ³ΠΎ ΠΊΠ°ΡΠ΅ΡΠ° ΠΈΠ· ΡΠ°Π½Π΅ΡΡ.
ΠΡΠ½ΠΎΠ²Π½ΡΠ΅Β ΡΠ°Π±ΠΎΡΡ
ΠΠ»Π°Π²Π½ΡΠΉ Π½Π΅ΠΎΠ±Ρ ΠΎΠ΄ΠΈΠΌΡΠΉ ΠΌΠ°ΡΠ΅ΡΠΈΠ°Π» β ΡΠ°Π½Π΅ΡΠ°. ΠΠ΅ΡΠ΅ΡΠΈΡΠ»ΡΡΡ Π²ΡΠ΅ ΠΏΠ»ΡΡΡ ΡΠ°Π½Π΅ΡΠ½ΠΎΠ³ΠΎ Π»ΠΈΡΡΠ° Π½Π΅ ΠΈΠΌΠ΅Π΅Ρ ΡΠΌΡΡΠ»Π°. ΠΡΠΎΡΡΠΎ ΡΠ»Π΅Π΄ΡΠ΅Ρ ΠΎΡΠΌΠ΅ΡΠΈΡΡ, ΡΡΠΎ Π½Π΅ΠΎΠ±Ρ ΠΎΠ΄ΠΈΠΌΡ Π€Π‘Π€-Π»ΠΈΡΡΡ ΡΠ°Π·Π½ΠΎΠΉ ΡΠΎΠ»ΡΠΈΠ½Ρ (ΠΎΡ 5 Π΄ΠΎ 15 ΠΌΠΌ) Π΄Π»Ρ ΠΈΠ·Π³ΠΎΡΠΎΠ²Π»Π΅Π½ΠΈΡ ΠΎΡΠ΄Π΅Π»ΡΠ½ΡΡ Π΄Π΅ΡΠ°Π»Π΅ΠΉ. ΠΡΠΎΡ ΡΡΠΎΠΉΠΊΠΈΠΉ ΠΊ Π²Π»Π°Π³Π΅ ΠΌΠ°ΡΠ΅ΡΠΈΠ°Π» Π½Π΅ΠΎΠ΄Π½ΠΎΠΊΡΠ°ΡΠ½ΠΎ ΠΎΠ±ΡΠ°Π±ΠΎΡΠ°Π΅ΡΡΡ Π² Ρ ΠΎΠ΄Π΅ ΡΠ°Π±ΠΎΡΡ. ΠΠ°ΠΆΠ½ΠΎ ΠΎΠ±ΡΠ°ΡΠΈΡΡ Π²Π½ΠΈΠΌΠ°Π½ΠΈΠ΅ Π½Π° ΡΠΎ, ΡΡΠΎΠ±Ρ ΡΠ°Π½Π΅ΡΠ° Π±ΡΠ»Π° ΠΊΠ°ΡΠ΅ΡΡΠ²Π΅Π½Π½Π°Ρ: Π½Π΅ ΠΈΠΌΠ΅Π»Π° ΡΡΠ΅ΡΠΈΠ½, Π²ΡΠ΅Π²ΠΎΠ·ΠΌΠΎΠΆΠ½ΡΡ ΡΡΡΠΊΠΎΠ², ΡΠ°Π·Π»ΠΈΡΠ½ΡΡ ΡΠ°ΡΡΠ»ΠΎΠ΅Π½ΠΈΠΉ. ΠΡ ΡΡΠΎΠ³ΠΎ Π·Π°Π²ΠΈΡΠΈΡ Π½Π°Π΄Π΅ΠΆΠ½ΠΎΡΡΡ Π²Π°ΡΠ΅ΠΉ Π»ΠΎΠ΄ΠΊΠΈ ΠΈΠ»ΠΈ ΠΊΠ°ΡΠ΅ΡΠ° ΠΈ Π²Π°ΡΠ° Π±Π΅Π·ΠΎΠΏΠ°ΡΠ½ΠΎΡΡΡ Π² ΡΠΎΠΌ ΡΠΈΡΠ»Π΅.
ΠΠ»Ρ ΠΏΡΠΎΠΈΠ·Π²ΠΎΠ΄ΡΡΠ²Π° ΠΊΠ°ΡΠ΅ΡΠ° ΡΠ²ΠΎΠΈΠΌΠΈ ΡΡΠΊΠ°ΠΌΠΈ Π½Π΅ΠΎΠ±Ρ ΠΎΠ΄ΠΈΠΌΠΎ ΠΏΠΎΠ΄Π³ΠΎΡΠΎΠ²ΠΈΡΡ Π»ΠΈΡΡΡ ΠΊΠ°ΡΠ΅ΡΡΠ²Π΅Π½Π½ΠΎΠΉ ΡΠ°Π½Π΅ΡΡ ΡΠ°Π·Π½ΠΎΠΉ ΡΠΎΠ»ΡΠΈΠ½Ρ.
Π‘ΠΎΠ²Π΅Ρ ΠΏΡΠΎΡΠ΅ΡΡΠΈΠΎΠ½Π°Π»Π°: ΡΠ΅ΠΌ Π±ΠΎΠ»ΡΡΠ΅ Π»ΠΈΡΡ, ΡΠ΅ΠΌ ΡΠ΄ΠΎΠ±Π½Π΅Π΅, Π±ΡΡΡΡΠ΅Π΅ ΠΈ ΠΏΡΠΎΡΠ΅ Ρ Π½ΠΈΠΌ Π² ΡΠ°Π±ΠΎΡΠ΅.
Π’Π°ΠΊΠΆΠ΅ Π² ΠΏΡΠΎΡΠ΅ΡΡΠ΅, ΠΊΡΠΎΠΌΠ΅ ΡΠ°Π½Π΅ΡΡ, ΠΏΠΎΠ½Π°Π΄ΠΎΠ±ΠΈΡΡΡ:
- ΠΡΠ΅Π²Π΅ΡΠΈΠ½Π°. ΠΠ΅ΠΎΠ±Ρ ΠΎΠ΄ΠΈΠΌΠ° Π΄Π»Ρ ΠΎΡΠΎΡΠΌΠ»Π΅Π½ΠΈΡ Π²Π½ΡΡΡΠ΅Π½Π½ΠΈΡ ΡΠ°ΡΠΏΠΎΡΠΎΠ², Π±ΠΎΡΡΠΈΠΊΠΎΠ² ΠΈ ΡΠΈΠ΄Π΅Π½ΠΈΠΉ. ΠΡΠ±ΠΎΡ ΡΠ»Π΅Π΄ΡΠ΅Ρ ΠΎΡΡΠ°Π½ΠΎΠ²ΠΈΡΡ Π½Π° ΠΎΠ±ΡΠ΅Π·Π½ΠΎΠΉ ΠΎΡΡΡΡΠ³Π°Π½Π½ΠΎΠΉ Π΄ΠΎΡΠΊΠ΅. ΠΠ°ΠΊ ΠΏΡΠ°Π²ΠΈΠ»ΠΎ, Π΄Π»Ρ ΡΡΠΎΠ³ΠΎ ΠΏΠΎΠ΄ΠΎΠΉΠ΄ΡΡ Π²ΠΈΠ΄Ρ Π΄Π΅ΡΠ΅Π²Π° ΠΏΠΎΠ»Π΅Π³ΡΠ΅.
- Π¨ΠΎΠ²Π½ΡΠΉ ΠΌΠ°ΡΠ΅ΡΠΈΠ°Π». ΠΠ΅ΠΎΠ±Ρ ΠΎΠ΄ΠΈΠΌ Π΄Π»Ρ ΡΠΊΡΠ΅ΠΏΠ»Π΅Π½ΠΈΡ Π΄Π΅ΡΠ°Π»Π΅ΠΉ ΠΎΠ±ΡΠΈΠ²ΠΊΠΈ Π² ΠΎΠ΄Π½ΠΎ ΡΠ΅Π»ΠΎΠ΅. Π ΡΡΠΎΠΌ ΠΌΠΎΠΆΠ΅Ρ ΠΏΠΎΠΌΠΎΡΡ ΡΠΎΠ½ΠΊΠ°Ρ ΠΏΡΠΎΠ²ΠΎΠ»ΠΎΠΊΠ°, ΠΏΠ»Π°ΡΡΠΈΠΊΠΎΠ²ΡΠΉ Ρ ΠΎΠΌΡΡ ΠΈΠ»ΠΈ ΠΊΠ°ΠΏΡΠΎΠ½ΠΎΠ²Π°Ρ Π»Π΅ΡΠΊΠ° (ΠΏΠΎΡΠΎΠ»ΡΠ΅).
- ΠΠ»Π΅ΠΉ. ΠΠ΅ΠΎΠ±Ρ ΠΎΠ΄ΠΈΠΌ Π΄Π»Ρ ΡΠΎΠ³ΠΎ, ΡΡΠΎΠ±Ρ ΡΠ²Ρ ΠΈΠΌΠ΅Π»ΠΈ Π΄ΠΎΠ»ΠΆΠ½ΡΡ Π³Π΅ΡΠΌΠ΅ΡΠΈΡΠ½ΠΎΡΡΡ. Π Π²Π΅ΠΊ ΠΏΡΠΎΠ³ΡΠ΅ΡΡΠΈΠ²Π½ΡΡ ΡΠ΅Ρ Π½ΠΎΠ»ΠΎΠ³ΠΈΠΉ Π²ΡΠ΅ Π±ΠΎΠ»ΡΡΠ΅ ΠΌΠ°ΡΡΠ΅ΡΠΎΠ² ΠΏΡΠ΅Π΄ΠΏΠΎΡΠΈΡΠ°ΡΡ ΠΏΠΎΠ»ΠΈΠΌΠ΅ΡΠ½ΡΠ΅ ΡΠΌΠΎΠ»Ρ.
ΠΡΠΎΡ ΡΠΏΠΈΡΠΎΠΊ ΠΌΠΎΠΆΠ½ΠΎ ΠΏΡΠΎΠ΄ΠΎΠ»ΠΆΠ°ΡΡ, Π½ΠΎ Π΅ΡΠ»ΠΈ ΠΎΡΡΠ°Π½ΠΎΠ²ΠΈΡΡΡΡ Π½Π° ΡΠ°ΠΌΠΎΠΌ Π½Π΅ΠΎΠ±Ρ ΠΎΠ΄ΠΈΠΌΠΎΠΌ, ΡΠΎ Π΄ΠΎΠΏΠΎΠ»Π½ΠΈΡΡ Π΅Π³ΠΎ ΠΌΠΎΠΆΠ½ΠΎ Π΅ΡΠ΅ ΡΠ°Π·Π»ΠΈΡΠ½ΡΠΌΠΈ Π»Π°ΠΊΠ°ΠΌΠΈ ΠΈ ΠΏΡΠΎΠΏΠΈΡΠΊΠ°ΠΌΠΈ, ΡΠ»ΡΠΆΠ°ΡΠΈΠΌΠΈ Π΄Π»Ρ ΠΏΡΠ΅Π΄ΠΎΡΠ²ΡΠ°ΡΠ΅Π½ΠΈΡ ΡΠ°Π·Π±ΡΡ Π°Π½ΠΈΡ ΠΈ Π³Π½ΠΈΠ΅Π½ΠΈΡ. ΠΠ»Ρ ΠΎΠΊΠ»Π΅ΠΉΠΊΠΈ ΡΠ²ΠΎΠ² ΠΏΠΎΠ½Π°Π΄ΠΎΠ±ΠΈΡΡΡ ΡΡΠ΅ΠΊΠ»ΠΎΡΠΊΠ°Π½Ρ ΠΈΠ»ΠΈ Π΅Π΅ Π°Π½Π°Π»ΠΎΠ³ β ΡΡΠ΅ΠΊΠ»ΠΎΠΏΠ»Π°ΡΡΠΈΠΊ. Π Π½Π΅ ΡΡΠΎΠΈΡ Π·Π°Π±ΡΠ²Π°ΡΡ ΠΎ ΠΊΡΠ°ΡΠΎΡΠ΅. Π ΡΡΠΎΠΌ Π²Π°ΠΌ ΠΏΠΎΠΌΠΎΠΆΠ΅Ρ ΠΊΡΠ°ΡΠΊΠ°.
ΠΡΠ»ΠΈ Π³ΠΎΠ²ΠΎΡΠΈΡΡ ΠΎ Π²ΡΠ±ΠΎΡΠ΅ ΠΈΠ½ΡΡΡΡΠΌΠ΅Π½ΡΠ°, ΡΠΎ ΡΠΏΠΈΡΠΎΠΊ ΠΌΠΎΠΆΠ½ΠΎ ΡΡΠΈΡΠ°ΡΡ ΠΏΠΎΡΡΠΈ ΡΡΠ°Π½Π΄Π°ΡΡΠ½ΡΠΌ:
- ΠΏΠΈΠ»Π° Π΄Π»Ρ ΡΠ°Π±ΠΎΡΡ Ρ Π΄Π΅ΡΠ΅Π²ΠΎΠΌ:
- Π»ΠΎΠ±Π·ΠΈΠΊ/ΡΠ»Π΅ΠΊΡΡΠΎΠ»ΠΎΠ±Π·ΠΈΠΊ, Π½Π°Π±ΠΎΡ ΠΏΠΎΠ»ΠΎΡΠ΅Π½ ΡΠ°Π·Π»ΠΈΡΠ½ΠΎΠ³ΠΎ ΡΠ°Π·ΠΌΠ΅ΡΠ°;
- ΠΌΠ°ΡΠΈΠ½Π° Π΄Π»Ρ ΡΠ»ΠΈΡΠΎΠ²ΠΊΠΈ;
- ΠΌΠΎΠ»ΠΎΡΠΎΡΠ΅ΠΊ, ΡΡΠ°ΠΌΠ΅ΡΠΊΠ°, ΠΏΠ°ΡΡΠ°ΡΠΈΠΆΠΈ ΠΈ ΠΏΡ.;
- ΡΠ°Π·Π»ΠΈΡΠ½ΡΠ΅ ΠΊΠΈΡΡΠΈ: Π»Π°ΠΊΠΈΡΠΎΠ²ΠΎΡΠ½ΡΠ΅, ΠΏΡΠΎΠΏΠΈΡΠΎΡΠ½ΡΠ΅, Π΄Π»Ρ ΠΎΠΊΡΠ°ΡΠΊΠΈ ΠΌΠ°ΡΠ΅ΡΠΈΠ°Π»Π° (ΡΠ°Π½Π΅ΡΡ).
Π Π²ΡΠ±ΠΎΡΠ΅ ΠΌΠΎΠ΄Π΅Π»ΠΈ ΡΠΎΠ²Π΅ΡΠΎΠ²Π°ΡΡ ΡΡΠΎ-ΡΠΎ ΡΠ»ΠΎΠΆΠ½ΠΎ. ΠΠ΅Π΄Ρ Ρ ΠΊΠ°ΠΆΠ΄ΠΎΠ³ΠΎ ΠΌΠ°ΡΡΠ΅ΡΠ° ΡΠ²ΠΎΠΈ ΠΏΡΠ΅Π΄ΠΏΠΎΡΡΠ΅Π½ΠΈΡ. ΠΠΎΠΆΠ½ΠΎ Π²Π·ΡΡΡ ΡΡΠ΅Π΄Π½ΠΈΠ΅ ΡΠ°Π·ΠΌΠ΅ΡΡ:
- ΠΠ»ΠΈΠ½Π° ΡΡΠ΅Π΄Π½Π΅ΡΡΠ°ΡΠΈΡΡΠΈΡΠ΅ΡΠΊΠΎΠΉ ΠΏΠ»Π°Π²Π°ΡΠ΅Π»ΡΠ½ΠΎΠΉ ΠΊΠΎΠ½ΡΡΡΡΠΊΡΠΈΠΈ ΡΠΎΡΡΠ°Π²ΠΈΡ 3,5 ΠΌ.
- Π¨ΠΈΡΠΈΠ½Π° β 1,35 ΠΌ. ΠΡΠΎΠ³ΠΎ Π²ΠΏΠΎΠ»Π½Π΅ Π΄ΠΎΡΡΠ°ΡΠΎΡΠ½ΠΎ Π΄Π»Ρ Π»ΠΎΠ΄ΠΊΠΈ/ΠΊΠ°ΡΠ΅ΡΠ°.
- ΠΡΡΠΎΡΠ° Π±ΠΎΡΡΠ° β 50 ΡΠΌ.
ΠΠ΅ΡΠ½ΡΡΡΡΡ ΠΊ ΠΎΠ³Π»Π°Π²Π»Π΅Π½ΠΈΡ
ΠΡΠ΅ ΠΎ ΠΊΡΠΎΠ²Π»Π΅ ΠΊΡΡΡ ΡΠ²ΠΎΠΈΠΌΠΈ ΡΡΠΊΠ°ΠΌΠΈ β kryshikrovli.ru.
Π Π°ΡΠΊΡΠΎΠΉΠΊΠ°, ΠΈΠ·Π³ΠΎΡΠΎΠ²Π»Π΅Π½ΠΈΠ΅ Π΄Π΅ΡΠ°Π»Π΅ΠΉ
ΠΡΡ ΡΠ°Π·ΠΌΠ΅ΡΠΊΠ° Π΄Π΅Π»Π°Π΅ΡΡΡ Π½Π° ΡΠ°Π½Π΅ΡΠ½ΡΡ Π»ΠΈΡΡΠ°Ρ , ΠΏΠΎΡΠ»Π΅ ΡΠ΅Π³ΠΎ ΠΏΡΠΎΠΈΠ·Π²ΠΎΠ΄ΠΈΡΡΡ ΡΠ°ΡΠΏΠΈΠ» ΠΌΠ°ΡΠ΅ΡΠΈΠ°Π»Π° ΠΏΠΎ Π½Π΅ΠΉ. ΠΠ»Ρ ΡΡΠΎΠ³ΠΎ Π²Π°ΠΌ ΠΏΠΎΠ½Π°Π΄ΠΎΠ±ΠΈΡΡΡ ΡΠ»Π΅ΠΊΡΡΠΈΡΠ΅ΡΠΊΠΈΠΉ Π»ΠΎΠ±Π·ΠΈΠΊ. ΠΠ΅ ΡΠ»Π΅Π΄ΡΠ΅Ρ ΠΏΡΡΠ°ΡΡΡΡ ΡΠ°ΡΠΏΠΈΠ»ΠΈΡΡ ΡΠ°Π½Π΅ΡΡ Π΄ΡΡΠ³ΠΈΠΌΠΈ ΠΈΠ½ΡΡΡΡΠΌΠ΅Π½ΡΠ°ΠΌΠΈ. Π ΠΏΡΠΎΡΠΈΠ²Π½ΠΎΠΌ ΡΠ»ΡΡΠ°Π΅ ΡΡΠΎ ΠΏΡΠΈΠ²Π΅Π΄Π΅Ρ ΠΊ ΠΏΠ»ΠΎΡ ΠΈΠΌ Π»ΠΈΠ½ΠΈΡΠΌ ΡΡΠ΅Π·Π° ΠΈ ΡΠΊΠΎΠ»Π°ΠΌ ΠΌΠ°ΡΠ΅ΡΠΈΠ°Π»Π°.
ΠΠ°Π΄Π½ΠΈΠΉ Π±ΠΎΡΡ ΠΈ ΡΠΏΠ°Π½Π³ΠΎΡΡΡ ΡΠΊΠ»Π΅ΠΈΠ²Π°ΡΡ Π΄ΠΎ Π½Π΅ΠΎΠ±Ρ ΠΎΠ΄ΠΈΠΌΠΎΠΉ ΡΠΎΠ»ΡΠΈΠ½Ρ ΠΈ ΠΏΡΠΎΡΠ½ΠΎΡΡΠΈ.
Π Π½Π°ΡΠ°Π»Π΅ ΡΠ°Π±ΠΎΡΡ ΠΏΠΎ ΡΠ±ΠΎΡΠΊΠ΅ ΠΊΠ°ΡΠ΅ΡΠ° ΡΠ²ΠΎΠΈΠΌΠΈ ΡΡΠΊΠ°ΠΌΠΈ Π½ΡΠΆΠ½ΠΎ ΠΏΡΠΎΠΈΠ·Π²Π΅ΡΡΠΈ ΡΠ°ΡΡΠ΅ΡΡ, Π° Π·Π°ΡΠ΅ΠΌ ΡΠ°Π·ΠΌΠ΅ΡΠΊΡ ΠΈ ΡΠ°ΡΠΏΠΈΠ» ΡΠ°Π½Π΅ΡΡ ΡΠ»Π΅ΠΊΡΡΠΎΠ»ΠΎΠ±Π·ΠΈΠΊΠΎΠΌ.
ΠΡΠ»ΠΈ ΡΡΠΎ Π²ΡΠ΅ ΠΆΠ΅ Π±ΡΠ΄Π΅Ρ ΠΊΠ°ΡΠ΅Ρ ΠΈΠ»ΠΈ ΠΌΠΎΡΠΎΡΠ½Π°Ρ Π»ΠΎΠ΄ΠΊΠ°, ΡΠΎ ΡΡΠ°Π½Π΅Ρ Π½Π΅ΠΎΠ±Ρ ΠΎΠ΄ΠΈΠΌΠΎ Π΄ΠΎΠΏΠΎΠ»Π½ΠΈΡΠ΅Π»ΡΠ½ΠΎ ΠΎΠΊΠ»Π΅ΠΈΡΡ ΡΡΠ΅ΠΊΠ»ΠΎΡΠΊΠ°Π½ΡΡ ΠΈ ΡΡΠΈΠ»ΠΈΡΡ. Π ΡΡΠΎΠΌ ΠΏΠΎΠΌΠΎΠΆΠ΅Ρ Π΄ΠΎΡΠΊΠ° Π΄Π΅ΡΠ΅Π²Π° ΡΠ²Π΅ΡΠ΄ΠΎΠΉ ΠΏΠΎΡΠΎΠ΄Ρ. ΠΠ»Ρ ΡΠ²Π΅Π»ΠΈΡΠ΅Π½ΠΈΡ ΠΏΡΠΎΡΠ½ΠΎΡΡΠΈ Π½Π΅ΠΊΠΎΡΠΎΡΡΠ΅ ΡΠΎΠ΅Π΄ΠΈΠ½Π΅Π½ΠΈΡ ΠΌΠΎΠΆΠ½ΠΎ Π΄ΠΎΠΏΠΎΠ»Π½ΠΈΡΠ΅Π»ΡΠ½ΠΎ ΡΡΠΈΠ»ΠΈΡΡ ΡΠ°ΠΌΠΎΡΠ΅Π·Π°ΠΌΠΈ.
Π‘ΠΎΠ²Π΅Ρ ΠΏΡΠΎΡΠ΅ΡΡΠΈΠΎΠ½Π°Π»Π°: Π΅ΡΠ»ΠΈ Π²ΡΠ΅ ΠΆΠ΅ ΡΠ΅ΡΠΈΠ»ΠΈ Π·Π°Π½ΡΡΡΡΡ ΠΏΡΠΎΠ΅ΠΊΡΠΈΡΠΎΠ²ΠΊΠΎΠΉ ΡΠ°ΠΌΠΈ, Π½Π΅ ΠΎΡΠΈΠ±ΠΈΡΠ΅ΡΡ Ρ ΡΠ°ΡΡΠ΅ΡΠ°ΠΌΠΈ Π³ΡΡΠ·ΠΎΠΏΠΎΠ΄ΡΠ΅ΠΌΠ½ΠΎΡΡΠΈ, ΠΈΠ½Π°ΡΠ΅ Π²ΠΏΠΎΡΠ»Π΅Π΄ΡΡΠ²ΠΈΠΈ ΡΠΌΠΎΠΆΠ΅ΡΠ΅ ΠΏΠΎΡ Π²Π°ΡΡΠ°ΡΡΡΡ ΡΠΎΠ»ΡΠΊΠΎ Π΄Π΅ΠΊΠΎΡΠ°ΡΠΈΠ²Π½ΡΠΌ Β«ΡΡΠ΄Π½ΠΎΠΌΒ».
ΠΠ΅ΡΠ½ΡΡΡΡΡ ΠΊ ΠΎΠ³Π»Π°Π²Π»Π΅Π½ΠΈΡ
ΠΡΠ°ΠΊΡΠΈΡΠ΅ΡΠΊΠΈΠ΅ ΡΠ΅ΠΊΠΎΠΌΠ΅Π½Π΄Π°ΡΠΈΠΈ
ΠΠ΅ΡΠ΅Π΄ ΡΠ±ΠΎΡΠΊΠΎΠΉ ΠΊΠ°ΡΠ΅ΡΠ° Π²ΡΠ΅ ΡΠ»Π΅ΠΌΠ΅Π½ΡΡ Π½Π΅ΠΎΠ±Ρ ΠΎΠ΄ΠΈΠΌΠΎ ΠΎΠ±ΡΠ°Π±ΠΎΡΠ°ΡΡ ΡΡΠ±Π°Π½ΠΊΠΎΠΌ, Π° Π»ΡΡΡΠ΅ ΡΠ»Π΅ΠΊΡΡΠΎΡΡΠ±Π°Π½ΠΊΠΎΠΌ. ΠΠ°Π»Π΅Π΅ Π½Π΅ΠΎΠ±Ρ ΠΎΠ΄ΠΈΠΌΠΎ ΠΏΡΠΎΡΠ²Π΅ΡΠ»ΠΈΡΡ ΠΎΡΠ²Π΅ΡΡΡΠΈΡ, ΠΊΠΎΡΠΎΡΡΠ΅ Π²ΠΏΠΎΡΠ»Π΅Π΄ΡΡΠ²ΠΈΠΈ ΠΏΠΎΠΌΠΎΠ³ΡΡ Β«ΡΡΠΈΡΡΒ» ΠΊΠΎΡΠΏΡΡ.
ΠΡΠΈ ΡΠ±ΠΎΡΠΊΠ΅ Π²ΠΎΠ΅Π΄ΠΈΠ½ΠΎ Π²ΡΠ΅Ρ ΡΠ»Π΅ΠΌΠ΅Π½ΡΠΎΠ² ΠΊΠ°ΡΠ΅ΡΠ° Π½Π΅ΠΎΠ±Ρ ΠΎΠ΄ΠΈΠΌΠΎ ΡΡΠ°ΡΠ΅Π»ΡΠ½ΠΎ ΡΠ»Π΅Π΄ΠΈΡΡ Π·Π° ΡΠΎΠΎΡΠ²Π΅ΡΡΡΠ²ΠΈΠ΅ΠΌ ΡΠ°Π·ΠΌΠ΅ΡΠΎΠ² Π΄Π΅ΡΠ°Π»Π΅ΠΉ.
ΠΠ΅ΠΎΠ±Ρ ΠΎΠ΄ΠΈΠΌΠΎ ΡΡΡΠ°Π½ΠΎΠ²ΠΈΡΡ ΡΡΠ°Π½Π΅Ρ. Π ΡΡΠΎΠΌ ΠΏΠΎΠΌΠΎΠ³ΡΡ ΠΊΠΎΠ·Π»Ρ. ΠΠΎΡΠ»Π΅ ΡΡΠΎΠ³ΠΎ ΠΌΠΎΠΆΠ½ΠΎ Π½Π°ΡΠΈΠ½Π°ΡΡ ΠΊΡΠ΅ΠΏΠΈΡΡ Π΄Π½ΠΈΡΠ΅ ΠΈ Π±ΠΎΡΡΠ°. Π‘Π²ΠΎΠ΄ΠΈΡΡ ΠΈΡ Π½ΡΠΆΠ½ΠΎ Π½Π° Π½ΠΎΡΡ. ΠΠ±ΡΠΈΠ²ΠΎΡΠ½ΡΠΉ ΠΌΠ°ΡΠ΅ΡΠΈΠ°Π» ΠΈ Π΄Π΅ΡΠ°Π»ΠΈ ΠΈΠ· Π½Π΅Π³ΠΎ ΠΊΡΠ΅ΠΏΡΡΡΡ 2-ΠΌΡ ΡΠΏΠΎΡΠΎΠ±Π°ΠΌΠΈ. ΠΡΠΎ Π»ΠΈΠ±ΠΎ ΠΌΠ°ΡΠ΅ΡΠΈΠ°Π» Π΄Π»Ρ ΡΠ²ΠΎΠ², Π»ΠΈΠ±ΠΎ ΠΊΠ»Π΅ΠΉ. ΠΡΠΈ ΡΡΠΎΠΌ ΡΠΎΡΡΡΠΊΠΎΠ²ΡΠ²Π°ΡΡ ΠΊΡΠ°Ρ ΡΠ°Π½Π΅ΡΡ ΡΠ²ΠΎΠΈΠΌΠΈ ΡΡΠΊΠ°ΠΌΠΈ Π½Π°Π΄ΠΎ ΠΏΠΎΠ΄ ΠΎΠΏΡΠ΅Π΄Π΅Π»Π΅Π½Π½ΡΠΌ ΡΠ³Π»ΠΎΠΌ.
ΠΠΎΡΡΠΎΡΠ½Π½ΠΎ ΡΠ»Π΅Π΄ΠΈΡΠ΅ Π·Π° ΡΠ΅ΠΌ, ΡΡΠΎΠ±Ρ ΠΏΠΎΠ»ΡΡΠ΅Π½Π½ΡΠ΅ Π΄Π΅ΡΠ°Π»ΠΈ ΡΡ ΠΎΠ΄ΠΈΠ»ΠΈΡΡ ΠΏΠΎ ΡΠ°Π·ΠΌΠ΅ΡΠ°ΠΌ. ΠΠΎΡΠΎΠΌΡ ΠΊΠ°ΠΊ Π΄Π»Ρ ΡΡΡΡΠ°Π½Π΅Π½ΠΈΡ ΠΎΠ±ΡΠ°Π·ΠΎΠ²Π°Π²ΡΠ΅Π³ΠΎΡΡ Π·Π°Π·ΠΎΡΠ° Π²Π°ΠΌ ΠΏΡΠΈΠ΄Π΅ΡΡΡ ΡΠ°Π·ΠΎΠ±ΡΠ°ΡΡ Π²ΡΠ΅ ΠΈ ΠΏΠΎΠ΄ΡΠ΅Π·Π°ΡΡ ΡΠΏΠ°Π½Π³ΠΎΡΡΡ.
Π¨ΠΏΠ°Π½Π³ΠΎΡΡΡ β ΡΠ²ΠΎΠ΅ΠΎΠ±ΡΠ°Π·Π½ΡΠ΅ ΡΠ΅Π±ΡΠ°, ΠΏΡΠΈΠ΄Π°ΡΡΠΈΠ΅ ΠΏΠ»Π°Π²ΡΡΠ΅Π΄ΡΡΠ²Ρ ΠΆΠ΅ΡΡΠΊΠΎΡΡΡ. ΠΡ ΠΌΠΎΠΆΠ½ΠΎ Π²ΡΠΏΠΈΠ»ΠΈΡΡ ΠΈΠ· ΡΠ°Π½Π΅ΡΡ 6 ΠΌΠΌ ΡΠΎΠ»ΡΠΈΠ½ΠΎΠΉ. ΠΡ ΠΏΠΎΠ½Π°Π΄ΠΎΠ±ΠΈΡΡΡ 4 ΡΡ, ΠΊΠΎΡΠΎΡΡΠ΅ ΠΊΡΠ΅ΠΏΡΡΡΡ Ρ ΡΠ°Π³ΠΎΠΌ 80 ΡΠΌ. ΠΡΠ΅ ΠΎΠ΄Π½Π° Π²Π°ΠΆΠ½Π°Ρ Π΄Π΅ΡΠ°Π»Ρ β ΠΏΡΠΈΠ²Π°Π»ΡΠ½ΡΠΉ Π±ΡΡΡ, ΡΠ°ΡΠΏΠΎΠ»ΠΎΠΆΠ΅Π½Π½ΡΠΉ ΠΏΠΎ Π»ΠΈΠ½ΠΈΠΈ Π±ΠΎΡΡΠ°. ΠΠ½ ΠΌΠΎΠΆΠ΅Ρ ΠΏΡΠΎΡ ΠΎΠ΄ΠΈΡΡ ΠΊΠ°ΠΊ ΠΏΠΎ Π²Π½Π΅ΡΠ½Π΅ΠΌΡ, ΡΠ°ΠΊ ΠΈ ΠΏΠΎ Π²Π½ΡΡΡΠ΅Π½Π½Π΅ΠΌΡ ΠΊΡΠ°Ρ ΠΊΠΎΠ½ΡΡΡΡΠΊΡΠΈΠΈ.
ΠΡΠ»ΠΈ Π² Π½Π°Π»ΠΈΡΠΈΠΈ Π΅ΡΡΡ ΡΡΡΡΠ±ΡΠΈΠ½Ρ, ΡΡΠΎ ΠΎΡΠ΅Π½Ρ Ρ ΠΎΡΠΎΡΠΎ. Π Π°Π±ΠΎΡΠ°ΡΡ Π±ΡΠ΄Π΅Ρ ΠΏΡΠΎΡΠ΅, Π΅ΡΠ»ΠΈ Π·Π°Π΄Π΅ΠΉΡΡΠ²ΠΎΠ²Π°ΡΡ ΠΈΡ Ρ ΠΎΡΡ Π±Ρ ΠΏΠΎ ΠΊΠΎΠ½ΡΡΠΎΠ»ΡΠ½ΡΠΌ ΡΠΎΡΠΊΠ°ΠΌ, ΠΏΡΠΈΠΆΠΈΠΌΠ°Ρ ΠΏΡΠΈΠ²Π°Π»ΡΠ½ΡΠΉ Π±ΡΡΡ. Π ΡΡΠΎΠΌ Π΄Π΅Π»Π΅ ΠΎΡΠ΅Π½Ρ ΠΏΡΠΈΠ³ΠΎΠ΄ΡΡΡΡ Π±ΠΈΠ½Π΄Π΅ΡΡ, Π΅ΡΠ»ΠΈ ΠΈΡΠΏΠΎΠ»ΡΠ·ΠΎΠ²Π°ΡΡ ΠΈΡ ΠΌΠ΅ΠΆΠ΄Ρ ΡΡΡΡΠ±ΡΠΈΠ½Π°ΠΌΠΈ.
Π‘Π»Π΅Π΄ΡΡΡΠΈΠΌ Π²ΡΠΈΠ²Π°Π΅ΡΡΡ ΡΠΏΠ°Π½Π³ΠΎΡΡ. ΠΠΎΠΆΠ½ΠΎ ΠΏΠΎΡΠΊΡΠΏΠ΅ΡΠΈΠΌΠ΅Π½ΡΠΈΡΠΎΠ²Π°ΡΡ ΠΈ ΡΠ΄Π΅Π»Π°ΡΡ Π΅Π³ΠΎ Π½Π΅ ΡΠ΅Π»ΡΠ½ΡΠΌ, Π° ΠΈΠ· Π½Π΅Π±ΠΎΠ»ΡΡΠΈΡ ΡΡΠ°Π³ΠΌΠ΅Π½ΡΠΎΠ² ΠΎΡΡΠ°Π²ΡΠ΅ΠΉΡΡ ΡΠ°Π½Π΅ΡΡ, ΡΡΠΎΡΠΌΠΈΡΠΎΠ²Π°Π² ΠΎΡΠ²Π΅ΡΡΡΠΈΠ΅ ΠΏΠΎΡΡΠ΅Π΄ΠΈΠ½Π΅.
ΠΡΠ»ΠΈ Π½Π°ΠΊΡΡΡΡ Π΅Π³ΠΎ ΠΏΠ°Π»ΡΠ±ΠΎΠΉ, ΠΏΠΎΠ»ΡΡΠΈΡΡΡ Π½Π΅Π±ΠΎΠ»ΡΡΠΎΠ΅ Π·Π°ΠΊΡΡΡΠΎΠ΅ ΠΏΡΠΎΡΡΡΠ°Π½ΡΡΠ²ΠΎ, ΠΊΠΎΡΠΎΡΠΎΠ΅ Π²Ρ ΡΠ΄ΠΎΠ±Π½ΠΎ ΡΠΌΠΎΠΆΠ΅ΡΠ΅ ΠΈΡΠΏΠΎΠ»ΡΠ·ΠΎΠ²Π°ΡΡ. Π ΠΏΡΠΈΠΌΠ΅ΡΡ, Ρ ΡΠ°Π½ΠΈΡΡ ΡΠ°ΠΌ Π²Π΅ΡΠΈ. ΠΠ°Π»ΡΠ±Π° ΡΠΎΠΆΠ΅ ΠΈΠ·Π³ΠΎΡΠ°Π²Π»ΠΈΠ²Π°Π΅ΡΡΡ ΠΈΠ· ΠΎΡΡΠ°ΡΠΊΠΎΠ² ΡΠ°Π½Π΅ΡΡ. ΠΠΏΡΠ΅Π΄Π΅Π»Π΅Π½Π½ΡΡ ΡΠ°Π·ΠΌΠ΅ΡΠΎΠ² Π½Π΅ ΡΠΊΠ°Π·ΡΠ²Π°Π΅ΡΡΡ, ΡΠ°ΠΊ ΠΊΠ°ΠΊ ΡΡΠΎ Π½Π΅ΠΎΠ±ΡΠ·Π°ΡΠ΅Π»ΡΠ½ΠΎΠ΅ ΡΡΠ»ΠΎΠ²ΠΈΠ΅.
ΠΠ΅ΡΠ½ΡΡΡΡΡ ΠΊ ΠΎΠ³Π»Π°Π²Π»Π΅Π½ΠΈΡ
ΠΠ»Π΅Π΅Π²ΡΠ΅ ΠΈ Π²Π½ΡΡΡΠ΅Π½Π½ΠΈΠ΅ ΡΠ°Π±ΠΎΡΡ
ΠΠ΄Π½ΠΈΠΌ ΠΈΠ· Π²Π°ΠΆΠ½ΡΡ ΡΡΠ°ΠΏΠΎΠ² ΡΠ°Π±ΠΎΡ ΠΏΠΎ ΡΠ±ΠΎΡΠΊΠ΅ ΠΊΠ°ΡΠ΅ΡΠ° ΡΡΠΈΡΠ°Π΅ΡΡΡ ΠΎΠ±ΠΊΠ»Π΅ΠΉΠΊΠ° ΡΠ²ΠΎΠ² Π»Π΅Π½ΡΠ°ΠΌΠΈ ΠΈΠ· ΡΡΠ΅ΠΊΠ»ΠΎΡΠΊΠ°Π½ΠΈ Π΄Π»Ρ Π·Π°ΡΠΈΡΡ ΠΌΠ°ΡΠ΅ΡΠΈΠ°Π»Π° ΠΎΡ Π²ΠΎΠ·Π΄Π΅ΠΉΡΡΠ²ΠΈΡ Π²Π»Π°Π³ΠΈ.
ΠΠΎΡΠΎΠ²ΠΈΡΡΡ ΡΠΌΠ΅ΡΡ ΠΈΠ· Π°ΡΡΠΎΡΠΈΠ»Π° ΠΈ ΡΠΏΠΎΠΊΡΠΈΠ΄Π½ΠΎΠΉ ΡΠΌΠΎΠ»Ρ Π² ΠΏΡΠΎΠΏΠΎΡΡΠΈΠΈ 1:1. Π£Π³Π»Ρ Π΄Π½ΠΈΡΠ°, Π±ΠΎΡΡΠ° ΠΈ ΡΡΠ°Π½Π΅Ρ Π½Π΅ΠΎΠ±Ρ ΠΎΠ΄ΠΈΠΌΠΎ ΡΡΠΈΠ»ΠΈΡΡ Π΄Π΅ΡΠ΅Π²ΡΠ½Π½ΡΠΌΠΈ Π³Π°Π»ΡΠ΅Π»ΡΠΌΠΈ/ΡΠ³ΠΎΠ»ΠΊΠ°ΠΌΠΈ. ΠΡΠΎ Π΄ΠΎΠ±Π°Π²ΠΈΡ ΠΆΠ΅ΡΡΠΊΠΎΡΡΠΈ. ΠΠ΅Π½ΡΡ ΠΈΠ· ΡΡΠ΅ΠΊΠ»ΠΎΡΠΊΠ°Π½ΠΈ/ΡΡΠ΅ΠΊΠ»ΠΎΠΏΠ»Π°ΡΡΠΈΠΊΠ° ΠΊΠ»Π΅ΡΡΡΡ Π½Π° Π²Π½ΡΡΡΠ΅Π½Π½ΠΈΠ΅ ΡΠ²Ρ ΠΈ ΠΏΡΠΎΠΌΠ°Π·ΡΠ²Π°ΡΡΡΡ ΠΏΡΠΈΠ³ΠΎΡΠΎΠ²Π»Π΅Π½Π½ΡΠΌ ΡΠΎΡΡΠ°Π²ΠΎΠΌ. ΠΠΌΠΈ ΠΆΠ΅ ΡΠΈΠΊΡΠΈΡΡΡΡΡΡ ΡΠΏΠ°Π½Π³ΠΎΡΡΡ. Π£ΠΊΠ»Π°Π΄ΡΠ²Π°ΡΡΡΡ Π½Π°ΡΡΠΈΠ» Π΄Π½ΠΈΡΠ°, ΡΠΊΠ»ΡΡΠΈΠ½Ρ, ΡΠΈΠ΄Π΅Π½ΡΡ ΠΈ ΠΏΡΠΎΡΠΈΠ΅ ΠΏΡΠ΅Π΄ΡΡΠΌΠΎΡΡΠ΅Π½Π½ΡΠ΅ ΠΏΡΠΎΠ΅ΠΊΡΠΎΠΌ Π΄Π΅ΡΠ°Π»ΠΈ.
ΠΠ°ΡΠ΅ΠΌ Π½ΡΠΆΠ½ΠΎ Π΄Π°ΡΡ ΠΊΠΎΠ½ΡΡΡΡΠΊΡΠΈΠΈ Π²ΡΡΠΎΡ Π½ΡΡΡ. ΠΠΎΡΠ»Π΅ ΡΠ΅Π³ΠΎ ΡΡΠ΄Π½ΠΎ ΠΌΠΎΠΆΠ½ΠΎ ΠΏΠ΅ΡΠ΅Π²Π΅ΡΠ½ΡΡΡ ΠΈ Π·Π°Π½ΡΡΡΡΡ Π²Π½Π΅ΡΠ½Π΅ΠΉ ΡΠ°Π±ΠΎΡΠΎΠΉ. ΠΠ½Π΅ΡΠ½ΡΡ ΠΏΠΎΠ²Π΅ΡΡ Π½ΠΎΡΡΡ ΡΠ»ΠΈΡΡΠ΅ΡΡΡ, ΡΠ²Ρ ΠΎΠΊΠ»Π΅ΠΈΠ²Π°ΡΡΡΡ ΠΏΡΠΈ ΠΏΠΎΠΌΠΎΡΠΈ ΡΠ°Π½Π΅Π΅ ΠΏΡΠΈΠ³ΠΎΡΠΎΠ²Π»Π΅Π½Π½ΠΎΠΉ ΡΠΌΠ΅ΡΠΈ ΠΈ ΡΡΠ΅ΠΊΠ»ΠΎΠ²ΠΎΠ»ΠΎΠΊΠ½Π°.
ΠΠ° ΡΡΠ°Π΄ΠΈΠΈ ΠΎΠΊΡΠ°ΡΠΊΠΈ Π½Π΅ΠΎΠ±Ρ ΠΎΠ΄ΠΈΠΌΠΎ Π²ΡΠΏΠΎΠ»Π½ΠΈΡΡ ΡΠ»Π΅Π΄ΡΡΡΠΈΠ΅ Π΄Π΅ΠΉΡΡΠ²ΠΈΡ:
- ΠΎΠ±Π΅Π·ΠΆΠΈΡΠΈΡΡ ΡΠΎΡΡΠ°Π²Π½ΡΠ΅ ΡΠ°ΡΡΠΈ;
- ΠΏΡΠΎΠΏΠΈΡΠ°ΡΡ ΡΠΏΠ΅ΡΠΈΠ°Π»ΡΠ½ΡΠΌ ΡΠ°ΡΡΠ²ΠΎΡΠΎΠΌ;
- Π·Π°ΡΠΏΠ°ΡΠ»Π΅Π²Π°ΡΡ ΠΏΠΎΠ²Π΅ΡΡ Π½ΠΎΡΡΡ, Π·Π°Π΄Π΅Π»ΡΠ²Π°Ρ ΠΏΠΎΠ³ΡΠ΅ΡΠ½ΠΎΡΡΠΈ;
- Π·Π°Π³ΡΡΠ½ΡΠΎΠ²Π°ΡΡ;
- ΠΏΠΎΠΊΡΠ°ΡΠΈΡΡ ΡΡΠ΄Π½ΠΎ ΠΌΠΎΠΆΠ½ΠΎ Π°Π±ΡΠΎΠ»ΡΡΠ½ΠΎ Π»ΡΠ±ΠΎΠΉ ΠΈΠΌΠ΅ΡΡΠ΅ΠΉΡΡ ΠΊΡΠ°ΡΠΊΠΎΠΉ, Π½ΠΎ ΠΏΡΠ΅Π΄ΠΏΠΎΡΡΠ΅Π½ΠΈΠ΅ ΠΎΡΠ΄Π°Π΅ΡΡΡ ΠΏΠΈΠ³ΠΌΠ΅Π½ΡΠ½ΠΎΠΉ (Π΄Π»Ρ ΡΠ°Π±ΠΎΡ Ρ Π΄Π΅ΡΠ΅Π²ΠΎΠΌ).
ΠΡΡΡΠ΅ ΡΠ΅Π·ΡΠ»ΡΡΠ°Ρ Π±ΡΠ΄Π΅Ρ, Π΅ΡΠ»ΠΈ ΠΏΠΎΠ»ΡΠ·ΠΎΠ²Π°ΡΡΡΡ ΠΊΠΈΡΡΡΠΌΠΈ, Π½ΠΎ ΠΌΠΎΠΆΠ½ΠΎ ΠΏΡΠΈΠΌΠ΅Π½ΠΈΡΡ ΠΊΡΠ°ΡΠΊΠΎΠΏΡΠ»ΡΡ.
ΠΠ°ΡΠ΅Ρ ΠΈΠ»ΠΈ Π»ΠΎΠ΄ΠΊΠ° ΡΠ²ΠΎΠΈΠΌΠΈ ΡΡΠΊΠ°ΠΌΠΈ ΠΈΠ· ΡΠ°Π½Π΅ΡΡ ΠΎΠ±ΡΠ·Π°ΡΠ΅Π»ΡΠ½ΠΎ ΠΏΡΠΈΠ³ΠΎΠ΄ΠΈΡΡΡ Π΄Π»Ρ ΡΡΠ±Π°Π»ΠΊΠΈ Π»ΠΈΠ±ΠΎ Π²ΠΎΠ΄Π½ΡΡ ΠΏΡΠΎΠ³ΡΠ»ΠΎΠΊ Ρ ΡΠ΅ΠΌΡΠ΅ΠΉ. Π ΠΎΡΠΊΡΡΡΠΎΠ΅ ΠΈ Π½Π΅ΠΈΠ·Π²Π΅Π΄Π°Π½Π½ΠΎΠ΅ ΠΌΠΎΡΠ΅ Π²Π°ΡΠ΅ ΡΡΠ΄Π½ΠΎ Π½Π΅ ΡΠΉΠ΄Π΅Ρ, Π° Π΄Π»Ρ ΠΌΠ΅ΡΡΠ½ΡΡ ΡΠ΅ΡΠ΅ΠΊ ΠΈ ΠΎΠ·Π΅Ρ Π±ΡΠ΄Π΅Ρ Π²ΠΏΠΎΠ»Π½Π΅ Π½Π°Π΄Π΅ΠΆΠ½ΡΠΌ.
moyafanera.ru
ΠΠ°ΠΊ ΡΠ΄Π΅Π»Π°ΡΡ Π»ΠΎΠ΄ΠΊΡ ΠΈΠ· ΠΏΠ΅Π½ΠΎΠΏΠ»Π°ΡΡΠ° ΠΈ ΡΡΠ΅ΠΊΠ»ΠΎΡΠΊΠ°Π½ΠΈ ΡΠ²ΠΎΠΈΠΌΠΈ ΡΡΠΊΠ°ΠΌΠΈ?
ΠΠΎΠ΄ΠΊΠ° β Π½Π΅Π·Π°ΠΌΠ΅Π½ΠΈΠΌΠΎΠ΅ ΡΡΠ°Π½ΡΠΏΠΎΡΡΠ½ΠΎΠ΅ ΡΡΠ΅Π΄ΡΡΠ²ΠΎ Π² ΡΠ°ΠΉΠΎΠ½Π°Ρ
, ΠΎΠΊΡΡΠΆΠ΅Π½Π½ΡΡ
Π²ΠΎΠ΄ΠΎΠ΅ΠΌΠ°ΠΌΠΈ. Π’Π°ΠΊΠΆΠ΅ Π΄Π»Ρ Π»ΡΠ±ΠΎΠ³ΠΎ Π»ΡΠ±ΠΈΡΠ΅Π»Ρ ΡΡΠ±Π½ΠΎΠΉ Π»ΠΎΠ²Π»ΠΈ Ρ
ΠΎΡΠΎΡΠ°Ρ Π»ΠΎΠ΄ΠΊΠ° ΡΠ²Π»ΡΠ΅ΡΡΡ Π½Π΅Π·Π°ΠΌΠ΅Π½ΠΈΠΌΡΠΌ ΠΏΠΎΠΌΠΎΡΠ½ΠΈΠΊΠΎΠΌ. Π§ΡΠΎΠ±Ρ ΠΈΠ·Π³ΠΎΡΠΎΠ²ΠΈΡΡ Π»ΠΎΠ΄ΠΊΡ ΡΠ²ΠΎΠΈΠΌΠΈ ΡΡΠΊΠ°ΠΌΠΈ, ΠΏΠΎΡΡΠ΅Π±ΡΠ΅ΡΡΡ ΠΏΡΠΈΠ»ΠΎΠΆΠΈΡΡ Π½Π΅ΠΌΠ°Π»ΠΎ Π²ΡΠ΅ΠΌΠ΅Π½ΠΈ ΠΈ ΡΡΠΈΠ»ΠΈΠΉ, ΡΠ°ΠΊΠΆΠ΅ ΡΡΠΎ ΠΊΠ°ΡΠ°Π΅ΡΡΡ ΠΈ ΡΠΈΠ½Π°Π½ΡΠΎΠ²ΠΎΠΉ ΡΡΠΎΡΠΎΠ½Ρ. ΠΠ΄Π½Π°ΠΊΠΎ ΡΠ΅Π³ΠΎΠ΄Π½Ρ ΠΈΠΌΠ΅Π΅ΡΡΡ ΠΌΠ½ΠΎΠΆΠ΅ΡΡΠ²ΠΎ ΠΌΠ°ΡΠ΅ΡΠΈΠ°Π»ΠΎΠ², ΠΏΠΎΠ·Π²ΠΎΠ»ΡΡΡΠΈΡ
Π±ΡΡΡΡΠΎ ΠΈ Π±Π΅Π· ΠΎΡΠΎΠ±ΡΡ
Π·Π°ΡΡΠ°Ρ ΡΠΎΠΎΡΡΠ΄ΠΈΡΡ ΠΏΠ»Π°Π²ΡΡΠ΅Π΄ΡΡΠ²ΠΎ, ΠΎΠ΄ΠΈΠ½ ΠΈΠ· ΠΊΠΎΡΠΎΡΡΡ
β ΡΡΠΎ ΠΏΠ΅Π½ΠΎΠΏΠ»Π°ΡΡ. ΠΡΠ΅Π΄ΡΡΠ°Π²Π»Π΅Π½Π½Π°Ρ Π΄Π°Π»Π΅Π΅ ΠΈΠ½ΡΠΎΡΠΌΠ°ΡΠΈΡ ΠΏΠΎΠΌΠΎΠΆΠ΅Ρ ΠΏΠΎΠ½ΡΡΡ, ΡΡΠΎ ΠΈΠ·Π³ΠΎΡΠΎΠ²Π»Π΅Π½ΠΈΠ΅ Π»ΠΎΠ΄ΠΊΠΈ ΠΈΠ· ΠΏΠ΅Π½ΠΎΠΏΠ»Π°ΡΡΠ° Π²ΠΏΠΎΠ»Π½Π΅ ΡΠ΅Π°Π»ΡΠ½ΠΎ.
ΠΡΠΎΠ±Π΅Π½Π½ΠΎΡΡΠΈ ΠΌΠ°ΡΠ΅ΡΠΈΠ°Π»Π°
ΠΠ΅Π½ΠΎΠΏΠ»Π°ΡΡ ΡΠ²Π»ΡΠ΅ΡΡΡ Π΄ΠΎΠ²ΠΎΠ»ΡΠ½ΠΎ ΡΠ½ΠΈΠ²Π΅ΡΡΠ°Π»ΡΠ½ΡΠΌ ΠΌΠ°ΡΠ΅ΡΠΈΠ°Π»ΠΎΠΌ Π΄Π»Ρ ΠΈΠ·Π³ΠΎΡΠΎΠ²Π»Π΅Π½ΠΈΡ ΡΠ°Π·Π»ΠΈΡΠ½ΡΡ
DIY ΠΏΡΠΎΠ΅ΠΊΡΠΎΠ²ΠΠΎΠ»ΠΈΠΌΠ΅Ρ, ΠΈΠ· ΠΊΠΎΡΠΎΡΠΎΠ³ΠΎ ΠΈΠ·Π³ΠΎΡΠΎΠ²Π»Π΅Π½ ΠΏΠ΅Π½ΠΎΠΏΠ»Π°ΡΡ, ΠΈΠΌΠ΅Π΅Ρ Π²ΠΈΠ΄ Π²ΡΠΏΠ΅Π½Π΅Π½Π½ΠΎΠΉ ΠΌΠ°ΡΡΡ. ΠΠ»Π°Π³ΠΎΠ΄Π°ΡΡ ΡΡΠΎΠΌΡ ΠΌΠ΅ΠΆΠ΄Ρ Π΅Π³ΠΎ ΡΠ°ΡΡΠΈΡΠ°ΠΌΠΈ Π½Π°Ρ
ΠΎΠ΄ΠΈΡΡΡ ΠΌΠ½ΠΎΠ³ΠΎ Π²ΠΎΠ·Π΄ΡΡ
Π°, ΠΊΠΎΡΠΎΡΡΠΉ ΠΏΠΎΠ·Π²ΠΎΠ»ΡΠ΅Ρ ΠΌΠ°ΡΠ΅ΡΠΈΠ°Π»Ρ Π½Π΅ ΡΠΎΠ½ΡΡΡ Π² Π²ΠΎΠ΄Π΅. ΠΡΠΎΠΌΠ΅ ΡΡΠΎΠ³ΠΎ, ΠΏΠ΅Π½ΠΎΠΏΠ»Π°ΡΡ ΠΎΠ±Π»Π°Π΄Π°Π΅Ρ Ρ
ΠΎΡΠΎΡΠΈΠΌΠΈ ΡΠ΅ΠΏΠ»ΠΎΠΈΠ·ΠΎΠ»ΡΡΠΈΠΎΠ½Π½ΡΠΌΠΈ ΡΠ²ΠΎΠΉΡΡΠ²Π°ΠΌΠΈ, ΠΌΠ°Π»ΡΠΌ Π²Π΅ΡΠΎΠΌ, Π²ΡΡΠΎΠΊΠΎΠΉ ΠΏΠ»Π°Π²ΡΡΠ΅ΡΡΡΡ ΠΈΠ·-Π·Π° Π±ΠΎΠ»ΡΡΠΎΠΉ ΠΏΠ»ΠΎΡΠ°Π΄ΠΈ ΠΌΠ°ΡΠ΅ΡΠΈΠ°Π»Π° ΠΈ Π»Π΅Π³ΠΊΠΎΠ²Π΅ΡΠ½ΠΎΡΡΠΈ. ΠΠ΅Π½ΠΎΠΏΠ»Π°ΡΡ ΠΏΠΎ ΡΡΠΎΠΈΠΌΠΎΡΡΠΈ Π΄ΠΎΡΡΡΠΏΠ΅Π½ ΠΊΠ°ΠΆΠ΄ΠΎΠΌΡ, Π° ΡΠ°ΠΊΠΆΠ΅ Π»Π΅Π³ΠΊΠΎ ΠΎΠ±ΡΠ°Π±Π°ΡΡΠ²Π°Π΅ΡΡΡ ΠΈΠ½ΡΡΡΡΠΌΠ΅Π½ΡΠΎΠΌ ΠΈ Ρ
ΠΎΡΠΎΡΠΎ ΡΠΊΠ»Π΅ΠΈΠ²Π°Π΅ΡΡΡ. ΠΠΎ, ΡΡΠΎΡ ΠΌΠ°ΡΠ΅ΡΠΈΠ°Π» Π»Π΅Π³ΠΊΠΎ ΡΠ°Π·ΡΡΡΠ°Π΅ΡΡΡ, ΠΏΠΎΡΡΠΎΠΌΡ Π΅Π³ΠΎ Π½Π΅Π»ΡΠ·Ρ ΡΠ³ΠΈΠ±Π°ΡΡ ΠΈ ΠΏΡΠΈΠ΄Π°Π²Π°ΡΡ Π΅ΠΌΡ ΡΠ»ΠΎΠΆΠ½ΡΠ΅ ΡΠΎΡΠΌΡ. ΠΠΎΡΡΠΎΠΌΡ Π΄Π»Ρ ΠΏΡΠΈΠ΄Π°Π½ΠΈΡ ΠΏΡΠΎΡΠ½ΠΎΡΡΠΈ ΡΠ°ΠΌΠΎΠ΄Π΅Π»ΡΠ½ΠΎΠΉ Π»ΠΎΠ΄ΠΊΠΈ, Π΅Π΅ ΠΊΠΎΡΠΏΡΡ ΠΈΠ·Π³ΠΎΡΠ°Π²Π»ΠΈΠ²Π°Π΅ΡΡΡ Π½Π΅ ΠΈΠ· ΡΠΏΠ»ΠΎΡΠ½ΠΎΠ³ΠΎ ΠΏΠ΅Π½ΠΎΠΏΠ»Π°ΡΡΠ°, Π° ΠΈΠ· ΡΡΠ½Π΄Π²ΠΈΡ-ΠΎΠ±ΡΠΈΠ²ΠΊΠΈ, ΡΠΎΡΡΠΎΡΡΠ΅ΠΉ ΠΈΠ· ΡΠ»ΠΎΡ ΠΏΠ΅Π½ΠΎΠΏΠ»Π°ΡΡΠ° ΡΠΎ ΡΡΠ΅ΠΊΠ»ΠΎΠΌΠ°ΡΠΎΠΌ. Π’Π΅Ρ
Π½ΠΎΠ»ΠΎΠ³ΠΈΡ ΡΡΠ½Π΄Π²ΠΈΡΠ° Π·Π°ΠΊΠ»ΡΡΠ°Π΅ΡΡΡ Π² ΡΠΎΠΌ, ΡΡΠΎ ΠΌΠ΅ΠΆΠ΄Ρ Π΄Π²ΡΠΌΡ ΡΠ»ΠΎΡΠΌΠΈ ΠΏΡΠΈΠ½ΠΈΠΌΠ°ΡΡΠ΅Π³ΠΎ Π½Π° ΡΠ΅Π±Ρ ΠΎΡΠ½ΠΎΠ²Π½ΡΡ Π½Π°Π³ΡΡΠ·ΠΊΡ, ΠΌΠ°ΡΠ΅ΡΠΈΠ°Π»Π°, Π½Π°Ρ
ΠΎΠ΄ΠΈΡΡΡ ΡΠ°Π·Π΄Π΅Π»ΠΈΡΠ΅Π»ΡΠ½ΡΠΉ ΡΠ»ΠΎΠΉ ΠΈΠ· Π±ΠΎΠ»Π΅Π΅ Π»Π΅Π³ΠΊΠΎΠ³ΠΎ ΠΌΠ°ΡΠ΅ΡΠΈΠ°Π»Π°. Π’Π°ΠΊΠΈΠΌ ΠΎΠ±ΡΠ°Π·ΠΎΠΌ, Π΄Π²Π° ΡΠ»ΠΎΡ ΡΡΠ΅ΠΊΠ»ΠΎΡΠΊΠ°Π½ΠΈ ΡΠ°Π·Π΄Π΅Π»Π΅Π½Ρ ΠΏΠ΅Π½ΠΎΠΏΠ»Π°ΡΡΠΎΠΌ.
ΠΠΎΠΆΠ½ΠΎ ΠΈΡΠΏΠΎΠ»ΡΠ·ΠΎΠ²Π°ΡΡ ΠΎΠ±ΡΡΠ½ΡΠΉ ΡΠΊΡΡΡΡΠ΄ΠΈΡΠΎΠ²Π°Π½Π½ΡΠΉ ΠΏΠΎΠ»ΠΈΡΡΠΈΡΠΎΠ» Π±Π΅Π· ΡΡΠ΅ΠΊΠ»ΠΎΡΠΊΠ°Π½ΠΈ, Π½ΠΎ ΡΠ°ΠΊΠ°Ρ ΡΠ°ΠΌΠΎΠ΄Π΅Π»ΡΠ½Π°Ρ Π»ΠΎΠ΄ΠΊΠ° ΠΈΠ· ΠΏΠ΅Π½ΠΎΠΏΠ»Π°ΡΡΠ° ΠΏΠΎΡΡΠ΅Π±ΡΠ΅Ρ ΠΎΠ±ΡΠΈΠ²ΠΊΠΈ ΠΈΠ· ΡΠ°Π½Π΅ΡΡ ΠΈΠ»ΠΈ Π΄ΡΡΠ³ΠΎΠ³ΠΎ Π·Π°ΡΠΈΡΠ½ΠΎΠ³ΠΎ ΠΌΠ°ΡΠ΅ΡΠΈΠ°Π»Π° Ρ Π²Π½Π΅ΡΠ½Π΅ΠΉ ΡΡΠΎΡΠΎΠ½Ρ, Π½Π°ΠΏΡΠΈΠΌΠ΅Ρ, ΠΏΠ»Π΅Π½ΠΊΠΈ ΠΈΠ»ΠΈ Π±ΡΠ΅Π·Π΅Π½ΡΠ°.
Π‘Π°ΠΌΠΎΠ΄Π΅Π»ΡΠ½ΡΠ΅ Π»ΠΎΠ΄ΠΊΠΈ ΠΈΠ· ΠΏΠ΅Π½ΠΎΠΏΠ»Π°ΡΡΠ°: ΡΠ΅ΡΡΠ΅ΠΆΠΈ
Π ΠΈΠ½ΡΠ΅ΡΠ½Π΅ΡΠ΅ Π²Ρ ΠΌΠΎΠΆΠ΅ΡΠ΅ Π½Π°ΠΉΡΠΈ ΠΎΡΠ΅Π½Ρ ΠΌΠ½ΠΎΠ³ΠΎ ΡΠ°Π·Π»ΠΈΡΠ½ΡΡ
ΠΌΠΎΠ΄Π΅Π»Π΅ΠΉ ΠΈ ΡΠ΅ΡΡΠ΅ΠΆΠ΅ΠΉΠΠ΅ΡΠ΅Π΄ ΡΠ΅ΠΌ, ΠΊΠ°ΠΊ Π΄Π΅Π»Π°ΡΡ Π»ΠΎΠ΄ΠΊΡ ΠΈΠ· ΠΏΠ΅Π½ΠΎΠΏΠ»Π°ΡΡΠ°, Π½Π΅ΠΎΠ±Ρ ΠΎΠ΄ΠΈΠΌΠΎ ΡΠΎΡΡΠ°Π²ΠΈΡΡ Π΅Π΅ ΠΏΡΠΎΠ΅ΠΊΡ. ΠΠ»Ρ ΡΡΠΎΠ³ΠΎ Π½Π΅ΠΎΠ±Ρ ΠΎΠ΄ΠΈΠΌΠΎ Π½Π°ΡΠ΅ΡΡΠΈΡΡ Π²ΡΠ΅ ΡΠΎΡΡΠ°Π²Π»ΡΡΡΠΈΠ΅ Π±ΡΠ΄ΡΡΠ΅ΠΉ ΠΊΠΎΠ½ΡΡΡΡΠΊΡΠΈΠΈ Ρ ΡΠΎΡΠ½ΡΠΌΠΈ ΡΠ°Π·ΠΌΠ΅ΡΠ°ΠΌΠΈ ΠΈ ΡΠΎΡΠΌΠΎΠΉ. ΠΠ±ΡΡΠ½ΠΎ Π΄Π»ΠΈΠ½Π° Π»ΠΎΠ΄ΠΊΠΈ ΡΠΎΡΡΠ°Π²Π»ΡΠ΅Ρ 2,6 ΠΌ, Π° ΡΠΈΡΠΈΠ½Π° ΠΏΠΎ Π΄Π½ΠΈΡΡ β 0,78 ΠΌ. Π‘Π°ΠΌΠΎΠΉ ΡΡΡΠ΄Π½ΠΎΠΉ ΡΠ°ΡΡΡΡ ΠΏΡΠΈ ΠΏΡΠΎΠ΅ΠΊΡΠΈΡΠΎΠ²Π°Π½ΠΈΠΈ ΡΠ²Π»ΡΠ΅ΡΡΡ ΡΠΎΠ·Π΄Π°Π½ΠΈΠ΅ ΠΊΠΎΡΠΏΡΡΠ° ΠΈΠ· Π΄Π΅ΡΠ°Π»Π΅ΠΉ, ΠΊΠΎΡΠΎΡΡΠ΅ Π½Π΅ Π³Π½ΡΡΡΡ.
Π§Π΅ΡΡΠ΅ΠΆΠΈ Π»ΠΎΠ΄ΠΊΠΈ ΡΠ΅ΠΊΠΎΠΌΠ΅Π½Π΄ΡΠ΅ΡΡΡ Π΄Π΅Π»Π°ΡΡ Π² Π½Π°ΡΡΡΠ°Π»ΡΠ½ΡΡ Π²Π΅Π»ΠΈΡΠΈΠ½Ρ, ΡΡΠΎΠ±Ρ ΠΈΠ·Π±Π΅ΠΆΠ°ΡΡ ΠΎΡΠΈΠ±ΠΎΠΊ ΠΏΡΠΈ ΡΠ°ΡΡΠ΅ΡΠ°Ρ ΠΈ ΠΈΠΌΠ΅ΡΡ Π²ΠΎΠ·ΠΌΠΎΠΆΠ½ΠΎΡΡΡ Π½Π΅ΠΏΠΎΡΡΠ΅Π΄ΡΡΠ²Π΅Π½Π½ΠΎ ΡΠ°Π·ΠΌΠ΅ΡΠ°ΡΡ Π΄Π΅ΡΠ°Π»ΠΈ ΠΊΠΎΡΠΏΡΡΠ°. Π§Π΅ΡΡΠ΅ΠΆ Π½Π°Π½ΠΎΡΡΡ Π½Π° ΡΠ°Π½Π΅ΡΡ, ΡΠ°ΠΊ Π½Π°Π·ΡΠ²Π°Π΅ΠΌΡΡ ΠΏΠ»Π°Π·Ρ. ΠΠ° ΠΏΠ»Π°Π·Π΅ Π²ΡΡΠ΅ΡΡΠΈΠ²Π°ΡΡΡΡ Π΄Π΅ΡΠ°Π»ΠΈ Π»ΠΎΠ΄ΠΊΠΈ, ΠΎΠ±ΡΠ°Π·ΡΡΡΠΈΠ΅ Π·Π°ΠΊΠ»Π°Π΄ΠΊΡ, ΠΈΠ»ΠΈ ΠΊΠ°ΡΠΊΠ°Ρ ΡΡΠ΄Π½Π° β ΠΊΠΈΠ»Ρ, ΡΡΠ°Π½Π΅Ρ, ΠΊΠ½ΠΎΠΏΡ, ΡΠΎΡΡΡΠ΅Π²Π΅Π½Ρ, Π°Ρ ΡΠ΅ΡΡΡΠ΅Π²Π΅Π½Ρ, Ρ ΡΠΊΠ°Π·Π°Π½ΠΈΠ΅ΠΌ ΡΠΈΡΠΈΠ½Ρ, Π²ΡΡΠΎΡΡ, ΠΏΠΎΠΏΠ΅ΡΠ΅ΡΠ½ΡΠΌ ΡΠ΅ΡΠ΅Π½ΠΈΠ΅ΠΌ ΠΊΠΈΠ»Ρ. Π§ΡΠΎΠ±Ρ ΡΠΊΠΎΠ½ΠΎΠΌΠΈΡΡ ΠΌΠ΅ΡΡΠΎ Π½Π° ΠΏΠ»Π°Π·Π°Ρ , ΠΌΠΎΠΆΠ½ΠΎ Π²ΡΡΠ΅ΡΡΠΈΠ²Π°ΡΡ ΠΏΡΠΎΠ΅ΠΊΡΠΈΠΈ Π±ΠΎΠΊΠ° ΠΈ ΠΏΠΎΠ»ΡΡΠΈΡΠΎΡΡ ΠΎΠ΄Π½Π° Π½Π° Π΄ΡΡΠ³ΠΎΠΉ, ΠΎΠ±ΠΎΠ·Π½Π°ΡΠ°Ρ ΠΈΡ ΡΠ°Π·Π½ΡΠΌΠΈ ΡΠ²Π΅ΡΠ°ΠΌΠΈ. ΠΡΠΎΠ΅ΠΊΡΠΈΡ ΠΊΠΎΡΠΏΡΡΠ° Π΄ΠΎΠ»ΠΆΠ½Π° ΠΎΡΡΠ°ΠΆΠ°ΡΡ Π²Π΅ΡΠ²ΠΈ ΡΠΏΠ°Π½Π³ΠΎΡΡΠ° ΠΎΠ±ΠΎΠΈΡ Π±ΠΎΡΡΠΎΠ² β ΠΏΡΠ°Π²ΠΎΠ³ΠΎ ΠΈ Π»Π΅Π²ΠΎΠ³ΠΎ, ΠΊΠΎΡΠΎΡΡΠ΅ Π»ΡΡΡΠ΅ ΠΎΠ±ΡΠ΅Π΄ΠΈΠ½ΠΈΡΡ Π² Π½ΠΎΡΠΎΠ²ΡΡ ΠΈ ΠΊΠΎΡΠΌΠΎΠ²ΡΡ Π³ΡΡΠΏΠΏΡ.
Π§ΡΠΎΠ±Ρ ΠΊΠ°ΡΠ΅ΡΡΠ²ΠΎ ΠΈΠ·Π³ΠΎΡΠΎΠ²Π»Π΅Π½Π½ΠΎΠ³ΠΎ ΡΡΠ΄Π½Π° ΡΠΎΠΎΡΠ²Π΅ΡΡΡΠ²ΠΎΠ²Π°Π»ΠΎ ΠΏΡΠΎΠ΅ΠΊΡΡ, Π½Π΅ΠΎΠ±Ρ ΠΎΠ΄ΠΈΠΌΠΎ ΡΡΠΈΡΡΠ²Π°ΡΡ ΠΏΡΠ°Π²ΠΈΠ»Π° ΡΠ°ΡΠΏΠΎΠ»ΠΎΠΆΠ΅Π½ΠΈΡ ΡΠ΅ΠΎΡΠ΅ΡΠΈΡΠ΅ΡΠΊΠΈΡ Π»ΠΈΠ½ΠΈΠΉ: ΡΡΠΎ Π»ΠΈΠ½ΠΈΠΈ ΠΏΠΎΠ²Π΅ΡΡ Π½ΠΎΡΡΠΈ Π²Π½Π΅ΡΠ½Π΅ΠΉ ΠΎΠ±ΡΠΈΠ²ΠΊΠΈ, Π²Π½ΡΡΡΠ΅Π½Π½Π΅Π³ΠΎ Π½Π°ΡΡΠΈΠ»Π° ΠΏΠ°Π»ΡΠ±Ρ, ΠΊΠΎΡΠΌΠΎΠ²ΠΎΠΉ ΠΈ Π½ΠΎΡΠΎΠ²ΠΎΠΉ ΠΊΡΠΎΠΌΠΊΠΈ ΡΠΏΠ°Π½Π³ΠΎΡΡΠΎΠ², Π° ΡΠ°ΠΊΠΆΠ΅ Π»ΠΈΠ½ΠΈΠΈ ΠΊΡΠΎΠΌΠΊΠΈ ΠΊΠ°ΡΠ»Π΅Π½Π³ΡΠΎΠ² ΠΈ ΡΡΡΠΈΠ½Π³Π΅ΡΠΎΠ². ΠΠΎΠ»Π΅Π΅ ΠΏΠΎΠ΄ΡΠΎΠ±Π½ΠΎ ΠΏΡΠΎΠ΅ΠΊΡΠΈΡΠΎΠ²Π°Π½ΠΈΠ΅ ΡΡΠ΄Π½Π° ΠΈ ΡΠ±ΠΎΡΠΊΡ ΡΠ΅ΡΡΠ΅ΠΆΠ° ΠΌΠΎΠΆΠ½ΠΎ ΠΏΠΎΡΠΌΠΎΡΡΠ΅ΡΡ Π½Π° Π²ΠΈΠ΄Π΅ΠΎ.
ΠΠ°ΠΊ ΡΠ΄Π΅Π»Π°ΡΡ Π»ΠΎΠ΄ΠΊΡ ΠΈΠ· ΠΏΠ΅Π½ΠΎΠΏΠ»Π°ΡΡΠ° ΡΠ²ΠΎΠΈΠΌΠΈ ΡΡΠΊΠ°ΠΌΠΈ
ΠΠΎΠ΄ΠΊΠ° ΠΈΠ· ΠΏΠ΅Π½ΠΎΠΏΠ»Π°ΡΡΠ° Π»Π΅Π³ΠΊΠ° Π² ΠΈΠ·Π³ΠΎΡΠΎΠ²Π»Π΅Π½ΠΈΠΈΠΠΎΡΠ»Π΅ ΠΈΠ·Π³ΠΎΡΠΎΠ²Π»Π΅Π½ΠΈΡ ΡΠ΅ΡΡΠ΅ΠΆΠ° Ρ ΠΏΠΎΠ΄ΡΠΎΠ±Π½ΡΠΌ Π½Π°Π½Π΅ΡΠ΅Π½ΠΈΠ΅ΠΌ Π²ΡΠ΅Ρ ΡΠ»Π΅ΠΌΠ΅Π½ΡΠΎΠ² Π»ΠΎΠ΄ΠΊΠΈ, ΠΌΠΎΠΆΠ½ΠΎ ΠΏΡΠΈΡΡΡΠΏΠ°ΡΡ ΠΊ ΡΠ±ΠΎΡΠΊΠ΅ ΠΊΠ°ΡΠΊΠ°ΡΠ°. Π ΡΠΊΠ΅Π»Π΅ΡΡ Π»ΠΎΠ΄ΠΊΠΈ Π±ΡΠ΄ΡΡ ΠΊΡΠ΅ΠΏΠΈΡΡΡΡ Π²Π½ΡΡΡΠ΅Π½Π½ΡΡ, Π²Π½Π΅ΡΠ½ΡΡ, ΠΈ Π³Π»Π°Π²Π½Π°Ρ ΠΎΠ±ΡΠΈΠ²ΠΊΠ°. ΠΠ½ Π΄ΠΎΠ»ΠΆΠ΅Π½ Π±ΡΡΡ ΠΏΡΠΎΡΠ½ΡΠΌ, ΠΏΠΎΡΠΊΠΎΠ»ΡΠΊΡ ΠΎΡ ΡΡΠΎΠ³ΠΎ Π·Π°Π²ΠΈΡΠΈΡ ΠΊΠ°ΡΠ΅ΡΡΠ²ΠΎ ΠΏΠ»Π°Π²ΡΡΠ΅Π΄ΡΡΠ²Π°. ΠΠ»Π°Π²Π½Π°Ρ ΠΎΠ±ΡΠΈΠ²ΠΊΠ°, ΡΠ΄Π΅Π»Π°Π½Π½Π°Ρ ΠΈΠ· ΠΏΠ΅Π½ΠΎΠΏΠ»Π°ΡΡΠ°, ΠΏΡΠΈΠ΄Π°Π΅Ρ ΡΡΠ΄Π½Ρ ΡΡΡΠΎΠΉΡΠΈΠ²ΠΎΡΡΡ ΠΈ Π½Π΅ΠΏΠΎΡΠΎΠΏΠ»ΡΠ΅ΠΌΠΎΡΡΡ Π½Π° Π²ΠΎΠ΄Π΅. ΠΠ»Π΅ΠΌΠ΅Π½ΡΡ Π³Π»Π°Π²Π½ΠΎΠΉ ΠΎΠ±ΡΠΈΠ²ΠΊΠΈ Π΄ΠΎΠ»ΠΆΠ½Ρ Π±ΡΡΡ ΠΏΠ»ΠΎΡΠ½ΠΎ ΠΏΡΠΈΠΊΠ»Π΅Π΅Π½Ρ Π΄ΡΡΠ³ ΠΊ Π΄ΡΡΠ³Ρ, ΡΡΠΎΠ±Ρ Π½Π΅ ΠΏΡΠΎΠΏΡΡΠΊΠ°ΡΡ Π²Π»Π°Π³Ρ. ΠΠ½ΡΡΡΠ΅Π½Π½ΡΡ ΠΎΠ±ΡΠΈΠ²ΠΊΠ° ΡΠ»ΡΠΆΠΈΡ Π·Π°ΡΠΈΡΠΎΠΉ Ρ ΡΡΠΏΠΊΠΎΠ³ΠΎ ΠΏΠ΅Π½ΠΎΠΏΠ»Π°ΡΡΠ° ΠΎΡ ΠΌΠ΅Ρ Π°Π½ΠΈΡΠ΅ΡΠΊΠΈΡ ΠΏΠΎΠ²ΡΠ΅ΠΆΠ΄Π΅Π½ΠΈΠΉ Π²Π½ΡΡΡΠΈ ΡΡΠ΄Π½Π°, Π° Π²Π½Π΅ΡΠ½ΡΡ β Ρ Π²Π½Π΅ΡΠ½Π΅ΠΉ ΡΡΠΎΡΠΎΠ½Ρ, ΠΎΠ½Π° Π΄ΠΎΠ»ΠΆΠ½Π° Π±ΡΡΡ Π²ΠΎΠ΄ΠΎΠ½Π΅ΠΏΡΠΎΠ½ΠΈΡΠ°Π΅ΠΌΠ°Ρ ΠΈ ΠΏΡΠΎΡΠ½Π°Ρ.
ΠΠ·Π³ΠΎΡΠΎΠ²Π»Π΅Π½ΠΈΠ΅ ΠΊΠ°ΡΠΊΠ°ΡΠ°
ΠΠ°ΠΆΠ½ΡΡ ΡΠΎΠ»Ρ ΠΈΠ³ΡΠ°Π΅Ρ ΠΊΠ°ΡΠΊΠ°Ρ Π»ΠΎΠ΄ΠΊΠΈΠ‘ΠΊΠ΅Π»Π΅Ρ Π»ΠΎΠ΄ΠΊΠΈ ΠΈΠ·Π³ΠΎΡΠ°Π²Π»ΠΈΠ²Π°Π΅ΡΡΡ ΠΈΠ· Π΄Π΅ΡΠ΅Π²ΡΠ½Π½ΡΡ Π±ΡΡΡΠΊΠΎΠ². ΠΡΠΎ Π²Π°ΠΆΠ½Π°Ρ ΡΠ°ΡΡΡ ΠΊΠΎΠ½ΡΡΡΡΠΊΡΠΈΠΈ, ΠΈ ΠΎΠ½Π° Π΄ΠΎΠ»ΠΆΠ½Π° Π±ΡΡΡ ΠΏΡΠΎΡΠ½ΠΎΠΉ, ΠΆΠ΅ΡΡΠΊΠΎΠΉ ΠΈ Π½Π°Π΄Π΅ΠΆΠ½ΠΎΠΉ. ΠΠ½ ΡΠΎΠ±ΠΈΡΠ°Π΅ΡΡΡ ΠΏΠΎ ΡΠ°ΡΡΡΠΌ: Π·Π°ΠΌΠ΅ΡΡΠ΅ΡΡΡ ΠΊΠ°ΠΆΠ΄Π°Ρ ΡΠΎΡΡΠ°Π²Π½Π°Ρ Π΄Π΅ΡΠ°Π»Ρ, ΠΈ ΡΠΊΡΠ΅ΠΏΠ»ΡΡΡΡΡ Π΄ΡΡΠ³ Ρ Π΄ΡΡΠ³ΠΎΠΌ Π½Π° ΡΡΡΡΠΏΡ ΠΈΠ»ΠΈ Π³Π²ΠΎΠ·Π΄ΠΈ. Π§ΡΠΎΠ±Ρ ΡΠ΄Π΅Π»Π°ΡΡ ΠΊΠ°ΡΠΊΠ°Ρ Π΅ΡΠ΅ Π±ΠΎΠ»Π΅Π΅ ΠΏΡΠΎΡΠ½ΡΠΌ, ΠΏΠΎΠ²Π΅ΡΡ ΠΊΡΠ΅ΠΏΠ»Π΅Π½ΠΈΠΉ ΠΈΠ· ΡΡΡΡΠΏΠΎΠ² ΠΌΠΎΠΆΠ½ΠΎ ΠΏΡΠΈΠΊΡΠ΅ΠΏΠΈΡΡ ΠΌΠ΅ΡΠ°Π»Π»ΠΈΡΠ΅ΡΠΊΠΈΠ΅ ΡΠ³ΠΎΠ»ΠΊΠΈ ΠΈ ΠΏΠ»Π°ΡΡΠΈΠ½Ρ. Π Π΅Π±ΡΠ° ΠΊΠ°ΡΠΊΠ°ΡΠ° Π²ΡΠΏΠΎΠ»Π½ΡΡΡΡΡ ΠΈΠ· ΡΠ°Π½Π΅ΡΡ. ΠΠΎΠ³Π΄Π° ΠΎΠ½ Π±ΡΠ΄Π΅Ρ ΡΠΎΠ±ΡΠ°Π½, ΠΌΠΎΠΆΠ½ΠΎ ΠΏΡΠΈΡΡΡΠΏΠ°ΡΡ ΠΊ ΠΈΠ·Π³ΠΎΡΠΎΠ²Π»Π΅Π½ΠΈΡ ΠΎΠ±ΡΠΈΠ²ΠΎΠΊ.
ΠΠ·Π³ΠΎΡΠΎΠ²Π»Π΅Π½ΠΈΠ΅ Π³Π»Π°Π²Π½ΠΎΠΉ ΠΎΠ±ΡΠΈΠ²ΠΊΠΈ
ΠΠ½ΠΈΠΌΠ°ΡΠ΅Π»ΡΠ½ΠΎ ΠΏΠΎΠ΄Ρ
ΠΎΠ΄ΠΈΡΠ΅ ΠΊ Π²ΡΠ±ΠΎΡΡ ΡΠΏΠΎΠΊΡΠΈΠ΄Π½ΡΡ
ΡΠΌΠΎΠ»ΠΠ»Π°Π²Π½Π°Ρ ΠΎΠ±ΡΠΈΠ²ΠΊΠ° ΠΏΠΎΠ·Π²ΠΎΠ»ΠΈΡ ΡΠ΄Π΅Π»Π°ΡΡ ΡΠ°ΠΊ, ΡΡΠΎΠ±Ρ Π»ΠΎΠ΄ΠΊΠ° ΠΈΠ· ΠΏΠ΅Π½ΠΎΠΏΠ»Π°ΡΡΠ° ΡΠ²ΠΎΠΈΠΌΠΈ ΡΡΠΊΠ°ΠΌΠΈ Π½Π΅ ΡΠΎΠ½ΡΠ»Π°, Π° Ρ ΠΎΡΠΎΡΠΎ Π΄Π΅ΡΠΆΠ°Π»Π°ΡΡ Π½Π° Π²ΠΎΠ΄Π΅. ΠΠ»Ρ Π΅Π΅ ΠΈΠ·Π³ΠΎΡΠΎΠ²Π»Π΅Π½ΠΈΡ Π½ΡΠΆΠ½ΠΎ Π²Π·ΡΡΡ Π»ΠΈΡΡΡ ΠΏΠ΅Π½ΠΎΠΏΠ»Π°ΡΡΠ° ΡΠΎΠ»ΡΠΈΠ½ΠΎΠΉ 5-10 ΡΠΌ, ΡΠΏΠΎΠΊΡΠΈΠ΄Π½ΡΠΉ ΠΊΠ»Π΅ΠΉ, ΠΎΡΡΡΡΠΉ ΠΈΠ½ΡΡΡΡΠΌΠ΅Π½Ρ Π΄Π»Ρ ΡΠ΅Π·ΠΊΠΈ ΠΏΠ΅Π½ΠΎΠΏΠΎΠ»ΠΈΡΡΠΈΡΠΎΠ»Π°, Π° ΡΠ°ΠΊΠΆΠ΅ ΠΈΠ·ΠΌΠ΅ΡΠΈΡΠ΅Π»ΡΠ½ΡΠ΅ ΠΏΡΠΈΠ±ΠΎΡΡ.
ΠΠ° Π»ΠΈΡΡΡ ΠΏΠ΅Π½ΠΎΠΏΠ»Π°ΡΡΠ° Π½Π°Π½ΠΎΡΡΡΡΡ Π·Π°ΠΌΠ΅ΡΡ ΠΏΠ»ΠΎΡΠ°Π΄ΠΈ ΠΊΠ°ΡΠΊΠ°ΡΠ° Π²ΡΠ΅ΠΉ Π»ΠΎΠ΄ΠΊΠΈ. ΠΠ°ΡΠ΅ΠΌ ΠΎΠ½ΠΈ ΡΠ°Π·Π΄Π΅Π»ΡΡΡΡΡ Π½Π° ΠΎΡΠ΄Π΅Π»ΡΠ½ΡΠ΅ Π·Π°ΠΌΠ΅ΡΡ, ΠΊΠΎΡΠΎΡΡΠ΅ Π² Π΄Π°Π»ΡΠ½Π΅ΠΉΡΠ΅ΠΌ Π±ΡΠ΄ΡΡ ΡΠΎΠ±ΠΈΡΠ°ΡΡΡΡ Π²ΠΎΠ΅Π΄ΠΈΠ½ΠΎ. ΠΠΎΡΠΊΠΎΠ»ΡΠΊΡ ΠΏΠ΅Π½ΠΎΠΏΠ»Π°ΡΡ Π½Π΅Π»ΡΠ·Ρ ΡΠ³ΠΈΠ±Π°ΡΡ, ΡΠ³Π»ΠΎΠ²ΡΠ΅ ΡΠΎΠ΅Π΄ΠΈΠ½Π΅Π½ΠΈΡ Π²ΡΠΏΠΎΠ»Π½ΡΡΡΡΡ ΠΈΠ· ΡΡΠ΅Ρ ΡΠ»Π΅ΠΌΠ΅Π½ΡΠΎΠ². Π§ΡΠΎΠ±Ρ ΠΏΡΠΈΠΊΡΠ΅ΠΏΠΈΡΡ ΠΏΠ΅Π½ΠΎΠΏΠ»Π°ΡΡ ΠΊ ΠΊΠ°ΡΠΊΠ°ΡΡ, ΠΌΠΎΠΆΠ½ΠΎ ΠΈΡΠΏΠΎΠ»ΡΠ·ΠΎΠ²Π°ΡΡ ΡΠΏΠΎΠΊΡΠΈΠ΄Π½ΡΠΉ ΠΊΠ»Π΅ΠΉ, ΠΊΠΎΡΠΎΡΡΠΌ ΡΠΊΠ»Π΅ΠΈΠ²Π°ΡΡΡΡ Π»ΠΈΡΡΡ, Π° ΡΠ°ΠΊΠΆΠ΅ Π³Π²ΠΎΠ·Π΄ΠΈ Ρ ΡΠΈΡΠΎΠΊΠΈΠΌΠΈ ΡΠ»ΡΠΏΠΊΠ°ΠΌΠΈ ΠΈΠ· ΠΏΠ»ΠΎΡΠΊΠΈΡ ΠΌΠ΅ΡΠ°Π»Π»ΠΈΡΠ΅ΡΠΊΠΈΡ ΠΏΠ»Π°ΡΡΠΈΠ½.
ΠΠ·Π³ΠΎΡΠΎΠ²Π»Π΅Π½ΠΈΠ΅ Π²Π½ΡΡΡΠ΅Π½Π½Π΅ΠΉ ΠΈ Π²Π½Π΅ΡΠ½Π΅ΠΉ ΠΎΠ±ΡΠΈΠ²ΠΊΠΈ
ΠΠ½ΡΡΡΠ΅Π½Π½ΡΡ ΠΎΠ±ΡΠΈΠ²ΠΊΠ° ΡΠ»ΡΠΆΠΈΡ Π·Π°ΡΠΈΡΠ½ΡΠΌ ΠΊΠ°ΡΠΊΠ°ΡΠΎΠΌ Π΄Π»Ρ Π³Π»Π°Π²Π½ΠΎΠΉ ΠΎΠ±ΡΠΈΠ²ΠΊΠΈ ΠΈΠ· ΠΏΠ΅Π½ΠΎΠΏΠΎΠ»ΠΈΡΡΠΈΡΠΎΠ»Π°. ΠΠ½Π° ΠΏΠΎΠΌΠΎΠ³Π°Π΅Ρ ΡΠΎΡ ΡΠ°Π½ΠΈΡΡ ΡΠ΅Π»ΠΎΡΡΠ½ΠΎΡΡΡ ΠΌΠ°ΡΠ΅ΡΠΈΠ°Π»Π° ΠΎΡ ΡΠ°Π·Π»ΠΈΡΠ½ΡΡ ΠΌΠ΅Ρ Π°Π½ΠΈΡΠ΅ΡΠΊΠΈΡ Π²ΠΎΠ·Π΄Π΅ΠΉΡΡΠ²ΠΈΠΉ, Π² ΡΠΎΠΌ ΡΠΈΡΠ»Π΅ ΠΏΠΎΠ΄ Π΄Π°Π²Π»Π΅Π½ΠΈΠ΅ΠΌ Π²Π΅ΡΠ° ΡΠ΅Π»ΠΎΠ²Π΅ΠΊΠ°, Π½Π°Ρ ΠΎΠ΄ΡΡΠ΅Π³ΠΎΡΡ Π²Π½ΡΡΡΠΈ ΡΡΠ΄Π½Π°. ΠΠ»Ρ ΠΈΠ·Π³ΠΎΡΠΎΠ²Π»Π΅Π½ΠΈΡ Π²Π½ΡΡΡΠ΅Π½Π½Π΅ΠΉ ΠΎΠ±ΡΠΈΠ²ΠΊΠΈ ΠΌΠΎΠΆΠ½ΠΎ Π²Π·ΡΡΡ ΡΠ°Π½Π΅ΡΡ. Π‘Π½Π°ΡΠ°Π»Π° Π²ΡΠΌΠ΅ΡΡΠ΅ΡΡΡ ΠΏΠ»ΠΎΡΠ°Π΄Ρ Π²Π½ΡΡΡΠ΅Π½Π½Π΅ΠΉ ΠΏΠΎΠ²Π΅ΡΡ Π½ΠΎΡΡΠΈ ΡΡΠ΄Π½Π°. ΠΠΎΠΆΠ½ΠΎ Π·Π°ΡΠΈΡΡ Π²ΡΡ ΠΏΠ»ΠΎΡΠ°Π΄Ρ Π²Π½ΡΡΡΠΈ Π»ΠΎΠ΄ΠΊΠΈ ΠΏΠΎΠ»Π½ΠΎΡΡΡΡ ΠΈΠ»ΠΈ ΡΠΎΠ»ΡΠΊΠΎ ΠΏΠΎΠ» ΠΈ Π½ΠΈΠΆΠ½ΡΡ ΡΠ°ΡΡΡ Π±ΠΎΡΡΠΎΠ². ΠΠΎΡΠ»Π΅ ΠΏΡΠΎΠ²Π΅Π΄Π΅Π½ΠΈΡ Π·Π°ΠΌΠ΅ΡΠΎΠ² ΠΎΠ½ΠΈ Π½Π°Π½ΠΎΡΡΡΡΡ Π½Π° ΡΠ°Π½Π΅ΡΡ, ΠΏΠΎΡΠ»Π΅ ΡΠ΅Π³ΠΎ ΠΎΠ½Π° ΠΎΡΠ΄Π΅Π»ΡΠ½ΡΠΌΠΈ ΡΠ°ΡΡΡΠΌΠΈ ΠΏΡΠΈΠΊΠ»Π΅ΠΈΠ²Π°Π΅ΡΡΡ Π½Π° Π³Π»Π°Π²Π½ΡΡ ΠΎΠ±ΡΠΈΠ²ΠΊΡ Ρ ΠΏΠΎΠΌΠΎΡΡΡ ΡΠΏΠΎΠΊΡΠΈΠ΄Π½ΠΎΠ³ΠΎ ΠΊΠ»Π΅Ρ. ΠΡΠΆΠ½ΠΎ ΡΠ»Π΅Π΄ΠΈΡΡ Π·Π° ΡΠ΅ΠΌ, ΡΡΠΎΠ±Ρ ΡΠ°Π½Π΅ΡΠ° Π½Π΅ ΠΏΡΠΎΠ³ΠΈΠ±Π°Π»Π°ΡΡ ΠΏΠΎΠ΄ Π²Π΅ΡΠΎΠΌ ΡΠ΅Π»ΠΎΠ²Π΅ΠΊΠ°, ΠΏΠΎΠ²ΡΠ΅ΠΆΠ΄Π°Ρ ΠΏΠ΅Π½ΠΎΠΏΠΎΠ»ΠΈΡΡΠΈΡΠΎΠ».
ΠΠ½Π΅ΡΠ½ΡΡ ΠΎΠ±ΡΠΈΠ²ΠΊΠ° ΠΎΠ±ΡΠ·Π°ΡΠ΅Π»ΡΠ½ΠΎ Π΄ΠΎΠ»ΠΆΠ½Π° Π²ΡΠΏΠΎΠ»Π½ΡΡΡΡΡ Π΄Π»Ρ ΡΠΎΠ³ΠΎ ΡΡΠΎΠ±Ρ ΠΊΠ°ΡΠ΅Ρ Π½Π΅ ΠΏΠΎΠ²ΡΠ΅Π΄ΠΈΠ» Π΄Π½ΠΎ ΠΈΠ»ΠΈ Π±ΠΎΡΡΠ° ΠΎ Π½Π΅ΡΠΎΠ²Π½ΠΎΡΡΠΈ Π΄Π½Π° ΠΈΠ»ΠΈ ΠΏΡΠΎΡΠΈΠ΅ ΠΏΡΠ΅ΠΏΡΡΡΡΠ²ΠΈΡ. Π ΡΠΎΠΌΡ ΠΆΠ΅, ΠΎΠ½Π° ΡΠΎΠ·Π΄Π°ΡΡ Π²ΠΎΠ΄ΠΎΠ½Π΅ΠΏΡΠΎΠ½ΠΈΡΠ°Π΅ΠΌΡΡ ΠΏΠΎΠ²Π΅ΡΡ Π½ΠΎΡΡΡ. ΠΠ»Ρ ΡΠΎΠ·Π΄Π°Π½ΠΈΡ Π·Π°ΡΠΈΡΠ½ΠΎΠΉ ΠΏΠΎΠ²Π΅ΡΡ Π½ΠΎΡΡΠΈ Π½Π°ΠΊΠ»Π΅ΠΈΠ²Π°Π΅ΡΡΡ ΡΠ°Π½Π΅ΡΠ° Π½Π° ΡΠ΅ ΠΌΠ΅ΡΡΠ° ΡΡΠ΄Π½Π°, Π³Π΄Π΅ Π²Π΅ΡΠΎΡΡΠ½Π΅Π΅ Π²ΡΠ΅Π³ΠΎ ΠΌΠΎΠΆΠ΅Ρ Π²ΠΎΠ·Π½ΠΈΠΊΠ½ΡΡΡ ΠΏΡΠΎΠ±ΠΎΠΈΠ½Π°, Π° ΡΠ°ΠΊΠΆΠ΅ Π½ΠΎΡ Π»ΠΎΠ΄ΠΊΠΈ. ΠΡΡΠ°Π»ΡΠ½ΡΡ ΡΠ°ΡΡΡ ΠΊΠΎΡΠΏΡΡΠ° ΠΌΠΎΠΆΠ½ΠΎ ΠΏΠΎΠΊΡΡΡΡ Π±ΡΠ΅Π·Π΅Π½ΡΠΎΠΌ Π΄Π»Ρ ΡΡΡΠΎΠΉΡΠΈΠ²ΠΎΡΡΠΈ ΠΎΡ Π²Π»Π°Π³ΠΈ.
ΠΠΎΠ΄ΠΊΠ° ΠΈΠ· ΠΏΠ΅Π½ΠΎΠΏΠ»Π°ΡΡΠ° ΠΈ ΡΡΠ΅ΠΊΠ»ΠΎΡΠΊΠ°Π½ΠΈ ΡΠ²ΠΎΠΈΠΌΠΈ ΡΡΠΊΠ°ΠΌΠΈ
Π‘ΡΠ΅ΠΊΠ»ΠΎΡΠΊΠ°Π½Ρ Π»Π΅Π³ΠΊΠΎ ΠΊΡΠΏΠΈΡΡ Π½Π° ΡΡΡΠΎΠΈΡΠ΅Π»ΡΠ½ΠΎΠΌ ΡΡΠ½ΠΊΠ΅ ΠΈΠ»ΠΈ Π·Π°ΠΊΠ°Π·Π°ΡΡ Π² ΠΈΠ½ΡΠ΅ΡΠ½Π΅ΡΠ΅Π‘Π°ΠΌΠΎΠ΄Π΅Π»ΠΊΠ° ΠΈΠ· ΠΏΠ΅Π½ΠΎΠΏΠ»Π°ΡΡΠ°, ΠΎΠΊΠ»Π΅Π΅Π½Π½ΠΎΠ³ΠΎ ΡΡΠ΅ΠΊΠ»ΠΎΠ²ΠΎΠ»ΠΎΠΊΠ½ΠΎΠΌ, ΠΈΠ·Π³ΠΎΡΠ°Π²Π»ΠΈΠ²Π°Π΅ΡΡΡ ΠΏΠΎ ΡΠ»Π΅Π΄ΡΡΡΠ΅ΠΉ ΡΡ Π΅ΠΌΠ΅:
- ΠΠΎΡΠ»Π΅ ΡΠΎΠ³ΠΎ, ΠΊΠ°ΠΊ Π±ΡΠ΄Π΅Ρ ΠΈΠ·Π³ΠΎΡΠΎΠ²Π»Π΅Π½ ΠΏΡΠΎΠ΅ΠΊΡ Π±ΡΠ΄ΡΡΠ΅Π³ΠΎ ΡΡΠ΄Π½Π°, ΠΊΠ°ΠΊ Π±ΡΠ»ΠΎ ΠΎΠΏΠΈΡΠ°Π½ΠΎ ΡΠ°Π½Π΅Π΅, Π½Π΅ΠΎΠ±Ρ ΠΎΠ΄ΠΈΠΌΠΎ ΠΈΠ·Π³ΠΎΡΠΎΠ²ΠΈΡΡ ΠΌΠΎΠ΄Π΅Π»Ρ Π»ΠΎΠ΄ΠΊΠΈ ΠΈΠ· ΡΠ°Π½Π΅ΡΡ. ΠΡΡΠΊΠΈ ΡΡΠΎΠ³ΠΎ ΠΌΠ°ΡΠ΅ΡΠΈΠ°Π»Π° Π²ΡΡΠ΅Π·Π°ΡΡΡΡ ΠΈΡΡ ΠΎΠ΄Ρ ΠΈΠ· ΡΠ»Π΅ΠΌΠ΅Π½ΡΠΎΠ² ΠΏΡΠΎΠ΅ΠΊΡΠ°, ΡΠΊΠ»Π΅ΠΈΠ²Π°ΡΡΡΡ ΠΌΠ΅ΠΆΠ΄Ρ ΡΠΎΠ±ΠΎΠΉ Ρ ΠΏΠΎΠΌΠΎΡΡΡ ΠΊΠ»Π΅Ρ Π½Π° ΡΠΏΠΎΠΊΡΠΈΠ΄Π½ΠΎΠΉ ΠΎΡΠ½ΠΎΠ²Π΅ (ΡΠ°ΠΊΠΆΠ΅ ΠΌΠΎΠΆΠ½ΠΎ ΠΈΡΠΏΠΎΠ»ΡΠ·ΠΎΠ²Π°ΡΡ ΡΠΏΠΎΠΊΡΠΈΠ΄Π½ΡΡ ΡΠΌΠΎΠ»Ρ).
- ΠΠΎΠΊΡΡΠ³ ΠΌΠΎΠ΄Π΅Π»ΠΈ ΠΈΠ· ΡΠ°Π½Π΅ΡΡ ΡΠΊΠ»Π΅ΠΈΠ²Π°ΡΡΡΡ ΠΏΡΠ΅Π΄Π²Π°ΡΠΈΡΠ΅Π»ΡΠ½ΠΎ ΠΏΠΎΠ΄Π³ΠΎΡΠΎΠ²Π»Π΅Π½Π½ΡΠ΅ ΡΠΎΠΎΡΠ²Π΅ΡΡΡΠ²Π΅Π½Π½ΠΎ ΡΠ΅ΡΡΠ΅ΠΆΡ, Π»ΠΈΡΡΡ ΠΏΠΎΠ»ΠΈΡΡΠΈΡΠΎΠ»Π°. ΠΠ»Ρ Π»ΡΡΡΠ΅Π³ΠΎ ΡΡΠ΅ΠΏΠ»Π΅Π½ΠΈΡ ΡΡΡΠΊΠΎΠ² ΠΈΡ ΠΌΠΎΠΆΠ½ΠΎ ΡΡΠ΅Π·Π°ΡΡ ΠΏΠΎΠ΄ ΡΠ³Π»ΠΎΠΌ 45 Π³ΡΠ°Π΄ΡΡΠΎΠ².
- ΠΠ΅ΡΠΈΠΌΠ΅ΡΡ Π»ΠΎΠ΄ΠΊΠΈ ΠΏΠΎΠΊΡΡΠ²Π°Π΅ΡΡΡ ΠΊΠ°ΡΠΊΠ°ΡΠΎΠΌ ΠΈΠ· ΡΠ΅Π΅ΠΊ ΡΠ°Π·ΠΌΠ΅ΡΠΎΠΌ 10Ρ 30 ΠΌΠΌ.
- Π’ΡΠ°Π½Π΅Ρ ΠΈ ΡΠΎΡΡΠΏΠΈΠ³Π΅Π»Ρ Π½Π΅ΠΎΠ±Ρ ΠΎΠ΄ΠΈΠΌΠΎ ΠΏΡΠΈΠΊΡΠ΅ΠΏΠΈΡΡ ΠΊ ΡΠ°Π½Π΅ΡΠ½ΠΎΠΉ ΠΌΠΎΠ΄Π΅Π»ΠΈ ΡΡΡΡΠΏΠ°ΠΌΠΈ.
- ΠΠ°Π»Π΅Π΅, Π²ΡΡΠ΅Π·Π°Π΅ΡΡΡ Π΄Π½ΠΈΡΠ΅ ΠΈ ΠΏΠΎΠ»ΠΈΡΡΠΈΡΠΎΠ»Π°, ΠΏΡΠΈΠΊΠ»Π΅ΠΈΠ²Π°Π΅ΡΡΡ ΠΊ Π±ΠΎΠΊΠΎΠ²ΡΠΌ ΠΈ ΡΠΎΡΡΠ΅Π²ΡΠΌ ΡΠ°ΡΡΡΠΌ, ΡΠ²Π΅ΡΡ Ρ ΡΠΊΠ»Π°Π΄ΡΠ²Π°Π΅ΡΡΡ Π³ΡΡΠ·. ΠΠ·Π»ΠΈΡΠΊΠΈ ΠΌΠ°ΡΠ΅ΡΠΈΠ°Π»Π° Π½Π° ΠΌΠ΅ΡΡΠ°Ρ ΡΡΡΠΊΠΎΠ² Π½ΡΠΆΠ½ΠΎ ΡΡΠ΅Π·Π°ΡΡ.
- ΠΠΎΡΡΠ°, ΠΊΠΎΡΠΎΡΡΠ΅ ΠΊΡΠ΅ΠΏΠΈΠ»ΠΈΡΡ ΡΡΡΡΠΏΠ°ΠΌΠΈ, ΡΠ΅ΠΏΠ΅ΡΡ ΠΏΡΠΈΠΊΠ»Π΅ΠΈΠ²Π°ΡΡΡΡ. ΠΠ½ΠΈ Π±ΡΠ»ΠΈ Π½ΡΠΆΠ½Ρ Π΄Π»Ρ ΡΠΎΠ³ΠΎ ΡΡΠΎΠ±Ρ Π½Π΅ Π²ΠΌΡΠ»ΡΡ ΠΏΠ΅Π½ΠΎΠΏΠΎΠ»ΠΈΡΡΠΈΡΠΎΠ» ΠΏΡΠΈ ΡΠΊΠ»Π΅ΠΈΠ²Π°Π½ΠΈΠΈ. ΠΠ΅ΡΡΠ° ΠΎΡΠ²Π΅ΡΡΡΠΈΠΉ ΠΎΡ ΡΡΡΡΠΏΠΎΠ² Π·Π°ΠΊΠ»Π΅ΠΈΠ²Π°ΡΡΡΡ ΠΏΠ΅Π½ΠΎΠΏΠ»Π°ΡΡΠΎΠΌ.
- ΠΠΎΠ²Π΅ΡΡ Π½ΠΎΡΡΡ Π»ΠΎΠ΄ΠΊΠΈ ΠΎΡΠΊΡΡΠΈΠ²Π°Π΅ΡΡΡ Π½Π°ΠΆΠ΄Π°ΡΠ½ΠΎΠΉ Π±ΡΠΌΠ°Π³ΠΎΠΉ.
- Π’Π΅ΠΏΠ΅ΡΡ Π½ΡΠΆΠ½ΠΎ ΠΈΡΠΏΠΎΠ»ΡΠ·ΠΎΠ²Π°ΡΡ ΡΡΠ΅ΠΊΠ»ΠΎΠ²ΠΎΠ»ΠΎΠΊΠ½ΠΎ Π΄Π»Ρ ΠΎΠΊΠ»Π΅ΠΈΠ²Π°Π½ΠΈΡ ΠΊΠΎΡΠΏΡΡΠ° ΠΈΠ· ΡΠ°ΡΡΠ΅ΡΠ° ΠΌΠ°ΡΠ΅ΡΠΈΠ°Π»Π° Π½Π° 1 ΡΠ»ΠΎΠΉ Π΄Π»Ρ Π±ΠΎΡΡΠΎΠ² ΠΈ 2 ΡΠ»ΠΎΡ Π΄Π»Ρ Π΄Π½ΠΈΡΠ°.
- ΠΠΎΡΠΏΡΡ Π½ΡΠΆΠ½ΠΎ ΠΎΡΡΠΏΠ°ΠΊΠ»Π΅Π²Π°ΡΡ, Π·Π°ΡΠ΅ΠΌ Π·Π°ΡΠΈΡΡΠΈΡΡ.
- Π‘ Π²Π½ΡΡΡΠ΅Π½Π½Π΅ΠΉ ΡΡΠΎΡΠΎΠ½Ρ ΠΊΠΎΡΠΏΡΡ ΡΠ°ΠΊΠΆΠ΅ ΠΏΠΎΠΊΡΡΠ²Π°Π΅ΡΡΡ ΡΡΠ΅ΠΊΠ»ΠΎΠ²ΠΎΠ»ΠΎΠΊΠ½ΠΎΠΌ, Π±ΠΎΡΡΠ° Π² 1 ΡΠ»ΠΎΠΉ, Π° Π΄Π½ΠΈΡΠ΅ β Π΄Π²ΠΎΠΉΠ½ΡΠΌ ΡΠ»ΠΎΠ΅ΠΌ, Π·Π°ΡΠ΅ΠΌ ΡΠΏΠ°ΠΊΠ»ΡΠ΅ΡΡΡ ΠΈ Π·Π°ΡΠΈΡΠ°Π΅ΡΡΡ Π°Π½Π°Π»ΠΎΠ³ΠΈΡΠ½ΠΎ Π²Π½Π΅ΡΠ½Π΅ΠΉ ΠΏΠΎΠ²Π΅ΡΡ Π½ΠΎΡΡΠΈ ΠΊΠ°ΡΠ΅ΡΠ°.
ΠΠΎ ΠΏΠ΅ΡΠΈΠΌΠ΅ΡΡΡ Π²Π½ΡΡΡΠ΅Π½Π½Π΅Π³ΠΎ Π±ΠΎΡΡΠ° ΡΠ°ΠΊΠΆΠ΅ ΠΏΡΠΈΠΊΡΠ΅ΠΏΠ»ΡΠ΅ΡΡΡ Π±ΡΡΡ ΡΠ°Π·ΠΌΠ΅ΡΠΎΠΌ 10Ρ 30 ΠΌΠΌ, Π΅Π³ΠΎ ΡΠΈΠΊΡΠ°ΡΠΈΡ ΠΏΡΠΎΠΈΠ·Π²ΠΎΠ΄ΠΈΡΡΡ Π½Π΅ΡΠΆΠ°Π²Π΅ΡΡΠΈΠΌΠΈ ΡΡΡΡΠΏΠ°ΠΌΠΈ Ρ ΠΏΠΎΡΠ°ΠΉΠ½ΡΠΌΠΈ Π³ΠΎΠ»ΠΎΠ²ΠΊΠ°ΠΌΠΈ. ΠΠ΅ΠΆΠ΄Ρ Π²Π½ΡΡΡΠ΅Π½Π½ΠΈΠΌ ΠΈ Π²Π½Π΅ΡΠ½ΠΈΠΌ ΠΏΡΠΈΠ²Π°Π»ΡΠ½ΡΠΌ Π±ΡΡΡΠΎΠΌ ΠΏΡΠΎΠΈΠ·Π²ΠΎΠ΄ΠΈΡΡΡ ΠΎΡΠ²Π΅ΡΡΡΠΈΠ΅, ΠΊΡΠ΄Π° Π²ΡΡΠ°Π²Π»ΡΠ΅ΡΡΡ ΠΏΡΡΠΌΠΎΡΠ³ΠΎΠ»ΡΠ½ΡΠ΅ Π±ΡΡΡΠΊΠΈ Ρ ΠΎΠ±ΠΎΠΈΡ Π±ΠΎΡΡΠΎΠ² Π΄Π»Ρ ΠΊΡΠ΅ΠΏΠ»Π΅Π½ΠΈΡ ΠΏΠΎΠ΄ΡΠΊΠ»ΡΡΠΈΠ½. ΠΠΏΠΎΡΠ»Π΅Π΄ΡΡΠ²ΠΈΠΈ ΡΡΠ΄Π° Π±ΡΠ΄Π΅Ρ ΠΏΡΠΈΠ²Π°ΡΠ΅Π½ΠΎ Π³Π½Π΅Π·Π΄ΠΎ ΠΈΠ· ΠΌΠ΅ΡΠ°Π»Π»ΠΈΡΠ΅ΡΠΊΠΎΠΉ ΡΡΡΠ±ΠΊΠΈ Π΄Π»Ρ ΡΠΊΠ»ΡΡΠΈΠ½ Π²Π΅ΡΠ΅Π». Π‘Π²Π΅ΡΡ Ρ Π±ΠΎΡΡΠ° ΡΠ°ΠΊΠΆΠ΅ ΠΎΠΊΠ»Π΅ΠΈΠ²Π°ΡΡΡΡ ΡΡΠ΅ΠΊΠ»ΠΎΡΠΊΠ°Π½ΡΡ, ΡΡΠΎΠ±Ρ ΠΈΡΠΊΠ»ΡΡΠΈΡΡ Π²ΠΎΠ·ΠΌΠΎΠΆΠ½ΡΠ΅ ΠΏΡΠΎΡΠ΅ΡΠΊΠΈ ΠΌΠ΅ΠΆΠ΄Ρ Π±ΡΡΡΡΡΠΌΠΈ ΠΊ ΠΏΠ΅Π½ΠΎΠΏΠΎΠ»ΠΈΡΡΠΈΡΠΎΠ»Ρ. ΠΠ° Π΄Π½ΠΈΡΠ΅ ΠΏΡΠΈΠΊΡΠ΅ΠΏΠ»ΡΡΡΡΡ ΡΡΡΠΈΠ½Π³Π΅ΡΠ° Π½Π° ΡΡΡΡΠΏΡ, ΠΏΠΎΠΊΡΡΠ²Π°ΡΡΡΡ ΡΠΏΠΎΠΊΡΠΈΠ΄Π½ΠΎΠΉ ΡΠΌΠΎΠ»ΠΎΠΉ. Π€ΠΈΠ½Π°Π»ΡΠ½Π°Ρ ΠΎΡΠ΄Π΅Π»ΠΊΠ° Π»ΠΎΠ΄ΠΊΠΈ ΠΈΠ· ΠΏΠ΅Π½ΠΎΠΏΠΎΠ»ΠΈΡΡΠΈΡΠΎΠ»Π° ΠΎΡΡΡΠ΅ΡΡΠ²Π»ΡΠ΅ΡΡΡ Ρ ΠΈΡΠΏΠΎΠ»ΡΠ·ΠΎΠ²Π°Π½ΠΈΠ΅ΠΌ ΡΠΏΠΎΠΊΡΠΈΠ΄Π½ΠΎΠ³ΠΎ Π³ΡΡΠ½ΡΠ°, Π½Π°Π½Π΅ΡΠ΅Π½Π½ΠΎΠ³ΠΎ Π΄Π²ΡΠΌΡ ΡΠ»ΠΎΡΠΌΠΈ.
pohod-lifehack.ru
βΆ ΠΠ°ΠΊ ΡΠ΄Π΅Π»Π°ΡΡ Π»ΠΎΠ΄ΠΊΡ π© Π΄Π΅ΡΠ΅Π²ΡΠ½Π½ΡΠ΅ Π»ΠΎΠ΄ΠΊΠΈ Π΄Π΅Π»Π°Π΅ΠΌ ΡΠ°ΠΌΠΈ π© Π₯ΠΎΠ±Π±ΠΈ ΠΈ ΡΠ°Π·Π²Π»Π΅ΡΠ΅Π½ΠΈΡ π© ΠΠΎΠΏΡΠ»ΡΡΠ½ΠΎΠ΅
ΠΠ²ΡΠΎΡ ΠΠ°ΠΊΠΡΠΎΡΡΠΎ!
Π ΡΡΠΎΠΉ ΡΡΠ°ΡΡΠ΅ ΠΏΠΎΠΉΠ΄Π΅Ρ ΡΠ΅ΡΡ ΠΎ ΡΠΎΠΌ, ΠΊΠ°ΠΊ Π·Π° ΠΎΡΠ½ΠΎΡΠΈΡΠ΅Π»ΡΠ½ΠΎ Π½Π΅Π±ΠΎΠ»ΡΡΠΎΠ΅ Π²ΡΠ΅ΠΌΡ ΡΠ°ΠΌΠΎΡΡΠΎΡΡΠ΅Π»ΡΠ½ΠΎ ΡΠ΄Π΅Π»Π°ΡΡ Π»ΠΎΠ΄ΠΊΡ.
ΠΠ»Ρ ΡΡΠΎΠ³ΠΎ ΠΏΠΎΡΡΠ΅Π±ΡΡΡΡΡ ΡΠ»Π΅Π΄ΡΡΡΠΈΠ΅ ΠΌΠ°ΡΠ΅ΡΠΈΠ°Π»Ρ:
- ΠΠΈΡΡ ΡΠ°Π½Π΅ΡΡ ΠΈΠ»ΠΈ ΡΠ΅ΠΊΡΡΠΎΠ»ΠΈΡΠ° ΡΠΎΠ»ΡΠΈΠ½ΠΎΠΉ ΠΏΡΡΡ-ΡΠ΅ΠΌΡ ΠΌΠΈΠ»Π»ΠΈΠΌΠ΅ΡΡΠΎΠ². Π Π°Π·ΠΌΠ΅ΡΡ Π΅Π³ΠΎ Π΄ΠΎΠ»ΠΆΠ½Ρ Π±ΡΡΡ 2000Ρ 800 ΠΌΠΌ.
- ΠΠ΅ΡΠ΅Π²ΡΠ½Π½ΡΠ΅ ΡΠ΅ΠΉΠΊΠΈ ΡΠ°Π·ΠΌΠ΅ΡΠΎΠΌ 400Ρ 50Ρ 10 ΠΌΠΌ. ΠΠ΅ΡΠ΅Π²ΠΎ ΠΆΠ΅Π»Π°ΡΠ΅Π»ΡΠ½ΠΎ Π±ΡΠ°ΡΡ ΠΈΠ· Π»Π΅Π³ΠΊΠΈΡ ΠΏΠΎΡΠΎΠ΄ (Π»ΠΈΠΏΠ°, ΡΠΎΠΏΠΎΠ»Ρ, ΡΠΎΡΠ½Π°).
- ΠΠ΅ΡΠ΅Π²ΡΠ½Π½ΡΠ΅ Π΄ΠΎΡΠΊΠΈ ΡΠΎΠ»ΡΠΈΠ½ΠΎΠΉ ΡΡΠΈΠ΄ΡΠ°ΡΡ ΠΈ Π΄Π²Π°Π΄ΡΠ°ΡΡ ΠΌΠΈΠ»Π»ΠΈΠΌΠ΅ΡΡΠΎΠ².
- ΠΠ΅ΡΠΆΠ°Π²Π΅ΡΡΠΈΠ΅ (ΠΎΡΠΈΠ½ΠΊΠΎΠ²Π°Π½Π½ΡΠ΅) ΡΠ°ΠΌΠΎΡΠ΅Π·Ρ.
- ΠΠ΅ΡΠ΅Π²ΠΊΠ° ΡΠΎΠ»ΡΠΈΠ½ΠΎΠΉ ΠΏΠΎΡΡΠ΄ΠΊΠ° ΡΠ΅ΡΡΠΈ ΠΌΠΈΠ»Π»ΠΈΠΌΠ΅ΡΡΠΎΠ² ΠΈ Π΄Π»ΠΈΠ½Π½ΠΎΠΉ ΠΎΠΊΠΎΠ»ΠΎ ΡΠ΅ΠΌΠΈ ΠΌΠ΅ΡΡΠΎΠ².
- ΠΡΡΠΎΠΊ Π½Π΅ΠΏΡΠΎΠΌΠΎΠΊΠ°Π΅ΠΌΠΎΠΉ ΡΠΊΠ°Π½ΠΈ ΡΠ°Π·ΠΌΠ΅ΡΠΎΠΌ ΠΏΡΠΈΠΌΠ΅ΡΠ½ΠΎ 2 Π½Π° 4 ΠΌΠ΅ΡΡΠ°.
- ΠΠ²Π΅ Π°Π²ΡΠΎΠΌΠΎΠ±ΠΈΠ»ΡΠ½ΡΠ΅ ΠΊΠ°ΠΌΠ΅ΡΡ (Π½Π°ΠΈΠ±ΠΎΠ»Π΅Π΅ ΠΏΠΎΠ΄Ρ ΠΎΠ΄ΡΡΠΈΠ΅ ΠΎΡ Π£ΠΠΠ° ΠΈΠ»ΠΈ ΠΠΠΠ΅Π»ΠΈ)
ΠΠ»Ρ ΡΠΎΠ³ΠΎ ΡΡΠΎΠ±Ρ ΠΏΠΎΡΡΡΠΎΠΈΡΡ Π»ΠΎΠ΄ΠΊΡΒ ΠΏΠΎΡΠ»Π΅Π΄ΠΎΠ²Π°ΡΠ΅Π»ΡΠ½ΠΎ Π²ΡΠΏΠΎΠ»Π½ΡΠ΅ΠΌ ΡΠ»Π΅Π΄ΡΡΡΠΈΠ΅ ΠΎΠΏΠ΅ΡΠ°ΡΠΈΠΈ. ΠΠΊΠΊΡΡΠ°ΡΠ½ΠΎ Π΄Π΅Π»Π°Π΅ΠΌ Π½Π° ΠΎΠ±Π΅ΠΈΡ ΠΊΡΠ°ΡΡ Π»ΠΈΡΡΠ° ΠΏΠΎΠ»ΡΠΎΠΊΡΡΠΆΠ½ΠΎΡΡΠΈ Π΄ΠΈΠ°ΠΌΠ΅ΡΡΠΎΠΌ ΡΠΎΡΠΎΠΊ ΡΠ°Π½ΡΠΈΠΌΠ΅ΡΡΠΎΠ² (ΡΡΠ΅Π·Π°Π΅ΠΌ ΡΠ³Π»Ρ Π»ΠΈΡΡΠ°). Π Π΄Π°Π»ΡΠ½Π΅ΠΉΡΠ΅ΠΌ ΠΏΠΎΠ»ΡΡΠ΅Π½Π½ΡΠΉ Π»ΠΈΡΡ Π±ΡΠ΄Π΅Ρ ΠΎΡΠ½ΠΎΠ²ΠΎΠΉ Π΄Π½Π° Π½Π°ΡΠ΅ΠΉ Π»ΠΎΠ΄ΠΊΠΈ. ΠΡΠΌΠ΅ΡΠ°Π΅ΠΌ ΡΠ΅ΡΠ΅Π΄ΠΈΠ½Ρ Π΄Π½Π° Π»ΠΎΠ΄ΠΊΠΈ (Π² Π΄Π»ΠΈΠ½Ρ). ΠΡΡΠ΅Π·Π°Π΅ΠΌ ΠΈΠ· Π΄ΠΎΡΠΊΠΈ ΡΠΎΠ»ΡΠΈΠ½ΠΎΠΉ 30 ΠΌΠΌ. ΡΠ΅ΡΡΡΠ΅ ΠΏΡΡΠΌΠΎΡΠ³ΠΎΠ»ΡΠ½ΡΡ ΡΡΠ΅ΡΠ³ΠΎΠ»ΡΠ½ΠΈΠΊΠ° ΡΠ°Π·ΠΌΠ΅ΡΠΎΠΌ 30Ρ 20 (ΡΡΠΎ Π΄Π»ΠΈΠ½Π½Ρ ΠΊΠ°ΡΠ΅ΡΠΎΠ²). ΠΠ° ΡΠ°ΡΡΡΠΎΡΠ½ΠΈΠΈ 15 ΡΠΌ. ΠΎΡ ΡΠ΅ΡΠ΅Π΄ΠΈΠ½Ρ ΠΊΡΠ΅ΠΏΠΈΠΌ ΡΡΠ΅ΡΠ³ΠΎΠ»ΡΠ½ΠΈΠΊΠΈ Π΄Π²Π°Π΄ΡΠ°ΡΠΈΡΠ°Π½ΡΠΈΠΌΠ΅ΡΡΠΎΠ²ΠΎΠΉ ΡΡΠΎΡΠΎΠ½ΠΎΠΉ ΠΊ Π΄Π½ΠΈΡΡ ΠΏΠΎ Π΄Π²Π° Ρ ΠΊΠ°ΠΆΠ΄ΠΎΠ³ΠΎ Π±ΠΎΡΡΠ°. ΠΡΠΈΠΊΡΡΡΠΈΠ²Π°Π΅ΠΌ Π½Π° ΠΏΠΎΠ»ΡΡΠ΅Π½Π½ΡΠΉ ΠΊΠ°ΡΠΊΠ°Ρ Π΄Π΅ΡΠ΅Π²ΡΠ½Π½ΡΠ΅ ΡΠ΅ΠΉΠΊΠΈ 400Ρ 50Ρ 10 ΠΌΠΌ. ΠΠΎΠ»ΡΡΠ°Π΅ΠΌ Π΄Π΅ΡΠ΅Π²ΡΠ½Π½ΡΡ ΠΎΡΠ½ΠΎΠ²ΡΒ Ρ Π΄Π²ΡΠΌΡ Π½Π΅Π±ΠΎΠ»ΡΡΠΈΠΌΠΈ Π±ΠΎΡΡΠΈΠΊΠ°ΠΌΠΈ ΠΈΠ· ΡΠ΅Π΅ΠΊ.
Π Π²Π΅ΡΡ Π½ΠΈΡ ΡΠ΅ΠΉΠΊΠ°Ρ ΠΏΡΠΈΠΌΠ΅ΡΠ½ΠΎ ΠΏΠΎΡΠ΅ΡΠ΅Π΄ΠΈΠ½Π΅ ΡΠ²Π΅ΡΠ»ΠΈΠΌ ΠΎΡΠ²Π΅ΡΡΡΠΈΡ ΠΈ ΠΏΡΠΎΠ΄Π΅Π²Π°Π΅ΠΌ Π²Π΅ΡΠ΅Π²ΠΎΡΠ½ΡΠ΅ ΠΏΠ΅ΡΠ»ΠΈ Π΄ΠΈΠ°ΠΌΠ΅ΡΡΠΎΠΌ 5-7 ΡΠ°Π½ΡΠΈΠΌΠ΅ΡΡΠΎΠ². ΠΡΠΎ ΡΠΊΠ»ΡΡΠΈΠ½Ρ Π΄Π»Ρ Π²Π΅ΡΠ΅Π» Π½Π°ΡΠ΅ΠΉ Π±ΡΠ΄ΡΡΠ΅ΠΉ Π»ΠΎΠ΄ΠΊΠΈ. ΠΠ· Π΄Π²Π°Π΄ΡΠ°ΡΠΈΠΌΠΈΠ»Π»ΠΈΠΌΠ΅ΡΡΠΎΠ²ΡΡ Π΄ΠΎΡΠΎΠΊ Π΄Π΅Π»Π°Π΅ΠΌ ΡΠ°ΡΠΏΠΎΡΠΊΠΈ ΠΌΠ΅ΠΆΠ΄Ρ ΡΡΠ΅ΡΠ³ΠΎΠ»ΡΠ½ΠΈΠΊΠ°ΠΌΠΈ ΠΎΡ ΠΎΠ΄Π½ΠΎΠ³ΠΎ Π±ΠΎΡΡΠ° ΠΊ Π΄ΡΡΠ³ΠΎΠΌΡ. ΠΠ΄Π½ΠΎΠ²ΡΠ΅ΠΌΠ΅Π½Π½ΠΎ ΠΎΠ½ΠΈ Π±ΡΠ΄ΡΡ ΡΠ²Π»ΡΡΡΡΡ ΡΠ΅Π±ΡΠ°ΠΌΠΈ ΠΆΠ΅ΡΡΠΊΠΎΡΡΠΈ Π½Π°ΡΠ΅ΠΉ Π±ΡΠ΄ΡΡΠ΅ΠΉ ΠΊΠΎΠ½ΡΡΡΡΠΊΡΠΈΠΈ. ΠΠ· Π½Π΅ΠΏΡΠΎΠΌΠΎΠΊΠ°Π΅ΠΌΠΎΠΉ ΡΠΊΠ°Π½ΠΈ Π΄Π΅Π»Π°Π΅ΠΌ ΡΠ΅Ρ ΠΎΠ», ΠΊΠΎΡΠΎΡΡΠΉ Π±ΡΠ΄Π΅Ρ ΠΎΠ΄Π΅Π²Π°ΡΡΡΡ Π½Π° Π΄Π½ΠΈΡΠ΅ ΠΈ Π±ΠΎΡΡΠ° Π»ΠΎΠ΄ΠΊΠΈ. ΠΡΠ°Ρ ΠΏΡΠΎΡΡΡΠ°ΡΠΈΠ²Π°Π΅ΠΌ, ΠΎΡΡΠ°Π²Π»ΡΡ Π²Π½ΡΡΡΠΈ ΡΠ²Π° ΠΌΠ΅ΡΡΠΎ Π΄Π»Ρ ΠΏΡΠΎΠ΄Π΅Π²Π°Π½ΠΈΡ Π²Π΅ΡΠ΅Π²ΠΊΠΈ.
ΠΡΠΎΠ΄Π΅Π²Π°Π΅ΠΌ Π²Π΅ΡΠ΅Π²ΠΊΡ Π² ΡΠΎΠ² ΡΠ΅Ρ Π»Π°.
Π ΠΈΡΠΎΠ³Π΅ Π½Π°ΡΠ° Π»ΠΎΠ΄ΠΊΠ° ΠΏΡΠ°ΠΊΡΠΈΡΠ΅ΡΠΊΠΈ Π³ΠΎΡΠΎΠ²Π°. ΠΡΡΠ°Π΅ΡΡΡ Π΄Π°ΡΡ Π½Π΅ΡΠΊΠΎΠ»ΡΠΊΠΎ Π½Π΅ΠΌΠ°Π»ΠΎΠ²Π°ΠΆΠ½ΡΡ ΡΠΎΠ²Π΅ΡΠΎΠ². ΠΠΎ-ΠΏΠ΅ΡΠ²ΡΡ , ΠΏΠΎΡΠ»Π΅ ΡΠ±ΠΎΡΠΊΠΈ Π΄Π΅ΡΠ΅Π²ΡΠ½Π½ΠΎΠ³ΠΎ ΠΊΠ°ΡΠΊΠ°ΡΠ° Π½Π΅ΠΎΠ±Ρ ΠΎΠ΄ΠΈΠΌΠΎ Π·Π°ΡΠΈΡΡΠΈΡΡ Π΅Π³ΠΎ Π½Π°ΠΆΠ΄Π°ΡΠ½ΠΎΠΉ Π±ΡΠΌΠ°Π³ΠΎΠΉ Π΄ΠΎ ΠΏΠΎΠ»ΡΡΠ΅Π½ΠΈΡ ΡΠΊΡΡΠ³Π»Π΅Π½Π½ΡΡ ΡΠ³Π»ΠΎΠ² ΠΈ Π³Π»Π°Π΄ΠΊΠΈΡ ΠΏΠΎΠ²Π΅ΡΡ Π½ΠΎΡΡΠ΅ΠΉ. ΠΡΠΎ ΡΠ±Π΅ΡΠ΅ΠΆΠ΅Ρ Π½Π΅ΠΏΡΠΎΠΌΠΎΠΊΠ°Π΅ΠΌΡΠΉ ΡΠ΅Ρ ΠΎΠ» ΠΈ ΠΊΠ°ΠΌΠ΅ΡΡ ΠΎΡ ΠΏΠΎΠ²ΡΠ΅ΠΆΠ΄Π΅Π½ΠΈΡ. ΠΠΎ-Π²ΡΠΎΡΡΡ , Π½Π΅ΠΎΠ±Ρ ΠΎΠ΄ΠΈΠΌΠΎ Π²ΡΠΊΡΡΡΡ Π²ΡΠ΅ Π΄Π΅ΡΠ΅Π²ΡΠ½Π½ΡΠΉ ΠΊΠ°ΡΠΊΠ°Ρ ΠΌΠ°ΡΠ΅ΡΠΈΠ°Π»ΠΎΠΌ, Π·Π°ΡΠΈΡΠ°ΡΡΠΈΠΌ ΠΎΡ Π³Π½ΠΈΠ΅Π½ΠΈΡ, Π½Π°ΠΏΡΠΈΠΌΠ΅Ρ β ΠΎΠ»ΠΈΡΠΎΠΉ ΠΈΠ»ΠΈ Π»Π°ΠΊΠΎΠΌ.Β
ΠΠ»Ρ ΡΠΎΠ³ΠΎ ΡΡΠΎΠ±Ρ ΡΠ΄Π΅Π»Π°ΡΡ Π»ΠΎΠ΄ΠΊΡ Π½ΡΠΆΠ½ΠΎ ΠΏΠΎΠ»ΠΎΠΆΠΈΡΡ ΠΊΠ°ΡΠΊΠ°Ρ Π² ΡΠ΅Ρ ΠΎΠ», Π²ΡΡΠ°Π²ΠΈΡΡ Π½Π°ΠΊΠ°ΡΠ°Π½Π½ΡΠ΅ ΠΊΠ°ΠΌΠ΅ΡΡ ΠΏΠΎ ΠΊΡΠ°ΡΠΌ ΠΊΠ°ΡΠΊΠ°ΡΠ° ΠΈ Π·Π°ΡΡΠ½ΡΡΡ Π²Π΅ΡΠ΅Π²ΠΊΡ ΡΠ΅Ρ Π»Π°. ΠΠ΅ΡΠ΅Π²ΠΎΡΠ½ΡΠ΅ ΠΏΠ΅ΡΠ»ΠΈ Π΄Π»Ρ ΡΠΊΠ»ΡΡΠΈΠ½ Π³Π»Π°Π²Π½ΠΎΠ΅ Π²ΡΡΡΠ½ΡΡΡ Π½Π°Π΄ Π±ΠΎΡΡΠ°ΠΌΠΈ. Π ΡΠΎΠ»ΠΈ ΡΠΈΠ΄Π΅Π½ΠΈΠΉ β ΠΊΠ°ΠΌΠ΅ΡΡ. ΠΠΎΠ΄ΠΊΠ° Π³ΠΎΡΠΎΠ²Π° ΠΊ ΡΡΠ±Π°Π»ΠΊΠ΅!
Β
ΠΠΈΠ΄Π΅ΠΎ ΠΏΠΎ ΡΠ΅ΠΌΠ΅
ΠΡΡΠΎΡΠ½ΠΈΠΊΠΈ:
- ΠΊΠ°ΠΊ ΡΠ΄Π΅Π»Π°ΡΡ Π»ΠΎΠ΄ΠΊΡ ΠΈΠ· Π΄ΠΎΡΠΎΠΊ
ΠΠΎΠ΄ΠΊΠ° β ΡΠ΄ΠΎΠ±Π½ΠΎΠ΅ ΠΈ Π΄ΠΎΡΡΡΠΏΠ½ΠΎΠ΅ ΡΡΠ΅Π΄ΡΡΠ²ΠΎ ΠΏΠ΅ΡΠ΅Π΄Π²ΠΈΠΆΠ΅Π½ΠΈΡ ΠΏΠΎ Π²ΠΎΠ΄Π΅, ΠΈ Π΄Π»Ρ ΠΏΠ»Π°Π²Π°Π½ΠΈΡ ΠΏΠΎ Π½Π΅Π±ΠΎΠ»ΡΡΠΈΠΌ Π²ΠΎΠ΄ΠΎΠ΅ΠΌΠ°ΠΌ Π»ΠΎΠ΄ΠΊΠΈ ΠΈΡΠΏΠΎΠ»ΡΠ·ΡΠ΅Ρ ΠΌΠ½ΠΎΠΆΠ΅ΡΡΠ²ΠΎ Π»ΡΠ΄Π΅ΠΉ. ΠΠΌΠ΅Ρ Π»ΠΎΠ΄ΠΊΡ, Π²Ρ ΠΌΠΎΠΆΠ΅ΡΠ΅ ΠΏΠΎΠ·Π²ΠΎΠ»ΠΈΡΡ ΡΠ΅Π±Π΅ ΠΏΡΠΈΡΡΠ½ΡΠΉ ΠΎΡΠ΄ΡΡ Π² ΡΠ΅ΠΏΠ»ΠΎΠ΅ Π²ΡΠ΅ΠΌΡ Π³ΠΎΠ΄Π°, Π° ΡΠ°ΠΊΠΆΠ΅, Π΅ΡΠ»ΠΈ Π²Ρ ΡΠ²Π»Π΅ΠΊΠ°Π΅ΡΠ΅ΡΡ ΡΡΠ±Π°Π»ΠΊΠΎΠΉ, Π»ΠΎΠ΄ΠΊΠ° ΠΏΡΠ΅Π΄ΠΎΡΡΠ°Π²ΠΈΡ Π²Π°ΠΌ Π΄ΠΎΠΏΠΎΠ»Π½ΠΈΡΠ΅Π»ΡΠ½ΡΠ΅ ΡΠ΄ΠΎΠ±ΡΡΠ²Π° Π² Π»ΠΎΠ²Π»Π΅ ΡΡΠ±Ρ Π½Π° Π³Π»ΡΠ±ΠΈΠ½Π΅. ΠΡΠ»ΠΈ Ρ Π²Π°Ρ Π΅ΡΡΡ Π½ΡΠΆΠ½ΡΠ΅ ΠΈΠ½ΡΡΡΡΠΌΠ΅Π½ΡΡ ΠΈ ΠΌΠ°ΡΠ΅ΡΠΈΠ°Π»Ρ, Π° ΡΠ°ΠΊΠΆΠ΅ ΠΏΠΎΠΌΠ΅ΡΠ΅Π½ΠΈΠ΅ Π΄Π»Ρ ΠΌΠ°ΡΡΠ΅ΡΡΠΊΠΎΠΉ, Π²Ρ Π²ΠΏΠΎΠ»Π½Π΅ ΠΌΠΎΠΆΠ΅ΡΠ΅ ΠΏΠΎΠΏΡΠΎΠ±ΠΎΠ²Π°ΡΡ ΠΈΠ·Π³ΠΎΡΠΎΠ²ΠΈΡΡ Π»ΠΎΠ΄ΠΊΡ ΡΠ°ΠΌΠΎΡΡΠΎΡΡΠ΅Π»ΡΠ½ΠΎ, ΡΡΠΊΠΎΠ½ΠΎΠΌΠΈΠ² Π΄Π΅Π½ΡΠ³ΠΈ Π½Π° Π΅Π΅ ΠΏΠΎΠΊΡΠΏΠΊΠ΅ Π² ΠΌΠ°Π³Π°Π·ΠΈΠ½Π΅.

ΠΠ½ΡΡΡΡΠΊΡΠΈΡ
ΠΡΠΈ Π΄Π»ΠΈΠ½Π΅ Π»ΠΎΠ΄ΠΊΠΈ ΠΎΠΊΠΎΠ»ΠΎ 4 ΠΌ, Π° ΡΠΈΡΠΈΠ½Π΅ β 1,2 ΠΌ, Π²Π°ΠΌ ΠΏΠΎΡΡΠ΅Π±ΡΡΡΡΡ ΡΠΎΠ²Π½ΡΠ΅ ΡΠΎΡΠ½ΠΎΠ²ΡΠ΅ Π΄ΠΎΡΠΊΠΈ ΡΠΎΠΎΡΠ²Π΅ΡΡΡΠ²ΡΡΡΠΈΡ Π³Π°Π±Π°ΡΠΈΡΠΎΠ². ΠΠΎΡΠΊΠΈ Π΄ΠΎΠ»ΠΆΠ½Ρ Π±ΡΡΡ Ρ ΡΠ΅ΡΠ΅Π½ΠΈΠ΅ΠΌ 30Ρ 30 ΠΌΠΌ, 40Ρ 20 ΠΌΠΌ, Π° ΡΠ°ΠΊΠΆΠ΅ 50Ρ 20 ΠΌΠΌ β Π΄Π»Ρ ΡΠ°Π·Π½ΡΡ ΡΠ°ΡΡΠ΅ΠΉ Π»ΠΎΠ΄ΠΊΠΈ.ΠΠ»Ρ ΠΎΠ±ΡΠΈΠ²ΠΊΠΈ Π»ΠΎΠ΄ΠΊΠΈ ΠΈΡΠΏΠΎΠ»ΡΠ·ΡΠΉΡΠ΅ Π²ΠΎΠ΄ΠΎΡΡΠΎΠΉΠΊΡΡ ΡΠ°Π½Π΅ΡΡ ΡΠΎΠ»ΡΠΈΠ½ΠΎΠΉ Π² 1 ΡΠΌ. Π’Π°ΠΊΠΆΠ΅ Π²Π°ΠΌ ΠΏΠΎΡΡΠ΅Π±ΡΡΡΡΡ Π΄Π²Π° ΡΠΈΡΠ°Π½ΠΎΠ²ΡΡ Π»ΠΈΡΡΠ° 100Ρ 200 ΡΠΌ, ΠΌΠ΅ΡΠ°Π»Π»ΠΈΡΠ΅ΡΠΊΠΈΠ΅ ΡΡΡΡΠΏΡ ΠΈ ΡΠΏΠΎΠΊΡΠΈΠ΄Π½ΡΠΉ ΠΊΠ»Π΅ΠΉ.
ΠΠ°Π³ΠΎΡΠΎΠ²ΡΡΠ΅ ΡΠ΅ΡΡΠ΅ΠΆΠΈ Π»ΠΎΠ΄ΠΊΠΈ ΠΈ Π΅Π΅ Π΄Π΅ΡΠ°Π»Π΅ΠΉ. ΠΠ»Ρ ΡΠΎΡΠΌΠΈΡΠΎΠ²Π°Π½ΠΈΡ Π½ΠΎΡΠ° Π»ΠΎΠ΄ΠΊΠΈ Π²ΠΎΠ·ΡΠΌΠΈΡΠ΅ Π±ΡΡΡΡΡ 1050Ρ 180Ρ 100 ΠΌΠΌ. ΠΠΌΠ΅ΡΡΠΎ ΠΊΠΈΠ»Ρ ΡΡΡΠ°Π½ΠΎΠ²ΠΈΡΠ΅ 5 ΡΡΡΠΈΠ½Π³Π΅ΡΠΎΠ² Π½Π° Π΄Π½ΠΈΡΠ΅ Π»ΠΎΠ΄ΠΊΠΈ. ΠΠ·Π³ΠΎΡΠΎΠ²ΡΡΠ΅ ΠΈΠ· ΡΠΎΠ»ΡΡΡΡ ΡΠΎΡΠ½ΠΎΠ²ΡΡ Π±ΡΡΡΡΠ΅Π² ΡΡΠ°ΠΏΠ΅Π»Ρ ΠΈ ΡΡΡΠ°Π½ΠΎΠ²ΠΈΡΠ΅ Π½Π° Π½Π΅Π³ΠΎ ΡΠΏΠ°Π½Π³ΠΎΡΡΡ ΠΈ Π½ΠΎΡΠΎΠ²ΡΠ΅ Π±ΡΡΡΡΡ. ΠΠΊΠ»Π΅ΠΉΡΠ΅ ΠΏΡΠΎΠ΄ΠΎΠ»ΡΠ½ΡΠ΅ Π΄ΠΎΡΠΊΠΈ ΠΈ ΠΎΠ±ΡΠ΅ΠΉΡΠ΅ Π±ΠΎΡΡΠ° Π»ΠΎΠ΄ΠΊΠΈ Π²ΠΎΠ΄ΠΎΡΡΠΎΠΉΠΊΠΎΠΉ ΡΠ°Π½Π΅ΡΠΎΠΉ, Π° Π·Π°ΡΠ΅ΠΌ ΡΠ½ΠΈΠΌΠΈΡΠ΅ Π»ΠΎΠ΄ΠΊΡ ΡΠΎ ΡΡΠ°ΠΏΠ΅Π»Ρ. ΠΠ° ΠΏΡΠΎΠ΄ΠΎΠ»ΡΠ½ΡΠ΅ ΠΈ ΠΏΠΎΠΏΠ΅ΡΠ΅ΡΠ½ΡΠ΅ Π½Π°Π±ΠΎΡΡ ΡΡΡΠ°Π½ΠΎΠ²ΠΈΡΠ΅ ΡΠΈΡΠ°Π½ΠΎΠ²ΡΠ΅ Π»ΠΈΡΡΡ ΡΠΎΠ»ΡΠΈΠ½ΠΎΠΉ 1 ΠΌΠΌ, ΠΈΡΠΏΠΎΠ»ΡΠ·ΡΡ ΡΡΡΡΠΏΠΎΠ²Π΅ΡΡ ΠΈ ΠΎΠΊΡΠΈΠ΄ΠΈΡΠΎΠ²Π°Π½Π½ΡΠ΅ ΡΡΡΡΠΏΡ, Π° ΠΏΠ΅ΡΠ΅Π΄ ΡΡΠΈΠΌ ΠΏΡΠΎΠ»ΠΎΠΆΠΈΡΠ΅ Π½Π° Π΄ΠΎΡΠΊΠΈ ΡΠΈΠ½ΡΠ΅ΡΠΈΡΠ΅ΡΠΊΡΡ ΡΠΊΠ°Π½Ρ, ΠΏΡΠΎΠΏΠΈΡΠ°Π½Π½ΡΡ ΠΊΡΠ°ΡΠΊΠΎΠΉ. ΠΡΡΡΡΠ΅ ΠΊΡΠ°Ρ Π·Π°ΠΊΡΠΎΠΉΡΠ΅ ΠΌΠ΅ΡΠ°Π»Π»ΠΈΡΠ΅ΡΠΊΠΈΠΌΠΈ ΡΠ³ΠΎΠ»ΠΊΠ°ΠΌΠΈ, ΠΏΡΠΈΠ²ΠΈΠ½ΡΠΈΠ² ΠΈΡ ΡΡΡΡΠΏΠΎΠ²Π΅ΡΡΠΎΠΌ.ΠΠ°ΠΊΠΎΠ½ΡΠΈΠ² ΠΈΠ·Π³ΠΎΡΠΎΠ²Π»Π΅Π½ΠΈΠ΅ Π»ΠΎΠ΄ΠΊΠΈ, Π²Ρ ΠΌΠΎΠΆΠ΅ΡΠ΅ ΡΡΡΠ°Π½ΠΎΠ²ΠΈΡΡ Π½Π° Π½Π΅Π΅ Π΄ΠΎΠΏΠΎΠ»Π½ΠΈΡΠ΅Π»ΡΠ½ΡΠΉ ΡΠ»Π΅ΠΊΡΡΠΎΠΌΠΎΡΠΎΡ Ρ Π²ΠΈΠ½ΡΠΎΠΌ, Π½Π°Ρ ΠΎΠ΄ΡΡΠΈΠΌΡΡ ΠΏΠΎΠ΄ Π²ΠΎΠ΄ΠΎΠΉ.
Π’Π°ΠΊΠΆΠ΅ Π²Ρ ΠΌΠΎΠΆΠ΅ΡΠ΅ ΡΡΡΠ°Π½ΠΎΠ²ΠΈΡΡ Π½Π° Π»ΠΎΠ΄ΠΊΡ, Π½Π΅ ΡΡΠΎΠ³Π°Ρ ΠΎΠ±ΡΠ΅ΠΉ ΠΊΠΎΠ½ΡΡΡΡΠΊΡΠΈΠΈ, Π²ΠΎΠ΄ΠΎΠΌΠ΅ΡΠ½ΡΡ ΠΏΡΠΈΡΡΠ°Π²ΠΊΡ Π½Π° ΠΌΠΎΡΠΎΡ Ρ ΡΠΎΠ½Π½Π΅Π»Π΅ΠΌ Π΄Π»Ρ ΠΏΠΎΠ΄ΡΠ΅ΠΌΠ° Π²ΠΎΠ΄Ρ, ΠΊΠΎΡΠΎΡΠ°Ρ ΡΠ²Π΅Π»ΠΈΡΠΈΡ ΡΠΊΠΎΡΠΎΡΡΡ Π΄Π²ΠΈΠΆΠ΅Π½ΠΈΡ, Π΄Π°Π²Π°Ρ ΠΌΠΈΠ½ΠΈΠΌΠ°Π»ΡΠ½ΡΡ Π½Π°Π³ΡΡΠ·ΠΊΡ Π½Π° ΠΌΠΎΡΠΎΡ.
ΠΠΈΠ΄Π΅ΠΎ ΠΏΠΎ ΡΠ΅ΠΌΠ΅
ΠΡΡΠΎΡΠ½ΠΈΠΊΠΈ:
- ΠΠ΅ΡΠ΅Π²ΡΠ½Π½Π°Ρ Π»ΠΎΠ΄ΠΊΠ° ΠΏΠ»ΠΎΡΠΊΠΎΠ΄ΠΎΠ½ΠΊΠ° ΡΠ²ΠΎΠΈΠΌΠΈ ΡΡΠΊΠ°ΠΌΠΈ Π²ΠΈΠ΄Π΅ΠΎ, ΠΊΠ°ΠΊ ΡΠ΄Π΅Π»Π°ΡΡ
Π‘ΠΎΠ±ΡΡΠ²Π΅Π½Π½ΡΠΉ ΠΊΠ°ΡΠ΅Ρ β ΠΌΠ΅ΡΡΠ° ΠΌΠ½ΠΎΠ³ΠΈΡ , ΠΈ Ρ Π±ΠΎΠ»ΡΡΠΈΠ½ΡΡΠ²Π° Π»ΡΠ΄Π΅ΠΉ Π΅Π³ΠΎ Π½Π°Π»ΠΈΡΠΈΠ΅ Π°ΡΡΠΎΡΠΈΠΈΡΡΠ΅ΡΡΡ Ρ ΡΠΎΡΠΊΠΎΡΡΡ ΠΈ Π΄ΠΎΡΡΠ°ΡΠΊΠΎΠΌ Π²Π»Π°Π΄Π΅Π»ΡΡΠ°. ΠΡΠΈ ΡΡΠΎΠΌ ΠΌΠ°Π»ΠΎ ΠΊΡΠΎ Π΄ΠΎΠ³Π°Π΄ΡΠ²Π°Π΅ΡΡΡ, ΡΡΠΎ, ΠΈΠΌΠ΅Ρ ΠΎΠΏΡΠ΅Π΄Π΅Π»Π΅Π½Π½ΡΠ΅ Π½Π°Π²ΡΠΊΠΈ ΡΡΡΠΎΠΈΡΠ΅Π»ΡΡΡΠ²Π° ΠΈ ΠΊΠΎΠ½ΡΡΡΡΠΈΡΠΎΠ²Π°Π½ΠΈΡ, ΠΊΠ°ΠΆΠ΄ΡΠΉ ΠΌΠΎΠΆΠ΅Ρ ΠΏΠΎΡΡΡΠΎΠΈΡΡ ΡΠΎΠ±ΡΡΠ²Π΅Π½Π½ΡΠΉ ΠΊΠ°ΡΠ΅Ρ ΠΈΠ· ΡΡΠ΅ΠΊΠ»ΠΎΠΏΠ»Π°ΡΡΠΈΠΊΠ°, ΠΎΠ±ΡΠΈΡΡΠΉ Π²ΠΎΠ΄ΠΎΡΡΠΎΠΉΠΊΠΎΠΉ ΡΠ°Π½Π΅ΡΠΎΠΉ, ΠΈ ΠΈΠΌΠ΅ΡΡΠΈΠΉ ΠΊΠ°ΡΡΡ, ΠΊΠ°ΠΏΠΈΡΠ°Π½ΡΠΊΠΈΠΉ ΠΌΠΎΡΡΠΈΠΊ ΠΈ Π΄ΠΎΡΡΠ°ΡΠΎΡΠ½ΠΎ ΠΌΠΎΡΠ½ΡΠΉ Π΄Π»Ρ ΠΏΠΎΠ΅Π·Π΄ΠΎΠΊ ΠΏΠΎ Π²ΠΎΠ΄Π΅ Π΄Π²ΠΈΠ³Π°ΡΠ΅Π»Ρ.

ΠΠ½ΡΡΡΡΠΊΡΠΈΡ
ΠΡΠΏΠΎΠ»ΡΠ·ΡΠΉΡΠ΅ ΡΠΎΡΠ½ΡΠ΅ ΡΠ΅ΡΡΠ΅ΠΆΠΈ Π΄Π»Ρ ΠΏΠΎΡΡΡΠΎΠΉΠΊΠΈ Π΄Π΅ΡΠ°Π»Π΅ΠΉ ΠΈ ΡΠ»Π΅ΠΌΠ΅Π½ΡΠΎΠ² ΠΊΠΎΡΠΏΡΡΠ° ΠΊΠ°ΡΠ΅ΡΠ°. ΠΠ»Ρ Π½Π°ΡΠ°Π»Π° Π½Π° ΡΠ°Π½Π΅ΡΠ½ΠΎΠΌ ΡΠΈΡΠ΅ ΡΠΈΡΠΈΠ½ΠΎΠΉ, ΠΏΡΠ΅Π²ΡΡΠ°ΡΡΠ΅ΠΉ ΡΠΈΡΠΈΠ½Ρ ΠΊΠΎΡΠΏΡΡΠ° Π½Π° 30 ΡΠΌ, Π° Π΄Π»ΠΈΠ½ΠΎΠΉ, ΠΏΡΠ΅Π²ΡΡΠ°ΡΡΠ΅ΠΉ Π²ΡΡΠΎΡΡ ΠΊΠΎΡΠΏΡΡΠ° Π½Π° 40 ΡΠΌ, ΡΠ°ΡΡΠ΅ΡΡΠΈΡΠ΅ Π² ΡΠ΅Π°Π»ΡΠ½ΠΎΠΌ ΡΠ°Π·ΠΌΠ΅ΡΠ΅ ΡΠΏΠ°Π½Π³ΠΎΡΡΡ ΠΈ ΠΎΠ±Π²ΠΎΠ΄ ΡΠΎΡΡΡΠ΅Π²Π½Ρ. ΠΡΠΎΠ²Π΅Π΄ΠΈΡΠ΅ Π½Π° Π²Π΅ΡΡ Π½ΠΈΡ ΠΊΠΎΠ½ΡΠ°Ρ ΡΠΏΠ°Π½Π³ΠΎΡΡΠΎΠ² Π³ΠΎΡΠΈΠ·ΠΎΠ½ΡΠ°Π»ΡΠ½ΡΡ Π»ΠΈΠ½ΠΈΡ. Π Π°ΡΡΠ΅ΡΡΠΈΠ²Π°Ρ Π»Π΅ΠΊΠ°Π»Π°, ΡΡΠΈΡΡΠ²Π°ΠΉΡΠ΅ ΡΠΎΠ»ΡΠΈΠ½Ρ ΡΠ΅Π΅ΠΊ ΠΈ ΠΌΠ°ΡΠ΅ΡΠΈΠ°Π»Π° Π²Π½ΡΡΡΠ΅Π½Π½Π΅ΠΉ ΠΎΠ±ΡΠΈΠ²ΠΊΠΈ ΠΊΠ°ΡΠ΅ΡΠ°. Π€ΡΠ°Π³ΠΌΠ΅Π½ΡΡ ΠΏΠΎΠΏΠ΅ΡΠ΅ΡΠ½ΡΡ Π»Π΅ΠΊΠ°Π» ΡΠΎΠ΅Π΄ΠΈΠ½ΡΠΉΡΠ΅, ΠΈΡΠΏΠΎΠ»ΡΠ·ΡΡ Π½Π°ΠΊΠ»Π°Π΄ΠΊΠΈ ΠΈΠ· ΡΠ°Π½Π΅ΡΡ ΡΠ°Π½ΡΠΈΠΌΠ΅ΡΡΠΎΠ²ΠΎΠΉ ΡΠΎΠ»ΡΠΈΠ½Ρ.ΠΠ΅ΡΠ΅Π΄ ΡΠ±ΠΎΡΠΊΠΎΠΉ Π²ΡΠ΅Ρ ΡΡΠ°Π³ΠΌΠ΅Π½ΡΠΎΠ² ΠΊΠ°ΡΠ΅ΡΠ° ΠΏΡΠ΅Π΄ΡΡΠΌΠΎΡΡΠΈΡΠ΅ Π½Π°ΠΈΠ±ΠΎΠ»Π΅Π΅ ΡΠ΄ΠΎΠ±Π½ΡΠΉ ΡΠΏΠΎΡΠΎΠ± ΡΡΡΠ°Π½ΠΎΠ²ΠΊΠΈ Π½Π°ΡΡΠΆΠ½ΠΎΠΉ ΠΎΠ±ΡΠΈΠ²ΠΊΠΈ.
Π‘ΠΎΠ±Π΅ΡΠΈΡΠ΅ ΠΌΠ°ΡΡΠΈΡΡ ΠΊΠ°ΡΠ΅ΡΠ° ΡΠ°ΠΊ, ΡΡΠΎΠ±Ρ Ρ Π²Π°Ρ ΠΏΠΎΠ»ΡΡΠΈΠ»Π°ΡΡ ΠΆΠ΅ΡΡΠΊΠ°Ρ ΠΈ ΠΏΡΠΎΡΠ½Π°Ρ ΠΊΠΎΠ½ΡΡΡΡΠΊΡΠΈΡ, ΠΊΠΎΡΠΎΡΠ°Ρ Π½Π΅ Π΄Π΅ΡΠΎΡΠΌΠΈΡΡΠ΅ΡΡΡ ΠΏΡΠΈ Π΄Π°Π»ΡΠ½Π΅ΠΉΡΠ΅ΠΉ ΠΏΠΎΡΡΡΠΎΠΉΠΊΠ΅ ΠΈ ΡΠ±ΠΎΡΠΊΠ΅ Π΄Π΅ΡΠ°Π»Π΅ΠΉ.ΠΠ°ΡΡΠ½ΠΈΡΠ΅ Π²Π΄ΠΎΠ»Ρ Π±ΡΡΡΡΠ΅Π², ΡΡΡΠ°Π½ΠΎΠ²Π»Π΅Π½Π½ΡΡ Π² ΠΎΡΠ½ΠΎΠ²Π°Π½ΠΈΠΈ ΠΌΠ°ΡΡΠΈΡΡ ΠΊΠΎΡΠΏΡΡΠ°, ΡΡΠ°Π»ΡΠ½ΡΡ ΠΏΡΠΎΠ²ΠΎΠ»ΠΎΠΊΡ, ΠΊΠΎΡΠΎΡΠ°Ρ ΠΏΠΎΠ·Π²ΠΎΠ»ΠΈΡ ΠΎΡΠΈΠ΅Π½ΡΠΈΡΠΎΠ²Π°ΡΡΡΡ Π² ΡΡΡΠΎΠΈΡΠ΅Π»ΡΡΡΠ²Π΅ ΡΡΠ΄Π½Π°.
Π£ΡΡΠ°Π½ΠΎΠ²ΠΊΡ Π»Π΅ΠΊΠ°Π» Π½Π°ΡΠ½ΠΈΡΠ΅ Ρ ΠΌΠΈΠ΄Π΅Π»Ρ-ΡΠΏΠ°Π½Π³ΠΎΡΡΠ°, Π·Π°ΠΊΡΠ΅ΠΏΠ»ΡΡ Π΄Π΅ΡΠ°Π»Ρ Π²Π΅ΡΡΠΈΠΊΠ°Π»ΡΠ½ΠΎ ΠΈ ΠΏΠ΅ΡΠΏΠ΅Π½Π΄ΠΈΠΊΡΠ»ΡΡΠ½ΠΎ Π»ΠΈΠ½ΠΈΠΈ.
Π£ΡΡΠ°Π½ΠΎΠ²ΠΈΡΠ΅ ΡΠ°ΡΠΊΠΎΡΡ Π½Π° Π±ΡΡΡΡΡΡ ΠΎΡΠ½ΠΎΠ²Π°Π½ΠΈΡ ΠΊΠ°ΡΠ΅ΡΠ°. Π£ΡΡΠ°Π½ΠΎΠ²ΠΈΡΠ΅ Π·Π°ΡΠ΅ΠΌ Π²ΡΠ΅ Π»Π΅ΠΊΠ°Π»Π° ΠΈ Π½Π°ΡΠΈΠ½Π°ΠΉΡΠ΅ ΠΎΠ±ΡΠΈΠ²Π°ΡΡ Π²Π½ΡΡΡΠ΅Π½Π½ΡΡ ΡΠ°ΡΡΡ ΠΊΠΎΡΠΏΡΡΠ° ΠΏΡΠΎΠ΄ΠΎΠ»ΡΠ½ΡΠΌΠΈ ΡΠ΅ΠΉΠΊΠ°ΠΌΠΈ ΡΠΎΠ»ΡΠΈΠ½ΠΎΠΉ 15 ΠΌΠΌ ΠΈ ΡΠΈΡΠΈΠ½ΠΎΠΉ 50 ΠΌΠΌ.
ΠΠ½ΠΈΡΠ΅ ΠΈΠ·Π½ΡΡΡΠΈ ΠΎΠ±ΡΠΈΠ²Π°ΠΉΡΠ΅ ΡΠ΅ΠΉΠΊΠ°ΠΌΠΈ ΡΠΈΡΠΈΠ½ΠΎΠΉ Π² 100 ΠΌΠΌ. Π£ΡΡΠ°Π½ΠΎΠ²ΠΈΡΠ΅ ΠΎΠ΄Π½Ρ ΡΠ΅ΠΉΠΊΡ Π½Π° Π±ΠΎΡΡΡ, Π° Π²ΡΠΎΡΡΡ Π½Π° Π΄Π½ΠΈΡΠ΅, Π° Π·Π°ΡΠ΅ΠΌ ΡΡΡΠ°Π½ΠΎΠ²ΠΈΡΠ΅ ΡΠ΅ΠΉΠΊΠΈ Π² Π²Π΅ΡΡ Π½ΠΈΠ΅ ΠΊΡΠΎΠΌΠΊΠΈ Π±ΠΎΡΡΠΎΠ².
ΠΠ½ΡΡΡΠ΅Π½Π½ΡΡ ΠΏΠΎΠ²Π΅ΡΡ Π½ΠΎΡΡΡ ΠΊΠΎΡΠΏΡΡΠ° ΠΏΠΎΡΠ»Π΅ ΡΡΡΠ°Π½ΠΎΠ²ΠΊΠΈ Π²ΡΠ΅Ρ ΡΠ»Π΅ΠΌΠ΅Π½ΡΠΎΠ² ΡΠ΅ΡΡΠ΅ΠΆΠ° ΠΎΠ±ΡΠ΅ΠΉΡΠ΅ ΡΡΠ΅Ρ ΠΌΠΈΠ»Π»ΠΈΠΌΠ΅ΡΡΠΎΠ²ΠΎΠΉ ΡΠ°Π½Π΅ΡΠΎΠΉ ΠΈΠ»ΠΈ ΠΎΡΠ³Π°Π»ΠΈΡΠΎΠΌ, ΠΏΡΠΈΠΊΠ»Π΅ΠΈΠ²Π°Ρ ΠΎΠ±ΡΠΈΠ²ΠΎΡΠ½ΡΠΉ ΠΌΠ°ΡΠ΅ΡΠΈΠ°Π» ΠΊΠ»Π΅Π΅ΠΌ ΠΈ Π·Π°ΡΠΏΠ°ΠΊΠ»Π΅Π²ΡΠ²Π°Ρ ΡΠ΅Π»ΠΈ ΡΠΏΠΎΠΊΡΠΈΠ΄Π½ΠΎΠΉ ΡΠΏΠ°ΠΊΠ»Π΅Π²ΠΊΠΎΠΉ. ΠΠ°ΡΠ΅ΡΡΠ²ΠΎ ΡΠΏΠ°ΠΊΠ»Π΅Π²ΠΊΠΈ Π΄ΠΎΠ»ΠΆΠ½ΠΎ Π±ΡΡΡ Π²ΡΡΠΎΠΊΠΈΠΌ β Π²ΡΡΠΎΠ²Π½ΡΠΉΡΠ΅ ΠΌΠ°ΠΊΡΠΈΠΌΠ°Π»ΡΠ½ΠΎ ΠΏΠΎΠ²Π΅ΡΡ Π½ΠΎΡΡΡ ΡΠ°Π½Π΅ΡΡ, ΠΎΡΡΠ»ΠΈΡΡΠΉΡΠ΅ Π΅Π΅ ΠΈ ΠΏΠΎΠΊΡΠ°ΡΡΡΠ΅ Π΄Π²ΡΠΌΡ ΡΠ»ΠΎΡΠΌΠΈ Π²ΠΎΠ΄ΠΎΠΎΡΡΠ°Π»ΠΊΠΈΠ²Π°ΡΡΠ΅ΠΉ ΠΊΡΠ°ΡΠΊΠΈ.
ΠΠΎΡΠ»Π΅ Π²ΡΡΡΡ Π°Π½ΠΈΡ ΠΏΠΎΠ²Π΅ΡΡ Π½ΠΎΡΡΠΈ Π½Π°Π½Π΅ΡΠΈΡΠ΅ Π½Π° Π½Π΅Π΅ Π²ΠΎΡΠΊ ΠΈΠ»ΠΈ Π²Π°Π·Π΅Π»ΠΈΠ½, Π° Π·Π°ΡΠ΅ΠΌ ΠΏΡΠΈΠΊΡΠ΅ΠΏΠ»ΡΠΉΡΠ΅ ΠΊ Π½Π΅ΠΉ ΡΡΠ΅ΠΊΠ»ΠΎΡΠΊΠ°Π½Ρ ΠΈ ΠΈΡΠΎΠ³ΠΎΠ²ΡΡ Π½Π°ΡΡΠΆΠ½ΡΡ ΠΎΠ±ΡΠΈΠ²ΠΊΡ (Π»Π°ΠΌΠΈΠ½Π°Ρ ΠΈΠ»ΠΈ ΡΡΠ΅ΠΊΠ»ΠΎΠΏΠ»Π°ΡΡΠΈΠΊ). ΠΠ°Ρ ΠΊΠ°ΡΠ΅Ρ Π±ΡΠ΄Π΅Ρ ΠΈΠΌΠ΅ΡΡ ΡΡΠ΅Ρ ΡΠ»ΠΎΠΉΠ½ΡΡ ΠΎΠ±ΡΠΈΠ²ΠΊΡ.
ΠΠ»Ρ ΡΠΎΠ³ΠΎ, ΡΡΠΎΠ±Ρ Π·Π°ΠΏΠΎΠ»Π½ΠΈΡΡ ΠΏΠ°Π»ΡΠ±Ρ Π»Π΅Π³ΠΊΠΈΠΌ ΠΌΠ°ΡΠ΅ΡΠΈΠ°Π»ΠΎΠΌ, ΠΈΡΠΏΠΎΠ»ΡΠ·ΡΠΉΡΠ΅ ΡΠΎΠ»ΡΡΡΠΉ ΠΈ Π»Π΅Π³ΠΊΠΈΠΉ ΠΏΠ΅Π½ΠΎΠΏΠ»Π°ΡΡ. ΠΡΠΏΠΎΠ»ΡΠ·ΡΡ ΡΠ΅ΡΡΠ΅ΠΆΠΈ, ΠΈΠ·Π³ΠΎΡΠΎΠ²ΡΡΠ΅ Π²Π΅ΡΡ Π½ΡΡ ΠΏΠ°Π»ΡΠ±Ρ ΠΈ ΡΡΠ±ΠΊΡ ΠΊΠ°ΠΏΠΈΡΠ°Π½Π°.
ΠΡΠ»ΠΈ ΡΠ°Π±ΠΎΡΡ Π±ΡΠ΄ΡΡ Π²Π΅ΡΡΠΈ Π½Π΅ΡΠΊΠΎΠ»ΡΠΊΠΎ ΡΠ΅Π»ΠΎΠ²Π΅ΠΊ, Π²Ρ ΡΠΌΠΎΠΆΠ΅ΡΠ΅ ΠΈΠ·Π³ΠΎΡΠΎΠ²ΠΈΡΡ ΠΊΠ°ΡΠ΅Ρ Π΄ΠΎΡΡΠ°ΡΠΎΡΠ½ΠΎ Π±ΡΡΡΡΠΎ, ΡΡΠΊΠΎΠ½ΠΎΠΌΠΈΠ² Π±ΠΎΠ»ΡΡΡΡ ΡΡΠΌΠΌΡ Π΄Π΅Π½Π΅Π³ Π½Π° Π΅Π³ΠΎ ΠΏΡΠΈΠΎΠ±ΡΠ΅ΡΠ΅Π½ΠΈΠΈ.
ΠΠ½ΠΎΠ³Π΄Π° Π±ΡΠ²Π°Π΅Ρ ΠΏΡΠΎΡΡΠΎ Π½Π΅ΠΎΠ±Ρ ΠΎΠ΄ΠΈΠΌΠ° Π»ΠΎΠ΄ΠΊΠ°, Π½Π΅Π±ΠΎΠ»ΡΡΠ°Ρ, Π»ΡΠ³ΠΊΠ°Ρ, ΠΏΠΎΡΡΠ°ΡΠΈΠ²Π½Π°Ρ, ΠΏΡΠΎΡΠ½Π°Ρ ΠΈ Π½Π΅ΠΏΠΎΡΠΎΠΏΠ»ΡΠ΅ΠΌΠ°Ρ. Π’Π°ΠΊΡΡ Π»ΠΎΠ΄ΠΊΡ ΠΌΠΎΠΆΠ½ΠΎ ΠΈΠ·Π³ΠΎΡΠΎΠ²ΠΈΡΡ ΡΠ°ΠΌΠΎΡΡΠΎΡΡΠ΅Π»ΡΠ½ΠΎ ΠΈ Π²ΡΠ΅Π³ΠΎ Π·Π° Π½Π΅ΡΠΊΠΎΠ»ΡΠΊΠΎ Π΄Π½Π΅ΠΉ. ΠΡΠ½ΠΎΠ²Π½ΡΠΌ ΠΌΠ°ΡΠ΅ΡΠΈΠ°Π»ΠΎΠΌ Π΄Π»Ρ Π»ΠΎΠ΄ΠΊΠΈ Π±ΡΠ΄Π΅Ρ ΡΡΠ΅ΠΊΠ»ΠΎΡΠΊΠ°Π½Ρ, Π΅Ρ ΠΏΠΎΠ½Π°Π΄ΠΎΠ±ΠΈΡΡΡ ΠΎΠΊΠΎΠ»ΠΎ 24 ΠΌΠ΅ΡΡΠΎΠ². Π ΠΈΡΠΎΠ³Π΅ Ρ Π²Π°Ρ ΠΏΠΎΠ»ΡΡΠΈΡΡΡ Π»ΠΎΠ΄ΠΊΠ°, ΠΊΠΎΡΠΎΡΡΡ Π»Π΅Π³ΠΊΠΎ ΠΌΠΎΠΆΠ½ΠΎ ΠΏΠ΅ΡΠ΅Π²Π΅Π·ΡΠΈ Π½Π° Π°Π²ΡΠΎΠΌΠΎΠ±ΠΈΠ»Π΅ ΠΈΠ»ΠΈ ΡΠ°Π·ΠΌΠ΅ΡΡΠΈΡΡ Π² ΠΊΠ°ΡΠ΅ΡΠ΅. Π ΡΠΏΠΎΠΊΠΎΠΉΠ½ΡΡ ΠΏΠΎΠ³ΠΎΠ΄Ρ ΡΠ°ΠΊΠ°Ρ Π»ΠΎΠ΄ΠΎΡΠΊΠ° ΡΠΌΠΎΠΆΠ΅Ρ Π²ΡΠ΄Π΅ΡΠΆΠ°ΡΡ ΡΡΡΡ Π²Π·ΡΠΎΡΠ»ΡΡ Π»ΡΠ΄Π΅ΠΉ ΠΎΠ±ΡΠΈΠΌ Π²Π΅ΡΠΎΠΌ 250 ΠΊΠ³. ΠΈΠ»ΠΈ Π΄Π²ΡΡ Π²Π·ΡΠΎΡΠ»ΡΡ ΠΈ Π΄Π²ΡΡ Π΄Π΅ΡΠ΅ΠΉ. ΠΡΠ»ΠΈ Π²Ρ ΡΠ΅ΡΠΈΠ»ΠΈ ΡΠΌΠ°ΡΡΠ΅ΡΠΈΡΡ ΡΠ°ΠΊΡΡ Π»ΠΎΠ΄ΠΊΡ, ΡΠΎ ΠΈΠ½ΡΡΡΡΠΊΡΠΈΡ Π΄Π»Ρ Π²Π°Ρ β Π½ΠΈΠΆΠ΅.

ΠΠ½ΡΡΡΡΠΊΡΠΈΡ
Π‘Π½Π°ΡΠ°Π»Π° ΠΈΠ· ΡΠ΅Π΅ΠΊ ΠΈ ΡΠ°Π½Π΅ΡΡ ΡΠΌΠ°ΡΡΠ΅ΡΠΈΡΠ΅ Π±ΠΎΠ»Π²Π°Π½. ΠΠΎ Π²Π΅ΡΡ Π½Π΅ΠΉ ΠΊΡΠΎΠΌΠΊΠ΅ Π±ΠΎΠ»Π²Π°Π½ Π½ΡΠΆΠ½ΠΎ ΠΎΠΏΠΎΡΡΠ°ΡΡ Π±ΡΡΡΡΡΠΌΠΈ, Π½Π° ΠΊΠΎΡΠΎΡΡΡ Π±ΡΠ΄ΡΡ ΠΈΠΌΠ΅ΡΡΡΡ ΠΆΠ΅Π»ΠΎΠ±ΠΊΠΈ β ΡΡΠΎ Π±ΡΠ΄Π΅Ρ Π½Π΅ΠΎΠ±Ρ ΠΎΠ΄ΠΈΠΌΠΎ Π΄Π»Ρ ΠΎΠ±ΡΠ°Π·ΠΎΠ²Π°Π½ΠΈΡ ΠΎΡΠ±ΠΎΡΡΠΎΠ²ΠΊΠΈ-ΠΏΠ»Π°Π½ΡΠΈΡΡ. Π Π½ΠΎΡΠΎΠ²ΠΎΠΉ ΠΈ ΠΊΠΎΡΠΌΠΎΠ²ΠΎΠΉ ΡΠ°ΡΡΠΈ ΠΏΡΠΈΠ΄Π΅Π»Π°ΠΉΡΠ΅ ΠΏΠΎ ΡΡΠΈ ΡΠΎΡΠΌΡ Π΄Π»Ρ Π²ΠΊΠ»Π΅ΠΈΠ²Π°Π½ΠΈΡ ΡΡΡΠ΅ΠΊ β ΡΡΠΈ ΡΡΡΠΊΠΈ Π±ΡΠ΄ΡΡ Π½ΡΠΆΠ½Ρ Π΄Π»Ρ ΡΠΎΠ³ΠΎ, ΡΡΠΎΠ±Ρ Π»ΠΎΠ΄ΠΊΡ ΠΌΠΎΠΆΠ½ΠΎ Π±ΡΠ»ΠΎ ΠΏΠ΅ΡΠ΅Π½ΠΎΡΠΈΡΡ.
ΠΠ°ΡΠ΅ΠΌ Π½Π° Π΄Π½ΠΈΡΠ΅ ΠΏΡΠΈΠΊΡΠ΅ΠΏΠΈΡΠ΅ Π΄Π²Π° ΡΡΡΠΈΠ½Π³Π΅ΡΠ° ΠΈ ΠΊΠΈΠ»Ρ. ΠΡΠΎ ΠΏΠΎΠ²ΡΡΠΈΡ ΠΏΡΠΎΠ΄ΠΎΠ»ΡΠ½ΡΡ ΠΆΡΡΡΠΊΠΎΡΡΡ ΠΈ ΡΡΡΠΎΠΉΡΠΈΠ²ΠΎΡΡΡ Π»ΠΎΠ΄ΠΊΠΈ Π½Π° ΠΊΡΡΡΠ΅.
Π₯ΠΎΡΠΎΡΠ΅Π½ΡΠΊΠΎ ΠΏΡΠΎΡΡΡΠΎΠ³Π°ΠΉΡΠ΅ Π±ΠΎΠ»Π²Π°Π½, Π° Π·Π°ΡΠ΅ΠΌ ΠΏΠΎΠΊΡΠΎΠΉΡΠ΅ Π΅Π³ΠΎ ΠΏΠΎΠ»ΡΠΆΠΈΠ΄ΠΊΠΈΠΌ ΠΌΡΠ»ΠΎΠΌ. ΠΠΎΡΠ»Π΅ ΡΠΎΠ³ΠΎ, ΠΊΠ°ΠΊ ΠΌΡΠ»ΠΎ ΠΏΠΎΠ΄ΡΠΎΡ Π½Π΅Ρ, Π²ΠΎΠ·ΡΠΌΠΈΡΠ΅ ΡΡΠΊΠΎΠ½Π½ΡΡ ΡΡΡΠΏΠΎΡΠΊΡ ΠΈ ΠΎΡΠΏΠΎΠ»ΠΈΡΡΠΉΡΠ΅ ΠΊΠΎΡΠΏΡΡ, Π° ΠΏΠΎΡΠ»Π΅ ΡΡΠΎΠ³ΠΎ Π½Π°Π½Π΅ΡΠΈΡΠ΅ Π΅ΡΡ ΠΎΠ΄ΠΈΠ½ ΡΠ»ΠΎΠΉ ΠΌΡΠ»Π°.
Π’Π΅ΠΏΠ΅ΡΡ Π²ΠΎΠ·ΡΠΌΠΈΡΠ΅ ΡΡΠ΅ΠΊΠ»ΠΎΡΠΊΠ°Π½Ρ. ΠΠ°ΠΌ ΠΏΠΎΠ½Π°Π΄ΠΎΠ±ΠΈΡΡΡ Π²ΠΎΡΠ΅ΠΌΡ ΠΊΡΡΠΊΠΎΠ² ΡΠΊΠ°Π½ΠΈ ΠΏΠΎ ΡΡΠΈ ΠΌΠ΅ΡΡΠ° ΠΊΠ°ΠΆΠ΄ΡΠΉ. Π§ΡΠΎΠ±Ρ ΠΏΡΠΈΠ΄Π°ΡΡ ΠΈΠ·Π΄Π΅Π»ΠΈΡ Π·Π΅Π»ΡΠ½ΡΠΉ ΡΠ²Π΅Ρ, Π΄ΠΎΠ±Π°Π²ΡΡΠ΅ Π² ΠΏΠΎΠ»ΠΈΡΡΠΈΡΠ½ΡΡ ΡΠΌΠΎΠ»Ρ, ΠΊΠΎΡΠΎΡΠ°Ρ Π±ΡΠ΄Π΅Ρ ΡΠ²ΡΠ·ΡΡΡΠΈΠΌ Π²Π΅ΡΠ΅ΡΡΠ²ΠΎΠΌ, Π΄Π²ΡΠΎΠΊΠΈΡΡ Ρ ΡΠΎΠΌΠ° ΠΈΠ· ΡΠ°ΡΡΠ΅ΡΠ°: 2 ΡΡ. Π». Π΄Π²ΡΠΎΠΊΠΈΡΠΈ Ρ ΡΠΎΠΌΠ° ΠΈ 20 Π³. ΠΎΡΠ²Π΅ΡΠ΄ΠΈΡΠ΅Π»Ρ Π½Π° 1 Π». ΡΠΌΠΎΠ»Ρ.
Π‘ΡΠΎΡΠΌΠΈΡΡΠΉΡΠ΅ ΠΊΠΎΡΠΏΡΡ Π»ΠΎΠ΄ΠΎΡΠΊΠΈ ΡΠ»Π΅Π΄ΡΡΡΠΈΠΌ ΠΎΠ±ΡΠ°Π·ΠΎΠΌ: ΡΡΠ΅ΠΊΠ»ΠΎΡΠΊΠ°Π½Ρ Π·Π°ΠΌΠΎΡΠΈΡΠ΅ Π² ΡΠ²ΡΠ·ΡΡΡΠ΅ΠΌ Π²Π΅ΡΠ΅ΡΡΠ²Π΅, Π·Π°ΡΠ΅ΠΌ ΡΠΊΠ»Π°Π΄ΡΠ²Π°ΠΉΡΠ΅ ΠΈΡ , ΠΏΠ΅ΡΠ΅ΠΊΡΡΠ²Π°Ρ ΠΊΠΈΠ»Ρ. Π‘Π½Π°ΡΠ°Π»Π° ΡΠΊΠ»Π°Π΄ΡΠ²Π°ΠΉΡΠ΅ ΠΏΠΎ ΠΎΠ΄Π½ΠΎΠΌΡ Π±ΠΎΡΡΡ, Π·Π°ΡΠ΅ΠΌ ΠΏΠΎ Π΄ΡΡΠ³ΠΎΠΌΡ. Π£Π»ΠΎΠΆΠΈΡΠ΅ ΡΠ°ΠΊ ΡΡΠΈ ΡΠ»ΠΎΡ, Π° Π²ΡΠ΅ ΠΏΠΎΠ»ΠΎΡΡΠΈ Π·Π°ΠΏΠΎΠ»Π½ΠΈΡΠ΅ ΠΏΠ΅Π½ΠΎΠΏΠ»Π°ΡΡΠΎΠΌ. Π‘Π²Π΅ΡΡ Ρ ΡΠ»ΠΎΠΆΠΈΡΠ΅ Π΅ΡΡ ΠΎΠ΄ΠΈΠ½ ΡΠ»ΠΎΠΉ ΡΠΊΠ°Π½ΠΈ. ΠΡΡΠ°Π²ΡΡΠ΅ ΡΡΡΠΈΡΡΡΡ Π½Π° ΡΠ΅ΡΡΡΠ΅ Π΄Π½Ρ.
Π§Π΅ΡΠ΅Π· ΡΠ΅ΡΡΡΠ΅ Π΄Π½Ρ ΡΠ½ΠΈΠΌΠΈΡΠ΅ Π»ΠΎΠ΄ΠΎΡΠΊΡ Ρ Π±ΠΎΠ»Π²Π°Π½Π° ΠΈ ΠΏΠΎΠ²ΡΠΎΡΠΈΡΠ΅ Π²ΡΡ ΠΏΡΠΎΡΠ΅Π΄ΡΡΡ, ΠΊΠ°ΠΊ Π² ΠΏΡΠ΅Π΄ΡΠ΄ΡΡΠ΅ΠΌ ΡΠ°Π³Π΅, ΠΈΡΠΏΠΎΠ»ΡΠ·ΡΡ ΠΏΠΎΠ»ΡΡΠ΅Π½Π½ΡΠΉ ΠΊΠΎΡΠΏΡΡ ΠΊΠ°ΠΊ ΠΌΠ°ΡΡΠΈΡΡ. ΠΠ· ΠΏΠ΅Π½ΠΎΠΏΠ»Π°ΡΡΠ° Π·Π°ΡΠ°Π½Π΅Π΅ ΠΏΠΎΠ΄Π³ΠΎΡΠΎΠ²ΡΡΠ΅ Π²Π΅ΡΡΠΈΠΊΠ°Π»ΡΠ½ΡΠ΅ ΠΈ Π³ΠΎΡΠΈΠ·ΠΎΠ½ΡΠ°Π»ΡΠ½ΡΠ΅ ΡΡΠ΅Π½ΠΊΠΈ β Π΄Π»Ρ Π½ΠΎΡΠΎΠ²ΠΎΠΉ ΠΈ ΠΊΠΎΡΠΌΠΎΠ²ΠΎΠΉ Π±Π°Π½ΠΎΠΊ.
Π§Π΅ΡΠ΅Π· ΡΠ΅ΡΡΡΠ΅ Π΄Π½Ρ Π²ΡΠ½ΡΡΠ΅ ΠΊΠΎΡΠΏΡΡ ΠΈΠ· ΠΌΠ°ΡΡΠΈΡΡ, Π² ΠΎΡΠ±ΠΎΡΡΠΎΠ²ΠΊΡ Π·Π°ΡΠΎΡΠΌΡΠΉΡΠ΅ ΡΠ΅ΡΡΡΠ΅ Π΄Π΅ΡΠ΅Π²ΡΠ½Π½ΡΡ Π±ΡΡΡΠΊΠ°, ΠΈΡ Π΄Π»ΠΈΠ½Π° Π΄ΠΎΠ»ΠΆΠ½Π° ΡΠΎΡΡΠ°Π²Π»ΡΡΡ Π½Π΅ Π±ΠΎΠ»Π΅Π΅ 200 ΡΠΌ. ΠΠΎΠΌΠ΅ΡΡΠΈΡΠ΅ Π² ΡΡΡΠΊΠΈ ΠΏΠ΅Π½ΠΎΠΏΠ»Π°ΡΡ. ΠΠΎΡΠ»Π΅ ΡΠΎΠ³ΠΎ, ΠΊΠ°ΠΊ ΡΠΌΠΎΠ»Π° ΠΏΠΎΠ»ΠΈΠΌΠ΅ΡΠΈΠ·ΡΠ΅ΡΡΡ, ΠΎΠ±ΡΠ°Π±ΠΎΡΠ°ΠΉΡΠ΅ Π²ΡΠ΅ ΠΎΡΡΡΡΠ΅ ΠΊΡΠ°Ρ.
ΠΠ° ΠΎΠ΄Π½ΠΎΠΉ ΡΡΠ΅ΡΡΠ΅ΠΉ Π΄Π»ΠΈΠ½Ρ ΠΎΡ ΡΡΠ°Π½ΡΠ° ΠΈ Π½ΠΎΡΠ° ΡΠ°ΡΠΏΠΎΠ»ΠΎΠΆΠΈΡΠ΅ Π΄Π²Π΅ ΠΏΠ°ΡΡ ΠΏΠΎΠ΄ΡΠΊΠ»ΡΡΠΈΠ½. ΠΠ°ΡΠ° Π»ΠΎΠ΄ΠΎΡΠΊΠ° Π³ΠΎΡΠΎΠ²Π°. ΠΠ½Π° ΠΈΠ΄Π΅Π°Π»ΡΠ½ΠΎ ΠΏΠΎΠ΄ΠΎΠΉΠ΄ΡΡ Π΄Π»Ρ ΡΡΠ±Π°Π»ΠΊΠΈ ΠΈ Π½Π΅Π±ΠΎΠ»ΡΡΠΈΡ ΠΏΡΠΎΠ³ΡΠ»ΠΎΠΊ Π²Π΄Π²ΠΎΡΠΌ. ΠΡΠ±ΠΈΡΠ°ΠΉΡΠ΅ Π΄Π»Ρ Π»ΠΎΠ΄ΠΊΠΈ Π²ΡΡΠ»Π° Π΄Π»ΠΈΠ½ΠΎΠΉ 1710 ΡΠΌ., ΡΡΠ° Π΄Π»ΠΈΠ½Π° Π±ΡΠ΄Π΅Ρ Π½Π°ΠΈΠ±ΠΎΠ»Π΅Π΅ ΠΎΠΏΡΠΈΠΌΠ°Π»ΡΠ½Π°. ΠΠΎΠ΄ΠΊΠ° ΠΏΠΎΠ»ΡΡΠ°Π΅ΡΡΡ ΠΎΡΠ΅Π½Ρ ΡΡΡΠΎΠΉΡΠΈΠ²ΠΎΠΉ, Π΄Π°ΠΆΠ΅ Π±ΡΠ΄ΡΡΠΈ ΠΏΠΎΠ»Π½ΠΎΡΡΡΡ Π·Π°ΠΏΠΎΠ»Π½Π΅Π½Π½ΠΎΠΉ Π²ΠΎΠ΄ΠΎΠΉ, ΠΎΠ½Π° ΠΎΡΡΠ°Π½Π΅ΡΡΡ Π½Π° ΠΏΠ»Π°Π²Ρ. Π£Π΄Π°ΡΠ½ΠΎΠ³ΠΎ Π²Π°ΠΌ ΠΈΡΠΏΠΎΠ»ΡΠ·ΠΎΠ²Π°Π½ΠΈΡ!
ΠΠΈΠ΄Π΅ΠΎ ΠΏΠΎ ΡΠ΅ΠΌΠ΅
Π ΠΏΠΎΡ ΠΎΠ΄Π΅ ΠΏΠΎ Π²ΠΎΠ΄Π½ΡΠΌ ΠΏΡΠΎΡΡΠΎΡΠ°ΠΌ ΠΈΠ»ΠΈ ΠΏΡΠΈ ΠΏΡΠΎΠ³ΡΠ»ΠΊΠ΅ ΠΏΠΎ ΠΎΠ·Π΅ΡΡ Π²Π°ΠΌ Π½Π΅ ΠΎΠ±ΠΎΠΉΡΠΈΡΡ Π±Π΅Π· Π»ΠΎΠ΄ΠΊΠΈ. ΠΠ΅ ΠΌΠΎΠΆΠ½ΠΎ ΠΏΡΠΈΠΎΠ±ΡΠ΅ΡΡΠΈ Π² Π³ΠΎΡΠΎΠ²ΠΎΠΌ Π²ΠΈΠ΄Π΅, Π° ΠΌΠΎΠΆΠ½ΠΎ ΡΠΎΠΎΡΡΠ΄ΠΈΡΡ ΡΠ°ΠΌΠΎΡΡΠΎΡΡΠ΅Π»ΡΠ½ΠΎ ΠΈΠ· Π΄Π΅ΡΠ΅Π²ΡΡ ΠΌΠ°ΡΠ΅ΡΠΈΠ°Π»ΠΎΠ². ΠΡΠΈΠ½ΡΠ² ΡΠ΅ΡΠ΅Π½ΠΈΠ΅ ΠΎ ΠΏΠΎΡΡΡΠΎΠΉΠΊΠ΅ ΠΏΡΠΎΠ³ΡΠ»ΠΎΡΠ½ΠΎΠ³ΠΎ ΡΡΠ΄Π½Π° Π² Π΄ΠΎΠΌΠ°ΡΠ½Π΅ΠΉ ΠΌΠ°ΡΡΠ΅ΡΡΠΊΠΎΠΉ, Π²Ρ Π΄ΠΎΠ»ΠΆΠ½Ρ ΠΏΠΎΠΌΠ½ΠΈΡΡ ΠΎ ΡΠΎΠΌ, ΡΡΠΎ Π³Π»Π°Π²Π½ΡΠ΅ ΠΊΡΠΈΡΠ΅ΡΠΈΠΈ Π²ΡΠ±ΠΎΡΠ° ΠΊΠΎΠ½ΡΡΡΡΠΊΡΠΈΠΈ Π»ΠΎΠ΄ΠΊΠΈ β Π΅Π΅ ΠΏΡΠΎΡΡΠΎΡΠ° ΠΈ Π±Π΅Π·ΠΎΠΏΠ°ΡΠ½ΠΎΡΡΡ Π² ΡΠΊΡΠΏΠ»ΡΠ°ΡΠ°ΡΠΈΠΈ. ΠΠ°ΠΊ ΠΆΠ΅ ΡΡΡΠΎΠΈΡΡ Π»ΠΎΠ΄ΠΊΠΈ ΡΠ²ΠΎΠΈΠΌΠΈ ΡΡΠΊΠ°ΠΌΠΈ?

ΠΠ°ΠΌ ΠΏΠΎΠ½Π°Π΄ΠΎΠ±ΠΈΡΡΡ
- Π‘ΡΠ°ΡΡΠ΅ Π³Π°Π·Π΅ΡΡ Π² Π±ΠΎΠ»ΡΡΠΎΠΌ ΠΊΠΎΠ»ΠΈΡΠ΅ΡΡΠ²Π΅, Π²ΠΎΠ΄ΠΎΡΡΠΎΠΉΠΊΠΈΠΉ ΠΊΠ»Π΅ΠΉ, Π²ΠΎΠ΄ΠΎΡΠΏΠΎΡΠ½Π°Ρ ΠΊΡΠ°ΡΠΊΠ°, ΡΠ΅ΠΉΠΊΠΈ, ΠΊΠΈΡΡΠΈ, Π½ΠΎΠΆΠ½ΠΈΡΡ, Π½ΠΎΠΆ, ΡΡΠ°ΡΠ°Ρ Π±Π°ΠΉΠ΄Π°ΡΠΊΠ°
ΠΠ½ΡΡΡΡΠΊΡΠΈΡ
ΠΠ°ΠΊ ΠΈ Π² Π»ΡΠ±ΠΎΠΌ Π΄Π΅Π»Π΅, Π³Π»Π°Π²Π½ΠΎΠ΅ β Π½Π°ΡΠ°ΡΡ. ΠΡΡΡΡΡΡΠ²ΠΈΠ΅ ΠΎΠΏΡΡΠ° Π½Π΅ ΠΌΠΎΠΆΠ΅Ρ ΡΡΠ°ΡΡ ΠΏΠΎΠΌΠ΅Ρ ΠΎΠΉ ΠΏΡΠΈ ΡΡΡΠΎΠΈΡΠ΅Π»ΡΡΡΠ²Π΅ Π½Π΅Π±ΠΎΠ»ΡΡΠΎΠΉ Π»ΠΎΠ΄ΠΊΠΈ. ΠΠΌΠ΅Π½Π½ΠΎ ΡΠ°ΠΊ β Π½Π°ΡΠΈΠ½Π°ΠΉΡΠ΅ Ρ ΡΠΎΠ·Π΄Π°Π½ΠΈΡ ΠΌΠ°Π»ΠΎΠΌΠ΅ΡΠ½ΠΎΠ³ΠΎ ΡΡΠ΄Π½Π°, Π±ΡΠ°ΡΡΡΡ Π·Π° ΠΌΠ°ΡΡΡΠ°Π±Π½ΡΠ΅ ΠΏΡΠΎΠ΅ΠΊΡΡ Π²Ρ Π±ΡΠ΄Π΅ΡΠ΅ ΠΏΠΎΡΠΎΠΌ, ΠΏΠΎΡΠ»Π΅ Π½Π°ΠΊΠΎΠΏΠ»Π΅Π½ΠΈΡ Π·Π½Π°Π½ΠΈΠΉ ΠΈ ΡΠΌΠ΅Π½ΠΈΠΉ.
ΠΡΠ»ΠΈ Π²Ρ ΡΠ΅ΡΠΈΠ»ΠΈ ΠΎΠ±Π·Π°Π²Π΅ΡΡΠΈΡΡ Π»Π΅Π³ΠΊΠΈΠΌ ΡΡΠ΄Π΅Π½ΡΡΠΊΠΎΠΌ Π΄Π»Ρ ΠΏΡΠΎΠ³ΡΠ»ΠΎΡΠ½ΡΡ ΠΈΠ»ΠΈ ΡΡΡΠΈΡΡΠΈΡΠ΅ΡΠΊΠΈΡ ΡΠ΅Π»Π΅ΠΉ, Π²Π°ΠΌ Π½Π΅ ΠΎΠ±ΠΎΠΉΡΠΈΡΡ Π±Π΅Π· ΠΌΠ°Π»Π΅Π½ΡΠΊΠΎΠΉ ΡΠΊΠ»Π°Π΄Π½ΠΎΠΉ Π±Π°ΠΉΠ΄Π°ΡΠΊΠΈ ΠΏΡΠΎΠΌΡΡΠ»Π΅Π½Π½ΠΎΠ³ΠΎ ΠΏΡΠΎΠΈΠ·Π²ΠΎΠ΄ΡΡΠ²Π°. ΠΠ°, Π²Ρ Π½Π΅ ΠΎΡΠ»ΡΡΠ°Π»ΠΈΡΡ, ΡΠ΅ΡΡ ΠΈΠ΄Π΅Ρ ΠΎ Π±Π°ΠΉΠ΄Π°ΡΠΊΠ΅ ΡΠ°Π±ΡΠΈΡΠ½ΠΎΠ³ΠΎ ΠΈΠ·Π³ΠΎΡΠΎΠ²Π»Π΅Π½ΠΈΡ. ΠΠΎ ΠΏΠ»Π°Π²Π°ΡΡ Π½Π° Π½Π΅ΠΉ ΠΌΡ Π½Π΅ Π±ΡΠ΄Π΅ΠΌ, ΠΎΠ½Π° ΠΏΡΠΈΠ³ΠΎΠ΄ΠΈΡΡΡ Π»ΠΈΡΡ ΠΊΠ°ΠΊ ΡΠ°Π±Π»ΠΎΠ½ Π΄Π»Ρ ΡΠΎΠ·Π΄Π°Π½ΠΈΡ Π»ΠΎΠ΄ΠΊΠΈ ΡΠ²ΠΎΠΈΠΌΠΈ ΡΡΠΊΠ°ΠΌΠΈ. ΠΠΎΠΊΡΠΏΠ°ΡΡ ΡΠ°ΠΊΡΡ Π±Π°ΠΉΠ΄Π°ΡΠΊΡ Π²ΠΎΠ²ΡΠ΅ Π½Π΅ΠΎΠ±ΡΠ·Π°ΡΠ΅Π»ΡΠ½ΠΎ, Π΅Π΅ ΠΌΠΎΠΆΠ½ΠΎ ΠΏΠΎΠΏΡΠΎΡΠΈΡΡ Ρ Π΄ΡΡΠ·Π΅ΠΉ ΠΈΠ»ΠΈ Π·Π½Π°ΠΊΠΎΠΌΡΡ Π²ΡΠ΅Π³ΠΎ Π½Π° Π½Π΅Π΄Π΅Π»Ρ. ΠΡΠΎΠ³ΠΎ ΡΡΠΎΠΊΠ° Π²ΠΏΠΎΠ»Π½Π΅ Π΄ΠΎΡΡΠ°ΡΠΎΡΠ½ΠΎ, ΡΡΠΎΠ±Ρ ΡΠΌΠ°ΡΡΠ΅ΡΠΈΡΡ ΡΠ²ΠΎΠ΅ ΡΠΎΠ±ΡΡΠ²Π΅Π½Π½ΠΎΠ΅ ΠΏΠ»Π°Π²ΡΡΠ΅Π΄ΡΡΠ²ΠΎ. Π Π°Π·ΡΠΌΠ΅Π΅ΡΡΡ, Π½Π΅Ρ ΡΠΌΡΡΠ»Π° ΠΏΠΎΠ»Π½ΠΎΡΡΡΡ ΠΊΠΎΠΏΠΈΡΠΎΠ²Π°ΡΡ Π±Π°ΠΉΠ΄Π°ΡΠΊΡ, ΠΏΡΠΎΠΈΠ·Π²Π΅Π΄Π΅Π½Π½ΡΡ Π½Π° ΠΏΡΠΎΠΌΡΡΠ»Π΅Π½Π½ΠΎΠΌ ΠΏΡΠ΅Π΄ΠΏΡΠΈΡΡΠΈΠΈ. ΠΠ»Ρ ΡΡΠΎΠ³ΠΎ Ρ Π²Π°Ρ Π½Π΅Ρ Π½ΠΈ Π½ΡΠΆΠ½ΡΡ ΠΌΠ°ΡΠ΅ΡΠΈΠ°Π»ΠΎΠ², Π½ΠΈ ΠΎΠ±ΠΎΡΡΠ΄ΠΎΠ²Π°Π½ΠΈΡ, Π½ΠΈ Π΄Π΅ΡΠ°Π»Π΅ΠΉ ΠΈ ΠΈΠ½ΡΡΡΡΠΌΠ΅Π½ΡΠΎΠ². ΠΠ½ΡΠΌΠΈ ΡΠ»ΠΎΠ²Π°ΠΌΠΈ, ΠΎΡΡΡΡΡΡΠ²ΡΡΡ ΡΠ΅Ρ Π½ΠΎΠ»ΠΎΠ³ΠΈΡΠ΅ΡΠΊΠΈΠ΅ Π²ΠΎΠ·ΠΌΠΎΠΆΠ½ΠΎΡΡΠΈ. ΠΠΎΡΡΠΎΠΌΡ ΡΠ»Π΅Π΄ΡΠ΅Ρ Π²ΡΠ±ΡΠ°ΡΡ Π΄ΡΡΠ³ΠΎΠΉ ΠΏΡΡΡ. ΠΠ°ΠΉΠ΄ΠΈΡΠ΅ ΠΏΠΎΠ΄Ρ ΠΎΠ΄ΡΡΠ΅Π΅ ΠΌΠ΅ΡΡΠΎ Π΄Π»Ρ ΡΠ°Π·ΠΌΠ΅ΡΠ΅Π½ΠΈΡ Π²Π·ΡΡΠΎΠΉ Π²Π°ΠΌΠΈ Π½Π°ΠΏΡΠΎΠΊΠ°Ρ Π±Π°ΠΉΠ΄Π°ΡΠΊΠΈ. ΠΡΠΎ ΠΌΠΎΠΆΠ΅Ρ Π±ΡΡΡ ΡΠ°ΡΠ°ΠΉ, Π²Π΅ΡΠ°Π½Π΄Π° Π½Π° Π΄Π°ΡΠ΅ ΠΈΠ»ΠΈ Π΄ΠΎΠΌΠ°ΡΠ½ΡΡ ΠΌΠ°ΡΡΠ΅ΡΡΠΊΠ°Ρ. Π ΡΡΠΎΠΌ ΠΏΠΎΠΌΠ΅ΡΠ΅Π½ΠΈΠΈ Π²Π°ΠΌ ΠΏΡΠ΅Π΄ΡΡΠΎΠΈΡ ΡΡΡΡΠΎΠΈΡΡ ΡΡΠ΄ΠΎΠ²Π΅ΡΡΡ.ΠΠΎΡΡΠ°Π²ΡΡΠ΅ Π±Π°ΠΉΠ΄Π°ΡΠΊΡ Π½Π° ΡΠΎΠ²Π½ΡΡ ΠΏΠΎΠ²Π΅ΡΡ Π½ΠΎΡΡΡ Π΄Π½ΠΎΠΌ Π²Π²Π΅ΡΡ ΠΈ Ρ ΠΎΡΠΎΡΠΎ ΡΠΊΡΠ΅ΠΏΠΈΡΠ΅. Π‘ΡΠ΄Π΅Π½ΡΡΠΊΠΎ Π΄ΠΎΠ»ΠΆΠ½ΠΎ ΡΡΠΎΡΡΡ ΡΡΡΠΎΠΉΡΠΈΠ²ΠΎ, Π½Π΅ ΡΠΈΡΠΊΡΡ ΠΏΠ΅ΡΠ΅Π²Π΅ΡΠ½ΡΡΡΡΡ.
ΠΠ°ΡΠ°Π½Π΅Π΅ ΠΏΡΠΈΠΏΠ°ΡΠ΅Π½Π½ΡΠΌΠΈ Π³Π°Π·Π΅ΡΠ½ΡΠΌΠΈ Π»ΠΈΡΡΠ°ΠΌΠΈ Π½Π°ΡΠ½ΠΈΡΠ΅ Π°ΠΊΠΊΡΡΠ°ΡΠ½ΠΎ ΠΎΠΊΠ»Π΅ΠΈΠ²Π°ΡΡ Π²Π½Π΅ΡΠ½ΡΡ ΠΏΠΎΠ²Π΅ΡΡ Π½ΠΎΡΡΡ Π±Π°ΠΉΠ΄Π°ΡΠΊΠΈ, Π° ΠΈΠΌΠ΅Π½Π½ΠΎ Π΄Π½ΠΈΡΠ΅ ΠΈ Π±ΠΎΡΡΠ°. ΠΠ΅ΡΡ Π½ΡΡ ΡΠ°ΡΡΡ ΡΡΠ΄Π½Π° ΠΎΠΊΠ»Π΅ΠΈΠ²Π°ΡΡ Π½Π΅ Π½ΡΠΆΠ½ΠΎ, ΠΈΠ½Π°ΡΠ΅ ΠΊΠΎΠ½ΡΡΡΡΠΊΡΠΈΡ Π±ΡΠ΄Π΅Ρ Π·Π°ΡΠ΅ΠΌ Π½Π΅Π²ΠΎΠ·ΠΌΠΎΠΆΠ½ΠΎ ΡΠ½ΡΡΡ Ρ ΡΠ°Π±Π»ΠΎΠ½Π°. ΠΠΊΠ»Π΅ΠΉΠΊΡ Π²Π΅ΡΡ Π½Π΅ΠΉ ΡΠ°ΡΡΠΈ ΠΎΡΡΠ°Π²ΡΡΠ΅ Π½Π°ΠΏΠΎΡΠ»Π΅Π΄ΠΎΠΊ, ΠΊΠΎΠ³Π΄Π° Π²Π°ΡΠ° Π»ΠΎΠ΄ΠΊΠ° Π±ΡΠ΄Π΅Ρ Π³ΠΎΡΠΎΠ²Π° Π² ΠΎΡΠ½ΠΎΠ²Π½ΠΎΠΌ. ΠΡΠΏΠΎΠ»ΡΠ·ΡΠΉΡΠ΅ Π²ΠΎΠ΄ΠΎΡΡΠΎΠΉΠΊΠΈΠΉ ΠΊΠ»Π΅ΠΉ, ΠΊΠΎΡΠΎΡΡΠΉ ΠΎΠ±ΡΡΠ½ΠΎ ΠΏΡΠΈΠΌΠ΅Π½ΡΡΡ Π² ΡΡΠ΄ΠΎΡΡΡΠΎΠΈΡΠ΅Π»ΡΠ½ΡΡ ΡΠ°Π±ΠΎΡΠ°Ρ .ΠΠ»Ρ ΠΏΡΠΎΡΠ½ΠΎΡΡΠΈ ΠΊΠΎΠ½ΡΡΡΡΠΊΡΠΈΠΈ Π»ΠΎΠ΄ΠΊΠΈ Π²Π°ΠΌ ΠΏΡΠΈΠ΄Π΅ΡΡΡ ΡΠ»ΠΎΠΆΠΈΡΡ Π½Π΅ ΠΌΠ΅Π½Π΅Π΅ ΡΡΠΈΠ΄ΡΠ°ΡΠΈ ΡΠ»ΠΎΠ΅Π² Π³Π°Π·Π΅ΡΠ½ΠΎΠΉ Π±ΡΠΌΠ°Π³ΠΈ. ΠΠΎΡΠ»Π΅ Π½Π°ΠΊΠ»Π΅ΠΉΠΊΠΈ ΠΎΡΠ΅ΡΠ΅Π΄Π½ΠΎΠ³ΠΎ ΡΠ»ΠΎΡ Π΄Π°ΠΉΡΠ΅ Π±ΡΠΌΠ°ΠΆΠ½ΠΎΠΌΡ ΡΠ»ΠΎΡ Π²ΡΡΠΎΡ Π½ΡΡΡ. Π‘ΠΏΠ΅ΡΠΊΠ° Π·Π΄Π΅ΡΡ Π½Π΅ Π½ΡΠΆΠ½Π°, Π³Π»Π°Π²Π½ΠΎΠ΅ β ΠΎΠ±Π΅ΡΠΏΠ΅ΡΠΈΡΡ Ρ ΠΎΡΠΎΡΠ΅Π΅ ΠΊΠ°ΡΠ΅ΡΡΠ²ΠΎ ΠΏΡΠΎΠΊΠ»Π΅ΠΉΠΊΠΈ.
ΠΡΠ°ΠΊ, Π½Π΅ΠΎΠ±Ρ ΠΎΠ΄ΠΈΠΌΠΎΠ΅ ΠΊΠΎΠ»ΠΈΡΠ΅ΡΡΠ²ΠΎ ΡΠ»ΠΎΠ΅Π² ΠΎΠ±ΡΠΈΠ²ΠΊΠΈ Π½Π°ΠΊΠ»Π΅Π΅Π½ΠΎ, Π³Π°Π·Π΅ΡΠ½Π°Ρ Π±ΡΠΌΠ°Π³Π° ΠΏΡΠΎΡΠΎΡ Π»Π°. ΠΡΠ΄Π΅Π»ΠΈΡΠ΅ ΠΏΠΎΠ»ΡΡΠΈΠ²ΡΠΈΠΉΡΡ ΠΊΠΎΡΠΏΡΡ ΠΎΡ Π±Π°ΠΉΠ΄Π°ΡΠΊΠΈ-ΡΠ°Π±Π»ΠΎΠ½Π°. Π’Π΅ΠΏΠ΅ΡΡ ΠΎΡΡΡΡΠΌ Π½ΠΎΠΆΠΎΠΌ Π°ΠΊΠΊΡΡΠ°ΡΠ½ΠΎ ΡΡΠ΅ΠΆΡΡΠ΅ Π²ΡΡΡΡΠΏΠ°ΡΡΠΈΠ΅ ΠΊΡΠΎΠΌΠΊΠΈ, ΡΡΠΎΠ±Ρ ΡΠ΄Π΅Π»Π°ΡΡ Π±ΠΎΡΡΠ° Π²Π°ΡΠ΅ΠΉ Π±ΡΠΌΠ°ΠΆΠ½ΠΎΠΉ Π±Π°ΠΉΠ΄Π°ΡΠΊΠΈ ΡΠΎΠ²Π½ΡΠΌΠΈ.
Π’Π΅ΠΏΠ΅ΡΡ Π²Ρ ΠΏΠΎ ΠΆΠ΅Π»Π°Π½ΠΈΡ ΠΌΠΎΠΆΠ΅ΡΠ΅ ΡΠ°ΠΊΠΈΠΌ ΠΆΠ΅ ΠΎΠ±ΡΠ°Π·ΠΎΠΌ ΠΎΠΊΠ»Π΅ΠΈΡΡ Π³Π°Π·Π΅ΡΠ°ΠΌΠΈ Π²Π΅ΡΡ Π½ΡΡ ΡΠ°ΡΡΡ Π²Π°ΡΠ΅Π³ΠΎ ΡΡΠ΄Π½Π°, ΠΎΡΡΠ°Π²ΠΈΠ² ΠΎΡΠΊΡΡΡΡΠΌ ΠΏΡΠΎΡΡΡΠ°Π½ΡΡΠ²ΠΎ Π΄Π»Ρ ΡΠ°Π·ΠΌΠ΅ΡΠ΅Π½ΠΈΡ Π³ΡΠ΅Π±ΡΠ° ΠΈ ΠΎΡΡΠ΅ΠΊ Π΄Π»Ρ ΡΠΊΠ»Π°Π΄ΠΊΠΈ Π²Π΅ΡΠ΅ΠΉ. ΠΠΎΠ»ΡΡΠΈΠ²ΡΡΡΡΡ ΠΊΠΎΠ½ΡΡΡΡΠΊΡΠΈΡ Π½Π΅ΠΎΠ±Ρ ΠΎΠ΄ΠΈΠΌΠΎ Π²ΡΠΊΡΠ°ΡΠΈΡΡ ΡΠ½Π°ΡΡΠΆΠΈ ΠΈ ΠΈΠ·Π½ΡΡΡΠΈ Π²ΠΎΠ΄ΠΎΡΡΠΎΠΉΠΊΠΎΠΉ ΠΊΡΠ°ΡΠΊΠΎΠΉ. ΠΡΠΏΠΎΠ»ΡΠ·ΡΠΉΡΠ΅ Π½Π΅ΡΠΊΠΎΠ»ΡΠΊΠΎ ΡΠ»ΠΎΠ΅Π² ΠΊΡΠ°ΡΠΊΠΈ, Π΄Π°Π²Π°Ρ ΠΊΠ°ΠΆΠ΄ΠΎΠΌΡ Ρ ΠΎΡΠΎΡΠ΅Π½ΡΠΊΠΎ ΠΏΠΎΠ΄ΡΠΎΡ Π½ΡΡΡ.
ΠΡΠ΅ΡΠ΅Π΄Π½Π°Ρ Ρ ΠΈΡΡΠΎΡΡΡ Π·Π°ΠΊΠ»ΡΡΠ°Π΅ΡΡΡ Π² ΡΠΎΠΌ, ΡΡΠΎΠ±Ρ ΠΏΡΠΈΠ΄Π°ΡΡ Π²Π°ΡΠ΅ΠΌΡ ΡΡΠ΄Π½Ρ Π΄ΠΎΠΏΠΎΠ»Π½ΠΈΡΠ΅Π»ΡΠ½ΡΡ ΡΡΡΠΎΠΉΡΠΈΠ²ΠΎΡΡΡ ΠΏΡΠΈ Π»ΡΠ±ΡΡ ΡΡΠ»ΠΎΠ²ΠΈΡΡ ΡΠΊΡΠΏΠ»ΡΠ°ΡΠ°ΡΠΈΠΈ. ΠΠ΅ΡΠ½ΠΎΠ΅ ΡΠ΅ΡΠ΅Π½ΠΈΠ΅ β ΡΠΎΠΎΡΡΠ΄ΠΈΡΡ ΠΈΠ· Π΄Π²ΡΡ ΠΎΠ΄ΠΈΠ½Π°ΠΊΠΎΠ²ΡΡ Π±ΡΠΌΠ°ΠΆΠ½ΡΡ Π»ΠΎΠ΄ΠΎΠΊ ΠΊΠ°ΡΠ°ΠΌΠ°ΡΠ°Π½. ΠΠ»Ρ ΡΡΠΎΠ³ΠΎ Π΄Π²Π° ΡΡΠ΄Π½Π° Π½Π΅ΠΎΠ±Ρ ΠΎΠ΄ΠΈΠΌΠΎ Π² Π½ΠΎΡΠΎΠ²ΠΎΠΉ ΠΈ ΠΊΠΎΡΠΌΠΎΠ²ΠΎΠΉ ΡΠ°ΡΡΠΈ ΡΠΎΠ΅Π΄ΠΈΠ½ΠΈΡΡ ΡΠΏΠ΅ΡΠΈΠ°Π»ΡΠ½ΡΠΌΠΈ ΡΠ΅ΠΉΠΊΠ°ΠΌΠΈ. ΠΠΎΠ½ΡΡΡΡΠΊΡΠΈΡ ΠΌΠΎΠΆΠ½ΠΎ ΡΠ΄Π΅Π»Π°ΡΡ ΡΠ°Π·Π±ΠΎΡΠ½ΠΎΠΉ, Π΄Π»Ρ ΡΡΠΎΠ³ΠΎ ΡΠ΅ΠΉΠΊΠΈ Π΄ΠΎΠ»ΠΆΠ½Ρ ΠΏΡΠΎΠ΄Π΅Π²Π°ΡΡΡΡ Π² Β«ΡΡΠΊΠΈΒ», ΠΈΠ·Π³ΠΎΡΠΎΠ²Π»Π΅Π½Π½ΡΠ΅ ΠΈΠ· ΠΏΠ»ΠΎΡΠ½ΠΎΠΉ ΡΠ΅Π·ΠΈΠ½Ρ ΠΈ ΠΏΡΠΈΠ΄Π΅Π»Π°Π½Π½ΡΠ΅ ΠΊ Π±ΠΎΡΡΠ°ΠΌ ΠΎΠ±Π΅ΠΈΡ Π»ΠΎΠ΄ΠΎΠΊ. Π’Π°ΠΊΠΎΠΌΡ ΠΊΠ°ΡΠ°ΠΌΠ°ΡΠ°Π½Ρ Π±ΡΠ΄ΡΡ Π½ΠΈΠΏΠΎΡΠ΅ΠΌ Π»ΡΠ±ΡΠ΅ Π²ΠΎΠ»Π½Ρ.
ΠΠΎΠ»Π΅Π·Π½ΡΠΉ ΡΠΎΠ²Π΅Ρ
ΠΡΡΠΎΡΠ½ΠΈΠΊ:
Β«Π‘ΡΠΎ Π·Π°ΡΠ΅ΠΉ Π΄Π²ΡΡ
Π΄ΡΡΠ·Π΅ΠΉ. ΠΡΠΈΡΡΠ΅Π»ΠΈ-ΠΈΠ·ΠΎΠ±ΡΠ΅ΡΠ°ΡΠ΅Π»ΠΈΒ», Π.Π. ΠΠΎΠ»ΠΎΠ²ΠΈΠ½, 1966.
ΠΡΡΠΎΡΠ½ΠΈΠΊΠΈ:
- ΠΠ°ΡΠΈΠ½Π°ΡΡΠΈΠΌ ΡΡΠ΄ΠΎΡΡΡΠΎΠΈΡΠ΅Π»ΡΠΌ Π² 2018
Π Π°Π±ΠΎΡΠ° Π½Π°Π΄ ΠΈΠ·Π³ΠΎΡΠΎΠ²Π»Π΅Π½ΠΈΠ΅ΠΌ ΠΌΠΎΠ΄Π΅Π»ΠΈ ΠΊΠ°ΡΠ΅ΡΠ° β ΡΡΠΎ ΡΠ΄ΠΎΠ²ΠΎΠ»ΡΡΡΠ²ΠΈΠ΅ ΠΈ ΡΠ°ΡΡΠ»Π°Π±Π»Π΅Π½ΠΈΠ΅ ΠΏΠΎΡΠ»Π΅ Π³ΠΎΡΠΎΠ΄ΡΠΊΠΎΠΉ ΡΡΠ΅ΡΡ. ΠΡ ΡΠΌΠΎΠΆΠ΅ΡΠ΅ ΠΏΠΎΠ»ΡΡΠΈΡΡ ΡΠ΄ΠΎΠ²Π»Π΅ΡΠ²ΠΎΡΠ΅Π½ΠΈΠ΅ ΠΎΡ ΠΏΡΠΈΠΎΠ±ΡΠ΅ΡΠ΅Π½ΠΈΡ Π½ΠΎΠ²ΡΡ Π½Π°Π²ΡΠΊΠΎΠ² ΠΈ Π³ΠΎΡΠ΄ΠΎΡΡΡ ΠΎΡ ΠΊΠΎΠ½Π΅ΡΠ½ΠΎΠ³ΠΎ ΡΠ΅Π·ΡΠ»ΡΡΠ°ΡΠ°.

ΠΠ½ΡΡΡΡΠΊΡΠΈΡ
ΠΡΠ°ΠΊ, ΠΏΡΠΎΡΠ΅ΡΡ ΠΈΠ·Π³ΠΎΡΠΎΠ²Π»Π΅Π½ΠΈΡ ΠΌΠΎΠ΄Π΅Π»ΠΈ ΠΊΠ°ΡΠ΅ΡΠ° Π½Π°ΡΠΈΠ½Π°Π΅ΡΡΡ Ρ ΡΠ΅ΡΡΠ΅ΠΆΠ°, ΠΊΠΎΡΠΎΡΡΠΉ ΠΌΠΎΠΆΠ½ΠΎ ΠΏΡΠΈΠΎΠ±ΡΠ΅ΡΡΠΈ ΡΠΆΠ΅ Π³ΠΎΡΠΎΠ²ΡΠΌ, Π° ΠΌΠΎΠΆΠ½ΠΎ ΡΠ΄Π΅Π»Π°ΡΡ ΡΠ°ΠΌΠΎΠΌΡ. Π£ΠΆΠ΅ ΠΎΡΡΠ°Π»ΠΊΠΈΠ²Π°ΡΡΡ ΠΎΡ Π½Π΅Π³ΠΎ, ΠΏΡΠΈΡΡΡΠΏΠ°ΠΉΡΠ΅ Π½Π΅ΠΏΠΎΡΡΠ΅Π΄ΡΡΠ²Π΅Π½Π½ΠΎ ΠΊ ΠΈΠ·Π³ΠΎΡΠΎΠ²Π»Π΅Π½ΠΈΡ ΠΌΠΎΠ΄Π΅Π»ΠΈ.ΠΡΡΠ΅ΠΆΡΡΠ΅ ΠΊΠΎΡΠΏΡΡ ΠΊΠ°ΡΠ΅ΡΠ° ΠΈΠ· Π΄Π΅ΡΠ΅Π²ΡΠ½Π½ΠΎΠΉ Π·Π°Π³ΠΎΡΠΎΠ²ΠΊΠΈ. ΠΠ»ΠΈΠ½Π° Π΅Π³ΠΎ ΠΏΡΠΈΠ±Π»ΠΈΠ·ΠΈΡΠ΅Π»ΡΠ½ΠΎ 240 ΠΌΠΌ, ΡΠΈΡΠΈΠ½Π° 70 ΠΌΠΌ, Π° ΡΠΎΠ»ΡΠΈΠ½Π° β 40 ΠΌΠΌ.
ΠΡΠ΄ΠΎΠ»Π±ΠΈΡΠ΅ ΡΡΠ°ΠΌΠ΅ΡΠΊΠΎΠΉ ΠΈΠ»ΠΈ Π΄ΠΎΠ»ΠΎΡΠΎΠΌ Π²Π½ΡΡΡΠ΅Π½Π½ΡΡ ΡΠ°ΡΡΡ ΠΊΠΎΡΠΏΡΡΠ°. ΠΠ΅ΠΊΠΎΡΠΎΡΡΠ΅ ΡΡΠ°ΡΡΠΊΠΈ Π²ΡΡΠ΅ΠΆΡΡΠ΅ ΠΏΡΠΈ ΠΏΠΎΠΌΠΎΡΠΈ ΠΏΠ΅ΡΠΎΡΠΈΠ½Π½ΠΎΠ³ΠΎ Π½ΠΎΠΆΠ°. ΠΠ±ΡΠ·Π°ΡΠ΅Π»ΡΠ½ΠΎΠ΅ ΡΡΠ»ΠΎΠ²ΠΈΠ΅: ΠΏΠ»ΠΎΡΠ°Π΄ΠΊΡ, ΡΠ°ΡΠΏΠΎΠ»ΠΎΠΆΠ΅Π½Π½ΡΡ Π²Π½ΡΡΡΠΈ ΠΊΠΎΡΠΏΡΡΠ°, Π½Π° ΠΊΠΎΡΠΎΡΠΎΠΉ Π²ΠΏΠΎΡΠ»Π΅Π΄ΡΡΠ²ΠΈΠΈ ΠΊΡΠ΅ΠΏΠΈΡΡΡ Π·Π°Π²ΠΎΠ΄Π½ΠΎΠΉ ΠΌΠ΅Ρ Π°Π½ΠΈΠ·ΠΌ Π΄Π²ΠΈΠ³Π°ΡΠ΅Π»Ρ, Π½Π΅ΠΎΠ±Ρ ΠΎΠ΄ΠΈΠΌΠΎ ΡΠ΄Π΅Π»Π°ΡΡ Π½Π°ΠΊΠ»ΠΎΠ½Π½ΠΎΠΉ. ΠΡΠΎ Π½ΡΠΆΠ½ΠΎ Π΄Π»Ρ ΡΠΎΠ³ΠΎ, ΡΡΠΎΠ±Ρ ΠΈΠ·Π±Π΅ΠΆΠ°ΡΡ ΠΏΠΎΠΏΠ°Π΄Π°Π½ΠΈΡ Π²ΠΎΠ΄Ρ Π² ΠΎΡΠ²Π΅ΡΡΡΠΈΡ Π΄Π»Ρ Π·Π°Π²ΠΎΠ΄Π½ΠΎΠΉ ΡΡΡΠΊΠΈ.ΠΠ½ΡΡΡΠΈ ΠΊΠΎΡΠΏΡΡΠ° Π±Π»ΠΈΠΆΠ΅ ΠΊ ΠΊΠΎΡΠΌΠ΅ ΡΠ΄Π΅Π»Π°ΠΉΡΠ΅ Π΅ΡΠ΅ ΠΎΠ΄Π½Ρ ΠΏΠ»ΠΎΡΠ°Π΄ΠΊΡ ΡΠ°ΠΊΠΈΠΌ ΠΎΠ±ΡΠ°Π·ΠΎΠΌ, ΡΡΠΎΠ±Ρ ΠΎΠ½Π° Π²ΠΎΠ·Π²ΡΡΠ°Π»Π°ΡΡ Π½Π° 10-12 ΠΌΠΌ Π½Π°Π΄ Π»ΠΈΠ½ΠΈΠ΅ΠΉ ΠΏΠΎΠ³ΡΡΠΆΠ΅Π½ΠΈΡ ΠΌΠΎΠ΄Π΅Π»ΠΈ. ΠΡΠΎΠ΄Π΅Π»Π°ΠΉΡΠ΅ Π² Π½Π΅ΠΉ ΠΎΡΠ²Π΅ΡΡΡΠΈΠ΅ Π΄Π»Ρ ΡΡΡΠ°Π³Π° ΠΏΠ»Π°Π²Π½ΠΈΠΊΠ°.
ΠΠΎΡΠ΅ΡΠ΅Π΄ΠΈΠ½Π΅ ΠΊΠΎΡΠΌΡ ΠΏΡΠΎΡΠ²Π΅ΡΠ»ΠΈΡΠ΅ ΡΠΊΠ²ΠΎΠ·Π½ΠΎΠ΅ ΠΎΡΠ²Π΅ΡΡΡΠΈΠ΅ ΠΈ Π²ΡΡΠ°Π²ΡΡΠ΅ Π² Π½Π΅Π³ΠΎ ΠΊΡΡΠΎΠΊ ΡΠ΅Π·ΠΈΠ½ΠΎΠ²ΠΎΠΉ ΡΡΡΠ±ΠΊΠΈ, ΡΠ΅ΡΠ΅Π· ΠΊΠΎΡΠΎΡΡΡ ΠΏΡΠΎΠΏΡΡΡΠΈΡΠ΅ ΠΌΠ΅ΡΠ°Π»Π»ΠΈΡΠ΅ΡΠΊΠΈΠΉ ΡΡΠ΅ΡΠΆΠ΅Π½Ρ β ΠΎΡΡ ΡΡΠ»Ρ ΠΏΠΎΠ²ΠΎΡΠΎΡΠ°. Π ΡΡΠΊΡ Π½Π° ΠΎΡΡ Π½Π°Π΄Π΅Π½ΡΡΠ΅ ΡΡΡΡ ΠΏΠΎΠ·ΠΆΠ΅, ΠΏΠΎΡΠ»Π΅ ΡΠΎΠ³ΠΎ ΠΊΠ°ΠΊ Π·Π°ΠΊΡΠ΅ΠΏΠΈΡΠ΅ Π΄Π΅ΡΠ°Π»ΠΈ Π½Π°Π΄ΡΡΡΠΎΠΉΠΊΠΈ ΠΊΠ°ΡΠ΅ΡΠ°.Π£ΡΡΠ°Π½ΠΎΠ²ΠΈΡΠ΅ Π²Π½ΡΡΡΠΈ ΠΊΠΎΡΠΏΡΡΠ° ΠΌΠΎΠ΄Π΅Π»ΠΈ Π»ΡΠ±ΠΎΠΉ Π·Π°Π²ΠΎΠ΄Π½ΠΎΠΉ ΠΌΠ΅Ρ Π°Π½ΠΈΠ·ΠΌ ΠΎΡ Π΄Π΅ΡΡΠΊΠΎΠΉ ΠΈΠ³ΡΡΡΠΊΠΈ. ΠΠΎΡΠ°Π΄ΠΈΡΠ΅ Π½Π° Π²ΡΡ ΠΎΠ΄Π½ΡΡ ΠΎΡΡ ΠΌΠ΅ΡΠ°Π»Π»ΠΈΡΠ΅ΡΠΊΠΈΠΉ Π΄ΠΈΡΠΊ, ΠΏΡΠ΅Π΄Π²Π°ΡΠΈΡΠ΅Π»ΡΠ½ΠΎ ΠΏΡΠΎΡΠ²Π΅ΡΠ»ΠΈΡΠ΅ Π² Π½Π΅ΠΌ ΠΎΡΠ²Π΅ΡΡΡΠΈΡ Π΄Π»Ρ ΡΡΠ³ΠΈ.
ΠΠ°Π»Π΅Π΅ ΠΏΡΠΈΡΡΡΠΏΠ°ΠΉΡΠ΅ ΠΊ ΠΈΠ·Π³ΠΎΡΠΎΠ²Π»Π΅Π½ΠΈΡ ΠΏΠΎΠ΄Π²ΠΎΠ΄Π½ΠΎΠΉ ΡΠ°ΡΡΠΈ Π΄Π²ΠΈΠ³Π°ΡΠ΅Π»Ρ. Π‘ΠΎΠ³Π½ΠΈΡΠ΅ ΠΏΠ»Π°Π²Π½ΠΈΠΊ ΠΈΠ· ΠΌΠ΅Π΄Π½ΠΎΠΉ ΠΈΠ»ΠΈ ΡΡΠ°Π»ΡΠ½ΠΎΠΉ ΠΏΡΠΎΠ²ΠΎΠ»ΠΎΠΊΠΈ Π΄ΠΈΠ°ΠΌΠ΅ΡΡΠΎΠΌ 2 ΠΌΠΌ. ΠΠΎΡΠ»Π΅ ΡΡΠΎΠ³ΠΎ ΠΏΡΠΈ ΠΏΠΎΠΌΠΎΡΠΈ ΠΏΠ°ΡΠ»ΡΠ½ΠΈΠΊΠ° ΡΠΎΠ΅Π΄ΠΈΠ½ΠΈΡΠ΅ Π΅Π³ΠΎ Ρ ΠΏΠΎΠ»ΠΎΡΠΊΠΎΠΉ ΠΎΡΠΈ, ΠΊ ΠΊΠΎΡΠΎΡΠΎΠΉ ΡΠ²Π΅ΡΡ Ρ ΠΏΡΠΈΡΠΎΠ΅Π΄ΠΈΠ½ΠΈΡΠ΅ ΠΏΠΎΡΡΠ΅Π΄ΡΡΠ²ΠΎΠΌ ΡΠΎΠ³ΠΎ ΠΆΠ΅ ΠΏΠ°ΡΠ»ΡΠ½ΠΈΠΊΠ° ΡΡΠ³Ρ. ΠΠ°ΠΊΡΠ΅ΠΏΠΈΡΠ΅ ΠΎΡΡ ΠΏΠ»Π°Π²Π½ΠΈΠΊΠ° Π² ΠΊΡΠΎΠ½ΡΡΠ΅ΠΉΠ½Π΅, ΠΊΠΎΡΠΎΡΡΠΉ ΠΏΡΠΈΠΊΡΠ΅ΠΏΠΈΡΠ΅ ΠΊ Π΄Π½ΠΈΡΡ ΠΊΠ°ΡΠ΅ΡΠ°.
Π£ΡΡΠ°Π½ΠΎΠ²ΠΈΡΠ΅ ΡΠΊΠΈΠ² Π·Π°Π²ΠΎΠ΄Π½ΠΎΠ³ΠΎ ΠΌΠ΅Ρ Π°Π½ΠΈΠ·ΠΌΠ° ΡΠ°ΠΊΠΈΠΌ ΠΎΠ±ΡΠ°Π·ΠΎΠΌ, ΡΡΠΎΠ±Ρ ΠΎΡΠ²Π΅ΡΡΡΠΈΠ΅, ΡΠ°ΡΠΏΠΎΠ»ΠΎΠΆΠ΅Π½Π½ΠΎΠ΅ Π½Π° Π½Π΅ΠΌ, Π½Π°Ρ ΠΎΠ΄ΠΈΠ»ΠΎΡΡ ΠΊΠ°ΠΊ ΠΌΠΎΠΆΠ½ΠΎ Π΄Π°Π»ΡΡΠ΅ ΠΎΡ ΡΡΠ³ΠΈ ΠΏΠ»Π°Π²Π½ΠΈΠΊΠ°. Π£ΠΊΡΠ΅ΠΏΠΈΡΠ΅ ΡΠΎΠ»ΠΊΠ°ΡΠ΅Π»Ρ ΠΌΠ΅ΠΆΠ΄Ρ ΡΠΊΠΈΠ²ΠΎΠΌ ΠΈ ΡΡΠ³ΠΎΠΉ. ΠΠΎΡ ΡΠ΅ΠΏΠ΅ΡΡ ΠΌΠΎΠΆΠ½ΠΎ Π·Π°Π²ΠΎΠ΄ΠΈΡΡ ΠΌΠ΅Ρ Π°Π½ΠΈΠ·ΠΌ Π΄Π²ΠΈΠ³Π°ΡΠ΅Π»Ρ Π΄Π»Ρ ΡΠΎΠ³ΠΎ, ΡΡΠΎΠ±Ρ ΠΏΡΠΎΠ²Π΅ΡΠΈΡΡ Π΅Π³ΠΎ ΡΠ°Π±ΠΎΡΡ. Π Π·Π°ΠΊΠ»ΡΡΠΈΡΠ΅Π»ΡΠ½ΡΠΉ ΡΡΠ°ΠΏ β ΠΏΡΠΈΠΊΡΠ΅ΠΏΠΈΡΠ΅ ΠΊ ΠΊΠΎΡΠΏΡΡΡ Π΄Π΅ΡΠ°Π»ΠΈ Π½Π°Π΄ΡΡΡΠΎΠΉΠΊΠΈ. ΠΠ½ΠΈ ΡΠΎ ΠΈ ΠΏΡΠΈΠ΄Π°Π΄ΡΡ Π½Π°ΡΠ΅ΠΉ ΠΌΠΎΠ΄Π΅Π»ΠΈ ΡΡ ΠΎΠΆΠ΅ΡΡΡ Ρ Π½Π°ΡΡΠΎΡΡΠΈΠΌ ΠΊΠ°ΡΠ΅ΡΠΎΠΌ.
Π‘Π΅Π·ΠΎΠ½ ΡΡΠ±Π°Π»ΠΊΠΈ Π½Π°ΡΠ°Π»ΡΡ, Π° Π»ΠΎΠ΄ΠΊΠΈ Π½Π΅Ρ. ΠΡΠΎΠ±Π»Π΅ΠΌΠ° Π΄ΠΎΠ²ΠΎΠ»ΡΠ½Π°Ρ ΡΠ°ΡΡΠ°Ρ, Π° Π²ΠΎΡ ΡΠ΅ΡΠΈΡΡ Π΅Π΅ Π½Π΅ ΡΠ°ΠΊ Π»Π΅Π³ΠΊΠΎ, ΠΊΠ°ΠΊ Ρ ΠΎΡΠ΅Π»ΠΎΡΡ Π±Ρ. ΠΡΠ»ΠΈ ΠΆΠ΅ Π²Π°ΡΠ΅ ΠΆΠ΅Π»Π°Π½ΠΈΠ΅ ΡΠΈΠ»ΡΠ½Π΅Π΅, ΡΠ΅ΠΌ ΡΡΠΎΡΡΠΈΠ΅ ΠΏΠ΅ΡΠ΅Π΄ Π²Π°ΠΌΠΈ ΡΡΡΠ΄Π½ΠΎΡΡΠΈ, ΡΠΎ ΠΏΡΠΈΠ³ΠΎΡΠΎΠ²ΡΡΠ΅ΡΡ ΠΈΡΠΏΠΎΠ»ΡΠ·ΠΎΠ²Π°ΡΡ ΡΠ²ΠΎΡ ΡΠΌΠ΅ΠΊΠ°Π»ΠΊΡ ΠΈ ΠΏΠΎΠ΄ΡΡΡΠ½ΡΠΉ ΠΌΠ°ΡΠ΅ΡΠΈΠ°Π». ΠΡΠ±Π΅ΡΠΈΡΠ΅ ΠΎΠ΄ΠΈΠ½ ΠΈΠ· ΠΏΡΠ΅Π΄Π»ΠΎΠΆΠ΅Π½Π½ΡΡ ΡΠΏΠΎΡΠΎΠ±ΠΎΠ² ΠΊΠΎΠ½ΡΡΡΡΠΈΡΠΎΠ²Π°Π½ΠΈΡ ΡΠ°ΠΌΠΎΠ΄Π΅Π»ΡΠ½ΠΎΠ³ΠΎ ΠΊΠ°ΡΠ΅ΡΠ° ΠΈ Π½Π°ΡΠΈΠ½Π°ΠΉΡΠ΅ ΡΠ°Π±ΠΎΡΡ.

ΠΠ°ΠΌ ΠΏΠΎΠ½Π°Π΄ΠΎΠ±ΠΈΡΡΡ
- ΠΌΠ°ΡΡΠ°Ρ-ΠΊΡΠΎΠ²Π°ΡΡ ΠΈΠ»ΠΈ Π»ΠΎΠ΄ΠΊΠ° Π½Π°Π΄ΡΠ²Π½Π°Ρ, ΠΏΠ°ΡΠ° ΡΠ°Π½Π΅ΡΠΎΠΊ, Π΄Π²ΠΈΠ³Π°ΡΠ΅Π»Ρ.
ΠΠ½ΡΡΡΡΠΊΡΠΈΡ
Π‘Π΄Π΅Π»Π°ΠΉΡΠ΅ ΠΊΠ°ΡΠ΅Ρ ΠΈΠ· ΠΌΠ°ΡΡΠ°ΡΠ° ΠΈ Π΄Π²ΠΈΠ³Π°ΡΠ΅Π»Ρ. ΠΡΠΎ ΠΎΠ΄ΠΈΠ½ ΠΈΠ· ΡΠ°ΠΌΡΡ ΡΠ°ΡΠΏΡΠΎΡΡΡΠ°Π½Π΅Π½Π½ΡΡ ΠΈ ΠΎΠ΄Π½ΠΎΠ²ΡΠ΅ΠΌΠ΅Π½Π½ΠΎ Ρ ΡΠ΅ΠΌ Π·Π°Π±Π°Π²Π½ΡΡ ΡΠΏΠΎΡΠΎΠ±ΠΎΠ² ΡΠΊΠΎΠ½ΡΡΡΡΠΈΡΠΎΠ²Π°ΡΡ ΠΌΠΎΡΠΎΡΠ½ΡΡ Π»ΠΎΠ΄ΠΊΡ. ΠΠ°ΠΌ ΠΏΠΎΠ½Π°Π΄ΠΎΠ±ΠΈΡΡΡ Π±ΠΎΠ»ΡΡΠΎΠΉ ΠΈ ΠΏΡΠΎΡΠ½ΡΠΉ ΠΌΠ°ΡΡΠ°Ρ-ΠΊΡΠΎΠ²Π°ΡΡ, Π° ΡΠ°ΠΊΠΆΠ΅ Π½Π΅Π±ΠΎΠ»ΡΡΠΎΠΉ ΠΈ Π½Π΅ ΠΎΡΠ΅Π½Ρ ΡΡΠΆΠ΅Π»ΡΠΉ Π΄Π²ΠΈΠ³Π°ΡΠ΅Π»Ρ. ΠΡΠ»ΠΈ Ρ Π²Π°Ρ Π΅ΡΡΡ Ρ ΠΎΡΠΎΡΠ°Ρ Π½Π°Π΄ΡΠ²Π½Π°Ρ Π»ΠΎΠ΄ΠΊΠ°, ΠΎΠ½Π° ΠΏΠΎΠ΄ΠΎΠΉΠ΄Π΅Ρ Π΅ΡΠ΅ Π»ΡΡΡΠ΅. Π£ΡΡΠ°Π½ΠΎΠ²ΠΈΡΠ΅ Π½Π° Π»ΠΎΠ΄ΠΊΡ ΠΈΠ»ΠΈ ΠΌΠ°ΡΡΠ°Ρ Π΄Π΅ΡΠ΅Π²ΡΠ½Π½ΡΡ ΠΎΡΠ½ΠΎΠ²Ρ, Π½Π° ΠΊΠΎΡΠΎΡΡΡ Π±ΡΠ΄Π΅Ρ ΠΊΡΠ΅ΠΏΠΈΡΡΡΡ ΠΌΠΎΡΠΎΡ. Π‘Π»Π΅Π΄ΠΈΡΠ΅ Π·Π° ΡΠ΅ΠΌ, ΡΡΠΎΠ±Ρ Π½ΠΈΠΊΠ°ΠΊΠΈΠ΅ Π΄Π΅ΡΠ°Π»ΠΈ ΠΌΠΎΡΠΎΡΠ° Π½Π΅ ΡΠΎΠΏΡΠΈΠΊΠ°ΡΠ°Π»ΠΈΡΡ Ρ ΡΠ°ΠΌΠΎΠΉ Π»ΠΎΠ΄ΠΊΠΎΠΉ, ΠΈΠ½Π°ΡΠ΅ ΠΎΠ½ΠΈ ΠΌΠΎΠ³ΡΡ Π΅Π΅ ΠΏΠΎΡΠ²Π°ΡΡ.ΠΠΎΠ΄Π±Π΅ΡΠΈΡΠ΅ ΠΌΠΎΡΠΎΡ. ΠΡ ΠΌΠΎΠΆΠ΅ΡΠ΅ ΠΊΡΠΏΠΈΡΡ Π½Π΅Π±ΠΎΠ»ΡΡΠΎΠΉ Π²Π°ΡΠΈΠ°Π½Ρ Π² ΡΠΏΠ΅ΡΠΈΠ°Π»ΠΈΠ·ΠΈΡΠΎΠ²Π°Π½Π½ΠΎΠΌ ΠΌΠ°Π³Π°Π·ΠΈΠ½Π΅ ΠΈΠ»ΠΈ ΡΠ΄Π΅Π»Π°ΡΡ Π΅Π³ΠΎ ΡΠ°ΠΌΠΎΡΡΠΎΡΡΠ΅Π»ΡΠ½ΠΎ. ΠΡΠ»ΠΈ Π²Ρ ΡΠ΅ΡΠΈΠ»ΠΈ ΠΏΠΎΠΊΡΠΏΠ°ΡΡ, ΠΎΠ±ΡΡΡΠ½ΠΈΡΠ΅ ΠΏΡΠΎΠ΄Π°Π²ΡΡ ΠΎΡΠΎΠ±Π΅Π½Π½ΠΎΡΡΡ Π²Π°ΡΠ΅ΠΉ ΠΊΠΎΠ½ΡΡΡΡΠΊΡΠΈΠΈ, ΡΡΠΎΠ±Ρ ΠΎΠ½ ΠΏΠΎΠΌΠΎΠ³ Π²Π°ΠΌ ΠΏΠΎΠ΄ΠΎΠ±ΡΠ°ΡΡ ΠΎΠ΄Π½ΠΎΠ²ΡΠ΅ΠΌΠ΅Π½Π½ΠΎ Π»Π΅Π³ΠΊΠΈΠΉ ΠΈ ΡΠ΄ΠΎΠ±Π½ΡΠΉ Π² ΠΊΡΠ΅ΠΏΠ»Π΅Π½ΠΈΠΈ Π²Π°ΡΠΈΠ°Π½Ρ.
ΠΠΎΠΏΡΠΎΠ±ΡΠΉΡΠ΅ ΡΠ΄Π΅Π»Π°ΡΡ ΡΠ²ΠΎΠΉ ΠΌΠΎΡΠΎΡ. ΠΡΠ½ΠΎΠ²Ρ ΠΌΠΎΠΆΠ½ΠΎ Π²Π·ΡΡΡ ΠΎΡ ΡΠΊΡΡΠ΅ΡΠ°, ΡΠ½Π΅Π³ΠΎΡ ΠΎΠ΄Π°, ΠΌΠΎΠΏΠ΅Π΄Π° ΠΈΠ»ΠΈ Π΄Π°ΠΆΠ΅ ΠΎΡ Π±Π΅Π½Π·ΠΎΠΏΠΈΠ»Ρ. ΠΠΎΡΠ½ΠΎΡΡΡ, ΠΊΠΎΠ½Π΅ΡΠ½ΠΎ, Π±ΡΠ΄Π΅Ρ Π½Π΅Π±ΠΎΠ»ΡΡΠ°Ρ, ΠΎΠ΄Π½Π°ΠΊΠΎ Π΅ΡΠ»ΠΈ Π²Ρ ΡΡΠ±Π°ΡΠΈΡΠ΅ ΠΎΠ΄ΠΈΠ½, ΡΠΎ Π²ΠΏΠΎΠ»Π½Π΅ Π²Π΅ΡΠΎΡΡΠ½ΠΎ, ΡΡΠΎ Π²Π°ΠΌ Π±ΡΠ΄Π΅Ρ Π΅Π΅ Π΄ΠΎΡΡΠ°ΡΠΎΡΠ½ΠΎ.ΠΠ΅ΡΠ΅Ρ ΠΎΠ΄Π½ΠΈΠΊ Π΄Π»Ρ Π»ΠΎΠΏΠ°ΡΡΠ΅ΠΉ ΠΌΠΎΠΆΠ½ΠΎ ΡΠ΄Π΅Π»Π°ΡΡ ΡΠ°ΠΌΠΎΠΌΡ, Π΅ΡΠ»ΠΈ Ρ Π²Π°Ρ Π΅ΡΡΡ ΡΠ²Π°ΡΠΎΡΠ½ΡΠΉ Π°ΠΏΠΏΠ°ΡΠ°Ρ ΠΈΠ»ΠΈ Ρ ΠΎΡΡ Π±Ρ ΠΏΠ°ΡΠ»ΡΠ½ΠΈΠΊ. Π ΠΏΡΠΎΡΠΈΠ²Π½ΠΎΠΌ ΠΆΠ΅ ΡΠ»ΡΡΠ°Π΅ Π·Π°ΠΏΡΠ°ΡΡΠΈ ΠΏΡΠΈΠ΄Π΅ΡΡΡ ΠΏΠΎΠΊΡΠΏΠ°ΡΡ ΠΎΡΠ΄Π΅Π»ΡΠ½ΠΎ.
ΠΠΎΠΏΠ°ΡΡΠΈ Π»ΡΡΡΠ΅ Π²ΡΠ΅Π³ΠΎ ΡΠ΄Π΅Π»Π°ΠΉΡΠ΅ ΠΈΠ· ΠΏΠ»Π°ΡΡΠΈΠΊΠ° ΠΈΠ»ΠΈ ΡΡΠ°Π»ΠΈ, Π½Π°ΠΏΡΠΈΠΌΠ΅Ρ, ΠΈΠ· Π»ΠΈΡΡΠΎΠ² Π°Π»ΡΠΌΠΈΠ½ΠΈΡ. ΠΠ΅ΠΊΠΎΡΠΎΡΡΠ΅ ΡΠΌΠ΅Π»ΡΡΡ Π΄Π΅Π»Π°ΡΡ Π΅Π³ΠΎ ΠΈΠ· ΠΎΠ±ΡΡΠ½ΡΡ Π»ΠΎΠΆΠ΅ΠΊ, ΠΎΠ΄Π½Π°ΠΊΠΎ ΠΌΠΎΡΠΎΡΡΠΈΠΊΠ° ΠΎΡ Π±Π΅Π½Π·ΠΎΠΏΠΈΠ»Ρ, Π½Π°Π²Π΅ΡΠ½ΠΎΠ΅, Π±ΡΠ΄Π΅Ρ ΠΌΠ°Π»ΠΎ.
ΠΠ°ΠΈΠ·ΠΎΠ»ΠΈΡΡΠΉΡΠ΅ Π΄Π²ΠΈΠ³Π°ΡΠ΅Π»Ρ. ΠΠΎΠΌΠ½ΠΈΡΠ΅, ΡΡΠΎ Π²Π°Ρ ΡΠ°ΠΌΠΎΠ΄Π΅Π»ΡΠ½ΡΠΉ Π°ΠΏΠΏΠ°ΡΠ°Ρ Π½Π΅ ΠΏΡΠ΅Π΄Π½Π°Π·Π½Π°ΡΠ΅Π½ Π΄Π»Ρ «Π²ΠΎΠ΄Π½ΡΡ ΠΏΡΠΎΡΠ΅Π΄ΡΡ», Π° Π·Π½Π°ΡΠΈΡ Π΄ΠΎΠ»ΠΆΠ΅Π½ Π±ΡΡΡ ΠΎΡ Π½ΠΈΡ Π·Π°ΡΠΈΡΠ΅Π½. ΠΠΎΠΌΠ΅ΡΡΠΈΡΠ΅ Π΄Π²ΠΈΠ³Π°ΡΠ΅Π»Ρ Π² Π½Π΅Π±ΠΎΠ»ΡΡΡΡ Π½Π΅ΠΏΡΠΎΠΌΠΎΠΊΠ°ΡΡΡΡ ΡΡΠΌΠΊΡ ΠΈ ΡΠ΄Π΅Π»Π°ΠΉΡΠ΅ Π½Π΅ΡΠΊΠΎΠ»ΡΠΊΠΎ ΠΏΡΠΎΡΠ΅Π·Π΅ΠΉ Π΄Π»Ρ ΡΡΡΠΊΠΈ ΠΈ Π΄ΡΡΠ³ΠΈΡ Π²Π½Π΅ΡΠ½ΠΈΡ ΠΏΠ΅ΡΠ΅ΠΊΠ»ΡΡΠ°ΡΠ΅Π»Π΅ΠΉ.
ΠΠΎΠ»Π΅Π·Π½ΡΠΉ ΡΠΎΠ²Π΅Ρ
ΠΡΠ΅ΠΆΠ΄Π΅ ΡΠ΅ΠΌ ΠΎΡΠΏΠ»ΡΡΡ, ΡΠ±Π΅Π΄ΠΈΡΠ΅ΡΡ, ΡΡΠΎ Π΄Π²ΠΈΠ³Π°ΡΠ΅Π»Ρ Π½ΠΈ ΠΏΠΎΠ΄ ΠΊΠ°ΠΊΠΈΠΌ ΡΠ³Π»ΠΎΠΌ Π½Π΅ Π·Π°Π΄Π΅Π²Π°Π΅Ρ Π΄Π½ΠΎ Π»ΠΎΠ΄ΠΊΠΈ ΠΈΠ»ΠΈ ΠΌΠ°ΡΡΠ°ΡΠ°. Π ΡΠ»ΡΡΠ°Π΅ Π΅ΡΠ»ΠΈ ΡΡΠΎ ΠΏΡΠΎΠΈΡΡ ΠΎΠ΄ΠΈΡ, Π·Π°ΡΠΈΠΊΡΠΈΡΡΠΉΡΠ΅ Π΄Π²ΠΈΠ³Π°ΡΠ΅Π»Ρ Π² Π±Π΅Π·ΠΎΠΏΠ°ΡΠ½ΠΎΠΌ ΠΏΠΎΠ»ΠΎΠΆΠ΅Π½ΠΈΠΈ ΠΈΠ»ΠΈ Π½Π΅ΠΌΠ½ΠΎΠ³ΠΎ ΡΠΊΠΎΡΠΎΡΠΈΡΠ΅ Π»ΠΎΠΏΠ°ΡΡΠΈ.
ΠΡΡΠΎΡΠ½ΠΈΠΊΠΈ:
- ΠΏΠΎΡΡΡΠΎΠΉΠΊΠ° ΠΊΠ°ΡΠ΅ΡΠ° ΡΠ²ΠΎΠΈΠΌΠΈ ΡΡΠΊΠ°ΠΌΠΈ
ΠΡΠΎΡΡΠ°Ρ Π΄Π΅ΡΠ΅Π²ΡΠ½Π½Π°Ρ Π»ΠΎΠ΄ΠΊΠ° β Π½Π΅Π·Π°ΠΌΠ΅Π½ΠΈΠΌΡΠΉ ΡΠΏΡΡΠ½ΠΈΠΊ Π΄Π»Ρ ΡΠ΅Π»ΠΎΠ²Π΅ΠΊΠ°, ΠΊΠΎΡΠΎΡΡΠΉ Π»ΡΠ±ΠΈΡ ΠΎΡΠ΄ΡΡ Π°ΡΡ Π½Π° Π·Π°Π³ΠΎΡΠΎΠ΄Π½ΡΡ Π²ΠΎΠ΄ΠΎΠ΅ΠΌΠ°Ρ , Π»ΠΎΠ²ΠΈΡΡ ΡΡΠ±Ρ ΠΈ ΡΠΏΠ»Π°Π²Π»ΡΡΡΡΡ ΠΏΠΎ ΡΠ΅ΠΊΠ°ΠΌ Π² ΡΡΡΠΈΡΡΠΈΡΠ΅ΡΠΊΠΈΡ ΠΏΠΎΡ ΠΎΠ΄Π°Ρ . Π ΠΎΡΠ»ΠΈΡΠΈΠ΅ ΠΎΡ Π΄ΡΡΠ³ΠΎΠ³ΠΎ Π²ΠΎΠ΄Π½ΠΎΠ³ΠΎ ΡΡΠ°Π½ΡΠΏΠΎΡΡΠ°, Π»ΠΎΠ΄ΠΊΡ Π½Π΅ΡΠ»ΠΎΠΆΠ½ΠΎ ΡΠΌΠ°ΡΡΠ΅ΡΠΈΡΡ ΡΠ°ΠΌΠΎΡΡΠΎΡΡΠ΅Π»ΡΠ½ΠΎ, Π΅ΡΠ»ΠΈ Π²Ρ ΡΠΌΠ΅Π΅ΡΠ΅ ΠΎΠ±ΡΠ°Π±Π°ΡΡΠ²Π°ΡΡ Π΄Π΅ΡΠ΅Π²ΠΎ ΠΈ Π²Π»Π°Π΄Π΅Π΅ΡΠ΅ Π½ΡΠΆΠ½ΡΠΌΠΈ ΠΈΠ½ΡΡΡΡΠΌΠ΅Π½ΡΠ°ΠΌΠΈ Π΄Π»Ρ Π΅Π΅ ΠΈΠ·Π³ΠΎΡΠΎΠ²Π»Π΅Π½ΠΈΡ. ΠΠΎΠ΄ΠΊΠ°, ΡΠ΄Π΅Π»Π°Π½Π½Π°Ρ Π²ΡΡΡΠ½ΡΡ, ΡΠΌΠΎΠΆΠ΅Ρ Π²ΡΠ΄Π΅ΡΠΆΠΈΠ²Π°ΡΡ Π³ΡΡΠ· Π΄ΠΎ 400 ΠΊΠ³, Π° Π²ΠΏΠΎΡΠ»Π΅Π΄ΡΡΠ²ΠΈΠΈ ΠΏΡΠΈ ΠΆΠ΅Π»Π°Π½ΠΈΠΈ Π²Ρ ΠΌΠΎΠΆΠ΅ΡΠ΅ ΡΡΡΠ°Π½ΠΎΠ²ΠΈΡΡ Π½Π° Π½Π΅Π΅ ΠΌΠΎΡΠΎΡ ΠΈ ΠΏΠ°ΡΡΡ.

ΠΠ°ΠΌ ΠΏΠΎΠ½Π°Π΄ΠΎΠ±ΠΈΡΡΡ
- — Π΄ΠΎΡΠΊΠΈ;
- — Π»ΠΈΡΡΡ ΡΠ°Π½Π΅ΡΡ;
- — ΠΌΠ°ΡΠ»ΡΠ½Π°Ρ ΠΊΡΠ°ΡΠΊΠ°;
- — Π±Π΅Π»ΠΈΠ»Π°;
- — Π³Π²ΠΎΠ·Π΄ΠΈ;
- — ΡΡΡΡΠΏΡ.
ΠΠ½ΡΡΡΡΠΊΡΠΈΡ
ΠΠ»Ρ ΠΈΠ·Π³ΠΎΡΠΎΠ²Π»Π΅Π½ΠΈΡ Π»ΠΎΠ΄ΠΊΠΈ ΠΏΠΎΠ΄Π³ΠΎΡΠΎΠ²ΡΡΠ΅ ΠΌΠ°ΡΠ΅ΡΠΈΠ°Π»Ρ β ΡΠ΅ΠΌΡ ΡΠΎΡΠ½ΠΎΠ²ΡΡ Π΄ΠΎΡΠΎΠΊ 15-20 ΠΌΠΌ ΡΠΎΠ»ΡΠΈΠ½ΠΎΠΉ, 300 ΠΌΠΌ ΡΠΈΡΠΈΠ½ΠΎΠΉ ΠΈ 5 ΠΌ Π΄Π»ΠΈΠ½ΠΎΠΉ. ΠΡΠΈ Π΄ΠΎΡΠΊΠΈ ΠΏΠΎΠ½Π°Π΄ΠΎΠ±ΡΡΡΡ Π΄Π»Ρ ΠΎΠ±ΡΠΈΠ²ΠΊΠΈ ΠΊΠΎΡΠΏΡΡΠ° Π»ΠΎΠ΄ΠΊΠΈ. Π’Π°ΠΊΠΆΠ΅ ΠΏΠΎΠ΄Π³ΠΎΡΠΎΠ²ΡΡΠ΅ ΡΡΠΈ ΡΠΎΡΠ½ΠΎΠ²ΡΡ Π΄ΠΎΡΠΊΠΈ 4 ΠΌ Π΄Π»ΠΈΠ½ΠΎΠΉ, 300 ΠΌΠΌ ΡΠΈΡΠΈΠ½ΠΎΠΉ ΠΈ 50 ΠΌΠΌ ΡΠΎΠ»ΡΠΈΠ½ΠΎΠΉ, ΡΠΎΡΠ½ΠΎΠ²ΡΡ Π΄ΠΎΡΠΊΡ 30Ρ 200 ΠΌΠΌ Π΄Π»ΠΈΠ½ΠΎΠΉ 2 ΠΌ ΠΈ Π΄Π²Π° ΡΠ°Π½Π΅ΡΠ½ΡΡ Π»ΠΈΡΡΠ° ΡΠΎΠ»ΡΠΈΠ½ΠΎΠΉ Π΄ΠΎ 5 ΠΌΠΌ. ΠΠ»Ρ Π·Π°ΠΏΠΎΠ»Π½Π΅Π½ΠΈΡ ΡΡΡΠΊΠΎΠ² Π²Π°ΠΌ ΠΏΠΎΡΡΠ΅Π±ΡΠ΅ΡΡΡ ΠΊΠΈΠ»ΠΎΠ³ΡΠ°ΠΌΠΌ ΠΌΠ°ΡΠ»ΡΠ½ΠΎΠΉ ΠΊΡΠ°ΡΠΊΠΈ, Π° ΡΠ°ΠΊΠΆΠ΅ ΡΡΠΈ ΠΊΠΈΠ»ΠΎΠ³ΡΠ°ΠΌΠΌΠ° Π±Π΅Π»ΠΈΠ» Π½Π° ΠΎΠ»ΠΈΡΠ΅. ΠΠ»Ρ ΠΊΡΠ΅ΠΏΠ»Π΅Π½ΠΈΡ Π΄Π΅ΡΠ°Π»Π΅ΠΉ Π»ΠΎΠ΄ΠΊΠΈ ΠΏΠΎΠ΄Π³ΠΎΡΠΎΠ²ΡΡΠ΅ 1,5 ΠΊΠ³ Π³Π²ΠΎΠ·Π΄Π΅ΠΉ Π΄Π»ΠΈΠ½ΠΎΠΉ 5 ΡΠΌ ΠΈ 1 ΠΊΠ³ ΡΡΡΡΠΏΠΎΠ² ΡΠ°ΠΊΠΎΠΉ ΠΆΠ΅ Π΄Π»ΠΈΠ½Ρ. ΠΠ°ΡΠ½ΠΈΡΠ΅ ΠΌΠ°ΡΡΠ΅ΡΠΈΡΡ Π»ΠΎΠ΄ΠΊΡ Ρ ΠΈΠ·Π³ΠΎΡΠΎΠ²Π»Π΅Π½ΠΈΡ ΡΠΏΠ°Π½Π³ΠΎΡΡΠΎΠ². Π¨ΠΏΠ°Π½Π³ΠΎΡΡΡ Π΄ΠΎΠ»ΠΆΠ½Ρ ΠΏΠΎΠ΄Π½ΠΈΠΌΠ°ΡΡΡΡ Π½Π°Π΄ ΡΡΠΎΠ²Π½Π΅ΠΌ Π±ΠΎΡΡΠ° Π½Π° 200 ΠΌΠΌ. ΠΠΎΡΠ»Π΅ ΡΠΏΠ°Π½Π³ΠΎΡΡΠΎΠ² ΡΠΌΠ°ΡΡΠ΅ΡΠΈΡΠ΅ ΡΠΎΡΡΡΠ΅Π²Π΅Π½Ρ ΠΈ ΡΡΠ°Π½Π΅Ρ, ΡΡΡΠ°Π½ΠΎΠ²ΠΈΡΠ΅ ΠΈΡ Π½Π° ΠΊΠΈΠ»Π΅Π²ΡΡ Π΄ΠΎΡΠΊΡ, Π΄Π»ΠΈΠ½Π° ΠΊΠΎΡΠΎΡΠΎΠΉ ΡΠΎΡΡΠ°Π²Π»ΡΠ΅Ρ 4 ΠΌ, Π° ΡΠ΅ΡΠ΅Π½ΠΈΠ΅ 50Ρ 20 ΠΌΠΌ, Ρ ΠΏΠΎΠΌΠΎΡΡΡ Π³Π²ΠΎΠ·Π΄Π΅ΠΉ. ΠΡΠΈΠ±Π΅ΠΉΡΠ΅ Π³Π²ΠΎΠ·Π΄ΡΠΌΠΈ ΡΠΊΠ°ΠΌΠ΅ΠΉΠΊΠΈ ΠΌΠ΅ΠΆΠ΄Ρ ΡΠΏΠ°Π½Π³ΠΎΡΡΠ°ΠΌΠΈ.Π Π±ΠΎΠΊΠΎΠ²ΡΠΌ ΡΡΡΠ°Π½ΠΎΠ²ΠΎΡΠ½ΡΠΌ Π΄ΠΎΡΠΊΠ°ΠΌ ΠΏΡΠΈΠΊΡΠ΅ΠΏΠΈΡΠ΅ Π²Π΅ΡΡ Π½ΠΈΠ΅ ΡΡΠΎΡΠΎΠ½Ρ ΡΠΏΠ°Π½Π³ΠΎΡΡΠΎΠ², ΡΠΎΡΡΡΠ΅Π²Π½Ρ ΠΈ ΡΡΠ°Π½ΡΠ°. ΠΠ°Π΄ΡΡΡΠ°Π½ΠΎΠ²ΠΎΡΠ½ΡΠ΅ Π΄ΠΎΡΠΊΠΈ ΡΠ½ΠΈΠΌΠΈΡΠ΅, ΠΊΠΎΠ³Π΄Π° ΡΠ°Π±ΠΎΡΠ° Π±ΡΠ΄Π΅Ρ Π·Π°ΠΊΠΎΠ½ΡΠ΅Π½Π°, Π° ΡΠ°ΠΊΠΆΠ΅ Π² ΠΊΠΎΠ½ΡΠ΅ ΡΠ°Π±ΠΎΡΡ ΡΠΏΠΈΠ»ΠΈΡΠ΅ Π»ΠΈΡΠ½ΠΈΠ΅ ΠΊΡΠ°Ρ ΡΠΏΠ°Π½Π³ΠΎΡΡΠΎΠ² β 200 ΠΌΠΌ, Π²ΡΡΡΡΠΏΠ°ΡΡΠΈΡ Π½Π°Π΄ ΠΊΠΎΡΠΌΠΎΠΉ. ΠΠΈΠΆΠ½ΠΈΠ΅ Π±ΠΎΡΡΠΎΠ²ΡΠ΅ Π΄ΠΎΡΠΊΠΈ ΠΏΡΠΈΠ±Π΅ΠΉΡΠ΅ Π³Π²ΠΎΠ·Π΄ΡΠΌΠΈ.
ΠΠΈΠ»Π΅Π²ΡΡ Π΄ΠΎΡΠΊΡ ΠΎΡΠΎΡΠ²ΠΈΡΠ΅ ΠΈ ΠΏΡΠΈΠ±Π΅ΠΉΡΠ΅ Π²ΠΌΠ΅ΡΡΠΎ Π½Π΅Π΅ Π΄ΠΎΡΠΊΠΈ, ΠΈΠ· ΠΊΠΎΡΠΎΡΡΡ ΡΠΎΡΡΠΎΠΈΡ Π΄Π½ΠΈΡΠ΅ Π»ΠΎΠ΄ΠΊΠΈ. ΠΠ°ΠΊΡΠ΅ΠΏΠΈΡΠ΅ Π½Π° Π»ΠΎΠ΄ΠΊΠ΅ Π²Π΅ΡΡ Π½ΠΈΠ΅ Π±ΠΎΡΡΠΎΠ²ΡΠ΅ Π΄ΠΎΡΠΊΠΈ. Π ΠΌΠ΅ΡΡΠ°Ρ ΡΠΎΠ΅Π΄ΠΈΠ½Π΅Π½ΠΈΡ Π΄ΠΎΡΠΎΠΊ Π΄Π½ΠΈΡΠ° Π·Π°ΠΊΡΠ΅ΠΏΠΈΡΠ΅ ΡΡΠΈ ΡΠ°Π»ΡΡΠΊΠΈΠ»Ρ, ΡΡΠΎΠ±Ρ ΡΡΡΠΊΠΈ Π±ΡΠ»ΠΈ Π³Π΅ΡΠΌΠ΅ΡΠΈΡΠ½ΡΠΌΠΈ.
ΠΡΠΎΠΊΠΎΠ½ΠΎΠΏΠ°ΡΡΡΠ΅ ΡΡΡΠΊΠΈ ΠΌΠ΅ΠΆΠ΄Ρ Π΄ΠΎΡΠΊΠ°ΠΌΠΈ, ΡΠΌΠΎΡΠΈΠ² ΠΏΠ°ΠΊΠ»Ρ Π² ΠΎΠ»ΠΈΡΠ΅, Π° Π·Π°ΡΠ΅ΠΌ Π·Π°ΡΠ»ΠΈΡΡΠΉΡΠ΅ ΡΡΡΠΊΠΈ Π½Π°ΠΆΠ΄Π°ΡΠ½ΠΎΠΉ Π±ΡΠΌΠ°Π³ΠΎΠΉ. Π Π½ΠΎΡΠΎΠ²ΠΎΠΉ ΡΠ°ΡΡΠΈ Π»ΠΎΠ΄ΠΊΠΈ ΡΠΌΠ°ΡΡΠ΅ΡΠΈΡΠ΅ ΠΈΠ· ΡΠ°Π½Π΅ΡΡ Π±Π°Π³Π°ΠΆΠ½ΠΈΠΊ Π΄Π»Ρ Π²Π΅ΡΠ΅ΠΉ. ΠΡΠ»ΠΈ Π²Ρ Π»ΠΎΠ²ΠΈΡΠ΅ ΡΡΠ±Ρ, ΠΏΠΎΠ΄ ΡΡΠ΅Π΄Π½Π΅ΠΉ ΡΠΊΠ°ΠΌΠ΅ΠΉΠΊΠΎΠΉ ΡΡΡΠ°Π½ΠΎΠ²ΠΈΡΠ΅ ΡΠ°Π΄ΠΎΠΊ Π΄Π»Ρ ΡΠ»ΠΎΠ²Π°.ΠΠΊΡΠ°ΡΡΡΠ΅ Π»ΠΎΠ΄ΠΊΡ ΡΠ½Π°ΡΡΠΆΠΈ ΠΈ Π²Π½ΡΡΡΠΈ ΠΌΠ°ΡΠ»ΡΠ½ΠΎΠΉ ΠΊΡΠ°ΡΠΊΠΎΠΉ Π½Π° Π΄Π²Π°-ΡΡΠΈ ΡΠ»ΠΎΡ. ΠΠ·Π³ΠΎΡΠΎΠ²ΡΡΠ΅ ΠΈΠ· ΠΏΠΎΠ΄Π³ΠΎΡΠΎΠ²Π»Π΅Π½Π½ΡΡ Π·Π°ΡΠ°Π½Π΅Π΅ Π΄ΠΎΡΠΎΠΊ Π΄Π²Π° Π²Π΅ΡΠ»Π°. ΠΠΎΠ΄ΠΊΠ° Π³ΠΎΡΠΎΠ²Π°.
ΠΠ±ΡΠ°ΡΠΈΡΠ΅ Π²Π½ΠΈΠΌΠ°Π½ΠΈΠ΅
ΠΠΎΡΡΠ°ΡΠΈΠ²Π½ΡΡ ΠΌΠΈΠ½ΠΈ-Π»ΠΎΠ΄ΠΊΡ Β«ΠΡΠΏΠΏΠΈΒ» Ρ β Π²Π»Π°Π΄Π΅Π»Π΅Ρ 6-ΠΌΠ΅ΡΡΠΎΠ²ΠΎΠ³ΠΎ ΠΊΠ°ΡΠ΅ΡΠ° β ΠΈ ΠΌΠΎΠΉ ΡΠΎΠ²Π°ΡΠΈΡ ΠΏΠΎ ΡΠ²Π»Π΅ΡΠ΅Π½ΠΈΡ β Π°Π²ΡΠΎΠ»ΡΠ±ΠΈΡΠ΅Π»Ρ ΠΈ ΡΡΠ±Π°ΠΊ β ΡΠΏΡΠΎΠ΅ΠΊΡΠΈΡΠΎΠ²Π°Π»ΠΈ ΠΈ ΠΏΠΎΡΡΡΠΎΠΈΠ»ΠΈ, ΡΡΠΊΠΎΠ²ΠΎΠ΄ΡΡΠ²ΡΡΡΡ ΠΏΡΠ΅ΠΆΠ΄Π΅ Π²ΡΠ΅Π³ΠΎ Π½Π΅ΠΎΠ±Ρ ΠΎΠ΄ΠΈΠΌΠΎΡΡΡΡ ΠΈΠΌΠ΅ΡΡ Π±ΠΎΡΡΠΎΠ²ΠΎΠΉ ΡΡΠ·ΠΈΠΊ Π΄Π»Ρ ΠΊΠ°ΡΠ΅ΡΠ° ΠΈ Π»ΠΎΠ΄ΠΊΡ-ΠΊΠ°ΡΡΠΎΠΏ Π΄Π»Ρ Π°Π²ΡΠΎΠΌΠΎΠ±ΠΈΠ»Ρ.Β ΠΠ΄Π΅Ρ ΠΏΠΎΠ΄ΡΠΊΠ°Π·Π°Π» ΠΏΡΠΎΠ΅ΠΊΡ Π»ΠΎΠ΄ΠΎΡΠΊΠΈ Β«ΠΠΆΠ΅ΠΊ Π¨ΠΏΡΠΎΡΒ», ΠΎΠΏΡΠ±Π»ΠΈΠΊΠΎΠ²Π°Π½Π½ΡΠΉ Π² β 55 Β«ΠΠΈΠ―Β» (ΡΠΌ. Π·Π΄Π΅ΡΡ), Π½ΠΎ ΠΊΠΎΡΠΏΡΡ ΠΌΡ ΡΠ΅ΡΠΈΠ»ΠΈ ΡΡΡΠΎΠΈΡΡ ΠΈΠ· ΡΡΠ΅ΠΊΠ»ΠΎΠΏΠ»Π°ΡΡΠΈΠΊΠ°.
ΠΡΡΠΎΡΠ½ΠΈΠΊΠΈ:
- Π΄Π΅ΡΠ΅Π²ΡΠ½Π½Π°Ρ Π»ΠΎΠ΄ΠΊΠ° ΡΠ²ΠΎΠΈΠΌΠΈ ΡΡΠΊΠ°ΠΌΠΈ
ΠΠΎΡΡΠΎΠΈΠ½ΡΡΠ²Π° Π°Π»ΡΠΌΠΈΠ½ΠΈΠ΅Π²ΡΡ Π»ΠΎΠ΄ΠΎΠΊ ΠΈΠ·Π²Π΅ΡΡΠ½Ρ Π²ΡΠ΅ΠΌ. ΠΠ½ΠΈ Π»Π΅Π³ΠΊΠΈ, ΠΏΡΠΎΡΠ½Ρ, ΡΠ΄ΠΎΠ±Π½Ρ Π² ΡΡΠ°Π½ΡΠΏΠΎΡΡΠΈΡΠΎΠ²ΠΊΠ΅. Π ΠΊΠΎΠ½Π΅ΡΠ½ΠΎ, Π΄Π»Ρ ΡΡΠ±Π°ΡΠΊΠΈΡ Π½ΡΠΆΠ΄ ΡΠ°ΠΊΠΎΠ΅ ΠΏΠ»Π°Π²ΡΡΠ΅Π΄ΡΡΠ²ΠΎ ΠΏΡΠΎΡΡΠΎ Π½Π΅Π·Π°ΠΌΠ΅Π½ΠΈΠΌΠΎ. ΠΠ΅ Π²ΡΠ΅ ΠΌΠΎΠ³ΡΡ ΠΏΠΎΠ·Π²ΠΎΠ»ΠΈΡΡ ΡΠ΅Π±Π΅ ΠΊΡΠΏΠΈΡΡ Π»ΠΎΠ΄ΠΊΡ Π΄Π»Ρ ΡΡΠ±Π°Π»ΠΊΠΈ. ΠΠ΅ Π±Π΅Π΄Π°! ΠΠ΅ ΠΌΠΎΠΆΠ½ΠΎ ΡΠ΄Π΅Π»Π°ΡΡ ΡΠ°ΠΌΠΎΡΡΠΎΡΡΠ΅Π»ΡΠ½ΠΎ, Π±ΡΠ»ΠΎ Π±Ρ ΠΆΠ΅Π»Π°Π½ΠΈΠ΅ ΠΈ ΡΠΌΠ΅Π»ΡΠ΅ ΡΡΠΊΠΈ.

ΠΠ°ΠΌ ΠΏΠΎΠ½Π°Π΄ΠΎΠ±ΠΈΡΡΡ
- Π΄ΡΡΠ°Π»Π΅Π²ΡΠ΅ Π»ΠΈΡΡΡ ΡΠΎΠ»ΡΠΈΠ½ΠΎΠΉ 3 ΠΌΠΌ, Π½ΠΎΠΆΠ½ΠΈΡΡ ΠΏΠΎ ΠΌΠ΅ΡΠ°Π»Π»Ρ, ΠΊΠ°ΡΡΠΎΠ½, ΠΊΠ°ΡΠ°Π½Π΄Π°Ρ, ΠΊΠ»Π΅ΠΏΠΊΠΈ, Π΄ΡΠ΅Π»Ρ, ΠΎΠ±ΡΠ΅Π·Π½Π°Ρ Π΄ΠΎΡΠΊΠ°.
ΠΠ½ΡΡΡΡΠΊΡΠΈΡ
ΠΠ°ΡΠΈΡΡΠΉΡΠ΅ ΡΠ΅ΡΡΠ΅ΠΆ Π±ΡΠ΄ΡΡΠ΅ΠΉ Π»ΠΎΠ΄ΠΊΠΈ. Π ΡΠ±Π°ΡΠΊΠ°Ρ Π»ΠΎΠ΄ΠΊΠ° Π΄ΠΎΠ»ΠΆΠ½Π° Π±ΡΡΡ ΡΡΡΠΎΠΉΡΠΈΠ²ΠΎΠΉ ΠΈ Π²ΠΌΠ΅ΡΡΠΈΡΠ΅Π»ΡΠ½ΠΎΠΉ, Π½ΠΎ Π²ΠΌΠ΅ΡΡΠ΅ Ρ ΡΠ΅ΠΌ Π½Π΅Π±ΠΎΠ»ΡΡΠΎΠΉ ΠΈ ΠΌΠ°Π½Π΅Π²ΡΠ΅Π½Π½ΠΎΠΉ. Π‘ΠΎΠ²ΡΠ΅ΠΌ Π½Π΅ΠΎΠ±ΡΠ·Π°ΡΠ΅Π»ΡΠ½ΠΎ Π΄Π΅Π»Π°ΡΡ ΠΊΠΈΠ»Ρ ΡΠΏΠ΅ΡΠ΅Π΄ΠΈ. ΠΠΌΠ΅ΡΠΈΠΊΠ°Π½ΡΡ ΠΈ Π½Π΅ΠΌΡΡ. ΠΠ°ΠΏΡΠΈΠΌΠ΅Ρ, ΡΠ΄ΡΡ ΡΡΠ±Ρ Ρ Π»ΠΎΠ΄ΠΎΠΊ, ΠΏΠΎΡ ΠΎΠΆΠΈΡ Π½Π° ΠΊΠΎΡΡΡΠΎ, ΠΈΠΌΠ΅ΡΡΠΈΡ ΡΡΠ°Π½Π΅Ρ ΠΈ ΡΠΏΠ΅ΡΠ΅Π΄ΠΈ ΠΈ ΡΠ·Π°Π΄ΠΈ. ΠΠ°ΡΠΎ ΡΠ°ΠΊΠΈΠ΅ Π»ΠΎΠ΄ΠΊΠΈ Π»Π΅Π³ΠΊΠΈ ΠΈ Π³ΡΡΠ·ΠΎΠΏΠΎΠ΄ΡΠ΅ΠΌΠ½Ρ. Π ΠΏΡΠΈΠ½ΡΠΈΠΏΠ΅ Π·Π° ΠΎΡΠ½ΠΎΠ²Ρ Π»ΠΎΠ΄ΠΊΠΈ ΠΌΠΎΠΆΠ½ΠΎ Π²Π·ΡΡΡ Π»ΡΠ±ΠΎΠ΅ Π½Π΅Π±ΠΎΠ»ΡΡΠΎΠ΅ ΡΡΠ΄Π½ΠΎ, ΠΎΠ±ΠΌΠ΅ΡΠΈΡΡ Π΅Π³ΠΎ ΠΈ Π½Π°ΡΠΈΡΠΎΠ²Π°ΡΡ ΡΠ΅ΡΡΠ΅ΠΆ. ΠΠΈΠ½ΠΈΠΌΠ°Π»ΡΠ½Π°Ρ Π²ΡΡΠΎΡΠ° Π±ΠΎΡΡΠΎΠ² Π»ΠΎΠ΄ΠΊΠΈ Π΄ΠΎΠ»ΠΆΠ½Π° Π±ΡΡΡ 350 ΠΌΠΌ. Π£Π³ΠΎΠ» Π½Π°ΠΊΠ»ΠΎΠ½Π° ΡΡΠ°Π½ΡΠ° ΠΊ Π·Π΅ΡΠΊΠ°Π»Ρ Π²ΠΎΠ΄Ρ Π΄ΠΎΠ»ΠΆΠ΅Π½ ΡΠΎΡΡΠ°Π²Π»ΡΡΡ ΠΏΡΠΈΠ±Π»ΠΈΠ·ΠΈΡΠ΅Π»ΡΠ½ΠΎ 30-400. ΠΠ±Π»Π΅Π³ΡΠ΅Π½Π½ΡΠΉ Π²Π°ΡΠΈΠ°Π½Ρ ΡΡΠ±Π°ΡΠΊΠΎΠΉ Π»ΠΎΠ΄ΠΊΠΈ ΠΌΠΎΠΆΠ΅Ρ Π½Π΅ ΠΈΠΌΠ΅ΡΡ ΡΠΏΠ°Π½Π³ΠΎΡΡΠΎΠ² (ΠΏΠΎΠΏΠ΅ΡΠ΅ΡΠ½ΠΎΠ³ΠΎ Π½Π°Π±ΠΎΡΠ° ΠΊΠ°ΡΠΊΠ°ΡΠ°) ΠΈ ΡΡΡΠΈΠ½Π³Π΅ΡΠΎΠ² (ΠΏΡΠΎΠ΄ΠΎΠ»ΡΠ½ΡΠ΅ ΡΠ»Π΅ΠΌΠ΅Π½ΡΡ). ΠΠ΅ΡΡΠΊΠΎΡΡΡ Π½Π΅ΡΡΡΠΈΡ ΡΠ»Π΅ΠΌΠ΅Π½ΡΠΎΠ², Π±ΠΎΡΡΠΎΠ² ΠΈ Π΄Π½ΠΈΡΠ°, Π±ΡΠ΄ΡΡ ΠΎΠ±Π΅ΡΠΏΠ΅ΡΠΈΠ²Π°ΡΡ ΡΠΈΠ΄Π΅Π½ΡΡ (Π±Π°Π½ΠΊΠΈ) ΠΈ ΠΏΠ»Π°Π½ΡΠΈΡΡ. ΠΠΎΡΡΠ° Π»ΠΎΠ΄ΠΊΠΈ ΡΠΏΠ΅ΡΠ΅Π΄ΠΈ ΠΏΠ»Π°Π²Π½ΠΎ ΠΏΠ΅ΡΠ΅Ρ ΠΎΠ΄ΡΡ Π² Π½Π°ΠΊΠ»ΠΎΠ½Π½ΡΠΉ ΡΡΠ°Π½Π΅Ρ ΡΡΠ°ΠΏΠ΅ΡΠΈΠ΅Π²ΠΈΠ΄Π½ΠΎΠΉ ΡΠΎΡΠΌΡ.ΠΠ°ΡΠΈΡΡΠΉΡΠ΅ ΡΠ΅ΡΡΠ΅ΠΆ Π½Π° ΠΊΠ°ΡΡΠΎΠ½Π΅ Π² ΠΏΠΎΠ»Π½ΡΡ Π²Π΅Π»ΠΈΡΠΈΠ½Ρ ΠΈ ΡΠΎΠ±Π΅ΡΠΈΡΠ΅ Π±ΡΠ΄ΡΡΠ΅Π΅ ΡΡΠ΄Π½ΠΎ. ΠΡΠΈ ΡΠ±ΠΎΡΠΊΠ΅ ΡΡΠ°Π·Ρ ΠΆΠ΅ Π²ΡΡΠ²ΡΡΡΡ Π²ΡΠ΅ Π½Π΅Π΄ΠΎΡΡΠ°ΡΠΊΠΈ ΠΊΠΎΠ½ΡΡΡΡΠΊΡΠΈΠΈ, ΠΊΠΎΡΠΎΡΡΠ΅ Π»Π΅Π³ΡΠ΅ ΡΡΡΡΠ°Π½ΠΈΡΡ Π½Π° ΡΡΠ°ΠΏΠ΅ ΠΏΡΠΎΠ΅ΠΊΡΠΈΡΠΎΠ²Π°Π½ΠΈΡ.
ΠΠΎΡΠ»Π΅ ΠΈΠ·Π³ΠΎΡΠΎΠ²Π»Π΅Π½ΠΈΡ ΠΌΠ°ΠΊΠ΅ΡΠ° Π»ΠΎΠ΄ΠΊΠΈ, ΠΏΠ΅ΡΠ΅Π½Π΅ΡΠΈΡΠ΅ ΡΠ°Π·ΠΌΠ΅ΡΠΊΡ Π½Π° Π»ΠΈΡΡΡ Π΄ΡΡΠ°Π»ΡΠΌΠΈΠ½ΠΈΡ. ΠΠΎΠΆΠ½ΠΈΡΠ°ΠΌΠΈ ΠΏΠΎ ΠΌΠ΅ΡΠ°Π»Π»Ρ Π°ΠΊΠΊΡΡΠ°ΡΠ½ΠΎ Π²ΡΡΠ΅ΠΆΡΡΠ΅ Π΄Π΅ΡΠ°Π»ΠΈ Π»ΠΎΠ΄ΠΊΠΈ. Π‘Π΄Π΅Π»Π°ΠΉΡΠ΅ Π½Π΅ΠΎΠ±Ρ ΠΎΠ΄ΠΈΠΌΡΡ ΠΏΠΎΠ΄Π³ΠΎΠ½ΠΊΡ ΠΈ ΠΏΠΎΠ΄Π³ΠΈΠ±ΠΊΡ.
ΠΡΠΎΡΠ²Π΅ΡΠ»ΠΈΡΠ΅ ΠΎΡΠ²Π΅ΡΡΡΠΈΡ ΠΏΠΎΠ΄ ΠΊΠ»Π΅ΠΏΠΊΠΈ Π² ΡΠ²Π°Ρ -ΡΡΡΠΊΠ°Ρ (ΠΏΡΠΈΠΏΡΡΠΊΠΈ Π½Π° Π»ΠΈΡΡ) ΠΊΠΎΡΠΏΡΡΠ° Π»ΠΎΠ΄ΠΊΠΈ. ΠΡΠ²Π΅ΡΡΡΠΈΡ Π΄ΠΎΠ»ΠΆΠ½Ρ Π±ΡΡΡ ΡΠ°ΡΠΏΠΎΠ»ΠΎΠΆΠ΅Π½Ρ Π² Π΄Π²Π° ΡΡΠ΄Π° Π² ΡΠ°Ρ ΠΌΠ°ΡΠ½ΠΎΠΌ ΠΏΠΎΡΡΠ΄ΠΊΠ΅ Ρ ΡΠ°Π³ΠΎΠΌ 20 ΠΌΠΌ. Π Π°ΡΡΡΠΎΡΠ½ΠΈΠ΅ ΠΌΠ΅ΠΆΠ΄Ρ ΡΡΠ΄Π°ΠΌΠΈ 15 ΠΌΠΌ. ΠΠ°Ρ Π»Π΅ΡΡ Π»ΠΈΡΡΠΎΠ² Π΄ΡΡΠ°Π»ΡΠΌΠΈΠ½ΠΈΡ Π² ΠΌΠ΅ΡΡΠ°Ρ ΡΡΡΠΊΠΎΠ² β 35 ΠΌΠΌ. ΠΡΠΏΠΎΠ»ΡΠ·ΡΠΉΡΠ΅ Π·Π°ΠΊΠ»Π΅ΠΏΠΊΠΈ Π΄ΠΈΠ°ΠΌΠ΅ΡΡΠΎΠΌ ΡΡΠ΅ΡΠΆΠ½Ρ 3 ΠΌΠΌ Π² ΠΏΠΎΠ΄Π²ΠΎΠ΄Π½ΠΎΠΉ ΡΠ°ΡΡΠΈ ΠΊΠΎΡΠΏΡΡΠ° β Ρ ΠΏΠΎΡΠ°ΠΉΠ½ΠΎΠΉ Π³ΠΎΠ»ΠΎΠ²ΠΊΠΎΠΉ, Π² ΠΎΡΡΠ°Π»ΡΠ½ΡΡ ΠΌΠ΅ΡΡΠ°Ρ β Ρ ΠΏΠΎΠ»ΡΠΊΡΡΠ³Π»ΠΎΠΉ. ΠΡΠΎΠΌΠ°ΠΆΡΡΠ΅ ΡΡΡΠΊΡΠ΅ΠΌΡΠ΅ ΠΏΠΎΠ²Π΅ΡΡ Π½ΠΎΡΡΠΈ Π³ΡΡΡΠΎΡΠ΅ΡΡΠΎΠΉ ΠΊΡΠ°ΡΠΊΠΎΠΉ Π΄Π»Ρ ΠΏΡΠΈΠ΄Π°Π½ΠΈΡ Π±ΠΎΠ»ΡΡΠ΅ΠΉ Π³Π΅ΡΠΌΠ΅ΡΠΈΡΠ½ΠΎΡΡΠΈ. ΠΠ°ΠΊΠ»Π΅ΠΏΠ°ΠΉΡΠ΅ ΠΊΠΎΡΠΏΡΡ.
Π‘ΠΌΠΎΠ½ΡΠΈΡΡΠΉΡΠ΅ Π²Π΄ΠΎΠ»Ρ Π²Π΅ΡΡ
Π½Π΅ΠΉ ΠΊΡΠΎΠΌΠΊΠΈ Π±ΠΎΡΡΠΎΠ² ΠΏΠ»Π°Π½ΡΠΈΡΠΈ ΠΈΠ· ΡΠΎΡΠ½ΠΎΠ²ΡΡ
Π΄ΠΎΡΠΎΠΊ 100×15 ΠΌΠΌ. ΠΡΠΈΠ±Π΅ΠΉΡΠ΅ ΠΏΠ»Π°Π½ΡΠΈΡΡ ΠΊ Π±ΠΎΡΡΠ°ΠΌ ΠΎΡΠΈΠ½ΠΊΠΎΠ²Π°Π½Π½ΡΠΌΠΈ Π³Π²ΠΎΠ·Π΄ΡΠΌΠΈ. ΠΡΠΈΠΊΠ»Π΅ΠΏΠ°ΠΉΡΠ΅ ΠΊ Π±ΠΎΡΡΠ°ΠΌ ΡΠ³ΠΎΠ»ΠΊΠΎΠ²ΡΠ΅ ΠΊΡΠΎΠ½ΡΡΠ΅ΠΉΠ½Ρ ΠΈ ΡΡΡΠ°Π½ΠΎΠ²ΠΈΡΠ΅ Π±Π°Π½ΠΊΠΈ (ΡΠΈΠ΄Π΅Π½ΠΈΡ) ΡΠ°ΠΊΠΆΠ΅ ΠΈΠ· ΡΠΎΡΠ½ΠΎΠ²ΠΎΠΉ ΠΎΠ±ΡΠ΅Π·Π½ΠΎΠΉ Π΄ΠΎΡΠΊΠΈ 30Ρ
250 ΠΌΠΌ.
ΠΠΎΠΊΡΠΎΠΉΡΠ΅ Π»ΠΎΠ΄ΠΊΡ Π³ΡΡΠ½ΡΠΎΠΌ ΠΈ ΠΊΡΠ°ΡΠΊΠΎΠΉ. ΠΠΎΠΆΠ΄ΠΈΡΠ΅ΡΡ ΠΏΠΎΠ»Π½ΠΎΠ³ΠΎ Π²ΡΡΡΡ
Π°Π½ΠΈΡ ΠΈ ΡΠΏΡΡΠΊΠ°ΠΉΡΠ΅ Π΅Π΅ Π½Π° Π²ΠΎΠ΄Ρ.
ΠΠ±ΡΠ°ΡΠΈΡΠ΅ Π²Π½ΠΈΠΌΠ°Π½ΠΈΠ΅
ΠΠ»ΡΠΌΠΈΠ½ΠΈΠ΅Π²ΡΠ΅ Π»ΠΎΠ΄ΠΊΠΈ Linder ΠΏΠΎ Π½ΠΈΠ·ΠΊΠΈΠΌ ΡΠ΅Π½Π°ΠΌ. Π ΠΏΡΠΎΠ΄Π°ΠΆΠ΅ ΡΠ²Π΅Π΄ΡΠΊΠΈΠ΅ ΠΌΠΎΡΠΎΡΠ½ΡΠ΅ ΠΈ ΠΌΠΎΡΠΎΡΠ½ΠΎ-Π³ΡΠ΅Π±Π½ΡΠ΅ Π»ΠΎΠ΄ΠΊΠΈ Linder ΠΈΠ· Π°Π»ΡΠΌΠΈΠ½ΠΈΡ ΡΠ°Π·Π»ΠΈΡΠ½ΡΡ ΠΊΠΎΠΌΠΏΠΎΠ½ΠΎΠ²ΠΎΠΊ: Π»ΠΎΠ΄ΠΊΠΈ ΠΠΈΠ΄Π΅Ρ Π΄Π»Ρ ΡΡΠ±Π°Π»ΠΊΠΈ ΠΈ ΡΠ΅ΠΌΠ΅ΠΉΠ½ΠΎΠ³ΠΎ ΠΎΡΡΡ Π°. ΠΡΠΎΠ΄Π°ΠΆΠ° ΠΈ Π΄ΠΎΡΡΠ°Π²ΠΊΠ°, Π½ΠΈΠ·ΠΊΠΈΠ΅ ΡΠ΅Π½Ρ Π½Π° ΠΌΠΎΡΠΎΡΠ½ΡΠ΅ Π»ΠΎΠ΄ΠΊΠΈ Linder, ΡΠ΅Ρ Π½ΠΈΡΠ΅ΡΠΊΠΈΠ΅ Ρ Π°ΡΠ°ΠΊΡΠ΅ΡΠΈΡΡΠΈΠΊΠΈ ΠΈ ΡΠΎΡΠΎΠ³ΡΠ°ΡΠΈΠΈ ΠΌΠΎΡΠΎΠ»ΠΎΠ΄ΠΎΠΊ Linder.
ΠΠΎΠ»Π΅Π·Π½ΡΠΉ ΡΠΎΠ²Π΅Ρ
ΠΡΠ»ΠΈ ΠΏΠ΅ΡΠ΅Π΄ ΠΠ°ΠΌΠΈ Π²ΡΡΠ°Π»Π° Π·Π°Π΄Π°ΡΠ° ΠΊΡΠΏΠΈΡΡ Π°Π»ΡΠΌΠΈΠ½ΠΈΠ΅Π²ΡΡ Π»ΠΎΠ΄ΠΊΡ, ΡΠΎ ΠΌΡ Π²ΡΠ΅Π³Π΄Π° Π³ΠΎΡΠΎΠ²Ρ ΠΏΡΠ΅Π΄Π»ΠΎΠΆΠΈΡΡ ΠΠ°ΠΌ Π°Π»ΡΠΌΠΈΠ½ΠΈΠ΅Π²ΡΠ΅ Π»ΠΎΠ΄ΠΊΠΈ ΠΎΡ ΠΈΠ·Π²Π΅ΡΡΠ½ΡΡ ΠΏΡΠΎΠΈΠ·Π²ΠΎΠ΄ΠΈΡΠ΅Π»Π΅ΠΉ ΡΠΎ Π²ΡΠ΅Π³ΠΎ ΠΌΠΈΡΠ°. Π Π½Π΅ Π²Π°ΠΆΠ½ΠΎ, Ρ ΠΎΡΠΈΡΠ΅ ΠΡ ΡΠΏΠΎΡΡΠΈΠ²Π½ΡΡ Π»ΠΎΠ΄ΠΊΡ ΠΈΠ»ΠΈ Π»ΠΎΠ΄ΠΊΡ Π΄Π»Ρ ΡΡΠ±Π°Π»ΠΊΠΈ, ΠΎΡ ΠΎΡΡ. Π Π½Π°ΡΠ΅ΠΌ Π°ΡΡΠΎΡΡΠΈΠΌΠ΅Π½ΡΠ΅ ΠΏΡΠ΅Π΄ΡΡΠ°Π²Π»Π΅Π½Ρ Π°Π»ΡΠΌΠΈΠ½ΠΈΠ΅Π²ΡΠ΅ Π»ΠΎΠ΄ΠΊΠΈ, ΠΌΠΎΡΠΎΡΠ½ΡΠ΅ Π»ΠΎΠ΄ΠΊΠΈ Π° ΡΠ°ΠΊΠΆΠ΅ Π»ΠΎΠ΄ΠΊΠΈ ΠΏΠ»Π°ΡΡΠΈΠΊΠΎΠ²ΡΠ΅.
Π‘Π²ΡΠ·Π°Π½Π½Π°Ρ ΡΡΠ°ΡΡΡ
Π‘ΡΠ°ΡΠ°Ρ Π»ΠΎΠ΄ΠΊΠ° — ΠΈΠ΄Π΅ΠΈ Π΄Π»Ρ Π΄ΠΈΠ·Π°ΠΉΠ½Π° ΡΠ°Π΄Π°
ΠΡΡΠΎΡΠ½ΠΈΠΊΠΈ:
- Π°Π»ΡΠΌΠΈΠ½ΠΈΠ΅Π²Π°Ρ Π»ΠΎΠ΄ΠΊΠ° ΡΠ΅ΡΡΠ΅ΠΆΠΈ
ΠΠΎΡΡΡΠΎΠΈΡΡ ΠΌΠΎΡΠΎΡΠ½ΡΡ Π»ΠΎΠ΄ΠΊΡ ΡΠ²ΠΎΠΈΠΌΠΈ ΡΡΠΊΠ°ΠΌΠΈ β Π΄ΠΎΠ²ΠΎΠ»ΡΠ½ΠΎ Ρ Π»ΠΎΠΏΠΎΡΠ½ΠΎΠ΅ Π·Π°Π½ΡΡΠΈΠ΅. ΠΠΎΠ·ΠΌΠΎΠΆΠ½ΠΎ, ΠΎΠ½ΠΎ Π·Π°ΠΉΠΌΠ΅Ρ Ρ Π²Π°Ρ Π½Π΅ ΠΎΠ΄ΠΈΠ½ ΠΌΠ΅ΡΡΡ. ΠΠΎ Π²Π°ΡΠ΅ ΡΠ΅ΡΠΏΠ΅Π½ΠΈΠ΅ ΠΈ ΡΡΡΠ΄ΠΎΠ»ΡΠ±ΠΈΠ΅ Π±ΡΠ΄Π΅Ρ Π²ΠΎΠ·Π½Π°Π³ΡΠ°ΠΆΠ΄Π΅Π½ΠΎ. Π’Π°ΠΊ ΡΡΠΎ ΠΆΠ΅ Π½Π°Π΄ΠΎ Π΄Π»Ρ ΡΡΡΠΎΠΈΡΠ΅Π»ΡΡΡΠ²Π° Π»ΠΎΠ΄ΠΊΠΈ?

ΠΠ½ΡΡΡΡΠΊΡΠΈΡ
ΠΠ»Ρ Π½Π°ΡΠ°Π»Π° ΡΠ΄Π΅Π»Π°ΠΉΡΠ΅ Π»Π΅ΠΊΠ°Π»Π°. Π‘Π΅ΠΉΡΠ°Ρ Π΅ΡΡΡ Π² ΠΈΠ½ΡΠ΅ΡΠ½Π΅ΡΠ΅ ΡΠΏΠ΅ΡΠΈΠ°Π»ΡΠ½ΡΠ΅ ΠΏΡΠΎΠ³ΡΠ°ΠΌΠΌΠΊΠΈ, ΠΊΠΎΡΠΎΡΡΠ΅ ΠΏΠΎΠΌΠΎΠ³ΡΡ Π²Π°ΠΌ Π² ΡΡΠΎΠΌ. ΠΠΎΡΡΠ΅Π½Π½ΡΠΉ ΠΊΠΎΡΠΏΡΡ ΠΎΡΠΌΠ°ΡΡΡΠ°Π±ΠΈΡΡΠΉΡΠ΅ Π΄ΠΎ Π½ΡΠΆΠ½ΡΡ ΡΠ°Π·ΠΌΠ΅ΡΠΎΠ².ΠΠ°Π»ΡΡΠ΅ ΡΠ°ΡΡΡΠΈΡΠ°ΠΉΡΠ΅ ΠΈ ΠΏΡΠΈΠΎΠ±ΡΠ΅ΡΠΈΡΠ΅ Π½Π΅ΠΎΠ±Ρ ΠΎΠ΄ΠΈΠΌΡΠ΅ ΠΌΠ°ΡΠ΅ΡΠΈΠ°Π»Ρ.
ΠΠ°ΡΠΈΠ½Π°ΠΉΡΠ΅ ΡΠ°Π±ΠΎΡΡ ΡΠΎ ΡΠΊΠ»Π΅ΠΈΠ²Π°Π½ΠΈΡ Π»ΠΈΡΡΠΎΠ² ΡΠ°Π½Π΅ΡΡ. ΠΠ°ΡΠ΅ΠΌ ΠΏΠΎ Π·Π°Π³ΠΎΡΠΎΠ²Π»Π΅Π½Π½ΡΠΌ Π»Π΅ΠΊΠ°Π»Π°ΠΌ Π²ΡΡΠ΅Π·Π°ΠΉΡΠ΅ Π΄Π΅ΡΠ°Π»ΠΈ Π±ΠΎΡΡΠΎΠ² ΠΈ Π΄Π½ΠΈΡΠ°. ΠΠ»Ρ ΡΡΠ°Π½ΡΠ° Π·Π°Π³ΠΎΡΠΎΠ²ΡΡΠ΅ Π΄ΡΠ±ΠΎΠ²ΡΡ Π΄ΠΎΡΠΊΡ. ΠΡΡΠ΅ΠΆΡΡΠ΅ ΠΈΠ· Π½Π΅Π΅ Π΄Π΅ΡΠ°Π»ΠΈ ΡΡΠ°Π½ΡΠ° ΠΈ ΡΠΊΠ»Π΅ΠΉΡΠ΅ ΠΏΠΎ ΡΡ Π΅ΠΌΠ΅: ΡΠ°Π½Π΅ΡΠ° (Π½Π°ΡΡΠΆΠ½ΡΠΉ ΡΠ»ΠΎΠΉ 9 ΠΌΠΌ), ΡΠ»ΠΎΠΉ ΡΡΠ΅ΠΊΠ»ΠΎΡΠΊΠ°Π½ΠΈ, Π΄ΡΠ±, ΡΠ»ΠΎΠΉ ΡΡΠ΅ΠΊΠ»ΠΎΡΠΊΠ°Π½ΠΈ, ΡΠ°Π½Π΅ΡΠ° (Π²Π½ΡΡΡΠ΅Π½Π½ΠΈΠΉ ΡΠ»ΠΎΠΉ 7 ΠΌΠΌ).ΠΠ°Π»ΡΡΠ΅ ΠΏΠ΅ΡΠ΅Ρ ΠΎΠ΄ΠΈΡΠ΅ ΠΊ ΠΈΠ·Π³ΠΎΡΠΎΠ²Π»Π΅Π½ΠΈΡ ΡΠΏΠ°Π½Π³ΠΎΡΡΠΎΠ². ΠΡΡΠ΅ΠΆΡΡΠ΅ Π΄Π΅ΡΠ°Π»ΠΈ, ΡΠΊΠ»Π΅ΠΉΡΠ΅, Π·Π°Π²Π΅ΡΠ½ΠΈΡΠ΅ ΡΡΡΡΠΏΠ°ΠΌΠΈ.
ΠΠ΅ΡΠ΅Ρ ΠΎΠ΄ΠΈΡΠ΅ ΠΊ ΡΠ±ΠΎΡΠΊΠ΅ ΠΊΠΎΡΠΏΡΡΠ°. ΠΠ΄Π΅ΡΡ Π²Π°ΠΌ ΠΏΠΎΠ½Π°Π΄ΠΎΠ±ΠΈΡΡΡ ΠΏΠΎΠΌΠΎΡΠ½ΠΈΠΊ, ΠΏΠΎΡΠΎΠΌΡ ΡΡΠΎ ΠΎΠ΄Π½ΠΎΠΌΡ ΡΠ°ΠΊΡΡ ΡΠ°Π±ΠΎΡΡ Π½Π΅ ΠΎΡΠΈΠ»ΠΈΡΡ, ΡΠ°ΠΊ ΠΊΠ°ΠΊ Π΄Π΅ΡΠ°Π»ΠΈ ΠΎΡΠ΅Π½Ρ Π±ΠΎΠ»ΡΡΠΈΠ΅.
ΠΠΎΡΠ»Π΅ ΡΠ±ΠΎΡΠΊΠΈ ΡΡΠ°ΡΠ΅Π»ΡΠ½ΠΎ ΠΏΡΠΎΠΊΠ»Π΅ΠΉΡΠ΅ Π²ΡΠ΅ ΡΠ²Ρ ΡΡΠ΅ΠΊΠ»ΠΎΡΠΊΠ°Π½ΡΡ ΠΈ Π²ΠΊΠ»Π΅ΠΉΡΠ΅ ΡΠΏΠ°Π½Π³ΠΎΡΡΡ. Π‘Π»Π΅Π΄ΠΈΡΠ΅, ΡΡΠΎΠ±Ρ ΠΏΡΠΈ ΡΡΡΠ°Π½ΠΎΠ²ΠΊΠ΅ ΡΠΏΠ°Π½Π³ΠΎΡΡΠΎΠ² Π½Π΅ ΠΏΠΎΠ»ΡΡΠΈΠ»ΠΎΡΡ ΠΏΠ΅ΡΠ΅ΠΊΠΎΡΠ°, ΠΈΠ½Π°ΡΠ΅ ΠΎΠ΄ΠΈΠ½ ΠΈΠ· Π±ΠΎΡΡΠΎΠ² ΠΌΠΎΠΆΠ΅Ρ Π²ΡΠ΄Π°Π²ΠΈΡΡΡΡ Π½Π°ΡΡΠΆΡ.Π‘Π»Π΅Π΄ΡΡΡΠΈΠΉ ΡΡΠ°ΠΏ β ΡΡΡΠ°Π½ΠΎΠ²ΠΊΠ° ΠΏΡΠΈΠ²Π°Π»ΡΠ½ΠΎΠ³ΠΎ Π±ΡΡΡΠ°. Π Π·Π°Π³ΠΎΡΠΎΠ²Π»Π΅Π½Π½ΡΡ Π΄ΡΠ±ΠΎΠ²ΡΡ ΡΠ΅ΠΉΠΊΠ°Ρ Π·Π°ΡΠ°Π½Π΅Π΅ ΠΏΡΠΎΡΠ²Π΅ΡΠ»ΠΈΡΠ΅ ΠΏΠΎ Π²ΡΠ΅ΠΉ Π΄Π»ΠΈΠ½Π΅ ΠΎΡΠ²Π΅ΡΡΡΠΈΡ Π΄Π»Ρ ΡΡΡΡΠΏΠΎΠ². ΠΡΠ΅ΠΏΠΈΡΠ΅ ΡΠ΅ΠΉΠΊΡ Π½Π° ΡΠΏΠΎΠΊΡΠΈΠ΄Π½ΡΡ ΡΠΌΠΎΠ»Ρ ΠΈ ΡΡΡΡΠΏΡ, Π½Π°ΡΠΈΠ½Π°Ρ Ρ Π½ΠΎΡΠ° Π»ΠΎΠ΄ΠΊΠΈ. Π Π΄Π΅Π½Ρ ΡΡΡΠ°Π½Π°Π²Π»ΠΈΠ²Π°ΠΉΡΠ΅ ΠΏΠΎ ΠΎΠ΄Π½ΠΎΠΌΡ ΡΠ»ΠΎΡ ΡΠ΅Π΅ΠΊ. ΠΠ° ΠΏΡΠΎΡΡΠΆΠ΅Π½ΠΈΠΈ ΡΠ»Π΅Π΄ΡΡΡΠ΅Π³ΠΎ Π΄Π½Ρ Β ΡΡΡΡΠΏΡ Π²ΡΠΊΡΡΡΠΈΠ²Π°ΠΉΡΠ΅ ΠΈ Π΄ΠΎΠ±Π°Π²Π»ΡΠΉΡΠ΅ ΡΠ΅ΠΉΠΊΠΈ. Π’Π°ΠΊΠΈΠΌ ΠΎΠ±ΡΠ°Π·ΠΎΠΌ Π·Π°ΠΊΡΠ΅ΠΏΠ»ΡΠΉΡΠ΅ ΡΡΠΈ ΡΠ»ΠΎΡ ΡΠ΅Π΅ΠΊ Π΄Π»Ρ ΠΏΡΠΈΠ²Π°Π»ΡΠ½ΠΈΠΊΠ°. ΠΠ°ΠΆΠ΄ΡΡ ΠΏΠΎΡΠ»Π΅Π΄ΡΡΡΡΡ ΡΠ΅ΠΉΠΊΡ ΡΡΡΠ°Π½Π°Π²Π»ΠΈΠ²Π°ΠΉΡΠ΅, ΡΠ΄Π²ΠΈΠ½ΡΠ² Π²Π²Π΅ΡΡ Π½Π° 1 ΡΠΌ.Β ΠΠΎΡΠ»Π΅ ΡΠΎΠ³ΠΎ, ΠΊΠ°ΠΊ ΠΏΡΠΎΠΈΠ·ΠΎΠΉΠ΄Π΅Ρ ΠΏΠΎΠ»ΠΈΠΌΠ΅ΡΠΈΠ·Π°ΡΠΈΡ ΡΠΌΠΎΠ»Ρ, ΡΠ΄Π°Π»ΠΈΡΠ΅ ΠΏΠΎΡΠ»Π΅Π΄Π½ΠΈΠ΅ ΡΡΡΡΠΏΡ ΠΈ ΠΏΡΠΈΠ΄Π°ΠΉΡΠ΅ ΠΏΡΠ°Π²ΠΈΠ»ΡΠ½ΡΡ ΡΠΎΡΠΌΡ ΠΏΡΠΈΠ²Π°Π»ΡΠ½ΠΎΠΌΡ Π±ΡΡΡΡ Ρ ΠΏΠΎΠΌΠΎΡΡΡ ΡΡΠ±Π°Π½ΠΊΠ° ΠΈ Π»Π΅Π½ΡΠΎΡΠ½ΠΎΠΉ ΡΠ»ΠΈΡΠΎΠ²Π°Π»ΡΠ½ΠΎΠΉ ΠΌΠ°ΡΠΈΠ½Ρ.
ΠΠ°Π»ΡΡΠ΅ ΡΡΡΠ°Π½ΠΎΠ²ΠΈΡΠ΅ ΠΏΠ°Π»ΡΠ±Ρ. Π ΠΊΠΎΡΠΌΠ΅ ΠΏΡΠ΅Π΄ΡΡΠΌΠΎΡΡΠΈΡΠ΅ Π΄Π²Π° ΡΡΠ½Π΄ΡΠΊΠ° Π΄Π»Ρ Π°ΠΊΠΊΡΠΌΡΠ»ΡΡΠΎΡΠ° ΠΈ Π΄ΡΡΠ³ΠΈΡ ΠΏΡΠΈΠ½Π°Π΄Π»Π΅ΠΆΠ½ΠΎΡΡΠ΅ΠΉ. ΠΡΠΈ ΡΡΡΠ°Π½ΠΎΠ²ΠΊΠ΅ Π² ΡΠΏΠΎΠΊΡΠΈΠ΄Π½ΡΡ ΡΠΌΠΎΠ»Ρ Π΄ΠΎΠ±Π°Π²ΡΡΠ΅ Π°ΡΡΠΎΡΠΈΠ», ΡΡΠΎΠ±Ρ ΡΠ²Π΅Π»ΠΈΡΠΈΡΡ ΠΏΡΠΎΡΠ½ΠΎΡΡΡ. Π Π½ΠΎΡΠΎΠ²ΠΎΠΉ ΡΠ°ΡΡΠΈ ΠΏΠ°Π»ΡΠ±Ρ ΡΡΡΠ°Π½ΠΎΠ²ΠΈΡΠ΅ ΡΠΊΠΎΡΠ½ΡΠΉ ΡΡΠΈΠΊ.
ΠΡΠ΅ ΡΠ°Π· Π²ΡΠ΅ Ρ ΠΎΡΠΎΡΠΎ Π·Π°ΡΠΏΠ°ΠΊΠ»ΡΠΉΡΠ΅ ΠΈ Π·Π°ΡΠΊΡΡΡΡΠ΅. ΠΠ° Π²Π΅ΡΡ Π½ΡΡ ΡΠ°ΡΡΡ Π±ΠΎΡΡΠΎΠ² ΠΈ ΠΏΠ°Π»ΡΠ±Ρ ΠΊΠ»Π΅ΠΉΡΠ΅ ΡΡΠ΅ΠΊΠ»ΠΎΡΠΊΠ°Π½Ρ. Π Π°Π±ΠΎΡΡ ΠΏΡΠΎΠ²ΠΎΠ΄ΠΈΡΠ΅ ΠΎΡΠ²Π΅ΡΠ΄ΠΈΡΠ΅Π»Π΅ΠΌ ΠΡΠ°Π» 45Π. Π’ΠΎΠ³Π΄Π° Ρ Π²Π°Ρ Π±ΡΠ΄Π΅Ρ Π΄ΠΎΡΡΠ°ΡΠΎΡΠ½ΠΎ Π²ΡΠ΅ΠΌΠ΅Π½ΠΈ, ΡΡΠΎΠ±Ρ ΡΠ°Π·Π³Π»Π°Π΄ΠΈΡΡ Π²ΡΠ΅ ΡΠΊΠ»Π°Π΄ΠΊΠΈ ΠΈ Π²ΡΠ΄Π°Π²ΠΈΡΡ ΠΈΠ·-ΠΏΠΎΠ΄ ΡΡΠ΅ΠΊΠ»ΠΎΡΠΊΠ°Π½ΠΈ ΠΏΡΠ·ΡΡΡΠΊΠΈ Π²ΠΎΠ·Π΄ΡΡ Π°.
ΠΠ°Π»ΡΡΠ΅ ΠΏΠ΅ΡΠ΅Π²Π΅ΡΠ½ΠΈΡΠ΅ Π»ΠΎΠ΄ΠΊΡ, Π΅ΡΠ΅ ΡΠ°Π· Π²ΡΠ΅ Π·Π°ΡΠΏΠ°ΠΊΠ»ΡΠΉΡΠ΅ ΠΈ Π·Π°ΡΠΊΡΡΡΡΠ΅ ΠΈ ΠΎΠΊΠ»Π΅ΠΉΡΠ΅ ΡΡΠ΅ΠΊΠ»ΠΎΡΠΊΠ°Π½ΡΡ Π΄Π½ΠΈΡΠ΅.
Π’Π΅ΠΏΠ΅ΡΡ ΡΡΡΠ°Π½ΠΎΠ²ΠΈΡΠ΅ ΡΠ΅Π΄Π°Π½Ρ. ΠΡ ΡΠ΅Ρ Π½ΠΎΠ»ΠΎΠ³ΠΈΡ ΠΈΠ·Π³ΠΎΡΠΎΠ²Π»Π΅Π½ΠΈΡ ΠΈ ΡΡΡΠ°Π½ΠΎΠ²ΠΊΠΈ Π°Π½Π°Π»ΠΎΠ³ΠΈΡΠ½Π° ΡΡΡΠ°Π½ΠΎΠ²ΠΊΠ΅ ΠΏΡΠΈΠ²Π°Π»ΡΠ½ΠΎΠ³ΠΎ Π±ΡΡΡΠ°.
ΠΠΎΡΠ»Π΅ ΡΡΠΎΠ³ΠΎ ΠΏΡΠΎΠΈΠ·Π²Π΅Π΄ΠΈΡΠ΅ Π³ΡΡΠ½ΡΠΎΠ²ΠΊΡ, Π° ΠΏΠΎΡΠΎΠΌ ΠΏΠΎΠΊΡΠ°ΡΠΊΡ Π»ΠΎΠ΄ΠΊΠΈ. ΠΠΎΡΠ»Π΅ Π²ΡΠΏΠΎΠ»Π½Π΅Π½ΠΈΡ ΡΡΠΈΡ ΡΠ°Π±ΠΎΡ ΠΏΠ΅ΡΠ΅Ρ ΠΎΠ΄ΠΈΡΠ΅ ΠΊ ΡΡΡΠ°Π½ΠΎΠ²ΠΊΠ΅ ΡΡΠ΅ΠΊΠ»Π°, ΠΏΡΠΈΠ±ΠΎΡΠΎΠ², ΡΠ»Π΅ΠΊΡΡΠΎΠ΄Π²ΠΈΠ³Π°ΡΠ΅Π»Ρ.
www.kakprosto.ru
ΠΠΎΠΆΠ½ΠΎ Π»ΠΈ ΡΠ΄Π΅Π»Π°ΡΡ Π»ΠΎΠ΄ΠΊΡ ΠΈΠ»ΠΈ ΠΊΠ°ΡΠ΅Ρ ΠΈΠ· ΡΠ°Π½Π΅ΡΡ ΡΠ²ΠΎΠΈΠΌΠΈ ΡΡΠΊΠ°ΠΌΠΈ
ΠΡΠ΅ΠΆΠ΄Π΅ Π²ΡΠ΅Π³ΠΎ, Π΄Π°Π²Π°ΠΉΡΠ΅ ΡΠ°Π·Π±Π΅ΡΡΠΌΡΡ, ΡΡΠΎ Π½Π°Π·ΡΠ²Π°ΡΡ ΠΌΠΎΡΠΎΡΠ½ΠΎΠΉ Π»ΠΎΠ΄ΠΊΠΎΠΉ, Π° ΡΡΠΎ β ΠΊΠ°ΡΠ΅ΡΠΎΠΌ, Π²Π΅Π΄Ρ Π΅ΡΠ»ΠΈ Π΄Π²ΠΈΠ³Π°ΡΠ΅Π»Ρ Π±ΡΠ΄Π΅Ρ ΡΡΡΠΌΠ½ΡΠΌ, ΡΠΎ ΡΡΠΎ ΠΊΠ»Π°ΡΡΠΈΡΠΈΡΠΈΡΡΠ΅ΡΡΡ, ΠΊΠ°ΠΊ Π»ΠΎΠ΄ΠΊΠ°, Π° Π΅ΡΠ»ΠΈ Π΅Π³ΠΎ Π·Π°ΡΠΈΠΊΡΠΈΡΠΎΠ²Π°ΡΡ Π½Π°ΠΌΠ΅ΡΡΠ²ΠΎ, ΡΠΎ ΡΠ°ΠΊΠΎΠ΅ ΠΏΠ»Π°Π²ΡΡΠ΅Π΄ΡΡΠ²ΠΎ ΠΈΠΌΠ΅Π½ΡΠ΅ΡΡΡ ΠΊΠ°ΡΠ΅ΡΠΎΠΌ. ΠΠ°ΠΊ Π²ΠΈΠ΄ΠΈΡΠ΅, ΠΎΡΠ»ΠΈΡΠΈΡ Π½Π΅ ΠΏΡΠΈΠ½ΡΠΈΠΏΠΈΠ°Π»ΡΠ½ΡΠ΅, ΠΏΠΎΡΡΠΎΠΌΡ ΡΠ΅ΡΡ ΠΏΠΎΠΉΠ΄ΡΡ ΠΏΡΠΎΡΡΠΎ ΠΎ ΡΠ°Π½Π΅ΡΠ½ΠΎΠΉ ΠΏΠ»Π°Π²Π°ΡΡΠ΅ΠΉ ΠΊΠΎΠ½ΡΡΡΡΠΊΡΠΈΠΈ, Π° Π²ΠΎΠΏΡΠΎΡΡ ΠΎ ΡΡΠ°ΡΠΈΠΎΠ½Π°ΡΠ½ΠΎΡΡΠΈ ΠΊΡΠ΅ΠΏΠ΅ΠΆΠ° ΠΌΠΎΡΠΎΡΠ° Π²Ρ ΡΠΆΠ΅ ΡΠ΅ΡΠΈΡΠ΅ ΡΠ°ΠΌΠΎΡΡΠΎΡΡΠ΅Π»ΡΠ½ΠΎ.
Π ΡΠΎΠΌΡ ΠΆΠ΅, ΠΌΡ Π΅ΡΡ ΠΏΠΎΡΠΌΠΎΡΡΠΈΠΌ Π²ΠΈΠ΄Π΅ΠΎ Π² ΡΡΠΎΠΉ ΡΡΠ°ΡΡΠ΅ Π½Π° ΡΠ΅ΠΌΡ ΠΏΠ»Π°Π²Π°ΡΡΠΈΡ ΡΠ°ΠΌΠΎΡ ΠΎΠ΄Π½ΡΡ ΡΡΠ΅Π΄ΡΡΠ².
Π€Π°Π½Π΅ΡΠ½Π°Ρ Π»ΠΎΠ΄ΠΊΠ°, ΠΈΠ· ΠΊΠΎΡΠΎΡΠΎΠΉ ΠΌΠΎΠΆΠ½ΠΎ ΡΠ΄Π΅Π»Π°ΡΡ ΠΊΠ°ΡΠ΅ΡΠ§ΡΠΎ ΠΌΡ Π±ΡΠ΄Π΅ΠΌ ΠΊΠΎΠ½ΡΡΡΡΠΈΡΠΎΠ²Π°ΡΡ
ΠΠΎΠ½ΡΡΡΡΠΊΡΠΈΡ Π½Π°ΡΠ΅ΠΉ Π»ΠΎΠ΄ΠΊΠΈΠΠ»ΠΎΡΠΊΠΎΠ΄ΠΎΠ½Π½ΡΠ΅ ΠΏΠ»Π°Π²Π°ΡΡΠΈΠ΅ ΡΡΠ΅Π΄ΡΡΠ²Π° ΡΠΈΠΏΠ° Β«Π΄ΠΆΠΎΠ½Π±ΠΎΡΒ» ΠΎΡΠ΅Π½Ρ ΡΠ°ΡΠΏΡΠΎΡΡΡΠ°Π½Π΅Π½Π½Ρ Π½Π° Π²ΠΎΠ΄Π½ΡΡ ΠΌΠ°Π³ΠΈΡΡΡΠ°Π»ΡΡ Π‘Π΅Π²Π΅ΡΠ½ΠΎΠΉ ΠΠΌΠ΅ΡΠΈΠΊΠΈ, ΡΡΠΈΡΠ°ΡΡΡΡ ΠΎΡΠ΅Π½Ρ ΡΠ΄ΠΎΠ±Π½ΡΠΌΠΈ ΠΈ ΠΏΡΠ°ΠΊΡΠΈΡΠ½ΡΠΌΠΈ, Π½ΠΎ Π² Π½Π°ΡΠΈΡ ΡΠ΅Π³ΠΈΠΎΠ½Π°Ρ ΠΏΠΎΡΠ΅ΠΌΡ-ΡΠΎ Π΄ΠΎ ΡΠΈΡ ΠΏΠΎΡ Π½Π΅ ΠΏΠΎΠ»ΡΡΠΈΠ»ΠΈ ΡΠΈΡΠΎΠΊΠΎΠ³ΠΎ ΠΏΡΠΈΠ·Π½Π°Π½ΠΈΡ. Π Π²ΠΎΡ, Π½Π΅ΡΠΌΠΎΡΡΡ Π½Π° ΡΠΎ, ΡΡΠΎ Ρ Π½ΠΈΡ ΠΎΡΠ½ΠΎΡΠΈΡΠ΅Π»ΡΠ½ΠΎ Π½ΠΈΠ·ΠΊΠ°Ρ ΡΠ΅Π½Π° ΠΏΡΠΈ ΠΎΡΠ»ΠΈΡΠ½ΠΎΠΉ ΠΏΠ»Π°Π²ΡΡΠ΅ΡΡΠΈ ΠΈ ΠΏΡΠ°ΠΊΡΠΈΡΠ½ΠΎΡΡΠΈ, ΠΈΡ Π²Π½Π΅ΡΠ½ΠΈΠΉ Π²ΠΈΠ΄ ΠΏΠΎΡΠ΅ΠΌΡ-ΡΠΎ ΠΎΡΠΏΡΠ³ΠΈΠ²Π°Π΅Ρ ΠΏΠΎΠΊΡΠΏΠ°ΡΠ΅Π»Π΅ΠΉ.
Π’Π΅ΠΌ Π½Π΅ ΠΌΠ΅Π½Π΅Π΅, Π΄Π°Π²Π°ΠΉΡΠ΅ ΠΏΠΎΡΠΌΠΎΡΡΠΈΠΌ, ΠΊΠ°ΠΊ ΠΏΠΎΡΡΡΠΎΠΈΡΡ Π»ΠΎΠ΄ΠΊΡ ΠΈΠ»ΠΈ ΠΊΠ°ΡΠ΅Ρ ΡΠ°ΠΊΠΎΠ³ΠΎ ΡΠΈΠΏΠ° ΠΈΠ· ΡΠ°Π½Π΅ΡΡ ΠΈΠ»ΠΈ ΠΎΡΠ³ΠΎΠ»ΠΈΡΠ° ΠΈ Π΄ΠΎΡΠΎΠΊ.
ΠΠ°ΡΠΈΠ°Π½ΡΡ ΠΊΠΎΡΠΏΡΡΠ° Π»ΠΎΠ΄ΠΊΠΈ
ΠΠ°ΡΡΠΆΠ½ΡΠ΅ ΠΊΠΈΠ»ΠΈ- Π ΠΊΠ°ΡΠ΅ΡΡΠ²Π΅ ΠΌΠ°ΡΠ΅ΡΠΈΠ°Π»Π° Π΄Π»Ρ ΠΎΠ±ΡΠΈΠ²ΠΊΠΈ Π±ΡΠ΄Π΅ΠΌ ΠΈΡΠΏΠΎΠ»ΡΠ·ΠΎΠ²Π°ΡΡ ΡΡΡΠΎΠΈΡΠ΅Π»ΡΠ½ΡΡ ΡΠ°Π½Π΅ΡΡ Π€Π ΠΈΠ»ΠΈ Π€Π‘Π€ ΡΠΎΠ»ΡΠΈΠ½ΠΎΠΉ 6 ΠΌΠΌ, Π° ΡΠ°ΠΊΠΆΠ΅ ΠΌΠΎΠΆΠ½ΠΎ Π΄Π»Ρ ΡΡΠΎΠ³ΠΎ ΠΈΡΠΏΠΎΠ»ΡΠ·ΠΎΠ²Π°ΡΡ Π°Π²ΠΈΠ°ΡΠΈΠΎΠ½Π½ΡΡ ΠΠ‘-1, ΠΠ-1, ΠΠΠ‘-1. Π’Π°ΠΊΠΆΠ΅, Π΄Π»Ρ Π½Π°ΡΡΠΆΠ½ΠΎΠΉ ΠΎΠ±ΡΠΈΠ²ΠΊΠΈ ΠΌΠΎΠΆΠ½ΠΎ ΠΈΡΠΏΠΎΠ»ΡΠ·ΠΎΠ²Π°ΡΡ 3-Ρ ΠΌΠΈΠ»Π»ΠΈΠΌΠ΅ΡΡΠΎΠ²ΡΠΉ ΡΡΠ΅ΠΊΠ»ΠΎΡΠ΅ΠΊΡΡΠΎΠ»ΠΈΡ ΠΈΠ»ΠΈ ΠΎΡΠ³ΠΎΠ»ΠΈΡ. (ΡΠΌ. ΡΠ°ΠΊΠΆΠ΅ ΡΡΠ°ΡΡΡ ΠΠ°ΠΊ ΠΏΠΎΡΡΡΠΎΠΈΡΡ ΠΊΠ°Π½ΠΎΡ ΠΈΠ· ΡΠ°Π½Π΅ΡΡ ΡΠ²ΠΎΠΈΠΌΠΈ ΡΡΠΊΠ°ΠΌΠΈ)
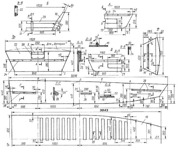
ΠΠ±ΠΎΠ·Π½Π°ΡΠ΅Π½ΠΈΠ΅ Π΄Π΅ΡΠ°Π»Π΅ΠΉ Π² ΡΠ°Π±Π»ΠΈΡΠ΅ Π½ΠΈΠΆΠ΅Β
| ΠΡΠΊΠ²Π° ΠΎΠ±ΠΎΠ·Π½Π°ΡΠ΅Π½ΠΈΡ Π½Π° ΡΡ Π΅ΠΌΠ΅ | ΠΠ°ΠΈΠΌΠ΅Π½ΠΎΠ²Π°Π½ΠΈΠ΅ Π΄Π΅ΡΠ°Π»ΠΈ | ΠΠΎΠ»ΠΈΡΠ΅ΡΡΠ²ΠΎ ΡΡΡΠΊ | ΠΠ°ΡΠ°ΠΌΠ΅ΡΡΡ Π² ΠΌΠΌ | ||
| ΠΠ»ΠΈΠ½Π° | Π¨ΠΈΡΠΈΠ½Π° | Π’ΠΎΠ»ΡΠΈΠ½Π° | |||
| Π | ΠΠΎΡΡ | 2 | 1800 | 305 | 25 |
| Π | ΠΠΎΡΠΌΠ° | 1 | 864 | 205 | 25 |
| Π | Π Π°ΡΠΏΠΎΡΠΊΠ° | 3 | 864 | 100 | 25 |
| Π | Π‘ΠΈΠ΄Π΅Π½ΡΠ΅ | 2 | 864 | 254 | 25 |
| Π | ΠΠ°Π»ΡΠ±Π° | 1 | 914 | 305 | 6 |
| Π | ΠΡΡΡΠΊΠΈ Π΄Π»Ρ ΡΠΈΠ΄Π΅Π½ΡΡ | 4 | 254 | 25 | 25 |
| Π | Π Π΅ΠΉΠΊΠ° ΡΠ΅ΡΠ΅ΡΠΊΠΈ | 8 | 1200 | 50 | 20 |
| Π | ΠΡΡΡΠΎΠΊ Π΄Π»Ρ ΠΏΠ°Π»ΡΠ±Ρ | 2 | 200 | 25 | 25 |
| Π | ΠΠ΅ΡΠ»ΠΎ (Π·Π°Π³ΠΎΡΠΎΠ²ΠΊΠ°) | 1 | 1200 | 140 | 35 |
| Π | Π ΡΡΠΊΠ° | 1 | 120 | β | 30 |
Β
Π Π°Π·ΠΌΠ΅ΡΡ ΠΈ ΡΠΈΡΠ»Π΅Π½Π½ΠΎΡΡΡ Π½ΡΠΆΠ½ΡΡ Π΄Π΅ΡΠ°Π»Π΅ΠΉ
- ΠΠΎΠΌΠΈΠΌΠΎ ΡΠ°Π½Π΅ΡΡ Π΄Π»Ρ ΡΠ΅Π°Π»ΠΈΠ·Π°ΡΠΈΠΈ ΠΏΡΠΎΠ΅ΠΊΡΠ° Π½Π°ΠΌ ΠΏΠΎΠ½Π°Π΄ΠΎΠ±ΠΈΡΡΡ ΠΎΠ±ΡΠ΅Π·Π½Π°Ρ Π΄ΠΎΡΠΊΠ° ΡΠΎΠ»ΡΠΈΠ½ΠΎΠΉ 25 ΠΌΠΌ, ΠΏΡΠΈΡΡΠΌ Π΅Ρ ΠΌΠΈΠ½ΠΈΠΌΠ°Π»ΡΠ½Π°Ρ ΡΠΈΡΠΈΠ½Π° ΠΌΠΎΠΆΠ΅Ρ Π±ΡΡΡ 305 ΠΌΠΌ, ΡΡΠΎΠ±Ρ ΡΠΎΠΎΡΠ²Π΅ΡΡΡΠ²ΠΎΠ²Π°ΡΡ ΠΏΠ°ΡΠ°ΠΌΠ΅ΡΡΠ°ΠΌ, ΡΠΊΠ°Π·Π°Π½Π½ΡΠΌ Π² ΡΠ°Π±Π»ΠΈΡΠ΅ Π²ΡΡΠ΅. ΠΠΎΠ½Π΅ΡΠ½ΠΎ, ΠΊΠ°ΡΠ΅ΡΠ° ΠΈΠ· ΡΠ°Π½Π΅ΡΡ ΡΠ²ΠΎΠΈΠΌΠΈ ΡΡΠΊΠ°ΠΌΠΈ Π½Π΅ ΠΌΠΎΠ³ΡΡ ΠΏΡΠ΅ΡΠ΅Π½Π΄ΠΎΠ²Π°ΡΡ Π½Π° ΠΏΡΠΈΡΠΈΡΠ»Π΅Π½ΠΈΠ΅ ΠΈΡ ΠΊ ΠΈΠ΄Π΅Π°Π»ΡΠ½ΡΠΌ ΠΏΠ»Π°Π²ΡΡΠ΅Π΄ΡΡΠ²Π°ΠΌ, Π½ΠΎ Ρ ΠΎΡΠΎΡΠ΅Π΅ ΡΡΠ΄Π½ΠΎ ΠΌΠΎΠΆΠ΅Ρ ΠΏΠΎΠ»ΡΡΠΈΡΡΡΡ Π²ΡΠ΅Π³Π΄Π°, Π΅ΡΠ»ΠΈ ΡΠ»Π΅Π΄ΠΎΠ²Π°ΡΡ Π½ΡΠΆΠ½ΠΎΠΉ ΠΈΠ½ΡΡΡΡΠΊΡΠΈΠΈ. (ΡΠΌ. ΡΠ°ΠΊΠΆΠ΅ ΡΡΠ°ΡΡΡ ΠΠ°ΠΊΠΈΠ΅ Π±ΡΠ²Π°ΡΡ ΡΠ°Π·ΠΌΠ΅ΡΡ Π»ΠΈΡΡΠ° ΡΠ°Π½Π΅ΡΡ )
- ΠΡΠ΅ Π΄Π΅ΡΠ°Π»ΠΈ ΠΎΠΏΠΈΡΡΠ²Π°Π΅ΠΌΠΎΠ³ΠΎ ΠΊΠ°ΡΠ΅ΡΠ° ΠΈΠΌΠ΅ΡΡ Π΄ΠΎΡΡΠ°ΡΠΎΡΠ½ΠΎ ΠΏΡΠΎΡΡΡΡ ΡΠΎΡΠΌΡ ΠΈ ΠΈΡ Π»Π΅Π³ΠΊΠΎ Π²ΡΡΠ΅Π·Π°ΡΡ, Π½ΠΎ, ΡΠ΅ΠΌ Π½Π΅ ΠΌΠ΅Π½Π΅Π΅, ΡΡΡΠ΅ΡΡΠ²ΡΠ΅Ρ ΡΠ΅ΡΡΡΠ·Π½Π°Ρ ΠΎΠΏΠ°ΡΠ½ΠΎΡΡΡ ΠΏΠΎΠ³ΡΠ΅ΡΠ½ΠΎΡΡΠΈ. Π£ΡΡΠΈΡΠ΅, ΡΡΠΎ Π΄Π°ΠΆΠ΅ ΠΎΠ΄ΠΈΠ½ Π»ΠΈΡΠ½ΠΈΠΉ ΠΈΠ»ΠΈ Π½Π°ΠΎΠ±ΠΎΡΠΎΡ, Π½Π΅Π΄ΠΎΡΡΠ°ΡΡΠΈΠΉ ΠΌΠΈΠ»Π»ΠΈΠΌΠ΅ΡΡ ΡΠΎΠΉ ΠΈΠ»ΠΈ ΠΈΠ½ΠΎΠΉ Π΄Π΅ΡΠ°Π»ΠΈ ΠΌΠΎΠΆΠ΅Ρ Π²ΡΠ·Π²Π°ΡΡ ΠΏΠ΅ΡΠ΅ΠΊΠΎΡ ΠΊΠΎΠ½ΡΡΡΡΠΊΡΠΈΠΈ ΠΈΠ»ΠΈ Π½Π΅ΡΡΡΠΊΠΎΠ²ΠΊΡ ΠΏΠΎ ΡΠ²Π°ΠΌ. ΠΠΎΡΡΠΎΠΌΡ, ΠΏΡΠΈ ΡΠ°ΡΠΏΠΈΠ»ΠΎΠ²ΠΊΠ΅ ΡΡΠ°ΡΠ΅Π»ΡΠ½ΠΎ ΠΏΡΠΈΠ΄Π΅ΡΠΆΠΈΠ²Π°ΠΉΡΠ΅ΡΡ ΡΠ°Π·ΠΌΠ΅ΡΠΊΠΈ, ΠΎΡΠΎΠ±Π΅Π½Π½ΠΎ, ΠΊΠΎΠ³Π΄Π° ΡΠ°Π±ΠΎΡΠ°Π΅ΡΠ΅ Π΄ΠΈΡΠΊΠΎΠ²ΠΎΠΉ ΠΏΠΈΠ»ΠΎΠΉ (ΡΠ»Π΅ΠΊΡΡΠΎΡΠΈΡΠΊΡΠ»ΡΡΠΊΠΎΠΉ), Π²Π΅Π΄Ρ Π·Π΄Π΅ΡΡ Π΄Π°ΠΆΠ΅ Π²Π°Ρ ΠΏΠΎΠ²ΠΎΡΠΎΡ Π³ΠΎΠ»ΠΎΠ²Ρ Π²ΠΎ Π²ΡΠ΅ΠΌΡ ΡΠ°ΡΠΏΠΈΠ»ΠΎΠ²ΠΊΠΈ ΠΌΠΎΠΆΠ΅Ρ ΠΏΠΎ ΠΈΠ½Π΅ΡΡΠΈΠΈ ΠΏΠΎΡΡΠ½ΡΡΡ Π·Π° ΡΠΎΠ±ΠΎΠΉ ΠΈ Π»ΠΈΠ½ΠΈΡ ΡΠ΅Π·Π°.
Π‘ΠΎΠ²Π΅Π΅Ρ. Π‘Π΅ΠΉΡΠ°Ρ Π½ΡΠΆΠ½ΠΎ Π²ΡΠ±ΡΠ°ΡΡ Π΄ΠΎΡΠΊΠΈ ΠΏΠΎ Π²ΠΈΠ΄Ρ Π΄ΡΠ΅Π²Π΅ΡΠΈΠ½Ρ ΠΈ Π΄Π»Ρ ΡΡΠΎΠ³ΠΎ, ΠΊΠ°ΠΊ ΠΏΡΠ°Π²ΠΈΠ»ΠΎ, ΠΈΡΠΏΠΎΠ»ΡΠ·ΡΡΡΡΡ Ρ Π²ΠΎΠΉΠ½ΡΠ΅ ΠΏΠΎΡΠΎΠ΄Ρ, ΡΠ°ΠΊΠΈΠ΅ ΠΊΠ°ΠΊ ΠΊΠ΅Π΄Ρ, Π»ΠΈΡΡΠ²Π΅Π½Π½ΠΈΡΠ°, Π΅Π»Ρ ΠΈ ΡΠΎΡΠ½Π°, Π½ΠΎ ΡΠ°ΡΠ΅ Π²ΡΠ΅Π³ΠΎ Π΄ΠΎΡΡΡΠΏΠ½Ρ Π΄Π²Π° ΠΏΠΎΡΠ»Π΅Π΄Π½ΠΈΡ .
ΠΠ΄Π΅ΡΡ ΠΎΠΏΡΡΡ ΠΆΠ΅ Π²ΠΎΠ·Π½ΠΈΠΊΠ°Π΅Ρ ΡΠΈΠ½Π΄ΡΠΎΠΌ Β«ΠΏΠ°Π»ΠΊΠΈ ΠΎ Π΄Π²ΡΡ ΠΊΠΎΠ½ΡΠ°Ρ Β», ΡΠ°ΠΊ ΠΊΠ°ΠΊ Π΅Π»Ρ Π±ΠΎΠ»ΡΡΠ΅ ΠΏΠΎΠ΄Ρ ΠΎΠ΄ΠΈΡ Π΄Π»Ρ ΠΎΠ±ΡΠΈΠ²ΠΊΠΈ ΠΈΠ·-Π·Π° Π±ΠΎΠ»Π΅Π΅ Π½ΠΈΠ·ΠΊΠΎΠΉ Π²ΠΎΠ΄ΠΎΠΏΠΎΠ³Π»ΠΎΡΠ°Π΅ΠΌΠΎΡΡΠΈ, Π½ΠΎ ΡΡΡΡΠΊΡΡΡΠ° Π΄Π΅ΡΠ΅Π²Π° ΡΠ°ΠΊΠΎΠ²Π°, ΡΡΠΎ Π΄ΠΎΡΠΊΠ° ΠΌΠΎΠΆΠ΅Ρ ΡΠ°ΡΡΡΠ΅ΡΠΊΠ°ΡΡΡΡ ΠΎΡ ΠΎΠ±ΡΡΠ½ΠΎΠ³ΠΎ Π³Π²ΠΎΠ·Π΄Ρ, ΠΊΠΎΡΠΎΡΡΠΉ Π² Π½Π΅Ρ Π·Π°Π±ΠΈΠ²Π°ΡΡ.
ΠΠΎΡΡΠΎΠΌΡ Π²Π°ΠΌ ΠΏΡΠΈΠ΄ΡΡΡΡ ΠΏΠΎΠΆΠ΅ΡΡΠ²ΠΎΠ²Π°ΡΡ ΠΎΠ΄Π½ΠΈΠΌ ΠΊΠ°ΡΠ΅ΡΡΠ²ΠΎΠΌ Π½Π° ΠΏΠΎΠ»ΡΠ·Ρ Π΄ΡΡΠ³ΠΎΠ³ΠΎ ΠΈ Π²ΡΠ±ΠΎΡ ΠΎΡΡΠ°Π½Π΅ΡΡΡ Π·Π° ΠΊΠ°ΠΆΠ΄ΡΠΌ ΠΈΠ· Π²Π°Ρ.
ΠΡΡ ΠΎΠ΄ΠΈΠ½ ΠΏΡΠΎΠ΅ΠΊΡ Π΄ΠΆΠΎΠ½Π±ΠΎΡΠ°Β
| Π¦ΠΈΡΡΠ° ΠΎΠ±ΠΎΠ·Π½Π°ΡΠ΅Π½ΠΈΡ Π½Π° ΡΡ Π΅ΠΌΠ΅ | ΠΠ°ΠΈΠΌΠ΅Π½ΠΎΠ²Π°Π½ΠΈΠ΅ Π΄Π΅ΡΠ°Π»ΠΈ | ΠΠΎΠ»ΠΈΡΠ΅ΡΡΠ²ΠΎ ΡΡΡΠΊ | ΠΠ°ΡΠ°ΠΌΠ΅ΡΡΡ Π² ΠΌΠΌ |
| 1 | ΠΠΈΠ»Ρ (ΠΊΡΠ΅ΠΏΠΈΡΡΡ ΠΊΠ»Π΅Π΅ΠΌ ΠΈ ΡΠ°ΠΌΠΎΡΠ΅Π·Π°ΠΌΠΈ) | 2 | 20x25x2760 |
| 2 | Π’ΡΠ°Π½Π΅Ρ ΠΈΠ· ΡΠ°Π½Π΅ΡΡ | 1 | 1320x403x6 |
| 3 | Π’ΡΠ°Π½ΡΠ΅Π²Π°Ρ ΠΎΠΊΠΎΠ²ΠΊΠ° (ΡΠΏΠ»Π°Π² Π°Π»ΡΠΌΠΈΠ½ΠΈΡ) | 1 | 250x120x1,5 |
| 4 | ΠΠΎΡΠΌΠΎΠ²Π°Ρ ΠΊΠ½ΠΈΡΠ° (ΠΊΡΠ΅ΠΏΠΈΡΡΡ Π½Π° Π³Π²ΠΎΠ·Π΄ΡΡ ) | 2 | 150x150x5 |
| 5 | Π‘ΠΈΠ΄Π΅Π½ΡΠ΅ ΠΊΠΎΡΠΌΠΎΠ²ΠΎΠ΅ (ΠΊΡΠ΅ΠΏΠΈΡΡΡ Π½Π° Π³Π²ΠΎΠ·Π΄ΡΡ ΠΈ ΠΊΠ»Π΅Π΅) | 1 | 1170x500x5 |
| 6 | ΠΠΈΡΡΠΎΠ²Π°Ρ ΠΎΠ±ΡΠΈΠ²ΠΊΠ° Π±ΠΎΡΡΠ° | 2 | 3250x440x5 |
| 7 | ΠΠΎΠ΄ΡΡΠΊΠ° ΠΏΠΎΠ΄ΡΠΊΠ»ΡΡΠΈΠ½Ρ | 2 | 150x70x16 |
| 8 | ΠΠΎΠ΄ΡΠΊΠ»ΡΡΠΈΠ½Π° | β | β |
| 9 | ΠΡΠΈΡΠΎΡΠΌΠΎΠ²ΠΊΠ° Π»Π΅Π½ΡΠΎΠΉ ΡΡΠ΅ΠΊΠ»ΠΎΡΠΊΠ°Π½ΠΈ (1-2 ΡΠ»ΠΎΡ ΡΠ½Π°ΡΡΠΆΠΈ, 3-4 ΡΠ»ΠΎΡ ΠΈΠ·Π½ΡΡΡΠΈ | β | β |
| 10 | ΡΠΎΠΏΡΠΈΠΌΠ±Π΅ΡΡ. ΠΡΠ΅ΠΏΠΈΡΡ ΠΊ Π΄Π΅ΡΠ°Π»ΠΈ 21 ΠΌΠ΅Π΄Π½ΡΠΌΠΈ Π³Π²ΠΎΠ·Π΄ΡΠΌΠΈ ΠΈ ΠΊΠ»Π΅Π΅ΠΌ) | β | 450x60x20 |
| 11 | Π¬Π°Π½ΠΊΠ° Π³ΡΠ΅Π±Π½Π°Ρ (ΠΊΡΠ΅ΠΏΠΈΡΡ ΠΊ Π±ΠΎΡΡΠ°ΠΌ ΡΠ°ΠΌΠΎΡΠ΅Π·Π°ΠΌΠΈ ΡΠ΅ΡΠ΅Π· Π΄Π΅ΡΠ°Π»Ρ 28) | 1 | 1150x250x20 |
| 12 | ΠΡΠΈΡΠΎΡΠΌΠΎΠ²ΠΊΠ° ΠΏΠΎΠ»ΡΠΏΠ΅ΡΠ΅Π±ΠΎΡΠΎΠΊ | β | β |
| 13 | ΠΠΎΡΠΎΠ²Π°Ρ ΠΏΠΎΠ»ΡΠΏΠ΅ΡΠ΅Π±ΠΎΡΠΊΠ° | 1 | 1020x15x5 |
| 14 | Π‘ΠΈΠ΄Π΅Π½ΡΠ΅ Π½ΠΎΡΠΎΠ²ΠΎΠ΅ | 1 | 620x1000x5 |
| 15 | ΠΠ½ΠΈΡΠ° ΠΏΠΎΡΠΎΠ²Π°Ρ ΠΈΠ· ΡΠ°Π½Π΅ΡΡ | 1 | 150x180x5 |
| 16 | Π€ΠΎΡΡΡΠ΅Π²Π΅Π½Ρ (Π½ΠΎΡΠΎΠ²ΠΎΠΉ ΡΡΠ°Π½Π΅Ρ) | 1 | 720x320x5 |
| 17 | ΠΠΈΠΌΡ (ΠΏΡΠΈΠΊΠ»Π΅ΠΈΡΡ ΠΊ Π΄Π΅ΡΠ°Π»ΠΈ 16) | 1 | 720x75x20 |
| 18 | Π ΡΠΌ Π΄Π»Ρ ΡΠ°Π»ΠΈΠ½Ρ (Π²ΡΠΎΡΠΎΠΉ ΡΡΡΠ°Π½Π°Π²Π»ΠΈΠ²Π°Π΅ΡΡΡ Π½Π° ΠΊΠΎΡΠΌΠ΅) | β | β |
| 19 | ΠΠΈΡΡ Π΄Π»Ρ ΠΎΠ±ΡΠΈΠ²ΠΊΠΈ Π΄Π½ΠΈΡΠ° | 1 | 2780x950x5 |
| 20 | Π Π΅ΠΉΠΊΠ° | 1 | 870x75x10 |
| 21 | Π€Π»ΠΎΡ | 1 | 1000x60x20 |
| 22 | ΠΠΈΠ»Π»Π΅ΡΡ | 1 | 200x50x20 |
| 23 | ΠΠ»Π°Π½ΡΠΈΡΡ ΡΠΊΠ»Π΅Π΅Π½ ΠΈΠ· Π΄Π²ΡΡ ΡΠ΅Π΅ΠΊ | 1 | 3400x40x18 (ΠΊΠ°ΠΆΠ΄Π°Ρ) |
| 24 | Π Π΅ΠΉΠΊΠ° ΠΎΠΏΠΎΡΠ½Π°Ρ Π΄Π»Ρ ΡΠΈΠ΄Π΅Π½ΡΡ | 1 | 1000x20x20 |
| 25 | ΠΠΎΡΠΊΠ° ΠΏΠΎΠ΄ΠΌΠΎΡΠΎΡΠ½Π°Ρ | 1 | 1320x190x20 |
| 26 | ΠΠ°ΠΊΠ»Π°Π΄ΠΊΠ° ΠΈΠ· ΡΠ°Π½Π΅ΡΡ | 1 | 250x135x8 |
| 27 | ΠΠΎΡΠΌΠΎΠ²Π°Ρ ΠΏΠΎΠ»ΡΠΏΠ΅ΡΠ΅Π±ΠΎΡΠΊΠ° ΠΈΠ· ΡΠ°Π½Π΅ΡΡ | 1 | 1160x225x5 |
| 28 | Π Π΅ΠΉΠΊΠ° ΠΎΠΏΠΎΡΠ½Π°Ρ | 2 | 25Γ25 |
| 29 | Π Π΅ΠΉΠΊΠ° | 1 | 1100x35x20 |
| 30 | ΠΡΠΎΠ²ΠΎΠ»ΠΎΡΠ½Π°Ρ ΡΠΊΡΠ΅ΠΏΠΊΠ° ΠΈΠ· ΠΌΠ΅Π΄ΠΈ | β | β |
Β
Π Π°Π·ΠΌΠ΅ΡΡ ΠΈ ΡΠΈΡΠ»Π΅Π½Π½ΠΎΡΡΡ Π½ΡΠΆΠ½ΡΡ Π΄Π΅ΡΠ°Π»Π΅ΠΉ*
*ΠΠΎΡΡΠ½Π΅Π½ΠΈΠ΅. Π ΡΠ΅Ρ ΡΠ»ΡΡΠ°ΡΡ , Π³Π΄Π΅ ΡΠΎΠ»ΡΠΈΠ½Π° ΡΠ°Π½Π΅ΡΡ ΡΠΊΠ°Π·Π°Π½Π° 5 ΠΌΠΌ, ΠΌΠΎΠΆΠ½ΠΎ ΠΈΡΠΏΠΎΠ»ΡΠ·ΠΎΠ²Π°ΡΡ ΡΠ°ΠΊΠΆΠ΅ Π·Π½Π°ΡΠ΅Π½ΠΈΠ΅ 6 ΠΌΠΌ Π΄Π»Ρ ΡΠ°Π½Π΅ΡΡ ΠΈ 3 ΠΌΠΌ Π΄Π»Ρ ΠΎΡΠ³ΠΎΠ»ΠΈΡΠ° ΠΈΠ»ΠΈ ΡΡΠ΅ΠΊΠ»ΠΎΡΠ΅ΠΊΡΡΠΎΠ»ΠΈΡΠ°.
Π’Π°ΠΊΠΎΠ΅ ΠΏΠ»Π°Π²ΡΡΠ΅Π΄ΡΡΠ²ΠΎ Π²ΠΏΠΎΠ»Π½Π΅ Π½Π°Π΄ΡΠΆΠ½ΠΎ ΠΈ ΡΠ°ΡΡΡΠΈΡΠ°Π½ΠΎ Π½Π° 1-2 ΡΠ΅Π»ΠΎΠ²Π΅ΠΊ- ΠΠ°ΡΠ΅Ρ ΡΠ°ΠΊΠΎΠ³ΠΎ ΡΠΈΠΏΠ°, ΠΊΠ°ΠΊ Π½Π° ΡΠΎΡΠΎ Π²Π²Π΅ΡΡ
Ρ, Π²ΡΡΠ΄ Π»ΠΈ Π²ΡΠ·ΠΎΠ²Π΅Ρ ΠΎΡΠΎΠ±ΡΠ΅ Π·Π°ΡΡΡΠ΄Π½Π΅Π½ΠΈΡ ΠΏΡΠΈ Π΅Π³ΠΎ ΡΠ±ΠΎΡΠΊΠ΅ ΠΈΠ· Π³ΠΎΡΠΎΠ²ΡΡ
Π΄Π΅ΡΠ°Π»Π΅ΠΉ, Π²Π΅Π΄Ρ ΠΎΠ½ΠΈ Π΄ΠΎΡΡΠ°ΡΠΎΡΠ½ΠΎ ΠΏΡΠΎΡΡΡ ΠΏΠΎ ΡΠΎΡΠΌΠ΅ ΠΈ ΠΈΡΠΏΠΎΠ»Π½Π΅Π½ΠΈΡ. ΠΠΎ ΠΏΠΎΠ»Π½ΠΎΡΠ΅Π½Π½ΡΠΌ ΠΏΠ»Π°Π²Π°ΡΡΠΈΠΌ ΡΡΠ΅Π΄ΡΡΠ²ΠΎΠΌ ΠΌΠΎΠ½ΡΠΈΡΡΠ΅ΠΌΠΎΠ΅ ΡΡΡΡΠΎΠΉΡΡΠ²ΠΎ ΡΠΌΠΎΠΆΠ΅Ρ ΡΡΠ°ΡΡ Π»ΠΈΡΡ Π² ΡΠΎΠΌ ΡΠ»ΡΡΠ°Π΅, Π΅ΡΠ»ΠΈ Π²ΡΠ΅ ΡΠ»Π΅ΠΌΠ΅Π½ΡΡ Π±ΡΠ΄ΡΡ ΡΠΎΡΠ½ΠΎ Π²ΡΡΠ΅Π·Π°Π½Ρ ΠΈ ΡΠ°ΠΊΠΆΠ΅ ΡΠΎΡΠ½ΠΎ ΠΏΠΎΠ΄ΠΎΠ³Π½Π°Π½Ρ Π΄ΡΡΠ³ ΠΊ Π΄ΡΡΠ³Ρ, ΡΡΠΎ ΠΎΠ±Π΅ΡΠΏΠ΅ΡΠΈΡ ΠΏΡΠΎΠΏΠΎΡΡΠΈΠΎΠ½Π°Π»ΡΠ½ΠΎΡΡΡ ΠΈ ΠΎΡΡΠΎΠΉΡΠΈΠ²ΠΎΡΡΡ ΡΡΠ΄Π½Π°, Π° ΡΠ°ΠΊΠΆΠ΅ ΠΈΡΠΊΠ»ΡΡΠΈΡ ΠΎΠ±ΡΠ°Π·ΠΎΠ²Π°Π½ΠΈΠ΅ ΡΠ΅Π»Π΅ΠΉ ΠΈ Π·Π°Π·ΠΎΡΠΎΠ².
Π§ΡΠΎΠ±Ρ Π½Π° ΡΡΠ΅Π·Π°Ρ Π΄ΠΎΡΠΎΠΊ ΠΈ ΡΠ°Π½Π΅ΡΡ Π½Π΅ Π²ΠΎΠ·Π½ΠΈΠΊΠ°Π»ΠΎ Π·Π°ΡΡΠ΅Π½ΡΠ΅Π², Π²Π°ΠΌ Π½ΡΠΆΠ½ΠΎ ΠΏΠΎΠ»ΡΠ·ΠΎΠ²Π°ΡΡΡΡ ΠΎΡΡΡΡΠΌΠΈ ΠΈΠ½ΡΡΡΡΠΌΠ΅Π½ΡΠ°ΠΌΠΈ, Π° ΡΠ°ΠΊΠΆΠ΅ ΠΎΠ±ΡΠ°Π±Π°ΡΡΠ²Π°ΡΡ ΡΠ΅Π· ΡΠ°ΡΠΏΠΈΠ»Π΅ΠΌ ΠΈΠ»ΠΈ Π½Π°ΠΆΠ΄Π°ΡΠ½ΠΎΠΉ Π±ΡΠΌΠ°Π³ΠΎΠΉ (ΡΠ»ΠΈΡΠΎΠ²ΠΊΠ°). (ΡΠΌ. ΡΠ°ΠΊΠΆΠ΅ ΡΡΠ°ΡΡΡ ΠΡΠΎΠ±Π΅Π½Π½ΠΎΡΡΠΈ ΡΠ»ΠΈΡΠΎΠ²Π°Π½Π½ΠΎΠΉ ΡΠ°Π½Π΅ΡΡ)
ΠΠΎΠΊΡΠ°ΡΠΊΠ°
ΠΠ»ΠΈΡΡ Π½ΡΠΆΠ½ΠΎ ΠΊΠΈΠΏΡΡΠΈΡΡ- ΠΠ»Ρ ΠΎΠ±ΡΠ°Π±ΠΎΡΠΊΠΈ ΡΠΎΠ±ΡΠ°Π½Π½ΠΎΠΉ ΠΊΠΎΠ½ΡΡΡΡΠΊΡΠΈΠΈ Π²Π°ΠΌ ΠΏΠΎΡΡΠ΅Π±ΡΠ΅ΡΡΡ ΠΎΠ»ΠΈΡΠ°, Π½ΠΎ ΠΏΠΎΠΊΡΡΠ²Π°ΡΡ Π½Π΅Ρ Π΄ΡΠ΅Π²Π΅ΡΠΈΠ½Ρ Π²Π°ΠΌ ΠΏΡΠΈΠ΄ΡΡΡΡ Π½Π΅ Π² ΠΎΠ±ΡΡΠ½ΠΎΠΌ ΡΠ΅ΠΆΠΈΠΌΠ΅. ΠΠ»Ρ ΡΠΎΠ³ΠΎ ΡΡΠΎΠ±Ρ ΠΆΠΈΠ΄ΠΊΠΎΡΡΡ ΠΏΡΠΎΡΠ»Π° Π²ΠΎ Π²ΡΠ΅ ΡΡΡΠΊΠΈ ΠΈ Π·Π°ΡΡΡΠ»Π° ΡΠ°ΠΌ, ΠΎΠ±ΡΠ°Π·ΠΎΠ²Π°Π² ΡΠ²ΠΎΠ΅ΠΎΠ±ΡΠ°Π·Π½ΡΡ Π²Π»Π°Π³ΠΎΠΈΠ·ΠΎΠ»ΡΡΠΈΠΎΠ½Π½ΡΡ ΠΏΠ»ΡΠ½ΠΊΡ, Π΅Ρ Π½ΡΠΆΠ½ΠΎ Π΄ΠΎΠ²Π΅ΡΡΠΈ Π΄ΠΎ ΠΊΠΈΠΏΠ΅Π½ΠΈΡ ΠΈ ΡΠΎΠ»ΡΠΊΠΎ ΠΏΠΎΡΠ»Π΅ ΡΡΠΎΠ³ΠΎ Π½Π°Π½ΠΎΡΠΈΡΡ Π½Π° ΠΏΠΎΠ²Π΅ΡΡ Π½ΠΎΡΡΡ Π»ΠΎΠ΄ΠΊΠΈ ΠΈ Π² ΠΌΠ΅ΡΡΠ° ΡΡΡΠΊΠΎΠ²ΠΊΠΈ Π΄Π΅ΡΠ°Π»Π΅ΠΉ.
- ΠΠ°ΠΌ ΠΎΠ±ΡΠ·Π°ΡΠ΅Π»ΡΠ½ΠΎ ΠΏΠΎΠ½Π°Π΄ΠΎΠ±ΠΈΡΡΡ ΡΡΡΠΊΠ°, ΡΡΠΎΠ±Ρ ΠΆΠΈΠ΄ΠΊΠΎΡΡΡ ΠΏΡΠΎΠ½ΠΈΠΊΠ»Π° Π² ΡΡΡΠΊΠΈ β Π²Π°Π»ΠΈΠΊΠ° Π±ΡΠ΄Π΅Ρ Π½Π΅Π΄ΠΎΡΡΠ°ΡΠΎΡΠ½ΠΎ, ΠΈ ΡΠΎΠ΅Π΄ΠΈΠ½Π΅Π½ΠΈΡ ΠΎΡΡΠ°Π½ΡΡΡΡ Π½Π΅ΡΡΠΎΠ½ΡΡΡΠΌΠΈ. Π Π²ΠΎΡ ΠΈΡΠΊΡΡΡΡΠ²Π΅Π½Π½ΡΠ΅ ΠΈΠ»ΠΈ Π½Π°ΡΡΡΠ°Π»ΡΠ½ΡΠ΅ Π²ΠΎΡΡΠΈΠ½ΠΊΠΈ ΡΠΏΠΎΡΠΎΠ±Π½Ρ Π·Π°Π½Π΅ΡΡΠΈ ΠΎΠ»ΠΈΡΡ Π² Π·Π°Π·ΠΎΡΡ ΠΌΠ΅Π½Π΅Π΅ ΠΌΠΈΠ»Π»ΠΈΠΌΠ΅ΡΡΠ° ΡΠΎΠ»ΡΠΈΠ½ΠΎΠΉ. ΠΠ΅ΡΠ΅Π΄ ΠΏΠΎΠΊΡΠ°ΡΠΊΠΎΠΉ ΠΎΠ»ΠΈΡΠ° Π΄ΠΎΠ»ΠΆΠ½Π° Π²ΡΡΠΎΡ
Π½ΡΡΡ ΠΈ Π½Π° ΡΡΠΎ ΠΌΠΎΠΆΠ΅Ρ ΠΏΠΎΠ½Π°Π΄ΠΎΠ±ΠΈΡΡΡΡ Π΄ΠΎ 5 ΡΡΡΠΎΠΊ β Π½Π΅ ΡΠΏΠ΅ΡΠΈΡΠ΅ Π½Π°Π½ΠΎΡΠΈΡΡ ΠΊΡΠ°ΡΠΊΡ Π΄ΠΎ ΡΡΠΎΠ³ΠΎ Π²ΡΠ΅ΠΌΠ΅Π½ΠΈ.
- ΠΠ»Ρ ΡΠ°Π±ΠΎΡΡ Π²Π°ΠΌ ΠΏΠΎΠ½Π°Π΄ΠΎΠ±ΡΡΡΡ ΠΌΠ°ΡΠ»ΡΠ½ΡΠ΅ ΠΊΡΠ°ΡΠΊΠΈ, ΠΊΠΎΡΠΎΡΡΠ΅ ΡΠΎΠΆΠ΅ Π±ΡΠ΄ΡΡ Π΄ΠΎΠ»Π³ΠΎ ΡΠΎΡ Π½ΡΡΡ, Π½ΠΎ ΡΠ°ΠΊΠΈΠΌΠΈ ΡΡΠ΅Π΄ΡΡΠ²Π°ΠΌΠΈ Π²Ρ Ρ ΠΎΡΠΎΡΠΎ Π·Π°ΡΠΈΡΠ°Π΅ΡΠ΅ Π΄ΡΠ΅Π²Π΅ΡΠΈΠ½Ρ ΠΎΡ Π³Π½ΠΈΠ΅Π½ΠΈΡ. ΠΡΠΈ ΠΎΡΠΎΡΠΌΠ»Π΅Π½ΠΈΠΈ ΠΌΠΎΠΆΠ½ΠΎ ΡΠ°Π·Π½ΠΎΠΎΠ±ΡΠ°Π·ΠΈΡΡ Π΄ΠΈΠ·Π°ΠΉΠ½ ΡΡΠ΄Π½Π°, Π½Π°ΠΏΡΠΈΠΌΠ΅Ρ, Π΄ΠΎ Π²Π°ΡΠ΅ΡΠ»ΠΈΠ½ΠΈΠΈ ΠΏΠΎΠΊΡΠ°ΡΠΈΡΡ Π»ΠΎΠ΄ΠΊΡ Π² Π±Π΅Π»ΡΠΉ ΡΠ²Π΅Ρ, Π° Π²ΡΡΠ΅ β Π² Π·Π΅Π»ΡΠ½ΡΠΉ.
ΠΠ°ΠΊΠ»ΡΡΠ΅Π½ΠΈΠ΅
ΠΠΎΡΠ»Π΅ ΡΠ±ΠΎΡΠΊΠΈ ΠΈ ΠΏΠΎΠΊΡΠ°ΡΠΊΠΈ ΠΊΠΎΡΠΏΡΡΠ° ΠΊΠ°ΡΠ΅ΡΠ° Π²Π°ΠΌ ΠΎΡΡΠ°Π½Π΅ΡΡΡ ΡΠΌΠΎΠ½ΡΠΈΡΠΎΠ²Π°ΡΡ Π½Π° Π½Π΅Π³ΠΎ Π΄Π²ΠΈΠ³Π°ΡΠ΅Π»Ρ, ΠΊΠ°ΠΊ ΡΠΎΠ³ΠΎ ΡΡΠ΅Π±ΡΠ΅Ρ ΠΈΠ½ΡΡΡΡΠΊΡΠΈΡ Π·Π°Π²ΠΎΠ΄Π°-ΠΈΠ·Π³ΠΎΡΠΎΠ²ΠΈΡΠ΅Π»Ρ. Π§Π°ΡΠ΅ Π²ΡΠ΅Π³ΠΎ Π½Π° ΠΏΠ»Π°Π²ΡΡΠ΅Π΄ΡΡΠ²Π° ΡΠ°ΠΊΠΈΡ ΡΠ°Π·ΠΌΠ΅ΡΠΎΠ² ΡΡΡΠ°Π½Π°Π²Π»ΠΈΠ²Π°ΡΡ ΠΏΠΎΠ΄Π²Π΅ΡΠ½ΡΠ΅ ΠΌΠΎΡΠΎΡΡ ΡΠΈΠΏΠ° Β«ΠΠΈΡ ΡΡΒ», Β«ΠΠ΅ΡΠ΅ΡΠΎΠΊΒ» ΠΈΠ»ΠΈ Β«ΠΠ΅ΠΏΡΡΠ½Β», ΡΠ°ΠΊ ΠΊΠ°ΠΊ ΠΈΡ ΠΌΠΎΠΆΠ½ΠΎ Ρ ΡΠ°Π½ΠΈΡΡ ΠΎΡΠ΄Π΅Π»ΡΠ½ΠΎ ΠΎΡ ΠΊΠΎΡΠΏΡΡΠ° Π»ΠΎΠ΄ΠΊΠΈ, ΠΎΠ±Π΅ΡΠΏΠ΅ΡΠΈΠ² ΡΠ΅ΠΌ ΡΠ°ΠΌΡΠΌ ΡΠΎΡ ΡΠ°Π½Π½ΠΎΡΡΡ ΡΠ΅Ρ Π½ΠΈΡΠ΅ΡΠΊΠΎΠΉ ΡΠ°ΡΡΠΈ.
fanera-info.ru
ΠΠ°ΡΠ΅Ρ ΡΠ²ΠΎΠΈΠΌΠΈ ΡΡΠΊΠ°ΠΌΠΈ ΠΈΠ· Β«ΠΠΎΠ΄Π΅Π»ΠΈΡΡΠ° ΠΊΠΎΠ½ΡΡΡΡΠΊΡΠΎΡΠ°Β» β ΠΠ°ΡΠΊΡΠ»Π°Π΅Ρ
ΠΠΎΠ΅ ΡΠ²Π»Π΅ΡΠ΅Π½ΠΈΠ΅ ΡΠ°Π΄ΠΈΠΎΡΠΏΡΠ°Π²Π»ΡΠ΅ΠΌΡΠΌΠΈ ΠΌΠΎΠ΄Π΅Π»ΡΠΌΠΈ Π½Π°ΡΠ°Π»ΠΎΡΡ Ρ ΠΏΠΎΡΡΡΠΎΠΉΠΊΠΈ ΠΊΠ°ΡΠ΅ΡΠ° Π½Π° ΡΠ°Π΄ΠΈΠΎΡΠΏΡΠ°Π²Π»Π΅Π½ΠΈΠΈ. ΠΠ½ΠΎΠ³ΠΈΠΌ ΠΌΠΎΠ΄Π΅Π»ΠΈΡΡΠ°ΠΌ ΠΈΠ·Π²Π΅ΡΡΠ΅Π½ ΡΠ°ΠΊΠΎΠΉ ΠΆΡΡΠ½Π°Π» ΠΊΠ°ΠΊ Β«ΠΠΎΠ΄Π΅Π»ΠΈΡΡ ΠΊΠΎΠ½ΡΡΡΡΠΊΡΠΎΡΒ». Π ΠΎΠ΄Π½ΠΎΠΌ ΠΈΠ· Π½ΠΎΠΌΠ΅ΡΠΎΠ² Π·Π° 198Π₯ ΠΊΠ°ΠΊΠΎΠΉ-ΡΠΎ Π³ΠΎΠ΄ Ρ ΠΏΡΠΎΡΠΈΡΠ°Π» ΡΡΠ°ΡΡΡ ΠΏΡΠΎ ΡΠΏΠΎΡΡΠΈΠ²Π½ΡΠΉ ΠΊΠ°ΡΠ΅Ρ ΠΈ ΡΠΎΠΆΠ΅ Π·Π°Ρ
ΠΎΡΠ΅Π» ΠΏΠΎΡΡΡΠΎΠΈΡΡ ΡΠ°ΠΊΠΎΠΉ ΠΆΠ΅. ΠΠ° ΡΡΡΠ°Π½ΠΈΡΠ°Ρ
Π±ΡΠ»ΠΈ ΠΏΡΠΈΠ²Π΅Π΄Π΅Π½Ρ Π² ΠΌΠ°ΡΡΡΠ°Π±Π΅ Π½Π΅ΠΎΠ±Ρ
ΠΎΠ΄ΠΈΠΌΡΠ΅ ΡΠ΅ΡΡΠ΅ΠΆΠΈ. ΠΠΎΡ ΡΡΠΎ ΠΈΠ· ΡΡΠΎΠ³ΠΎ ΠΏΠΎΠ»ΡΡΠΈΠ»ΠΎΡΡ.

Π ΡΠ²ΡΠ·ΠΈ Ρ ΡΠ΅ΠΌ, ΡΡΠΎ ΡΠ΅ Π³ΠΎΠ΄Ρ ΠΏΡΠΎΡΠ»ΠΎΠ³ΠΎ ΡΡΠΎΠ»Π΅ΡΠΈΡ Π±ΡΠ»ΠΈ Π΄ΠΎΡΡΠ°ΡΠΎΡΠ½ΠΎ ΡΡΠΆΠ΅Π»ΡΠ΅ ΠΈ Π΄Π»Ρ ΠΌΠΎΠ΄Π΅Π»ΠΈ ΡΡΡΠ΄Π½ΠΎ Π±ΡΠ»ΠΎ Π½Π°ΠΉΡΠΈ Π½ΡΠΆΠ½ΡΠ΅ Π΄Π΅ΡΠ°Π»ΠΈ, ΡΠΎ Π²ΡΠ΅ ΡΡΡΠΎΠΈΠ»ΠΎΡΡ ΠΈΠ· ΠΏΠΎΠ΄ΡΡΡΠ½ΡΡ ΠΌΠ°ΡΠ΅ΡΠΈΠ°Π»ΠΎΠ². Π Π΅Π³ΡΠ»ΡΡΠΎΡΠΎΠ² ΠΈ ΠΌΠΎΡΠΎΡΠΎΠ² Π²ΠΎΠΎΠ±ΡΠ΅ Π½Π΅ Π±ΡΠ»ΠΎ. ΠΠΎ Π±ΡΠ΄Ρ ΠΏΠΎΡΠ»Π΅Π΄ΠΎΠ²Π°ΡΠ΅Π»ΡΠ½ΠΎ Π²Π΅ΡΡΠΈ ΡΠ°ΡΡΠΊΠ°Π·.
Π ΠΊΡΡΠΆΠΊΠΈ ΠΈ Π΄ΠΎΠΌ ΠΏΠΈΠΎΠ½Π΅ΡΠΎΠ² Ρ Π½Π΅ Ρ ΠΎΠ΄ΠΈΠ», ΠΌΠ°ΡΡΠ΅ΡΠΈΠ» ΠΏΠΎΡΠΈΡ ΠΎΠ½ΡΠΊΡ Π΄ΠΎΠΌΠ°. ΠΡΠΎ ΡΡΠ΅ΠΊΠ»ΠΎΡΠΊΠ°Π½Ρ ΠΊΠΎΠ½Π΅ΡΠ½ΠΎ ΡΠ»ΡΡΠ°Π», Π½ΠΎ ΡΠΎΠ΄ΠΈΡΠ΅Π»ΠΈ ΡΠΊΠ°Π·Π°Π»ΠΈ ΡΡΠΎ Π²ΡΠ΅Π΄Π½ΠΎ ΠΈ Π±ΠΎΠ»ΡΡΠ΅ Π½Π΅ ΠΎΠ±ΡΡΠΆΠ΄Π°Π΅ΡΡΡ. ΠΠΎΡΡΠΎΠΌΡ ΠΏΠ΅ΡΠ΅Π²Π΅Π» Π²ΡΠ΅ ΡΠ΅ΡΡΠ΅ΠΆΠΈ Π½Π° ΡΠΎΠ»ΡΡΡΠΉ ΠΊΠ°ΡΡΠΎΠ½, Π½Π°ΡΠ΅Π·Π°Π» Π½Π° ΠΏΠ΅Π½ΠΎΡΠ΅Π·ΠΊΠ΅ ΠΊΡΠ±ΠΈΠΊΠ°ΠΌΠΈ ΠΏΠ΅Π½ΠΎΠΏΠ»Π°ΡΡ. Π‘ΠΎΠ±ΡΠ°Π» ΡΠΏΠ°Π½Π³ΠΎΡΡΡ Π²ΠΌΠ΅ΡΡΠ΅ Ρ ΠΏΠ΅Π½ΠΎΠΏΠ»Π°ΡΡΠΎΠΌ ΠΈ ΠΏΡΠΎΡΠ΅Π»ΡΡ ΠΏΠ΅Π½ΠΎΡΠ΅Π·ΠΊΠΎΠΉ.
ΠΠ΅Π½ΠΎΡΠ΅Π·ΠΊΠ° Π±ΡΠ»Π° ΡΠ°ΠΌΠΎΠ΄Π΅Π»ΡΠ½Π°Ρ, ΠΌΠ΅ΠΆΠ΄Ρ Π΄Π²ΡΡ ΠΎΠΏΠΎΡ Π½Π°ΡΡΠ½ΡΠ» Π½ΠΈΡ ΡΠΎΠΌΠΎΠ²ΡΡ ΡΠΎΠ½Π΅Π½ΡΠΊΡΡ ΠΏΡΠΎΠ²ΠΎΠ»ΠΎΠΊΡ, ΡΠ΅ΡΠ΅Π· ΠΊΠΎΡΠΎΡΡΡ ΠΏΡΠΎΠΏΡΡΠΊΠ°Π» ΡΠΎΠΊ ΠΎΡ ΠΌΠΎΡΠ½ΠΎΠ³ΠΎ 12 Π²ΠΎΠ»ΡΡΠΎΠ²ΠΎΠ³ΠΎ Π±Π»ΠΎΠΊΠ° ΠΏΠΈΡΠ°Π½ΠΈΡ.
ΠΠ°Π»Π΅Π΅ Π²ΡΠ΅ ΠΎΠΊΠ»Π΅ΠΈΠ» ΠΏΠ»ΠΎΡΠ½ΡΠΌ ΠΊΠ°ΡΡΠΎΠ½ΠΎΠΌ. ΠΡΠΎΠΏΠΈΡΠ°Π» Π²ΡΠ΅ Π»Π°ΠΊΠΎΠΌ, ΠΏΡΠ΅Π΄Π²Π°ΡΠΈΡΠ΅Π»ΡΠ½ΠΎ ΠΎΡΠΊΡΡΡΡΠ΅ ΡΡΠ°ΡΡΠΊΠΈ ΠΏΠ΅Π½ΠΎΠΏΠ»Π°ΡΡΠ° ΠΏΠΎΠΊΡΡΠ» ΠΠΠ, ΡΡΠΎΠ±Ρ ΠΏΠ΅Π½ΠΎΠΏΠ»Π°ΡΡ Π½Π΅ ΡΠ°ΡΡΠ²ΠΎΡΠΈΠ»ΡΡ. Π¨ΠΏΠ°Π½Π³ΠΎΡΡ, Π³Π΄Π΅ ΠΏΡΠ΅Π΄ΠΏΠΎΠ»Π°Π³Π°Π»ΡΡ Π΄Π²ΠΈΠ³Π°ΡΠ΅Π»Ρ, ΡΠ΄Π΅Π»Π°Π» ΠΈΠ· ΡΡΠ΅ΠΊΠ»ΠΎΡΠ΅ΠΊΡΡΠΎΠ»ΠΈΡΠ°. ΠΠΎΡΠΏΡΡ ΠΏΠΎΠ»ΡΡΠΈΠ»ΡΡ ΠΎΡΠ΅Π½Ρ Π»Π΅Π³ΠΊΠΈΠΌ ΠΈ Π΄ΠΎΡΡΠ°ΡΠΎΡΠ½ΠΎ ΠΏΡΠΎΡΠ½ΡΠΌ. ΠΠ»ΠΈΠ½Π° ΠΌΠΎΠ΄Π΅Π»ΠΈ 800 ΠΌΠΌ, ΡΠΈΡΠΈΠ½Π° 240 ΠΌΠΌ.
Π ΠΊΠ°ΡΠ΅ΡΡΠ²Π΅ Π΄Π΅ΠΉΠ΄Π²ΡΠ΄Π° ΠΈΡΠΏΠΎΠ»ΡΠ·ΠΎΠ²Π°Π» Π°Π»ΡΠΌΠΈΠ½ΠΈΠ΅Π²ΡΡ ΡΡΡΠ±ΠΊΡ Π΄ΠΈΠ°ΠΌΠ΅ΡΡΠΎΠΌ 10 ΠΌΠΌ, Π² ΠΊΠΎΡΠΎΡΡΡ ΠΏΠΎΡΠ»Π΅ Π½Π΅ΠΊΠΎΡΠΎΡΡΡ Π΄ΠΎΡΠ°Π±ΠΎΡΠΎΠΊ Π½Π°ΠΏΠΈΠ»ΡΠ½ΠΈΠΊΠΎΠΌ Π²ΡΡΠ°Π»ΠΈ ΠΏΠΎΠ΄ΡΠΈΠΏΠ½ΠΈΠΊΠΈ. Π Π²Π΅ΡΡ Π½Π΅ΠΉ ΡΠ°ΡΡΠΈ ΡΠ΄Π΅Π»Π°Π» ΠΌΠ°ΡΠ»Π΅Π½ΠΊΡ Ρ ΠΏΡΠΎΠ±ΠΊΠΎΠΉ ΠΏΠΎΠ΄ Π²ΠΈΠ½Ρ. Π ΠΊΠ°ΡΠ΅ΡΡΠ²Π΅ Π²Π°Π»Π° ΠΈΡΠΏΠΎΠ»ΡΠ·ΠΎΠ²Π°Π» ΠΌΠ΅ΡΠ°Π»Π»ΠΈΡΠ΅ΡΠΊΠΈΠΉ ΠΏΡΡΡΠΎΠΊ, Π½Π° ΠΊΠΎΡΠΎΡΡΠΉ Π½Π°Π½Π΅Ρ ΡΠ΅Π·ΡΠ±Ρ Π4. Π Π΄Π΅ΠΉΠ΄Π²ΡΠ΄ ΡΠΏΡΠΈΡΠ΅ΠΌ Π·Π°Π»ΠΈΠ» Π³ΡΡΡΠΎΠ΅ ΠΌΠ°ΡΠ»ΠΎ, ΠΎΡ ΠΎΡΡΠΎΠ²ΡΠΊΠΎΠΉ ΠΌΠ°ΡΠΈΠ½Ρ.

ΠΠΈΠ»Ρ ΡΠ΄Π΅Π»Π°Π» ΡΠ°ΠΌ, ΠΊ ΡΡΠ΅ΡΠΆΠ½Ρ ΠΏΡΠΈΠΏΠ°ΡΠ» ΠΊΡΡΠΎΡΠ΅ΠΊ ΡΠΎΠ»ΡΠ³ΠΈΡΠΎΠ²Π°Π½Π½ΠΎΠ³ΠΎ ΡΡΠ΅ΠΊΠ»ΠΎΡΠ΅ΠΊΡΡΠΎΠ»ΠΈΡΠ°. Π’Π°ΠΊΠΆΠ΅ ΡΡΡΠ°Π½ΠΎΠ²ΠΈΠ»Β Π΄Π²Π° ΠΏΠΎΠ΄ΡΠΈΠΏΠ½ΠΈΠΊΠ° Π΄Π»Ρ Π»Π΅Π³ΠΊΠΎΡΡΠΈ Ρ ΠΎΠ΄Π°.

ΠΠ° Π΄Π΅Π½Ρ ΡΠΎΠΆΠ΄Π΅Π½ΠΈΡ ΡΠΎΠ΄ΠΈΡΠ΅Π»ΠΈ ΠΏΠΎΠ΄Π°ΡΠΈΠ»ΠΈ ΠΏΠ΅ΡΠ²ΡΡ ΡΠ΅ΡΡΠ΅Π·Π½ΡΡ Π΄Π²ΡΡ ΠΊΠ°Π½Π°Π»ΡΠ½ΡΡ Π°ΠΏΠΏΠ°ΡΠ°ΡΡΡΡ ΠΏΠΈΡΡΠΎΠ»Π΅ΡΠ½ΠΎΠ³ΠΎ ΡΠΈΠΏΠ° Acoms Π½Π° 27MHz Ρ Π²ΡΡΡΠΎΠ΅Π½Π½ΡΠΌ BEC-ΠΎΠΌ ΠΈ Π΄Π²ΡΠΌΡ ΡΡΠ°Π½Π΄Π°ΡΡΠ½ΡΠΌΠΈ ΡΠ΅ΡΠ²ΠΎΠΏΡΠΈΠ²ΠΎΠ΄Π°ΠΌΠΈ.
ΠΠΎΡΠΎΡ Π±ΡΠ» ΠΏΠ΅ΡΠ²ΠΎΠ½Π°ΡΠ°Π»ΡΠ½ΠΎ ΡΡΡΠ°Π½ΠΎΠ²Π»Π΅Π½ Π½ΠΈΠ·ΠΊΠΎΠΎΠ±ΠΎΡΠΎΡΠΈΡΡΡΠΉ Π½Π° 12v, Π΅Π³ΠΎ Ρ Π°ΡΠ°ΠΊΡΠ΅ΡΠΈΡΡΠΈΠΊΠΈ ΠΌΠ½Π΅ Π±ΡΠ»ΠΈ Π½Π΅ ΠΈΠ·Π²Π΅ΡΡΠ½Ρ, Π½ΠΎ ΠΊΡΡΡΡΡΠΈΠΉ ΠΌΠΎΠΌΠ΅Π½Ρ Π±ΡΠ» Π½Π΅ ΠΌΠ°Π»Π΅Π½ΡΠΊΠΈΠΉ.
ΠΡΡΠΊΠΈ ΡΠ΄Π΅Π»Π°Π» Π±ΡΡΡΡΠΎΡΡΠ΅ΠΌΠ½ΡΠΌΠΈ, Ρ ΠΎΠ΄Π½ΠΎΠΉ ΡΡΠΎΡΠΎΠ½Ρ Π·Π°Π΄Π²ΠΈΠ³Π°ΡΡΡΡ, Π° Ρ Π΄ΡΡΠ³ΠΎΠΉ —Β Π½Π° Π²ΠΈΠ½ΡΠΎΠ²ΡΡ ΡΠΎΠ΅Π΄ΠΈΠ½Π΅Π½ΠΈΡΡ .

Π Π΅Π³ΡΠ»ΡΡΠΎΡ Ρ ΡΠ΅Π²Π΅ΡΡΠΎΠΌ ΡΠ΄Π΅Π»Π°Π» ΡΠ°ΠΌ ΠΏΡΠΈΠΌΠΈΡΠΈΠ²Π½ΠΎ ΠΏΡΠΎΡΡΠΎ. ΠΠ·ΡΠ» ΡΡΠΌΠ±Π»Π΅Ρ ΠΎΡ ΡΡΠ°ΡΠΎΠ³ΠΎ ΠΏΡΠΈΠ±ΠΎΡΠ° Π½Π° ΡΡΠΈ ΠΏΠΎΠ»ΠΎΠΆΠ΅Π½ΠΈΡ. Π Π°Π·ΠΎΠ±ΡΠ°Π», ΠΎΡΠ»Π°Π±ΠΈΠ» ΠΏΡΡΠΆΠΈΠ½Ρ, ΠΏΡΠΎΡΠ²Π΅ΡΠ»ΠΈΠ» Π² ΡΡΡΠΊΠ΅ ΠΎΡΠ²Π΅ΡΡΡΠΈΠ΅ ΠΈ ΠΏΡΠΈΡΠΎΠ΅Π΄ΠΈΠ½ΠΈΠ» ΡΡΠ³Ρ ΠΎΡ ΡΠ΅ΡΠ²ΠΎΠΏΡΠΈΠ²ΠΎΠ΄Π°. ΠΠ°ΡΡΡΠΎΠΈΠ» Π² Π°ΠΏΠΏΠ°ΡΠ°ΡΡΡΠ΅ ΡΠ°ΡΡ ΠΎΠ΄Ρ. Π Π°Π±ΠΎΡΠ°Π΅Ρ ΠΊΠ°ΠΊ ΡΠ°ΡΡ, ΡΠΈΡΡΠ°Ρ ΠΌΠ΅Ρ Π°Π½ΠΈΠΊΠ°. ΠΠΎΠ½Π΅ΡΠ½ΠΎ, ΠΌΠΎΠΆΠ½ΠΎ ΠΏΠΎΡΠΏΠΎΡΠΈΡΡ ΠΎΡΠ½ΠΎΡΠΈΡΠ΅Π»ΡΠ½ΠΎ Π΄Π°Π½Π½ΠΎΠ³ΠΎ ΡΠ΅ΡΠ΅Π½ΠΈΡ, Π½ΠΎ Π½Π°ΠΏΠΎΠΌΠ½Ρ, ΡΡΠΎ ΡΡΠΎ Π΄Π΅Π»Π°Π»ΠΎΡΡ ΠΌΠ½ΠΎΠ³ΠΎ Π»Π΅Ρ Π½Π°Π·Π°Π΄.
Π ΠΊΠ°ΡΠ΅ΡΡΠ²Π΅ Π²ΠΈΠ½ΡΠ° ΠΈΡΠΏΠΎΠ»ΡΠ·ΠΎΠ²Π°Π» ΡΠ°ΠΌΠΎΠ΄Π΅Π»ΡΠ½ΡΠΉ ΠΈΠ· Π³Π½ΡΡΠΎΠ³ΠΎ ΠΌΠ΅ΡΠ°Π»Π»Π°, Π½ΠΎ ΡΠΏΡΡΡΡ Π½Π΅ΠΊΠΎΡΠΎΡΠΎΠ΅ Π²ΡΠ΅ΠΌΡ ΠΌΠ½Π΅ ΡΠ΄Π°Π»ΠΎΡΡ ΠΊΡΠΏΠΈΡΡ Π²ΠΈΠ½Ρ ΠΈΠ· Π»Π°ΡΡΠ½ΠΈ, ΡΠ΅Π·ΡΠ»ΡΡΠ°Ρ ΠΎΡΠ΅Π»ΠΎΠΌΠΈΠ». ΠΠΈΠ°ΠΌΠ΅ΡΡ Π²ΠΈΠ½ΡΠ° 40 ΠΌΠΌ.
ΠΠ°Π»Π΅Π΅ Π±ΡΠ»ΠΎ ΡΠ²Π»Π΅ΡΠ΅Π½ΠΈΠ΅ ΡΠΎΡΡΠ΅ΠΉΠ½ΡΠΌΠΈ ΠΌΠ°ΡΠΈΠ½ΠΊΠ°ΠΌΠΈ ΠΈ ΠΏΠΎΡΠ»Π΅ ΠΎΡΠ΅ΡΠ΅Π΄Π½ΠΎΠ³ΠΎ ΡΡΠ½ΠΈΠ½Π³Π°, ΠΏΠΎΡΠ²ΠΈΠ»ΡΡ ΠΊΠΎΠ»Π»Π΅ΠΊΡΠΎΡΠ½ΡΠΉ ΠΌΠΎΡΠΎΡ Mabuchi 540, ΠΊΠΎΡΠΎΡΡΠΉ Ρ ΡΠ΅ΡΠΈΠ» ΡΡΡΠ°Π½ΠΎΠ²ΠΈΡΡ Π² Π»ΠΎΠ΄ΠΊΡ.
ΠΠ΅ΡΠ΅Π΄Π΅Π»ΠΎΠΊ ΠΌΠ½ΠΎΠ³ΠΎ Π½Π΅ ΠΏΠΎΡΠ»Π΅Π΄ΠΎΠ²Π°Π»ΠΎ, Π½ΡΠΆΠ½ΠΎ Π±ΡΠ»ΠΎ ΡΠΎΠ»ΡΠΊΠΎ ΡΠΎΡΡΡΠΊΠΎΠ²Π°ΡΡ Π²Π°Π»Ρ. Π‘ ΡΡΠΎΠΉ Π·Π°Π΄Π°ΡΠ΅ΠΉ ΠΏΠΎΠ·Π²ΠΎΠ»ΠΈΠ» ΡΠΏΡΠ°Π²ΠΈΡΡΡΡ Π³ΠΈΠ±ΠΊΠΈΠΉ ΡΠΎΠ΅Π΄ΠΈΠ½ΠΈΡΠ΅Π»Ρ, Π΄ΠΎ ΡΡΠΎΠ³ΠΎ Π±ΡΠ»ΠΈ ΠΈ ΡΠ΅ΡΡΠ΅ΡΠ΅Π½ΠΊΠΈ, ΡΡΠΎΠ±Ρ ΠΏΠΎΠ²ΡΡΠΈΡΡ ΠΎΠ±ΠΎΡΠΎΡΡ, ΠΈ ΠΊΠ°ΡΠ΄Π°Π½Π½Π°Ρ ΠΏΠ΅ΡΠ΅Π΄Π°ΡΠ°.
ΠΠΊΠΊΡΠΌΡΠ»ΡΡΠΎΡ ΠΈΡΠΏΠΎΠ»ΡΠ·ΠΎΠ²Π°Π» ΠΎΡ ΠΌΠ°ΡΠΈΠ½ΠΊΠΈ NiMh 7,2 3000mAh.
ΠΠΎ ΡΠ°Π΄ΠΎΡΡΡ ΠΎΡ ΡΠΊΠΎΡΠΎΡΡΠ½ΡΡ Π·Π°ΠΏΠ»ΡΠ²ΠΎΠ² Π±ΡΠ»Π° Π½Π΅Π΄ΠΎΠ»Π³ΠΎΠΉ. ΠΠ΄Π°Π»Π΅ΠΊΠ΅ ΠΎΡ Π±Π΅ΡΠ΅Π³Π° ΠΈΠ· ΠΊΠ°ΡΠ΅ΡΠ° ΠΏΠΎΡΠ΅Π» Π΄ΡΠΌ.
Π£ΠΆΠ΅ Π½Π° Π±Π΅ΡΠ΅Π³Ρ ΠΎΡΠΌΠΎΡΡ ΠΏΠΎΠΊΠ°Π·Π°Π», ΡΡΠΎ Π³ΠΎΡΡΡ ΠΏΡΠΎΠ²ΠΎΠ΄Π° ΠΈ ΡΠΈΠ»ΡΠ½ΠΎ Π³ΡΠ΅Π΅ΡΡΡ ΠΌΠΎΡΠΎΡ. Π’Π°ΠΊΠΎΠ³ΠΎ Ρ Π΅ΡΠ΅ Π½Π΅ Π²ΠΈΠ΄Π΅Π» Π½ΠΈ ΡΠ°Π·Ρ.
ΠΠ·Π°ΠΌΠ΅Π½ ΠΏΠΎΡΡΠ°Π²ΠΈΠ» ΡΠΎΠ»ΡΡΠ΅Π½Π½ΡΠ΅ ΠΏΡΠΎΠ²ΠΎΠ΄Π° Π² ΡΠΈΠ»ΠΈΠΊΠΎΠ½Π΅, ΠΏΠ»ΡΡ ΠΊΠΎ Π²ΡΠ΅ΠΌΡ ΡΠ΅ΡΠΈΠ» ΡΠ΄Π΅Π»Π°ΡΡ ΡΠΈΡΡΠ΅ΠΌΡ Π²ΠΎΠ΄ΡΠ½ΠΎΠ³ΠΎ ΠΎΡ Π»Π°ΠΆΠ΄Π΅Π½ΠΈΡ. ΠΡΠΏΠΈΠ» ΠΌΠ΅Π΄Π½ΡΡ ΡΡΡΠ±ΠΊΡ Π² Π°Π²ΡΠΎΠΌΠ°Π³Π°Π·ΠΈΠ½Π΅ ΠΎΡ ΡΠΎΡΠΌΠΎΠ·Π½ΠΎΠΉ ΠΌΠ°Π³ΠΈΡΡΡΠ°Π»ΠΈ. ΠΠ»ΠΎΡΠ½ΠΎ Π½Π°ΠΊΡΡΡΠΈΠ» Π½Π° Π΄Π²ΠΈΠ³Π°ΡΠ΅Π»Ρ. Π ΡΡΠ°Π½ΡΠ΅ ΡΠ΄Π΅Π»Π°Π» Π²Π²ΠΎΠ΄ ΠΈ Π²ΡΠ²ΠΎΠ΄. ΠΠ° ΠΊΠΈΠ»Ρ ΠΏΡΠΈΠΏΠ°ΡΠ» ΠΊΡΡΠΎΡΠ΅ΠΊ ΡΡΡΠ±ΠΊΠΈ. Π‘ΠΎΠ΅Π΄ΠΈΠ½ΠΈΠ» Π²ΡΠ΅ ΡΠ΅Π·ΠΈΠ½ΠΎΠ²ΠΎΠΉ ΡΡΡΠ±ΠΊΠΎΠΉ ΠΈΠ· ΡΠΎΠ³ΠΎ ΠΆΠ΅ Π°Π²ΡΠΎΠΌΠ°Π³Π°Π·ΠΈΠ½Π°. Π’Π΅ΡΡΡ Π² Π²Π°Π½Π½ΠΎΠΉ ΠΏΠΎΠΊΠ°Π·Π°Π»ΠΈ ΡΠ°Π±ΠΎΡΠΎΡΠΏΠΎΡΠΎΠ±Π½ΠΎΡΡΡ ΡΠΈΡΡΠ΅ΠΌΡ, Π²ΠΎΠ΄Π° Π½Π°Π³Π½Π΅ΡΠ°Π΅ΡΡΡ Π² ΡΠΈΡΡΠ΅ΠΌΡ ΠΎΡ Π»Π°ΠΆΠ΄Π΅Π½ΠΈΡ ΠΎΡ Π³ΡΠ΅Π±Π½ΠΎΠ³ΠΎ Π²ΠΈΠ½ΡΠ°.

ΠΠ° Π²ΡΡΠΎΠΊΠΎΠΉ ΡΠΊΠΎΡΠΎΡΡΠΈ ΡΡΠ°Π»ΠΎ Π·Π°ΠΏΠ»Π΅ΡΠΊΠΈΠ²Π°ΡΡ Π²ΠΎΠ΄Ρ Π² ΠΊΠ°ΡΠ΅Ρ, ΠΏΡΠΈΡΠ»ΠΎΡΡ Π²ΡΠ΅ Π»ΡΡΠΊΠΈ ΠΏΠ΅ΡΠ΅Π΄ Π·Π°ΠΏΠ»ΡΠ²Π°ΠΌΠΈ Π·Π°ΠΊΠ»Π΅ΠΈΠ²Π°ΡΡ Π»ΠΈΠΏΠΊΠΎΠΉ Π»Π΅Π½ΡΠΎΠΉ. ΠΡΠΈ ΡΠΌΠ΅Π½Π΅ Π°ΠΊΠΊΡΠΌΡΠ»ΡΡΠΎΡΠΎΠ² Π»Π΅Π½ΡΡ ΠΏΡΠΈΡ ΠΎΠ΄ΠΈΡΡΡ ΠΏΠ΅ΡΠ΅ΠΊΠ»Π΅ΠΈΠ²Π°ΡΡ Π½Π° Π±ΠΎΡΡ Π΄Π»Ρ ΠΏΠΎΠ²ΡΠΎΡΠ½ΠΎΠ³ΠΎ ΠΈΡΠΏΠΎΠ»ΡΠ·ΠΎΠ²Π°Π½ΠΈΡ, ΠΏΠΎΡΡΠΎΠΌΡ ΠΏΠΎΡΠ²Π»ΡΡΡΡΡ ΠΏΡΡΠ½Π° ΠΎΡ ΡΠ°ΡΡΠΈΡΠ΅ΠΊ ΠΊΠ»Π΅Ρ Π»ΠΈΠΏΠΊΠΎΠΉ Π»Π΅Π½ΡΡ. ΠΠ΅ΡΠΈΠΎΠ΄ΠΈΡΠ΅ΡΠΊΠΈ ΠΏΡΠΈΡ ΠΎΠ΄ΠΈΡΡΡ ΡΠΈΡΡΠΈΡΡ ΠΊΠΎΡΠΏΡΡ Π»ΠΎΠ΄ΠΊΠΈ.
ΠΠ°ΠΆΠ΄ΡΠΌ Π»Π΅ΡΠΎΠΌ ΡΠ°ΡΡΠ΅ΠΊΠ°Ρ ΠΏΠΎ Π²ΠΎΠ΄Π½ΡΠΌ ΠΏΡΠΎΡΡΠΎΡΠ°ΠΌ.



Π‘ ΠΌΠΎΠΌΠ΅Π½ΡΠ° ΠΏΠΎΡΡΡΠΎΠΉΠΊΠΈΒ ΠΈ ΠΏΠΎ ΡΠ΅ΠΉ Π΄Π΅Π½ΡΒ ΠΊΠ°ΡΠ΅Ρ ΡΡΡΠ΅ΡΡΠ²ΡΠ΅Ρ, ΠΈΠ·ΠΌΠ΅Π½Π΅Π½ΠΈΠΉ Π² ΠΊΠΎΠ½ΡΡΡΡΠΊΡΠΈΡ Π½Π΅ Π²Π½ΠΎΡΠΈΠ». ΠΠ΄Π½ΠΈΠΌ ΡΠ»ΠΎΠ²ΠΎΠΌ, ΡΠ°Π΄ΡΠ΅Ρ Π³Π»Π°Π· ΠΈ Π½Π°Π²Π΅Π²Π°Π΅Ρ ΠΏΡΠΈΡΡΠ½ΡΠ΅ Π²ΠΎΡΠΏΠΎΠΌΠΈΠ½Π°Π½ΠΈΡ ΠΎ ΠΏΡΠΎΠ²Π΅Π΄Π΅Π½Π½ΠΎΠΌ Π²ΡΠ΅ΠΌΠ΅Π½ΠΈ.
www.parkflyer.ru

